| ||||||||||||||||||||||||||||
Скачать Серия ИИ24-11 Предварительно напряженные плиты перекрытий под повышенную нагрузку, укладываемые на полки ригелейДата актуализации: 10.08.2017
|
| Обозначение: | Серия ИИ24-11 |
| Обозначение англ: | Series ИИ24-11 |
| Статус: | заменен |
| Название рус.: | Предварительно напряженные плиты перекрытий под повышенную нагрузку, укладываемые на полки ригелей |
| Дата добавления в базу: | 01.09.2013 |
| Дата актуализации: | 05.05.2017 |
| Дата введения: | 01.02.1983 |
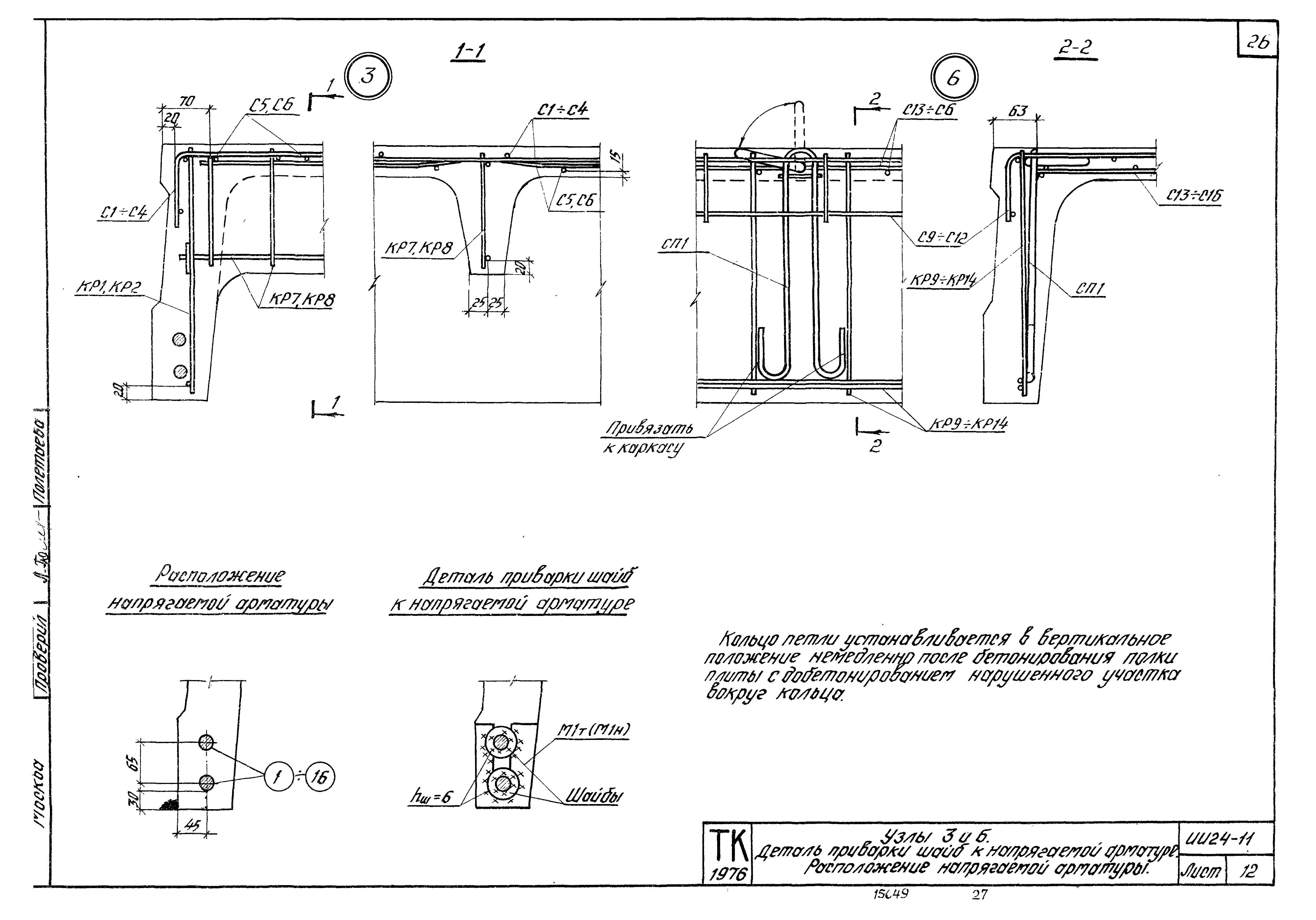
| Оглавление: | ИИ24-11 Пояснительная записка ИИ24-11 Рабочие чертежи ИИ24-11 Показатели на одну плиту ИИ24-11 Рядовая плита размером 1,5х5,55 м. Опалубочный чертеж ИИ24-11 Межколонная плита размером 1,5х5,55 м. Опалубочный чертеж ИИ24-11 Рядовая плита размером 1,5х5,05 м. Опалубочный чертеж ИИ24-11 Межколонная плита размером 1,5х5,05 м. Опалубочный чертеж ИИ24-11 Межколонная плита размером 0,75х5,55 м. Опалубочный чертеж ИИ24-11 Межколонная плита размером 0,75х5,05 м. Опалубочный чертеж ИИ24-11 Армирование. Разрезы 3-3,4-4,5-5,8-8,10-10 ИИ24-11 Армирование. Разрезы 13-13,14-14,15-1517-17 ИИ24-11 Узлы 1 и 2 ИИ24-11 Узлы 4 и 5 ИИ24-11 Узлы 3 и 6. Деталь приварки шайб к напрягаемой арматуре. Расположение напрягаемой арматуры ИИ24-11 Спецификация марок арматурных изделий на одну плиту ИИ24-11 Каркасы КР1-КР4 ИИ24-11 Каркасы КР5-КР8 ИИ24-11 Каркасы КР9-КР14 ИИ24-11 Каркасы КР15,КР16. Опорный узел "А". Размеры сварных швов ИИ24-11 Сетки С1-С5 ИИ24-11 Сетки С6-С10 ИИ24-11 Сетки С11-С16 ИИ24-11 Закладные детали М1т,М1н ИИ24-11 Составная позиция СП1. Позиции 37,76-80,82,84,85. Спецификация стали ИИ24-11 Перечень позиций на одну плиту ИИ24-11 Спецификация позиций арматурных изделий и закладных деталей на альбом ИИ24-11 Выборка стали на одну плиту ИИ24-11 Пример образования отверстий в плитах перекрытий размером 1,5х5,55 м ИИ24-11 Пример образования отверстий в плитах перекрытий размером 0,75х5,55 м ИИ24-11 Пример образования отверстий в плитах перекрытия. Детали плана 1,2 и 3 ИИ24-11 Пример образования отверстий в плитах перекрытия. Сетки ИИ24-11 Опалубочный чертеж плит со шпонками (вариант) ИИ24-11 Допускаемый вариант опалубочной формы плиты |
| Разработан: | ЦНИИпромзданий НИИСК НИИЖБ |
| Утверждён: | 14.12.1978 Госстрой СССР (Государственный комитет Совета Министров СССР по делам строительства) (USSR Gosstroy 2/3-442) |
| Расположен в: | |
| Чем заменён: |

















































