Информационная система
«Ёшкин Кот»

Скачать базу одним архивом
Скачать обновления
История создания базы
Карта сайта

Скачать Типовой проект 310-4-1 Альбом III. Часть 2. Архитектурно-строительные решения. Оборудование участков школ и школ интернатов

Дата актуализации: 10.08.2017

Типовой проект 310-4-1

Альбом III. Часть 2. Архитектурно-строительные решения. Оборудование участков школ и школ интернатов

Обозначение: Типовой проект 310-4-1
Обозначение англ: 310-4-1
Статус:не определен законодательством
Название рус.:Альбом III. Часть 2. Архитектурно-строительные решения. Оборудование участков школ и школ интернатов
Дата добавления в базу:01.09.2013
Дата актуализации:05.05.2017
Дата введения:12.04.1982
Оглавление:ТП 310-4-1 Обложка
ТП 310-4-1 Титульный лист
ТП 310-4-1-АС2-1 Общие данные (начало)
ТП 310-4-1-АС2-2 Общие данные (продолжение)
ТП 310-4-1-АС2-3 Общие данные (продолжение)
ТП 310-4-1-АС2-4 Общие данные (окончание)
ТП 310-4-1-АС2-5 Стенка тип 1 отбойная для мяча. План. Вид А-А. Разрез 1-1
ТП 310-4-1-АС2-6 Стенка тип 2 со скамьей. План. Вид А-А. Разрез 1-1. Узлы 1,2,3
ТП 310-4-1-АС2-7 Стенка тип 3 со шведской стенкой. План. Вид А-А. Разрез 1-1
ТП 310-4-1-АС2-8 Стенка тип 4 для рисования. План. Вид А-А. Разрез 1-1. Узел 1
ТП 310-4-1-АС2-9 Стенка тип 5 с кольцом. План. Вид А-А. Разрез 1-1
ТП 310-4-1-АС2-10 Турник. Вид А-А. Вид Б-Б. Разрез 1-1
ТП 310-4-1-АС2-11 Шведская стенка. Вид А-А. Вид Б-Б. Разрез 1-1
ТП 310-4-1-АС2-12 Расход тип 1. Вид А-А. Вид Б-Б. Вид В-В
ТП 310-4-1-АС2-13 Расход тип 3. Вид А-А. Вид Б-Б. Разрез 1-1
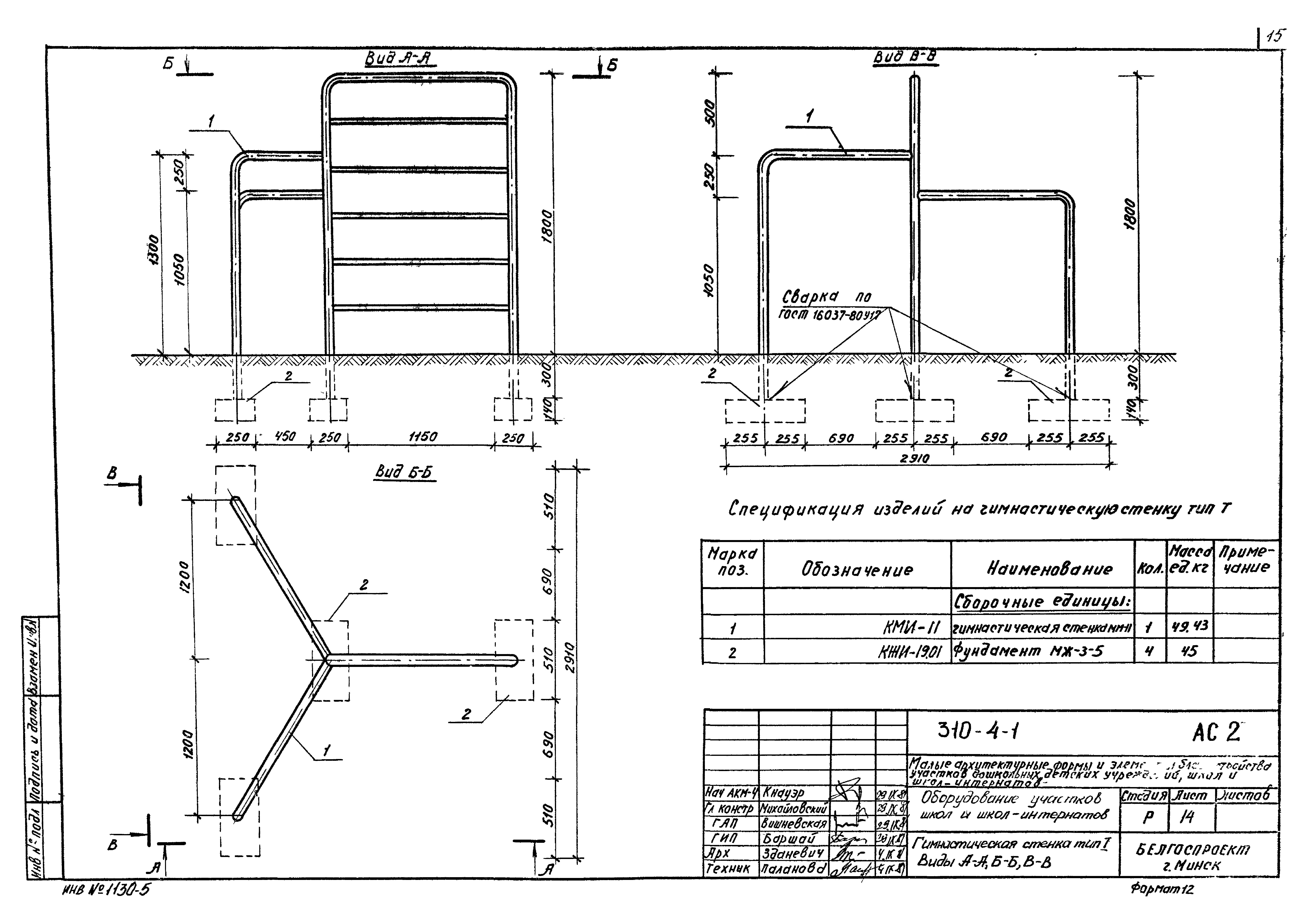
ТП 310-4-1-АС2-14 Гимнастическая стенка тип 1. Вид А-А. Вид Б-Б. Вид В-В
ТП 310-4-1-АС2-15 Гимнастическая стенка тип 2. Вид А-А. Вид Б-Б. Вид В-В
ТП 310-4-1-АС2-16 Брусья параллельные. План. Вид А-А
ТП 310-4-1-АС2-17 Брусья разновысокие. План. Вид А-А
ТП 310-4-1-АС2-18 Мачта для лазания. Вид А-А. Вид Б-Б. Общий вид. Узел 1
ТП 310-4-1-АС2-19 Брусья-лабиринт тип 1. Общий вид. План
ТП 310-4-1-АС2-20 Брусья-лабиринт тип 2. Общий вид. План
ТП 310-4-1-АС2-21 Брусья-лабиринт тип 1 и тип 2. Планы фундаментов. Узел 1. Узел 2. Сечение 3-3
ТП 310-4-1-АС2-22 Гимнастический городок. Вид А-А. Вид Б-Б. Вид В-В
ТП 310-4-1-АС2-23 Бум тип 1(А,Б,В). Вид А-А. Вид Б-Б. Узел 1. Сечение 2-2
ТП 310-4-1-АС2-24 Бум тип 1(А,Б,В). Вид А-А. Вид Б-Б. Узел 1. Сечение 1-1
ТП 310-4-1-АС2-25 Качающиеся бревно. Вид А-А. Вид Б-Б
ТП 310-4-1-АС2-26 Стол для настольного тенниса. Вид А-А. Вид Б-Б. Вид В-В
ТП 310-4-1-АС2-27 Стойка баскетбольная тип 1. Вид А-А. Вид Б-Б. Вид В-В
ТП 310-4-1-АС2-28 Стойка волейбольная. Общий вид
ТП 310-4-1-АС2-29 Ворота футбольные. Вид А-А. Вид Б-Б. Вид В-В
ТП 310-4-1-АС2-30 Ограждение хоккейной площадки. Детали
ТП 310-4-1-АС2-31 Ворота для ручного мяча. Вид А-А,Б-Б. Разрезы 1-1,2-2
ТП 310-4-1-АС2-32 Стол-подставка. Вид А-А. План. Разрез 1-1
ТП 310-4-1-АС2-33 Скамья тип 1 С-1А. Скамья тип 2 С-1А. План. Общий вид. Разрез 1-1
ТП 310-4-1-АС2-34 Скамья тип 1 С-1Б. Скамья тип 2 С-1Б. План. Вид А-А. Разрез 1-1
ТП 310-4-1-АС2-35 Скамья тип 1 С-1В. План. Вид А-А. Разрез 1-1
ТП 310-4-1-АС2-36 Скамья тип 2 С-1В. План. Вид А-А. Разрез 1-1
ТП 310-4-1-АС2-37 Цветочницы из блоков тип 1, тип 2, тип 3. Вид А-А. План. Разрез 1-1. Разрез 2-2
ТП 310-4-1-АС2-38 Цветочницы из арок тип 1, тип 2. Вид А-А. План. Разрез 1-1
ТП 310-4-1-АС2-39 Цветочница из арок тип 3. Вид А-А. План. Разрез 1-1
ТП 310-4-1-АС2-40 Цветочница из арок тип 4. Вид А-А. План. Разрез 1-1
ТП 310-4-1-АС2-41 Урна тип 1. Вид А-А. План. Разрез 1-1. Общий вид
ТП 310-4-1-АС2-42 Урна тип 2. Вид А-А. План. Разрез 1-1. Общий вид
ТП 310-4-1-АС2-43 Урна тип 3. Вид А-А. План. Разрез 1-1. Общий вид
ТП 310-4-1-АС2-44 Лестницы наружные тип 1(А,Б,В,Г). Планы лестниц тип 1 (А,Б,В,Г)
ТП 310-4-1-АС2-45 Лестницы наружные тип 1(А,Б,В,Г). Разрез 1-1. Разрез 2-2. Разрез 3-3. Разрез 4-4
ТП 310-4-1-АС2-46 Лестницы-трибуны тип 1-А и тип 1-Б. План. Разрез 1-1
ТП 310-4-1-АС2-47 Лестницы-трибуны тип 2-А и тип 2-Б. План. Разрез 1-1. Разрез 2-2. Вариант помоста для организации прохода
ТП 310-4-1-АС2-48 Декоративный бассейн для водных растений. План. Разрез 1-1. Узел 1
ТП 310-4-1-АС2-49 Декоративный бассейн для водных растений. План. Разрез 1-1
ТП 310-4-1-АС2-50 Декоративный бассейн для водных растений. Разрезы по выпуску и переливу
ТП 310-4-1-АС2-51 Флагшток тип 1. Флагшток тип 2. Общий вид
Разработан: Белгоспроект
Утверждён:30.04.1976 Госстрой БССР (BSSR Gosstroy 59)
Расположен в:Техническая документация Строительство Справочные документы Типовые строительные конструкции, изделия и узлы Общероссийский строительный каталог Малые формы архитектуры и элементы благоустройства Планировочные элементы благоустройства с малыми архитектурными формами и сооружениями Детские сады и школы
Типовой проект 310-4-1Типовой проект 310-4-1Типовой проект 310-4-1Типовой проект 310-4-1Типовой проект 310-4-1Типовой проект 310-4-1Типовой проект 310-4-1Типовой проект 310-4-1Типовой проект 310-4-1Типовой проект 310-4-1Типовой проект 310-4-1Типовой проект 310-4-1Типовой проект 310-4-1Типовой проект 310-4-1Типовой проект 310-4-1Типовой проект 310-4-1Типовой проект 310-4-1Типовой проект 310-4-1Типовой проект 310-4-1Типовой проект 310-4-1Типовой проект 310-4-1Типовой проект 310-4-1Типовой проект 310-4-1Типовой проект 310-4-1Типовой проект 310-4-1Типовой проект 310-4-1Типовой проект 310-4-1Типовой проект 310-4-1Типовой проект 310-4-1Типовой проект 310-4-1Типовой проект 310-4-1Типовой проект 310-4-1Типовой проект 310-4-1Типовой проект 310-4-1Типовой проект 310-4-1Типовой проект 310-4-1Типовой проект 310-4-1Типовой проект 310-4-1Типовой проект 310-4-1Типовой проект 310-4-1Типовой проект 310-4-1Типовой проект 310-4-1Типовой проект 310-4-1Типовой проект 310-4-1Типовой проект 310-4-1Типовой проект 310-4-1Типовой проект 310-4-1Типовой проект 310-4-1Типовой проект 310-4-1Типовой проект 310-4-1Типовой проект 310-4-1Типовой проект 310-4-1Типовой проект 310-4-1

© 2013 Ёшкин Кот :-) Карта сайта