Информационная система
«Ёшкин Кот»

Скачать базу одним архивом
Скачать обновления
История создания базы
Карта сайта

Скачать Типовой проект 813-2-63.91 Альбом 5. Строительные изделия (вариант с неполным железобетонным каркасом)

Дата актуализации: 10.08.2017

Типовой проект 813-2-63.91

Альбом 5. Строительные изделия (вариант с неполным железобетонным каркасом)

Обозначение: Типовой проект 813-2-63.91
Обозначение англ: 813-2-63.91
Статус:не определен законодательством
Название рус.:Альбом 5. Строительные изделия (вариант с неполным железобетонным каркасом)
Дата добавления в базу:01.09.2013
Дата актуализации:05.05.2017
Дата введения:18.06.1991
Оглавление:ТП 813-2-63.91 Содержание альбома № 5
ТП 813-2-63.91 АР2.И.010000 Изделие закладное (МН1,МН2,МН6)
ТП 813-2-63.91 АР2.И.000002 Изделие закладное МН3
ТП 813-2-63.91 АР2.И.000003 Изделие соединительное МД1
ТП 813-2-63.91 АР2.И.000004 Элемент фасонный ЭФ1
ТП 813-2-63.91 АР2.И.000005 Элемент фасонный ЭФ2
ТП 813-2-63.91 КЖ2.И.ТТ Технические требования
ТП 813-2-63.91 КЖ2.И.010000 Перемычки (4ПБ44-8-А,6ПГ44-40-А)
ТП 813-2-63.91 КЖ2.И.020000 Лоток Л8-15-А
ТП 813-2-63.91 КЖ2.И.030000 Лоток Л8д-15-А
ТП 813-2-63.91 КЖ2.И.040000 Плита П8-8-А
ТП 813-2-63.91 КЖ2.И.050000 Перемычка ПР2
ТП 813-2-63.91 КЖ2.И.050100 Каркас (КР1,КР2)
ТП 813-2-63.91 КЖ2.И.060000 Перемычка ПР3
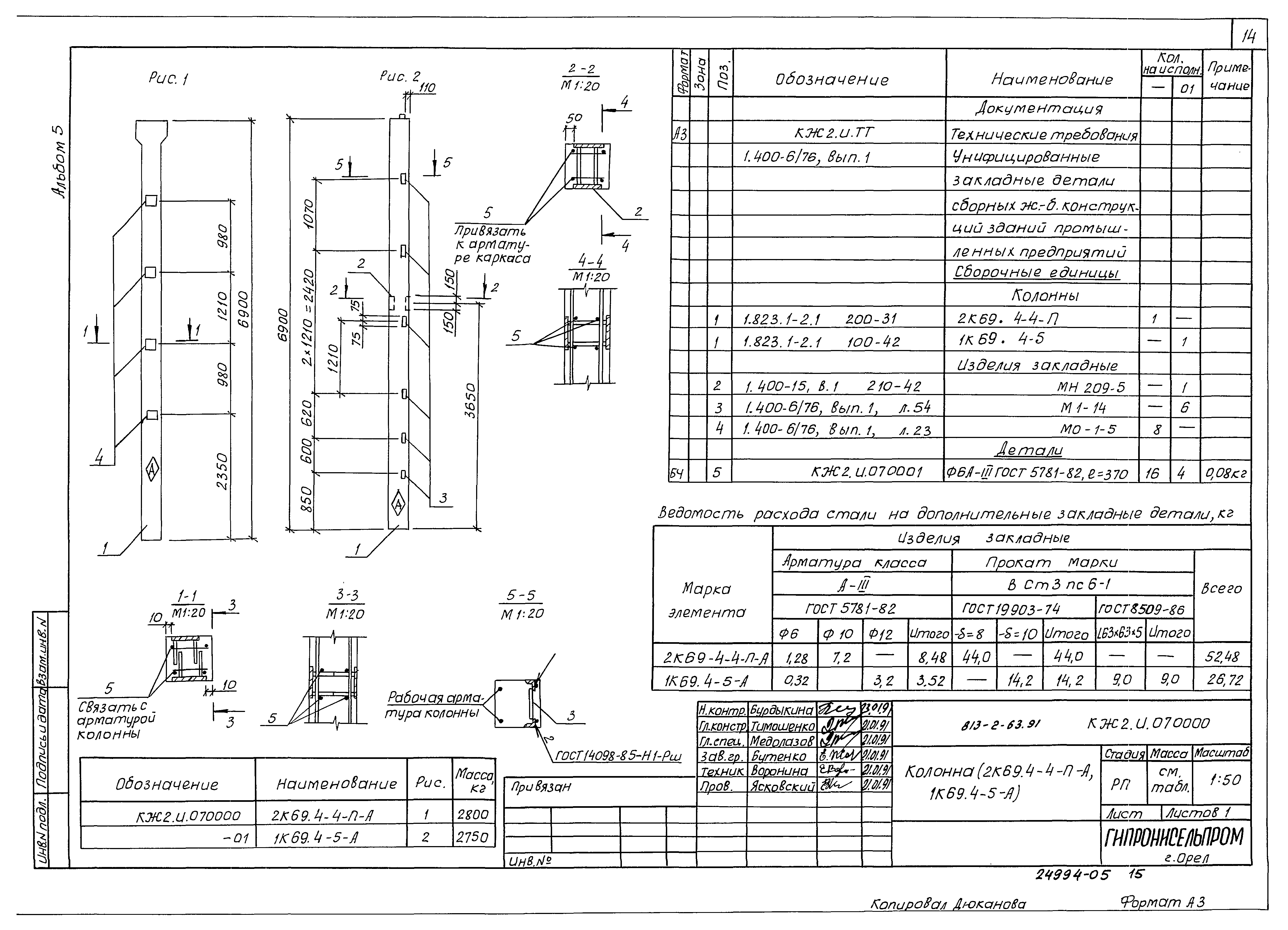
ТП 813-2-63.91 КЖ2.И.070000 Колонна (2К69.4-4-П-А,1К69.4-5-А)
ТП 813-2-63.91 КЖ2.И.080000 Колонна 1 К45.3-1-А,2К45.3-1-А)
ТП 813-2-63.91 КЖ2.И.090000 Балка (БСП9.2-3АIVТ-Н-1,БСП9.2-5АIVТ-Н-1)
ТП 813-2-63.91 КЖ2.И.100000 Балка (БСП9.2-1АIVТ-1,БСП9.2-3АIVТ-1)
ТП 813-2-63.91 КЖ2.И.110000 Опорная подушка ОП1
ТП 813-2-63.91 КЖ2.И.120000 Опорная подушка ОП2
ТП 813-2-63.91 КЖ2.И.130000 Плита 1ПГ6-4АIVТ-Н-А)
ТП 813-2-63.91 КЖ2.И.140000 Каркас (КР3...КР5)
ТП 813-2-63.91 КЖ2.И.150000 Изделие закладное МН1
ТП 813-2-63.91 КЖ2.И.020100 Изделие закладное МН2
ТП 813-2-63.91 КЖ2.И.110200 Изделие закладное МН3
ТП 813-2-63.91 КЖ2.И.160000 Изделие соединительное МС1
ТП 813-2-63.91 КЖ2.И.170000 Щит Щ1
ТП 813-2-63.91 КЖ2.И.180000 Шибер (ШБ1,ШБ2)
ТП 813-2-63.91 КД2.И.010000 Изделие соединительное (МС1,МС2)
Разработан: ФГУП Гипронисельпром (Гипронисельпром)
Утверждён:18.06.1991 Главагропромнаучпроект Госкомиссии СМ СССР по продовольствию и закупкам (27)
Расположен в:Техническая документация Строительство Справочные документы Типовые строительные конструкции, изделия и узлы Общероссийский строительный каталог Сельскохозяйственные предприятия, здания и сооружения Предприятия, здания и сооружения для хранения зерна, семян, картофеля, овощей, фруктов и другой сельскохозяйственной продукции Картофелехранилища
Типовой проект 813-2-63.91Типовой проект 813-2-63.91Типовой проект 813-2-63.91Типовой проект 813-2-63.91Типовой проект 813-2-63.91Типовой проект 813-2-63.91Типовой проект 813-2-63.91Типовой проект 813-2-63.91Типовой проект 813-2-63.91Типовой проект 813-2-63.91Типовой проект 813-2-63.91Типовой проект 813-2-63.91Типовой проект 813-2-63.91Типовой проект 813-2-63.91Типовой проект 813-2-63.91Типовой проект 813-2-63.91Типовой проект 813-2-63.91Типовой проект 813-2-63.91Типовой проект 813-2-63.91Типовой проект 813-2-63.91Типовой проект 813-2-63.91Типовой проект 813-2-63.91Типовой проект 813-2-63.91Типовой проект 813-2-63.91Типовой проект 813-2-63.91Типовой проект 813-2-63.91Типовой проект 813-2-63.91

© 2013 Ёшкин Кот :-) Карта сайта