Информационная система
«Ёшкин Кот»

Скачать базу одним архивом
Скачать обновления
История создания базы
Карта сайта

Скачать Типовой проект 902-1-65 Альбом III. Строительные решения. Подземная часть

Дата актуализации: 10.08.2017

Типовой проект 902-1-65

Альбом III. Строительные решения. Подземная часть

Обозначение: Типовой проект 902-1-65
Обозначение англ: 902-1-65
Статус:действует
Название рус.:Альбом III. Строительные решения. Подземная часть
Дата добавления в базу:01.09.2013
Дата актуализации:05.05.2017
Дата введения:01.11.1982
Оглавление:ТП 902-1-65 Содержание
ТП 902-1-65-КЖ Основной комплект марки КЖ
ТП 902-1-65-КЖ-1 Общие данные
ТП 902-1-65-КЖ-2 Планы на отметке -3.600, -8.100 Разрезы 1-1,2-2
ТП 902-1-65-КЖ-3 Схема расположения монолитных конструкций подземной части
ТП 902-1-65-КЖ-4 Схема расположения стеновых панелей. Развертка наружной стены
ТП 902-1-65-КЖ-4 Схема расположения стеновых панелей. Узлы 1-4
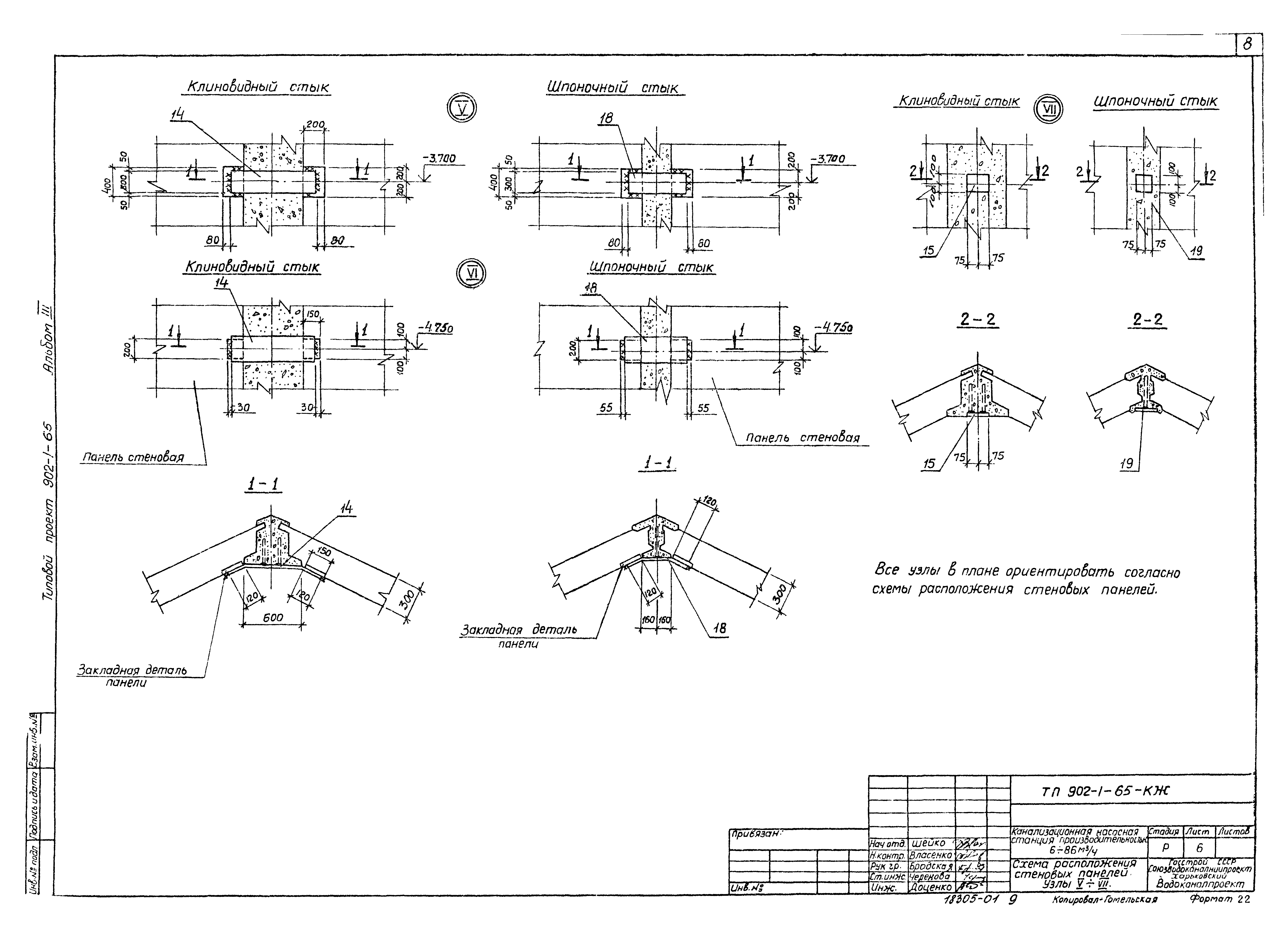
ТП 902-1-65-КЖ-4 Схема расположения стеновых панелей. Узлы 5-8
ТП 902-1-65-КЖ-4 Схема расположения стеновых панелей. Спецификация
ТП 902-1-65-КЖ-8 Плита днища ПДМ1. Схема армирования
ТП 902-1-65-КЖ-9 Стена СТМ1
ТП 902-1-65-КЖ-10 Стена СТМ1. Схема армирования
ТП 902-1-65-КМ Основной комплект марки КМ
ТП 902-1-65-КМ-1 Общие данные
ТП 902-1-65-КМ-2 Схемы расположения металлических лестниц и площадок
ТП 902-1-65-КМ-3 Схемы расположения металлических лестниц и площадок. Сечения 1-1÷7-7. Узел 1
Разработан: Харьковский Водоканалпроект
Утверждён:29.04.1982 Главпромстройпроект Госстроя СССР (15)
Расположен в:Техническая документация Строительство Справочные документы Типовые строительные конструкции, изделия и узлы Общероссийский строительный каталог Промышленные предприятия, здания и сооружения Здания и сооружения санитарно-технические Канализация Станции насосные Станции насосные для перекачки бытовых сточных вод
Типовой проект 902-1-65Типовой проект 902-1-65Типовой проект 902-1-65Типовой проект 902-1-65Типовой проект 902-1-65Типовой проект 902-1-65Типовой проект 902-1-65Типовой проект 902-1-65Типовой проект 902-1-65Типовой проект 902-1-65Типовой проект 902-1-65Типовой проект 902-1-65Типовой проект 902-1-65Типовой проект 902-1-65Типовой проект 902-1-65Типовой проект 902-1-65Типовой проект 902-1-65

© 2013 Ёшкин Кот :-) Карта сайта