Информационная система
«Ёшкин Кот»

Скачать базу одним архивом
Скачать обновления
История создания базы
Карта сайта

Скачать Типовой проект ОТП.С.02.62.01-93 Альбом 1. Пояснительная записка. Электротехнические решения. Конструкции металлические

Дата актуализации: 10.08.2017

Типовой проект ОТП.С.02.62.01-93

Альбом 1. Пояснительная записка. Электротехнические решения. Конструкции металлические

Обозначение: Типовой проект ОТП.С.02.62.01-93
Обозначение англ: ОТП.С.02.62.01-93
Статус:не определен законодательством
Название рус.:Альбом 1. Пояснительная записка. Электротехнические решения. Конструкции металлические
Дата добавления в базу:01.09.2013
Дата актуализации:05.05.2017
Дата введения:13.04.1993
Оглавление:ОТП.С.02.62.01-93 Содержание альбома
ОТП.С.02.62.01-93-01 ПЗ Пояснительная записка
ОТП.С.02.62.01-93-ЭЛ Электротехнические чертежи "ЭЛ"
ОТП.С.02.62.01-93-01 ЭЛ Общие данные
ОТП.С.02.62.01-93-02 ЭЛ Секционирование линий 6(10)кВ с односторонним питанием. Схема главных цепей
ОТП.С.02.62.01-93-03 ЭЛ Секционирование линий 6(10)кВ с двусторонним питанием без TV. Схема главных цепей
ОТП.С.02.62.01-93-04 ЭЛ Секционирование линий 6(10)кВ с двусторонним питанием и АВР. Схема главных цепей
ОТП.С.02.62.01-93-05 ЭЛ Плавка гололеда методом КЗ (4.14). Схема главных цепей
ОТП.С.02.62.01-93-06 ЭЛ Плавка гололеда методом КЗ (5.14). Схема главных цепей
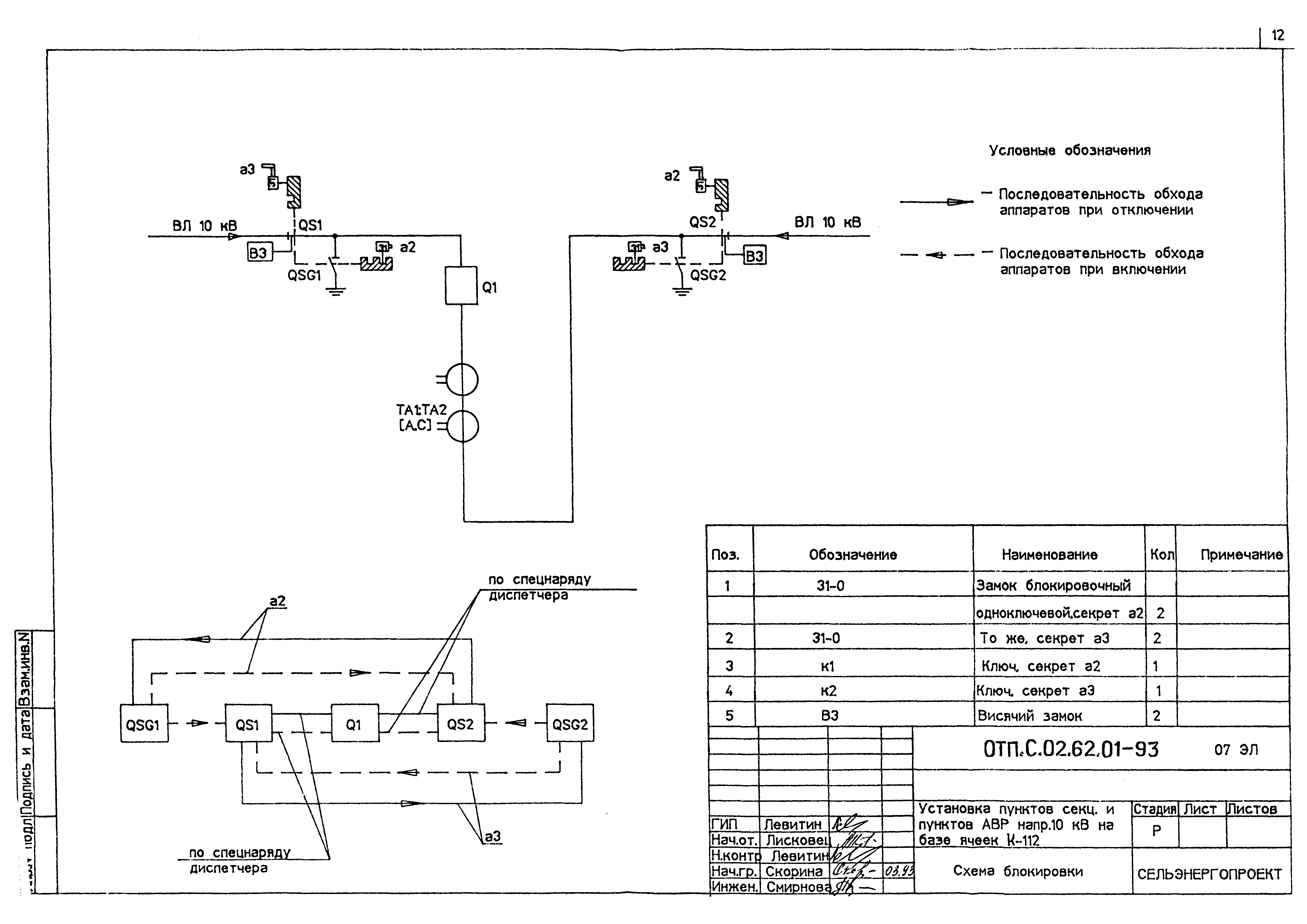
ОТП.С.02.62.01-93-07 ЭЛ Схема блокировки
ОТП.С.02.62.01-93-08 ЭЛ Таблица выбора Пунктов (начало)
ОТП.С.02.62.01-93-09 ЭЛ Таблица выбора Пунктов (окончание)
ОТП.С.02.62.01-93-10 ЭЛ Общий вид установки секционирующего пункта (вариант 1 с трубой)
ОТП.С.02.62.01-93-11 ЭЛ Общий вид установки секционирующего пункта (вариант 1 с лотком)
ОТП.С.02.62.01-93-12 ЭЛ Общий вид установки секционирующего пункта (вариант 2,3)
ОТП.С.02.62.01-93-13 ЭЛ Общий вид установки секционирующего пункта (вариант 4)
ОТП.С.02.62.01-93-14 ЭЛ Общий вид установки пункта плавки гололеда (вариант 2,3)
ОТП.С.02.62.01-93-15 ЭЛ Общий вид установки пункта плавки гололеда (вариант 4)
ОТП.С.02.62.01-93-16 ЭЛ Опросный лист на К-112
ОТП.С.02.62.01-93-КМ Чертежи конструкций металлических марки "КМ"
ОТП.С.02.62.01-93-01 КМ Общие данные
ОТП.С.02.62.01-93-02 КМ Вариант 1. Общий вид
ОТП.С.02.62.01-93-03 КМ Вариант 2. Общий вид
ОТП.С.02.62.01-93-04 КМ Вариант 3. Общий вид
ОТП.С.02.62.01-93-05 КМ Вариант 4. Общий вид
ОТП.С.02.62.01-93-06 КМ Узлы I и II
ОТП.С.02.62.01-93-07 КМ Марки М1-М4
ОТП.С.02.62.01-93-08 КМ Марки М5-М9; М21
ОТП.С.02.62.01-93-09 КМ Марки М10-М13
ОТП.С.02.62.01-93-10 КМ Марки М14-М19
ОТП.С.02.62.01-93-11 КМ Марки М20
Разработан: Сельэнергопроект
Утверждён:13.04.1993 Сельэнергопроект (8-п)
Расположен в:Техническая документация Строительство Справочные документы Типовые строительные конструкции, изделия и узлы Разработанные другими министерствами, ведомствами и организациями
Типовой проект ОТП.С.02.62.01-93Типовой проект ОТП.С.02.62.01-93Типовой проект ОТП.С.02.62.01-93Типовой проект ОТП.С.02.62.01-93Типовой проект ОТП.С.02.62.01-93Типовой проект ОТП.С.02.62.01-93Типовой проект ОТП.С.02.62.01-93Типовой проект ОТП.С.02.62.01-93Типовой проект ОТП.С.02.62.01-93Типовой проект ОТП.С.02.62.01-93Типовой проект ОТП.С.02.62.01-93Типовой проект ОТП.С.02.62.01-93Типовой проект ОТП.С.02.62.01-93Типовой проект ОТП.С.02.62.01-93Типовой проект ОТП.С.02.62.01-93Типовой проект ОТП.С.02.62.01-93Типовой проект ОТП.С.02.62.01-93Типовой проект ОТП.С.02.62.01-93Типовой проект ОТП.С.02.62.01-93Типовой проект ОТП.С.02.62.01-93Типовой проект ОТП.С.02.62.01-93Типовой проект ОТП.С.02.62.01-93Типовой проект ОТП.С.02.62.01-93Типовой проект ОТП.С.02.62.01-93Типовой проект ОТП.С.02.62.01-93Типовой проект ОТП.С.02.62.01-93Типовой проект ОТП.С.02.62.01-93Типовой проект ОТП.С.02.62.01-93Типовой проект ОТП.С.02.62.01-93Типовой проект ОТП.С.02.62.01-93Типовой проект ОТП.С.02.62.01-93Типовой проект ОТП.С.02.62.01-93Типовой проект ОТП.С.02.62.01-93

© 2013 Ёшкин Кот :-) Карта сайта