Информационная система
«Ёшкин Кот»

Скачать базу одним архивом
Скачать обновления
История создания базы
Карта сайта

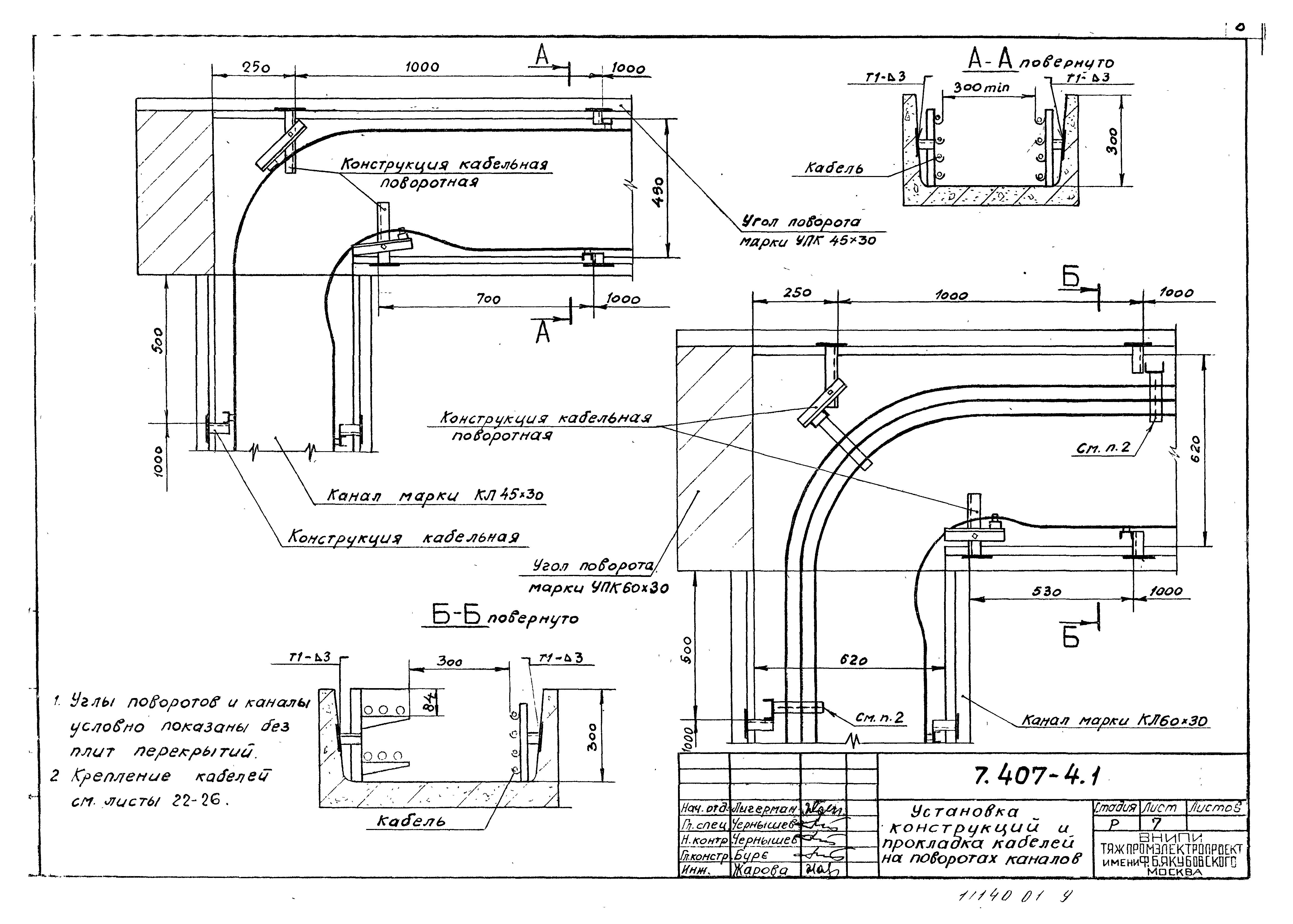
Скачать Серия 7.407-4 Выпуск 1. Чертежи монтажные

Дата актуализации: 10.08.2017

Серия 7.407-4

Выпуск 1. Чертежи монтажные

Обозначение: Серия 7.407-4
Обозначение англ: Series 7.407-4
Статус:не действует
Название рус.:Выпуск 1. Чертежи монтажные
Дата добавления в базу:01.09.2013
Дата актуализации:05.05.2017
Дата введения:22.01.1981
Дата окончания срока действия:01.01.1993
Разработан: Главэлектромонтаж Минмонтажспецстроя СССР
ВНИПИ Тяжпромэлектропроект им. Ф.Б. Якубовского
Утверждён:25.11.1980 ВНИПИ Тяжпромэлектропроект им. Ф.Б. Якубовского (F.B.Yakubovskiy Tyazhpromelektroproject VNIPI 194)
Расположен в:Техническая документация Строительство Справочные документы Типовые строительные конструкции, изделия и узлы Общероссийский строительный каталог Строительные конструкции, изделия и узлы зданий и сооружений для всех видов строительства Инженерное оборудование Инженерное оборудование; изделия и узлы инженерного оборудования зданий и сооружений Электрооборудование и электросети Прокладка шинопроводов, кабелей, троллеев и электропроводок
Серия 7.407-4Серия 7.407-4Серия 7.407-4Серия 7.407-4Серия 7.407-4Серия 7.407-4Серия 7.407-4Серия 7.407-4Серия 7.407-4Серия 7.407-4Серия 7.407-4Серия 7.407-4Серия 7.407-4Серия 7.407-4Серия 7.407-4Серия 7.407-4Серия 7.407-4Серия 7.407-4Серия 7.407-4Серия 7.407-4Серия 7.407-4Серия 7.407-4Серия 7.407-4Серия 7.407-4Серия 7.407-4Серия 7.407-4Серия 7.407-4

© 2013 Ёшкин Кот :-) Карта сайта