Информационная система
«Ёшкин Кот»

Скачать базу одним архивом
Скачать обновления
История создания базы
Карта сайта

Скачать Типовой проект 903-1-203 Альбом 11.3. Котельная. Сочленения исполнительных механизмов с регулирующими органами

Дата актуализации: 10.08.2017

Типовой проект 903-1-203

Альбом 11.3. Котельная. Сочленения исполнительных механизмов с регулирующими органами

Обозначение: Типовой проект 903-1-203
Обозначение англ: 903-1-203
Статус:действует
Название рус.:Альбом 11.3. Котельная. Сочленения исполнительных механизмов с регулирующими органами
Дата добавления в базу:01.09.2013
Дата актуализации:05.05.2017
Оглавление:ТП 903-1-203 Содержание альбома
ТП 903-1-203 98.01.00.000 Сочленение механизма МЭО-100/25-0,25 с клапаном регулирующим 9с-4-2
ТП 903-1-203 98.01.00.000 К2 Сочленение механизма МЭО-100/25-0,25 с клапаном регулирующим 9с-4-2. Схема кинематическая
ТП 903-1-203 98.01.00.000 СБ Сочленение механизма МЭО-100/25-0,25 с клапаном регулирующим 9с-4-2. Сборочный чертеж
ТП 903-1-203 98.01.01.000 Опора
ТП 903-1-203 98.01.01.000 СБ Опора. Сборочный чертеж
ТП 903-1-203 98.01.02.000 Штанга
ТП 903-1-203 98.01.02.000 СБ Штанга. Сборочный чертеж
ТП 903-1-203 98.01.00.001 Ось
ТП 903-1-203 98.02.00.000 Установка электромагнита МИС-4100 на клапане предохранительном запорном типа ПКН и ПКВ Ду200
ТП 903-1-203 98.03.00.000 Установка электромагнита МИС-4100 на клапане предохранительном запорном типа ПКН и ПКВ Ду100
ТП 903-1-203 98.02.00.001 Втулка
ТП 903-1-203 98.02.00.002 Гайка специальная
ТП 903-1-203 98.02.00.000 СБ Установка электромагнита МИС-4100 на клапане предохранительном запорном типа ПКН и ПКВ Ду200. Сборочный чертеж
ТП 903-1-203 98.02.00.003 Пластина
ТП 903-1-203 98.02.00.004 Серьга
ТП 903-1-203 98.02.00.005 Скоба
ТП 903-1-203 98.02.00.006 Шток
ТП 903-1-203 98.03.00.000 СБ Установка электромагнита МИС-4100 на клапане предохранительном запорном типа ПКН и ПКВ Ду100. Сборочный чертеж
ТП 903-1-203 98.04.01.000 Рычаг
ТП 903-1-203 98.04.01.000 СБ Рычаг. Сборочный чертеж
ТП 903-1-203 98.04.01.002 Бобышка
ТП 903-1-203 98.05.00.000 Сочленение механизма МЭО-100/25-0,25 с заслонкой дроссельной ЗД-150 Ду150
ТП 903-1-203 98.05.00.000 К2Сочленение механизма МЭО-100/25-0,25 с заслонкой дроссельной ЗД-150 Ду150. Схема кинематическая
ТП 903-1-203 98.05.00.000 СБ Сочленение механизма МЭО-100/25-0,25 с заслонкой дроссельной ЗД-150 Ду150. Сборочный чертеж
ТП 903-1-203 98.06.00.000 Сочленение механизма МЭО-100/25-0,25 с заслонкой ЗД-100 и клапаном 9с-4-1
ТП 903-1-203 98.06.00.000 К2 Сочленение механизма МЭО-100/25-0,25 с заслонкой ЗД-100 и клапаном 9с-4-1. Схема кинематическая
ТП 903-1-203 98.08.00.001 Рычаг
ТП 903-1-203 98.06.00.000 СБ Сочленение механизма МЭО-100/25-0,25 с заслонкой ЗД-100 и клапаном 9с-4-1. Сборочный чертеж
ТП 903-1-203 98.06.01.000 Опора
ТП 903-1-203 98.06.01.000 СБ Опора. Сборочный чертеж
ТП 903-1-203 98.10.00.000 Сочленение механизма МЭО-100/63-0,25 с направляющим аппаратом дымососа ДН-11,2
ТП 903-1-203 98.10.00.000 К2 Сочленение механизма МЭО-100/63-0,25 с направляющим аппаратом дымососа ДН-11,2. Схема кинематическая
ТП 903-1-203 98.10.00.000 СБ Сочленение механизма МЭО-100/63-0,25 с направляющим аппаратом дымососа ДН-11,2. Сборочный чертеж
ТП 903-1-203 98.11.00.000 Сочленение механизма МЭО-100/25-0,25 с направляющим аппаратом вентилятора ВДН-9
ТП 903-1-203 98.11.00.000 К2 Сочленение механизма МЭО-100/25-0,25 с направляющим аппаратом вентилятора ВДН-9. Схема кинематическая
ТП 903-1-203 98.11.00.000 СБ Сочленение механизма МЭО-100/25-0,25 с направляющим аппаратом вентилятора ВДН-9. Сборочный чертеж
ТП 903-1-203 98.12.00.000 Сочленение механизма МЭО-100/63-0,25 с направляющим аппаратом дымососа ДН-12,5
ТП 903-1-203 98.12.00.000 К2 Сочленение механизма МЭО-100/63-0,25 с направляющим аппаратом дымососа ДН-12,5. Схема кинематическая
ТП 903-1-203 98.12.00.000 СБ Сочленение механизма МЭО-100/63-0,25 с направляющим аппаратом дымососа ДН-12,5. Сборочный чертеж
ТП 903-1-203 98.13.00.000 Сочленение механизма МЭО-100/25-0,25 с направляющим аппаратом вентилятора ВДН-10
ТП 903-1-203 98.13.00.000 К2 Сочленение механизма МЭО-100/25-0,25 с направляющим аппаратом вентилятора ВДН-10. Схема кинематическая
ТП 903-1-203 98.13.00.000 СБ Сочленение механизма МЭО-100/25-0,25 с направляющим аппаратом вентилятора ВДН-10. Сборочный чертеж
ТП 903-1-203 98.16.00.000 Сочленение механизма МЭО-250/25-0,25 с клапаном Т-34б
ТП 903-1-203 98.16.00.000 К2 Сочленение механизма МЭО-250/25-0,25 с клапаном Т-34б. Схема кинематическая
ТП 903-1-203 98.16.00.000 СБ Сочленение механизма МЭО-250/25-0,25 с клапаном Т-34б. Сборочный чертеж
ТП 903-1-203 98.19.00.000 Сочленение механизма МЭО-250/25-0,25 с клапаном регулирующим поворотным 6с-8-2
ТП 903-1-203 98.19.00.000 К2 Сочленение механизма МЭО-250/25-0,25 с клапаном регулирующим поворотным 6с-8-2. Схема кинематическая
ТП 903-1-203 98.19.00.000 СБ Сочленение механизма МЭО-250/25-0,25 с клапаном регулирующим поворотным 6с-8-2. Сборочный чертеж
ТП 903-1-203 98.20.00.000 Сочленение механизма МЭО-250/25-0,25 с клапаном регулирующим поворотным 6с-8-2
ТП 903-1-203 98.20.00.000 К2 Сочленение механизма МЭО-250/25-0,25 с клапаном регулирующим поворотным 6с-8-2. Схема кинематическая
ТП 903-1-203 98.20.00.000 СБ Сочленение механизма МЭО-250/25-0,25 с клапаном регулирующим поворотным 6с-8-2. Сборочный чертеж
ТП 903-1-203 98.24.00.000 Сочленение механизма МЭО-250/25-0,25 с клапаном регулирующим поворотным 6с-9-1
ТП 903-1-203 98.24.00.000 К2 Сочленение механизма МЭО-250/25-0,25 с клапаном регулирующим поворотным 6с-9-1. Схема кинематическая
ТП 903-1-203 98.24.00.000 СБ Сочленение механизма МЭО-250/25-0,25 с клапаном регулирующим поворотным 6с-9-1. Сборочный чертеж
ТП 903-1-203 98.25.00.000 Сочленение механизма МЭО-250/25-0,25 с клапаном регулирующим поворотным 6с-8-1
ТП 903-1-203 98.25.00.000 К2 Сочленение механизма МЭО-250/25-0,25 с клапаном регулирующим поворотным 6с-8-1. Схема кинематическая
ТП 903-1-203 98.25.00.000 СБ Сочленение механизма МЭО-250/25-0,25 с клапаном регулирующим поворотным 6с-8-1. Сборочный чертеж
ТП 903-1-203 98.27.00.000 Сочленение механизма МЭО-250/25-0,25 с клапаном Т-35б
ТП 903-1-203 98.27.00.000 К2 Сочленение механизма МЭО-250/25-0,25 с клапаном Т-35б. Схема кинематическая
ТП 903-1-203 98.27.00.000 СБ Сочленение механизма МЭО-250/25-0,25 с клапаном Т-35б. Сборочный чертеж
ТП 903-1-203 98.29.00.000 Сочленение механизма МЭО-250/25-0,25 с клапаном регулирующим поворотным 6с-9-1
ТП 903-1-203 98.29.00.000 К2 Сочленение механизма МЭО-250/25-0,25 с клапаном регулирующим поворотным 6с-9-1. Схема кинематическая
ТП 903-1-203 98.29.00.000 СБ Сочленение механизма МЭО-250/25-0,25 с клапаном регулирующим поворотным 6с-9-1. Сборочный чертеж
ТП 903-1-203 98.32.00.000 Сочленение механизма МЭО-250/25-0,25 с клапаном регулирующим поворотным 6с-9-3
ТП 903-1-203 98.32.00.000 К2 Сочленение механизма МЭО-250/25-0,25 с клапаном регулирующим поворотным 6с-9-3. Схема кинематическая
ТП 903-1-203 98.32.00.000 СБ Сочленение механизма МЭО-250/25-0,25 с клапаном регулирующим поворотным 6с-9-3. Сборочный чертеж
ТП 903-1-203 98.33.00.000 Сочленение механизма МЭО-100/25-0,25 с клапаном регулирующим 9с-3-3-2
ТП 903-1-203 98.33.00.000 К2 Сочленение механизма МЭО-100/25-0,25 с клапаном регулирующим 9с-3-3-2. Схема кинематическая
ТП 903-1-203 98.33.00.000 СБ Сочленение механизма МЭО-100/25-0,25 с клапаном регулирующим 9с-3-3-2. Сборочный чертеж
ТП 903-1-203 98.35.00.000 Сочленение механизма МЭО-250/25-0,25 с клапаном регулирующим поворотным 6с-9-1
ТП 903-1-203 98.35.00.000 К2 Сочленение механизма МЭО-250/25-0,25 с клапаном регулирующим поворотным 6с-9-1. Схема кинематическая
ТП 903-1-203 98.35.00.000 СБ Сочленение механизма МЭО-250/25-0,25 с клапаном регулирующим поворотным 6с-9-1. Сборочный чертеж
ТП 903-1-203 98.37.00.000 Сочленение механизма МЭО-250/25-0,25 с клапаном 6с-9-2
ТП 903-1-203 98.37.00.000 К2 Сочленение механизма МЭО-250/25-0,25 с клапаном 6с-9-2. Схема кинематическая
ТП 903-1-203 98.37.00.000 СБ Сочленение механизма МЭО-250/25-0,25 с клапаном 6с-9-2. Сборочный чертеж
ТП 903-1-203 98.38.00.000 Сочленение механизма МЭО-250/25-0,25 с клапаном 6с-9-2
ТП 903-1-203 98.38.00.000 К2 Сочленение механизма МЭО-250/25-0,25 с клапаном 6с-9-2. Схема кинематическая
ТП 903-1-203 98.38.00.000 СБ Сочленение механизма МЭО-250/25-0,25 с клапаном 6с-9-2. Сборочный чертеж
ТП 903-1-203 98.40.00.000 Сочленение механизма МЭО-250/25-0,25 с клапаном 6с-9-1
ТП 903-1-203 98.40.00.000 К2 Сочленение механизма МЭО-250/25-0,25 с клапаном 6с-9-1. Схема кинематическая
ТП 903-1-203 98.40.00.000 СБ Сочленение механизма МЭО-250/25-0,25 с клапаном 6с-9-1. Сборочный чертеж
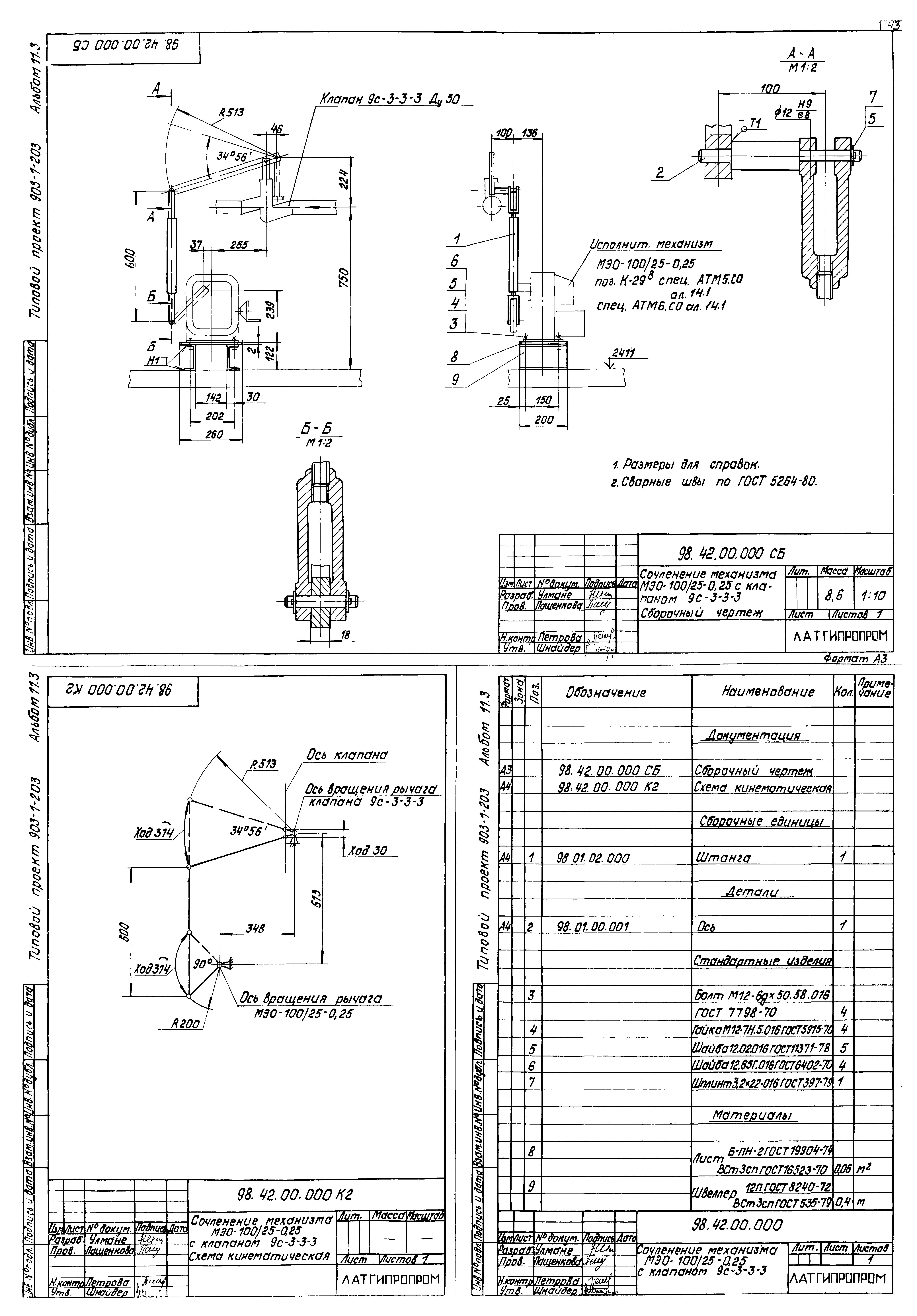
ТП 903-1-203 98.42.00.000 Сочленение механизма МЭО-100/25-0,25 с клапаном 9с-3-3-3
ТП 903-1-203 98.42.00.000 К2 Сочленение механизма МЭО-100/25-0,25 с клапаном 9с-3-3-3. Схема кинематическая
ТП 903-1-203 98.42.00.000 СБ Сочленение механизма МЭО-100/25-0,25 с клапаном 9с-3-3-3. Сборочный чертеж
ТП 903-1-203 98.44.00.000 Сочленение механизма МЭО-250/25-0,25 с клапаном 6с-8-3
ТП 903-1-203 98.44.00.000 К2 Сочленение механизма МЭО-250/25-0,25 с клапаном 6с-8-3. Схема кинематическая
ТП 903-1-203 98.44.00.000 СБ Сочленение механизма МЭО-250/25-0,25 с клапаном 6с-8-3. Сборочный чертеж
ТП 903-1-203 98.47.00.000 Сочленение механизма МЭО-100/25-0,25 с клапаном регулирующим 9с-4-2
ТП 903-1-203 98.47.00.000 К2 Сочленение механизма МЭО-100/25-0,25 с клапаном регулирующим 9с-4-2. Схема кинематическая
ТП 903-1-203 98.47.00.000 СБ Сочленение механизма МЭО-100/25-0,25 с клапаном регулирующим 9с-4-2. Сборочный чертеж
ТП 903-1-203 98.49.00.000 Сочленение механизма МЭО-100/25-0,25 с клапаном регулирующим 9с-3-3-3
ТП 903-1-203 98.49.00.000 К2 Сочленение механизма МЭО-100/25-0,25 с клапаном регулирующим 9с-3-3-3. Схема кинематическая
ТП 903-1-203 98.49.00.000 СБ Сочленение механизма МЭО-100/25-0,25 с клапаном регулирующим 9с-3-3-3. Сборочный чертеж
Разработан: Латгипропром
Утверждён:10.11.1983 Главпромстройпроект Госстроя СССР (41)
Расположен в:Техническая документация Строительство Справочные документы Типовые строительные конструкции, изделия и узлы Общероссийский строительный каталог Промышленные предприятия, здания и сооружения Здания и сооружения санитарно-технические Теплоснабжение Котельные установки Открытые системы теплоснабжения Топливо - газ и мазут
Типовой проект 903-1-203Типовой проект 903-1-203Типовой проект 903-1-203Типовой проект 903-1-203Типовой проект 903-1-203Типовой проект 903-1-203Типовой проект 903-1-203Типовой проект 903-1-203Типовой проект 903-1-203Типовой проект 903-1-203Типовой проект 903-1-203Типовой проект 903-1-203Типовой проект 903-1-203Типовой проект 903-1-203Типовой проект 903-1-203Типовой проект 903-1-203Типовой проект 903-1-203Типовой проект 903-1-203Типовой проект 903-1-203Типовой проект 903-1-203Типовой проект 903-1-203Типовой проект 903-1-203Типовой проект 903-1-203Типовой проект 903-1-203Типовой проект 903-1-203Типовой проект 903-1-203Типовой проект 903-1-203Типовой проект 903-1-203Типовой проект 903-1-203Типовой проект 903-1-203Типовой проект 903-1-203Типовой проект 903-1-203Типовой проект 903-1-203Типовой проект 903-1-203Типовой проект 903-1-203Типовой проект 903-1-203Типовой проект 903-1-203Типовой проект 903-1-203Типовой проект 903-1-203Типовой проект 903-1-203Типовой проект 903-1-203Типовой проект 903-1-203Типовой проект 903-1-203Типовой проект 903-1-203Типовой проект 903-1-203Типовой проект 903-1-203Типовой проект 903-1-203Типовой проект 903-1-203

© 2013 Ёшкин Кот :-) Карта сайта