Информационная система
«Ёшкин Кот»

Скачать базу одним архивом
Скачать обновления
История создания базы
Карта сайта

Скачать Типовой проект 902-2-370.83 Альбом III. Строительные изделия

Дата актуализации: 10.08.2017

Типовой проект 902-2-370.83

Альбом III. Строительные изделия

Обозначение: Типовой проект 902-2-370.83
Обозначение англ: 902-2-370.83
Статус:заменен
Название рус.:Альбом III. Строительные изделия
Дата добавления в базу:01.09.2013
Дата актуализации:05.05.2017
Оглавление:ТП 902-2-370.83 Содержание альбома
ТП 902-2-370.83-КЖИ-К1 Колонна
ТП 902-2-370.83-КЖИ-К2 Колонна
ТП 902-2-370.83-КЖИ-К3 Колонна
ТП 902-2-370.83-КЖИ-К4 Колонна
ТП 902-2-370.83-КЖИ-П1 Плита
ТП 902-2-370.83-КЖИ-П2 Плита
ТП 902-2-370.83-КЖИ-П3 Плита
ТП 902-2-370.83-КЖИ-Б1 Балка
ТП 902-2-370.83-КЖИ-Щ1 Щит металлический (Щ1,Щ2)
ТП 902-2-370.83-КЖИ-РМ1 Решетка металлическая
ТП 902-2-370.83-КЖИ-РМ2 Решетка металлическая
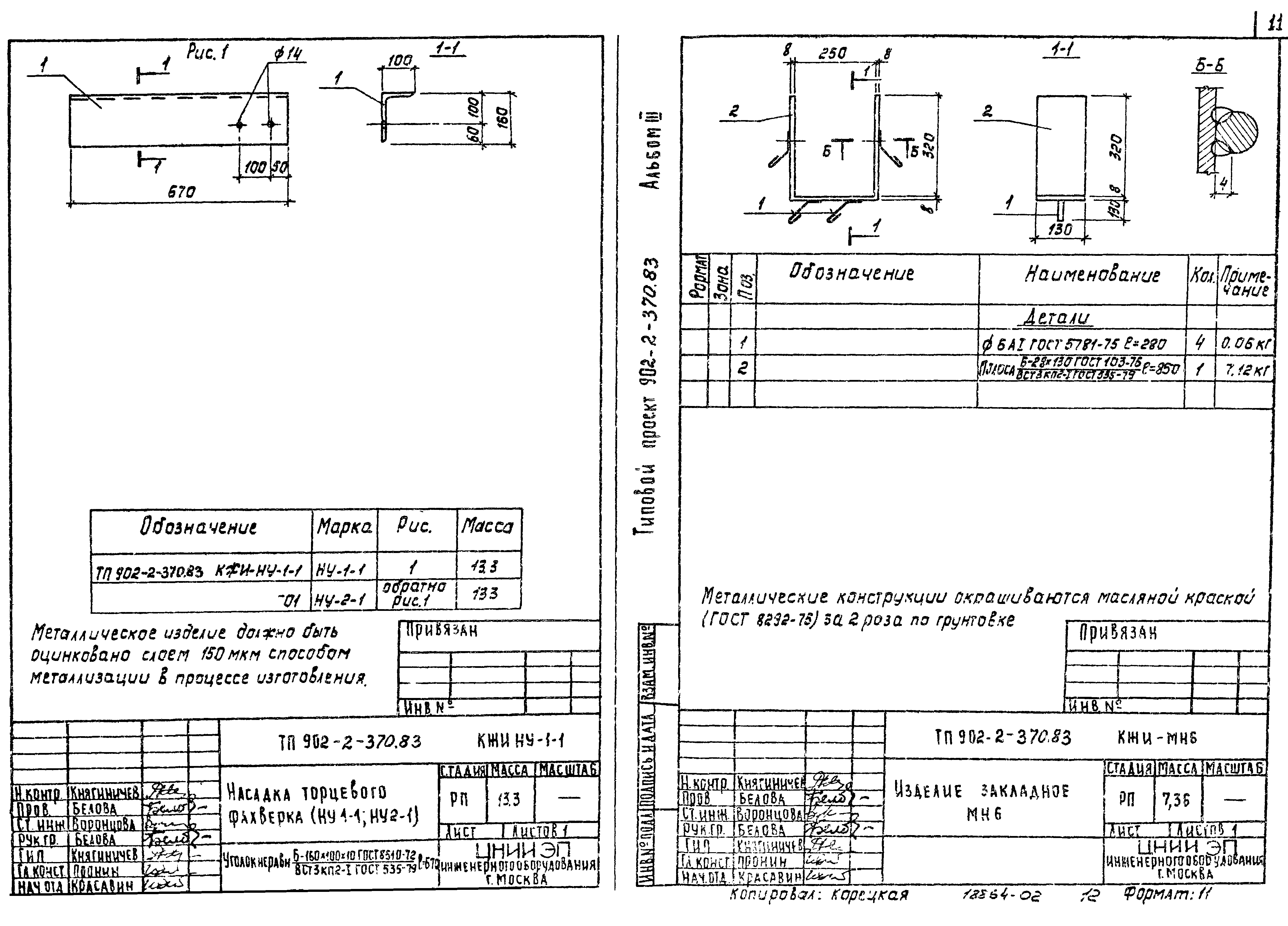
ТП 902-2-370.83-КЖИ-НУ-1-1 Насадка торцевого фахверка (МУ-1-1,МУ-2-1)
ТП 902-2-370.83-КЖИ-МН6 Изделие закладное
ТП 902-2-370.83-КЖИ-А1 Анкер
ТП 902-2-370.83-КЖИ-МС3 Деталь соединительная
Разработан: ЦНИИЭП иженерного оборудования
Утверждён:27.08.1982 Госгражданстрой (Gosgrazhdanstroy 237)
Расположен в:Техническая документация Строительство Справочные документы Типовые строительные конструкции, изделия и узлы Общероссийский строительный каталог Промышленные предприятия, здания и сооружения Здания и сооружения санитарно-технические Канализация Сооружения механической очистки Здания решеток
Чем заменён:
Типовой проект 902-2-370.83Типовой проект 902-2-370.83Типовой проект 902-2-370.83Типовой проект 902-2-370.83Типовой проект 902-2-370.83Типовой проект 902-2-370.83Типовой проект 902-2-370.83Типовой проект 902-2-370.83Типовой проект 902-2-370.83Типовой проект 902-2-370.83Типовой проект 902-2-370.83Типовой проект 902-2-370.83Типовой проект 902-2-370.83Типовой проект 902-2-370.83

© 2013 Ёшкин Кот :-) Карта сайта