Информационная система
«Ёшкин Кот»

Скачать базу одним архивом
Скачать обновления
История создания базы
Карта сайта

Скачать Типовой проект 903-1-200 Альбом 6.2. Водоподготовительная установка. Архитектурно-строительная часть. Общие чертежи

Дата актуализации: 10.08.2017

Типовой проект 903-1-200

Альбом 6.2. Водоподготовительная установка. Архитектурно-строительная часть. Общие чертежи

Обозначение: Типовой проект 903-1-200
Обозначение англ: 903-1-200
Статус:действует
Название рус.:Альбом 6.2. Водоподготовительная установка. Архитектурно-строительная часть. Общие чертежи
Дата добавления в базу:01.09.2013
Дата актуализации:05.05.2017
Оглавление:ТП 903-1-200-АР Архитектурно-строительные решения
ТП 903-1-200-АР-1 Общие данные (начало)
ТП 903-1-200-АР-2 Общие данные (продолжение)
ТП 903-1-200-АР-3 Общие данные (окончание). Узел 1
ТП 903-1-200-АР-4 План на отм. -1.500 и 0.000. План пола на отм. 3.300. План кровли
ТП 903-1-200-АР-5 План на отм. 0.000. Фрагменты 1,2. Узел 2
ТП 903-1-200-АР-6 План на отм. 3.300. Фрагмент 3. Узел 3
ТП 903-1-200-АР-7 Разрез 1-1. Фрагмент 4. Узел 4,5,6
ТП 903-1-200-АР-8 Лестница ЛК-1. План А-А. Разрезы 2-2,3-3. Узлы 7,8,9,10
ТП 903-1-200-АР-9 Фасады 1-4,4-1. Схемы заполнения оконных проемов. Щит 1
ТП 903-1-200-АР-10 Фасады А-Д,Д-А
ТП 903-1-200-КЖ Конструкции железобетонные
ТП 903-1-200-КЖ-1 Общие данные (начало)
ТП 903-1-200-КЖ-2 Общие данные (окончание)
ТП 903-1-200-КЖ-3 Схема расположения фундаментов, фундаментных балок, подпорных стенок
ТП 903-1-200-КЖ-4 Фрагменты 1,2
ТП 903-1-200-КЖ-5 Фрагменты 3,4,5
ТП 903-1-200-КЖ-6 Фрагменты 6,7,8,9
ТП 903-1-200-КЖ-7 ФМ1-ФМ5. Опалубка и армирование
ТП 903-1-200-КЖ-8 ФМ6-ФМ11. Опалубка и армирование
ТП 903-1-200-КЖ-9 ФМ12-ФМ14. ПСМ1-ПСМ5. Опалубка и армирование
ТП 903-1-200-КЖ-10 ФМ1-ФМ9, ФМ11. Спецификация монолитной железобетонной конструкции
ТП 903-1-200-КЖ-11 ФМ10,ФМ12-ФМ14,ПСМ1-ПСМ5. Спецификация монолитной железобетонной конструкции
ТП 903-1-200-КЖ-12 Ведомость расхода стали на элементы фундаментов, подпорных стенок, монолитных участков
ТП 903-1-200-КЖ-13 Склад соли ПРМ1. Опалубка и армирование
ТП 903-1-200-КЖ-14 Склад соли. Узлы "1"-"4"
ТП 903-1-200-КЖ-15 Схема расположения элементов подземного хозяйства
ТП 903-1-200-КЖ-16 Схема расположения элементов подземного хозяйства
ТП 903-1-200-КЖ-17 Элемент плана 1. Разрезы "1-1"-"4-4"
ТП 903-1-200-КЖ-18 Разрезы "1-1"-"5-5". Узлы "5","6", КНМ3
ТП 903-1-200-КЖ-19 КНМ1. Опалубка и армирование
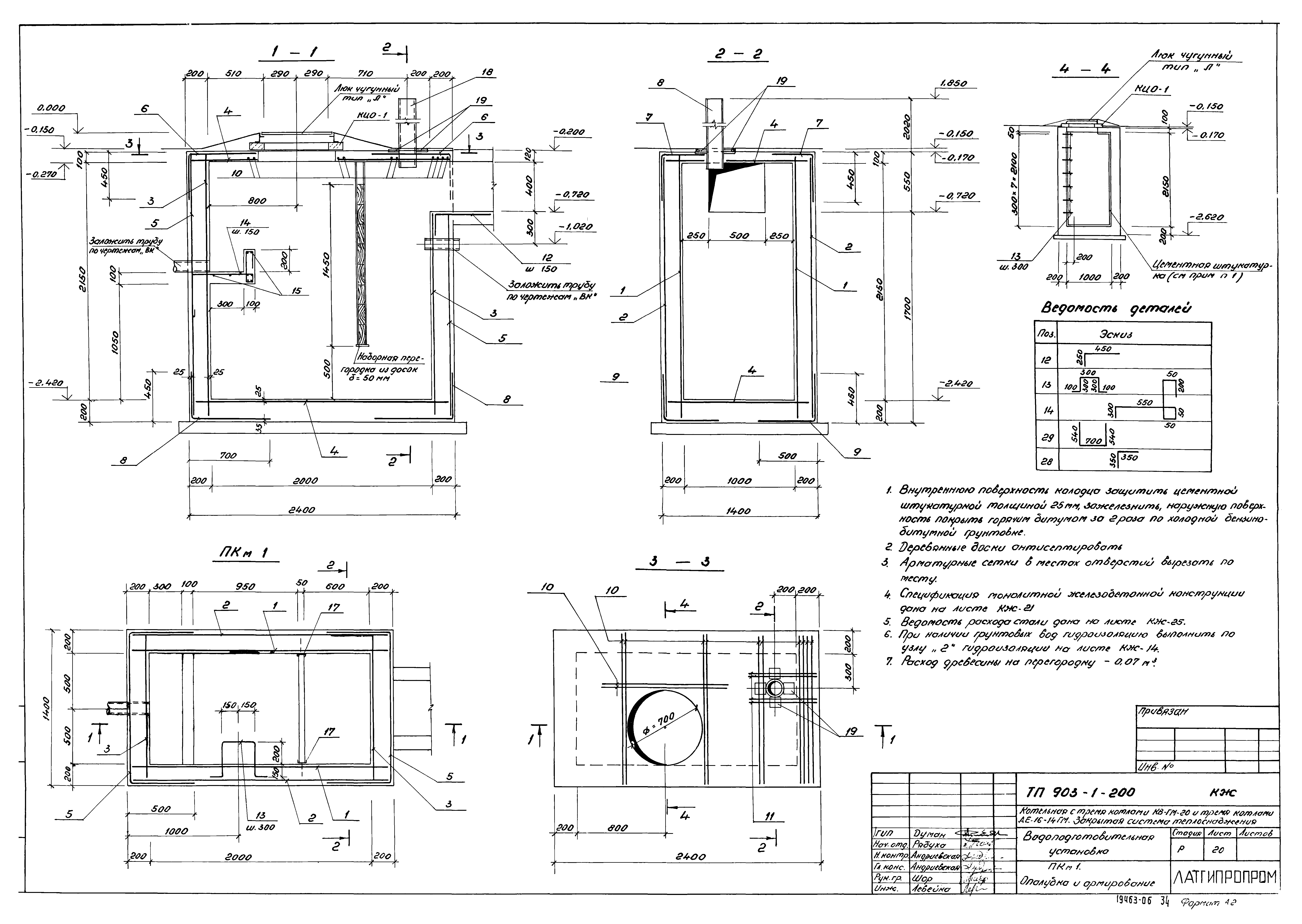
ТП 903-1-200-КЖ-20 ПКМ1. Опалубка и армирование
ТП 903-1-200-КЖ-21 ПРМ2. Опалубка и армирование
ТП 903-1-200-КЖ-22 ПРМ3-ПРМ5,УМ5. Опалубка и армирование
ТП 903-1-200-КЖ-23 УМ1-УМ4,ПРМ6. Опалубка и армирование
ТП 903-1-200-КЖ-24 ФОМ1-ФОМ6. Опалубка и армирование
ТП 903-1-200-КЖ-25 Ведомость расхода стали на элементы подземного хозяйства
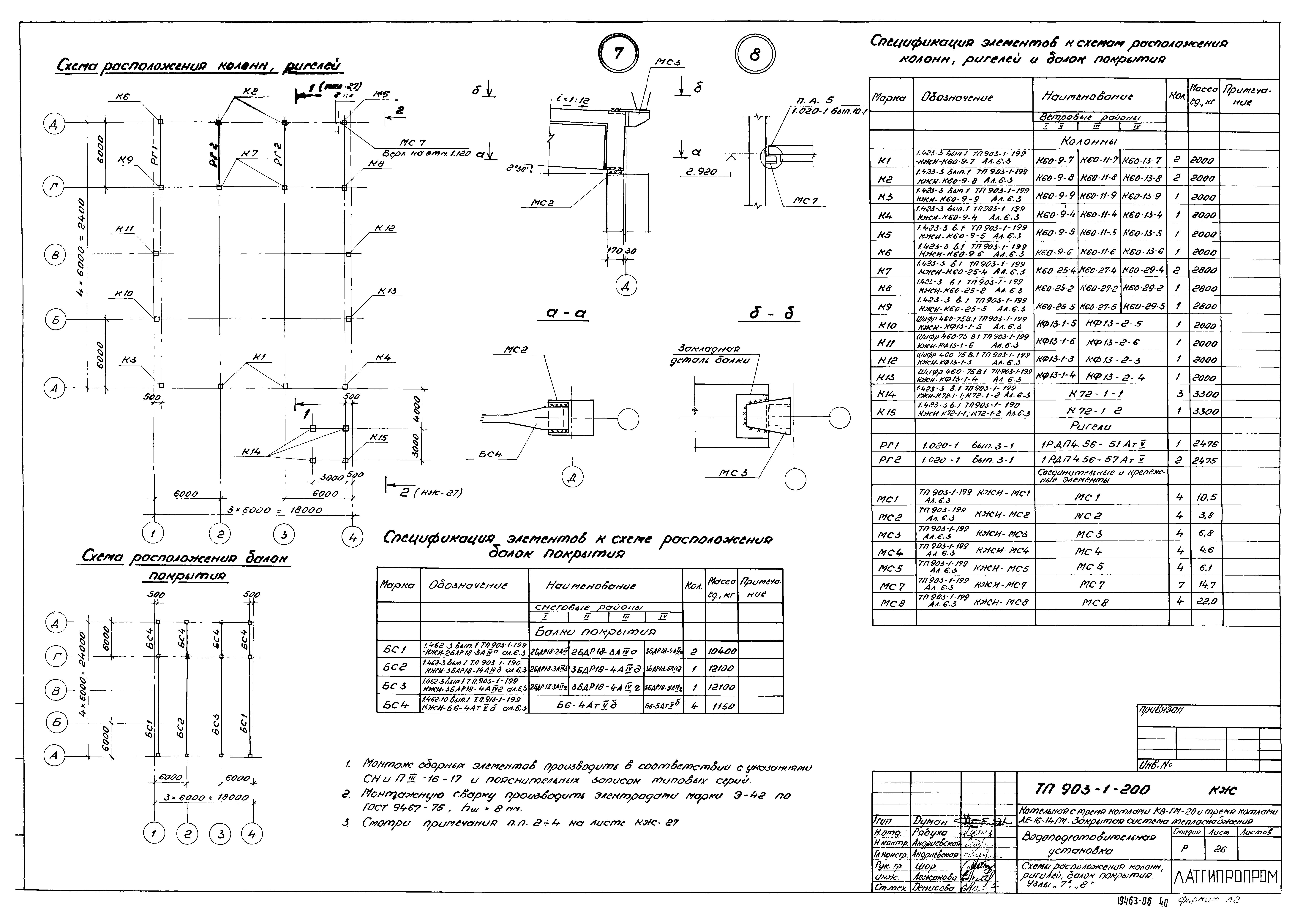
ТП 903-1-200-КЖ-26 Схемы расположения колонн, ригелей, балок покрытия. Узлы "7","8"
ТП 903-1-200-КЖ-27 Разрезы "1-1","2-2". Узлы "9"-"11"
ТП 903-1-200-КЖ-28 Схемы расположения плит перекрытия на отм. 3.000 и 3.300. Узлы "12"-"14"
ТП 903-1-200-КЖ-29 Схема расположения плит покрытия
ТП 903-1-200-КЖ-30 Схемы расположения стеновых панелей по осям "А","Д", стоек, насадок по осям "1" и "4". Фрагменты 1-3
ТП 903-1-200-КЖ-31 Схемы расположения стеновых панелей по осям "1","4". Фрагменты 4-8
ТП 903-1-200-КЖ-32 Фрагменты 9-14. Узел "15"
ТП 903-1-200-КЖ-33 Схемы расположения перегородок по оси "Г" и "З". Вкладыши "В-1","В-2"
ТП 903-1-200-КЖ-34 УМ6-УМ10. Опалубка и армирование
ТП 903-1-200-КЖ-35 Таблица нагрузок на фундаменты
ТП 903-1-200-КМ Конструкции металлические
ТП 903-1-200-КМ-1 Общие данные. Ведомость металлоконструкций по видам профилей
ТП 903-1-200-КМ-2 Техническая спецификация металла
ТП 903-1-200-КМ-3 Техническая спецификация металла для специализированных заводов
ТП 903-1-200-КМ-4 Металлические площадки МП1,МП2,МП3
ТП 903-1-200-КМ-5 Металлические площадки МП4,МП5
ТП 903-1-200-КМ-6 Металлическая площадка МП6
ТП 903-1-200-КМ-7 Схема расположения опор под трубопроводы. Фрагмент 1. Узлы 1,2
Разработан: Латгипропром
Утверждён:10.11.1983 Главпромстройпроект Госстроя СССР (41)
Расположен в:Техническая документация Строительство Справочные документы Типовые строительные конструкции, изделия и узлы Общероссийский строительный каталог Промышленные предприятия, здания и сооружения Здания и сооружения санитарно-технические Теплоснабжение Котельные установки Закрытые системы теплоснабжения Топливо - газ и мазут
Типовой проект 903-1-200Типовой проект 903-1-200Типовой проект 903-1-200Типовой проект 903-1-200Типовой проект 903-1-200Типовой проект 903-1-200Типовой проект 903-1-200Типовой проект 903-1-200Типовой проект 903-1-200Типовой проект 903-1-200Типовой проект 903-1-200Типовой проект 903-1-200Типовой проект 903-1-200Типовой проект 903-1-200Типовой проект 903-1-200Типовой проект 903-1-200Типовой проект 903-1-200Типовой проект 903-1-200Типовой проект 903-1-200Типовой проект 903-1-200Типовой проект 903-1-200Типовой проект 903-1-200Типовой проект 903-1-200Типовой проект 903-1-200Типовой проект 903-1-200Типовой проект 903-1-200Типовой проект 903-1-200Типовой проект 903-1-200Типовой проект 903-1-200Типовой проект 903-1-200Типовой проект 903-1-200Типовой проект 903-1-200Типовой проект 903-1-200Типовой проект 903-1-200Типовой проект 903-1-200Типовой проект 903-1-200Типовой проект 903-1-200Типовой проект 903-1-200Типовой проект 903-1-200Типовой проект 903-1-200Типовой проект 903-1-200Типовой проект 903-1-200Типовой проект 903-1-200Типовой проект 903-1-200Типовой проект 903-1-200Типовой проект 903-1-200Типовой проект 903-1-200Типовой проект 903-1-200Типовой проект 903-1-200Типовой проект 903-1-200Типовой проект 903-1-200Типовой проект 903-1-200Типовой проект 903-1-200Типовой проект 903-1-200Типовой проект 903-1-200Типовой проект 903-1-200Типовой проект 903-1-200

© 2013 Ёшкин Кот :-) Карта сайта