Информационная система
«Ёшкин Кот»

Скачать базу одним архивом
Скачать обновления
История создания базы
Карта сайта

Скачать Типовой проект 194-000-627.87 Альбом I. Архитектурно-строительные решения. Электроосвещение

Дата актуализации: 10.08.2017

Типовой проект 194-000-627.87

Альбом I. Архитектурно-строительные решения. Электроосвещение

Обозначение: Типовой проект 194-000-627.87
Обозначение англ: 194-000-627.87
Статус:не действует
Название рус.:Альбом I. Архитектурно-строительные решения. Электроосвещение
Дата добавления в базу:01.09.2013
Дата актуализации:05.05.2017
Оглавление:ТП 194-000-627.87-АС-1 Общие данные (начало)
ТП 194-000-627.87-АС-2 Общие данные (окончание)
ТП 194-000-627.87-АС-3 Хозяйственный сарай. Фасады 1-2,2-1,А-Б,Б-А
ТП 194-000-627.87-АС-4 Хозяйственный сарай. План стен. Разрез 1-1
ТП 194-000-627.87-АС-5 Хозяйственный сарай. План фундаментов
ТП 194-000-627.87-АС-6 Хозяйственный сарай. Устройство погреба
ТП 194-000-627.87-АС-7 Хозяйственный сарай. Схема расположения стропил
ТП 194-000-627.87-АС-8 Летний душ. Фасады. Разрез
ТП 194-000-627.87-АС-9 Летний душ. Спецификации
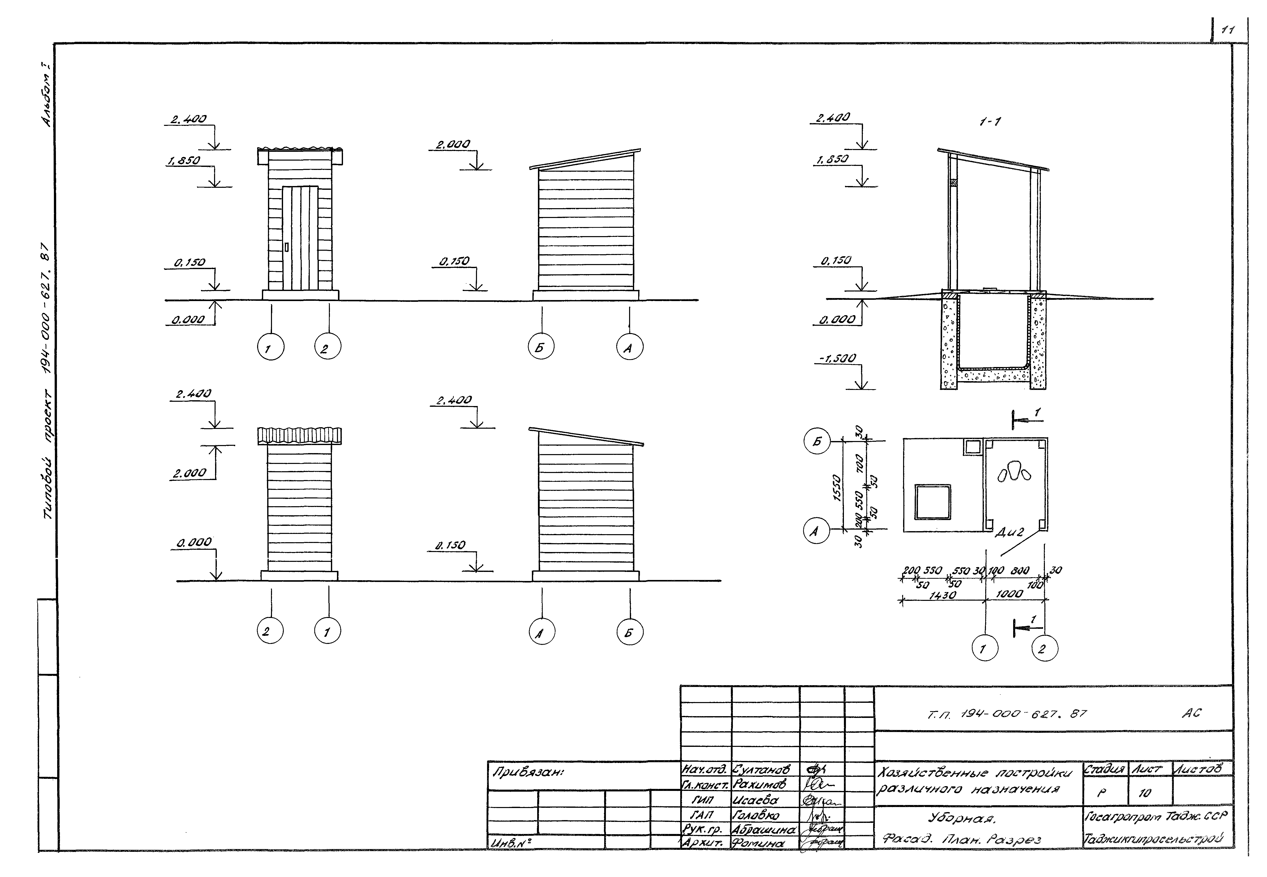
ТП 194-000-627.87-АС-10 Уборная. Фасады. Разрез
ТП 194-000-627.87-АС-11 Уборная. План выгребной ямы. План перекрытия
ТП 194-000-627.87-АС-12 Теплица. Фасады. Разрез
ТП 194-000-627.87-АС-13 Теплица. План фундаментов. Узлы
ТП 194-000-627.87-АС-14 Теплица. Спецификации
ТП 194-000-627.87-АС-15 Суфа. Тип 1. Варианты 1-3
ТП 194-000-627.87-АС-16 Суфа. Тип 1. Спецификации
ТП 194-000-627.87-АС-17 Суфа. Тип 2. Варианты 1-3
ТП 194-000-627.87-АС-18 Суфа. Тип 2. Спецификации
ТП 194-000-627.87-АС-19 Суфа. Тип 3. Варианты 1-3
ТП 194-000-627.87-АС-20 Суфа. Тип 3. Спецификации
ТП 194-000-627.87-АС-21 Пергола. Тип 1
ТП 194-000-627.87-АС-22 Пергола. Тип 2
ТП 194-000-627.87-АС-23 Пергола. Тип 3
ТП 194-000-627.87-АС-24 Пергола. Тип 1-3. Спецификации
ТП 194-000-627.87-АС-25 Декоративно-поливочный бассейн. Фасад. Разрез
ТП 194-000-627.87-АС-26 Декоративно-поливочный бассейн. План фундаментов
ТП 194-000-627.87-АС-27 Компостная яма
ТП 194-000-627.87-АС-28 Индивидуальное окно 0-1,0-2, дверь Ди-2
Разработан: Таджикгипросельстрой
Утверждён:31.12.1987 Госстрой Таджикской ССР (152)
Расположен в:Техническая документация Строительство Справочные документы Типовые строительные конструкции, изделия и узлы Общероссийский строительный каталог Жилые здания для строительства в сельской местности Жилые дома со стенами из местных материалов Серия 000
Типовой проект 194-000-627.87Типовой проект 194-000-627.87Типовой проект 194-000-627.87Типовой проект 194-000-627.87Типовой проект 194-000-627.87Типовой проект 194-000-627.87Типовой проект 194-000-627.87Типовой проект 194-000-627.87Типовой проект 194-000-627.87Типовой проект 194-000-627.87Типовой проект 194-000-627.87Типовой проект 194-000-627.87Типовой проект 194-000-627.87Типовой проект 194-000-627.87Типовой проект 194-000-627.87Типовой проект 194-000-627.87Типовой проект 194-000-627.87Типовой проект 194-000-627.87Типовой проект 194-000-627.87Типовой проект 194-000-627.87Типовой проект 194-000-627.87Типовой проект 194-000-627.87Типовой проект 194-000-627.87Типовой проект 194-000-627.87Типовой проект 194-000-627.87Типовой проект 194-000-627.87Типовой проект 194-000-627.87Типовой проект 194-000-627.87Типовой проект 194-000-627.87

© 2013 Ёшкин Кот :-) Карта сайта