Скачать Типовой проект 902-2-351 Альбом II. Технологическая, санитарно-техническая, электротехническая части; связь и сигнализацияДата актуализации: 10.08.2017 Типовой проект 902-2-351
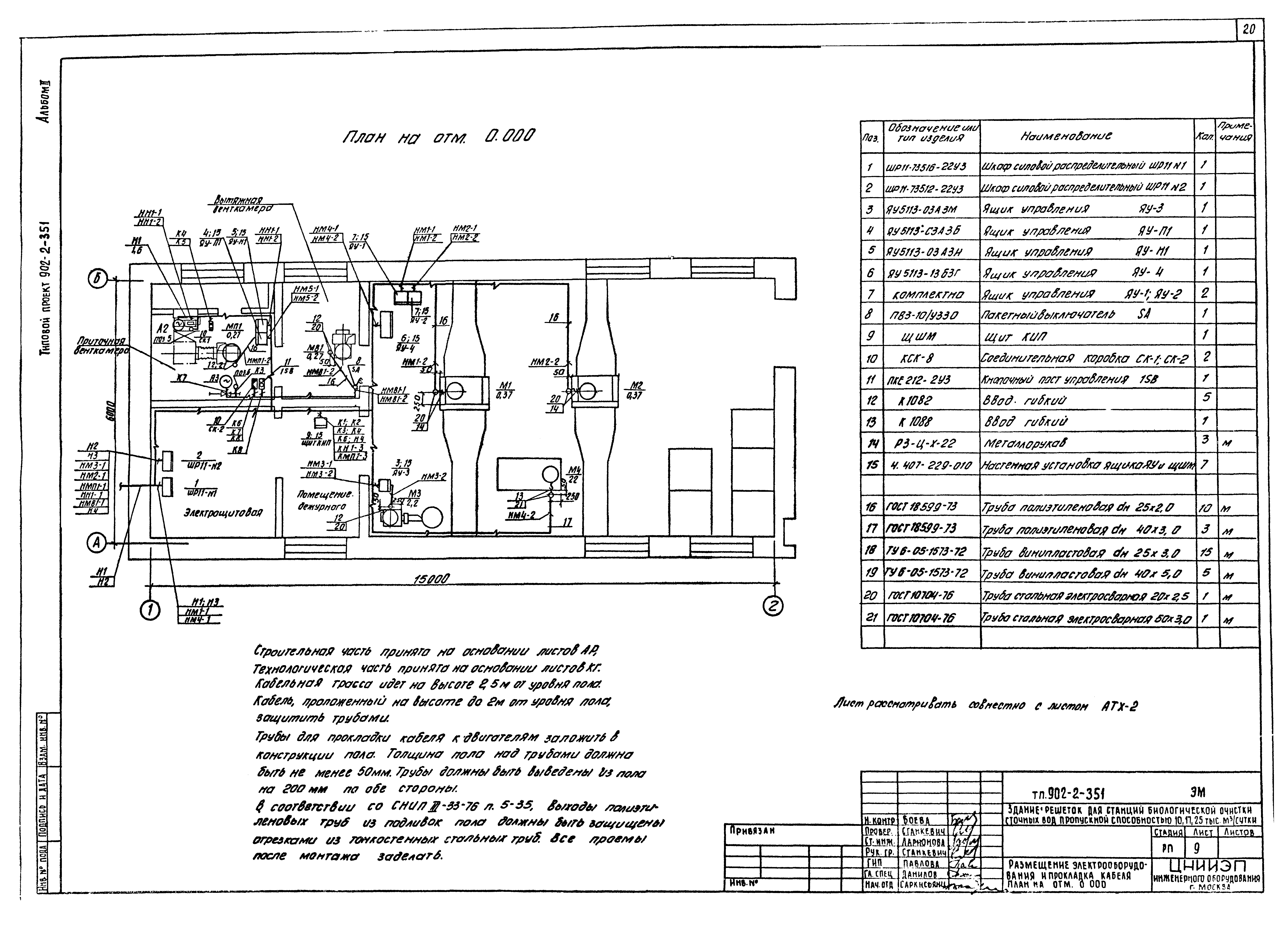
Альбом II. Технологическая, санитарно-техническая, электротехническая части; связь и сигнализацияОбозначение: | Типовой проект 902-2-351 | Обозначение англ: | 902-2-351 | Статус: | не действует | Название рус.: | Альбом II. Технологическая, санитарно-техническая, электротехническая части; связь и сигнализация | Дата добавления в базу: | 01.09.2013 | Дата актуализации: | 05.05.2017 | Дата введения: | 18.02.1982 | Дата окончания срока действия: | 01.09.1988 | Оглавление: | ТП 902-2-351-ТХ Технологическая часть ТП 902-2-351 Содержание ТП 902-2-351-ТХ-1 Общие данные ТП 902-2-351-ТХ-2 План на отм. 0.000. Экспликация помещений ТП 902-2-351-ТХ-3 Разрезы 1-1;2-2 ТП 902-2-351-ТХ-4 Схемы В3,В10,А2 ТП 902-2-351-ТХ-5 Заслонка. Виды. Разрез А-А. Выносной элемент 1 ТП 902-2-351-ТХ-6 Спецификация ТП 902-2-351-ОВ Отопление и вентиляция ТП 902-2-351-ОВ-1 Общие данные (начало) ТП 902-2-351-ОВ-2 Общие данные (окончание) ТП 902-2-351-ОВ-3 План, схема отопления, схемы систем вентиляции В-1,П-1,ВЕ-1 ТП 902-2-351-ОВ-4 Венткамера. План. Разрез 1-1. Схема обвязки калорифера ТП 902-2-351-ЭМ Силовое электрооборудование ТП 902-2-351-ЭМ-1 Общие данные ТП 902-2-351-ЭМ-2 Ведомость электрооборудования и материалов (начало) ТП 902-2-351-ЭМ-3 Ведомость электрооборудования и материалов (продолжение) ТП 902-2-351-ЭМ-4 Ведомость электрооборудования и материалов (окончание) ТП 902-2-351-ЭМ-5 Схема электрическая принципиальная питания электрооборудования ТП 902-2-351-ЭМ-6 Схемы электрические принципиальные управления приточной системой. Лист 1 ТП 902-2-351-ЭМ-7 Схемы электрические принципиальные управления приточной системой. Лист 2 ТП 902-2-351-ЭМ-8 Кабельный журнал. Схемы подключения электрооборудования ТП 902-2-351-ЭМ-9 Размещение электрооборудования и прокладка кабеля. План на отм. 0.000 ТП 902-2-351-ЭМ-10 Электрическое освещение. План на отм. 0.000 ТП 902-2-351-АТХ Автоматизация ТП 902-2-351-АТХ-1 Общие данные. Схема функциональная ТП 902-2-351-АТХ-2 Схема подключения приборов технологического контроля ТП 902-2-351-СС Связь и сигнализация ТП 902-2-351-СС-1 Общие данные. План на отм. 0.000 с сетями связи и сигнализации ТП 902-2-351 Прилагаемые документы ТП 902-2-351 1040.08.000 ВО Бачок циркуляционный. Чертеж общего вида ТП 902-2-351 1040.07.000 ВО Тележка. Чертеж общего вида | Разработан: | ЦНИИЭП иженерного оборудования
| Утверждён: | 17.08.1981 Госгражданстрой (Gosgrazhdanstroy 247)
| Расположен в: |
| Чем заменён: | |
                           
|