Информационная система
«Ёшкин Кот»

Скачать базу одним архивом
Скачать обновления
История создания базы
Карта сайта

Скачать Типовой проект 902-2-363.83 Альбом IV. Электротехническая часть

Дата актуализации: 10.08.2017

Типовой проект 902-2-363.83

Альбом IV. Электротехническая часть

Обозначение: Типовой проект 902-2-363.83
Обозначение англ: 902-2-363.83
Статус:не действует
Название рус.:Альбом IV. Электротехническая часть
Дата добавления в базу:01.09.2013
Дата актуализации:05.05.2017
Оглавление:ТП 902-2-363-83-ЭМ-1 Общие данные (начало)
ТП 902-2-363-83-ЭМ-2 Общие данные (продолжение)
ТП 902-2-363-83-ЭМ-3 Общие данные (окончание)
ТП 902-2-363-83-ЭМ-4 Схема электрическая принципиальная распределительной сети 380/220 В (начало)
ТП 902-2-363-83-ЭМ-5 Схема электрическая принципиальная распределительной сети 380/220 В (окончание)
ТП 902-2-363-83-ЭМ-6 Схема электрическая принципиальная АВР
ТП 902-2-363-83-ЭМ-7 Схема функциональная
ТП 902-2-363-83-ЭМ-8 Откачка осадка из отстойников. Диаграмма работы механизмов и настройки программных реле времени
ТП 902-2-363-83-ЭМ-9 Откачка осадка из отстойников. Схема электрическая принципиальная (начало)
ТП 902-2-363-83-ЭМ-10 Откачка осадка из отстойников. Схема электрическая принципиальная (окончание)
ТП 902-2-363-83-ЭМ-11 Откачка осадка из отстойников. Схема электрическая принципиальная управления илоскребами (М1-М4)
ТП 902-2-363-83-ЭМ-12 Откачка осадка из отстойников. Схема электрическая принципиальная управления задвижками выпуска осадка
ТП 902-2-363-83-ЭМ-13 Откачка осадка из отстойников. Схема электрическая принципиальная управления насосами
ТП 902-2-363-83-ЭМ-14 Перекачка жира из жиросборника. Схема электрическая принципиальная
ТП 902-2-363-83-ЭМ-15 Перекачка жира из жиросборника. Схема электрическая принципиальная управления насосами
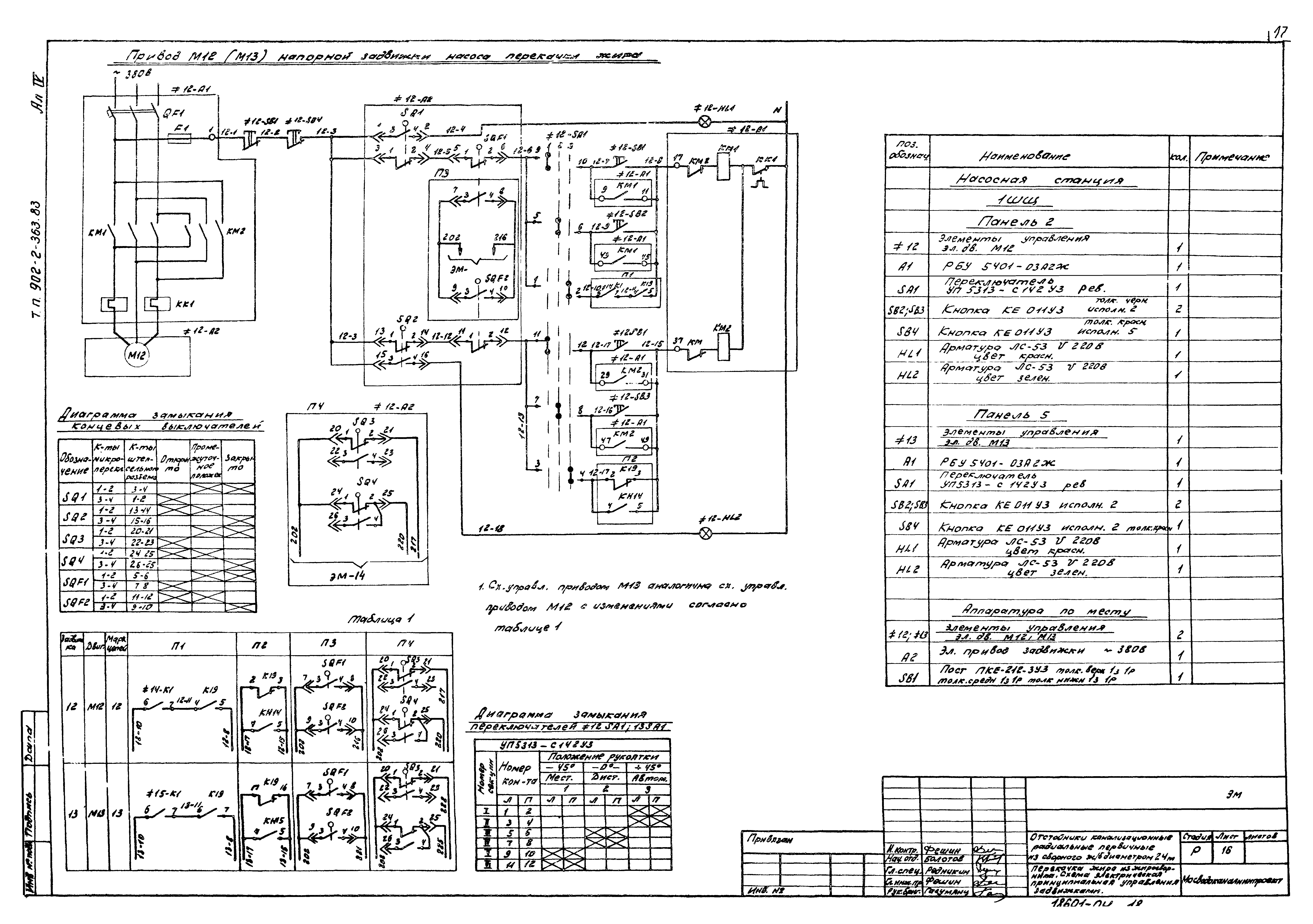
ТП 902-2-363-83-ЭМ-16 Перекачка жира из жиросборника. Схема электрическая принципиальная управления задвижками
ТП 902-2-363-83-ЭМ-17 Перекачка жира из жиросборника. Схема электрическая принципиальная управления дренажным насосом и вытяжным вентилятором
ТП 902-2-363-83-ЭМ-18 Схема электрическая принципиальная аварийной сигнализации (начало)
ТП 902-2-363-83-ЭМ-19 Схема электрическая принципиальная аварийной сигнализации (окончание)
ТП 902-2-363-83-ЭМ-20 Общая электрическая схема присоединений
ТП 902-2-363-83-ЭМ-21 Схема электрических подключений 1ШЩ (начало)
ТП 902-2-363-83-ЭМ-22 Схема электрических подключений 1ШЩ (продолжение)
ТП 902-2-363-83-ЭМ-23 Схема электрических подключений 1ШЩ (продолжение)
ТП 902-2-363-83-ЭМ-24 Схема электрических подключений 1ШЩ (окончание)
ТП 902-2-363-83-ЭМ-25 Схема электрических подключений 2ШЩ
ТП 902-2-363-83-ЭМ-26 Схема электрических подключений щита КИП и ящиков 1Я-4Я
ТП 902-2-363-83-ЭМ-27 Схема электрических подключений аппаратуры, расположенной по месту (начало)
ТП 902-2-363-83-ЭМ-28 Схема электрических подключений аппаратуры, расположенной по месту (окончание)
ТП 902-2-363-83-ЭМ-29 Кабельный журнал (начало)
ТП 902-2-363-83-ЭМ-30 Кабельный журнал (окончание)
ТП 902-2-363-83-ЭМ-31 План установки электрооборудования электроаппаратуры и прокладки кабелей (начало)
ТП 902-2-363-83-ЭМ-32 План установки электрооборудования электроаппаратуры и прокладки кабелей (окончание)
ТП 902-2-363-83-ЭМ-33 План насосной с нанесением сети освещения
ТП 902-2-363-83-ЭМ-34 Ведомость электрического оборудования кабельных изделий и материалов, поставляемых заказчиком. Ведомость объемов электромонтажных работ (начало)
ТП 902-2-363-83-ЭМ-35 Ведомость электрического оборудования кабельных изделий и материалов, поставляемых заказчиком. Ведомость объемов электромонтажных работ (окончание)
ТП 902-2-363-83-АМ-1 Схема питания. Схема электрическая принципиальная измерения расходов и уровней
ТП 902-2-363-83-АМ-2 Приточная система. Функциональная схема
ТП 902-2-363-83-АМ-3 Приточная система. Схема электрическая принципиальная управления и регулирования (начало)
ТП 902-2-363-83-АМ-4 Приточная система. Схема электрическая принципиальная управления и регулирования (окончание)
ТП 902-2-363-83-АМ-5 Схема электрических подключений аппаратуры техконтроля
Разработан: МосводоканалНИИпроект
Утверждён:17.11.1982 МосводоканалНИИпроект (192)
Расположен в:Техническая документация Строительство Справочные документы Типовые строительные конструкции, изделия и узлы Общероссийский строительный каталог Промышленные предприятия, здания и сооружения Здания и сооружения санитарно-технические Канализация Сооружения механической очистки Отстойники Отстойники радиальные первичные
Типовой проект 902-2-363.83Типовой проект 902-2-363.83Типовой проект 902-2-363.83Типовой проект 902-2-363.83Типовой проект 902-2-363.83Типовой проект 902-2-363.83Типовой проект 902-2-363.83Типовой проект 902-2-363.83Типовой проект 902-2-363.83Типовой проект 902-2-363.83Типовой проект 902-2-363.83Типовой проект 902-2-363.83Типовой проект 902-2-363.83Типовой проект 902-2-363.83Типовой проект 902-2-363.83Типовой проект 902-2-363.83Типовой проект 902-2-363.83Типовой проект 902-2-363.83Типовой проект 902-2-363.83Типовой проект 902-2-363.83Типовой проект 902-2-363.83Типовой проект 902-2-363.83Типовой проект 902-2-363.83Типовой проект 902-2-363.83Типовой проект 902-2-363.83Типовой проект 902-2-363.83Типовой проект 902-2-363.83Типовой проект 902-2-363.83Типовой проект 902-2-363.83Типовой проект 902-2-363.83Типовой проект 902-2-363.83Типовой проект 902-2-363.83Типовой проект 902-2-363.83Типовой проект 902-2-363.83Типовой проект 902-2-363.83Типовой проект 902-2-363.83Типовой проект 902-2-363.83Типовой проект 902-2-363.83Типовой проект 902-2-363.83Типовой проект 902-2-363.83Типовой проект 902-2-363.83Типовой проект 902-2-363.83Типовой проект 902-2-363.83

© 2013 Ёшкин Кот :-) Карта сайта