Информационная система
«Ёшкин Кот»

Скачать базу одним архивом
Скачать обновления
История создания базы
Карта сайта

Скачать Типовой проект 902-2-363.83 Альбом II. Архитектурно-строительная часть

Дата актуализации: 10.08.2017

Типовой проект 902-2-363.83

Альбом II. Архитектурно-строительная часть

Обозначение: Типовой проект 902-2-363.83
Обозначение англ: 902-2-363.83
Статус:не действует
Название рус.:Альбом II. Архитектурно-строительная часть
Дата добавления в базу:01.09.2013
Дата актуализации:05.05.2017
Оглавление:ТП 902-2-363-83-1 Общие данные (начало)
ТП 902-2-363-83-2-6 Общие данные (продолжение)
ТП 902-2-363-83-7 Общие данные (окончание)
ТП 902-2-363-83-8 План группы отстойников и коммуникаций
ТП 902-2-363-83-9 Отстойник. План 1-1, сечения 2-2,3-3,4-4
ТП 902-2-363-83-10 Отстойник. Сечения 5-5÷10-10
ТП 902-2-363-83-11 Отстойник. Сечения 11-11÷15-15. Узел 1
ТП 902-2-363-83-12 Отстойник. Днище. Армирование. Планы. Сечения 1-1,2-2
ТП 902-2-363-83-13 Отстойник. Днище. Армирование. Сечения 3-3÷7-7
ТП 902-2-363-83-14 Отстойник. Днище. Армирование. Сечения 8-8÷11-11
ТП 902-2-363-83-15 Отстойник. Схема расположения стеновых панелей. Узлы 1,2. Сечение 1-1
ТП 902-2-363-83-16 Отстойник. Узлы 3,4. Деталь навивки кольцевой арматуры
ТП 902-2-363-83-17 Отстойник. Консоль КМ1. Узел 5. Борт БМ1
ТП 902-2-363-83-18 Отстойник. Схема расположения лотков. Узлы 6,7. Сечения
ТП 902-2-363-83-19 Отстойник. Лоток ЛОМ2. Армирование. План. Сечения
ТП 902-2-363-83-20 Распределительная чаша. Планы 1-1,2-2,5-5. Сечения 3-3,4-4,6-6
ТП 902-2-363-83-21 Распределительная чаша. Армирование. Планы 1-1,4-4. Сечения 2-2,3-3
ТП 902-2-363-83-22 Распределительная чаша. Армирование. Сечения 5-5÷8-8
ТП 902-2-363-83-23 Жиросборник Ж-1. План 2-2. Сечение 1-1. План днища
ТП 902-2-363-83-24 Камеры ОП1,ОП2. Планы, сечения
ТП 902-2-363-83-25 Камера ОП1. Армирование. План 1-1. План перекрытия. Сечения 2-2÷4-4
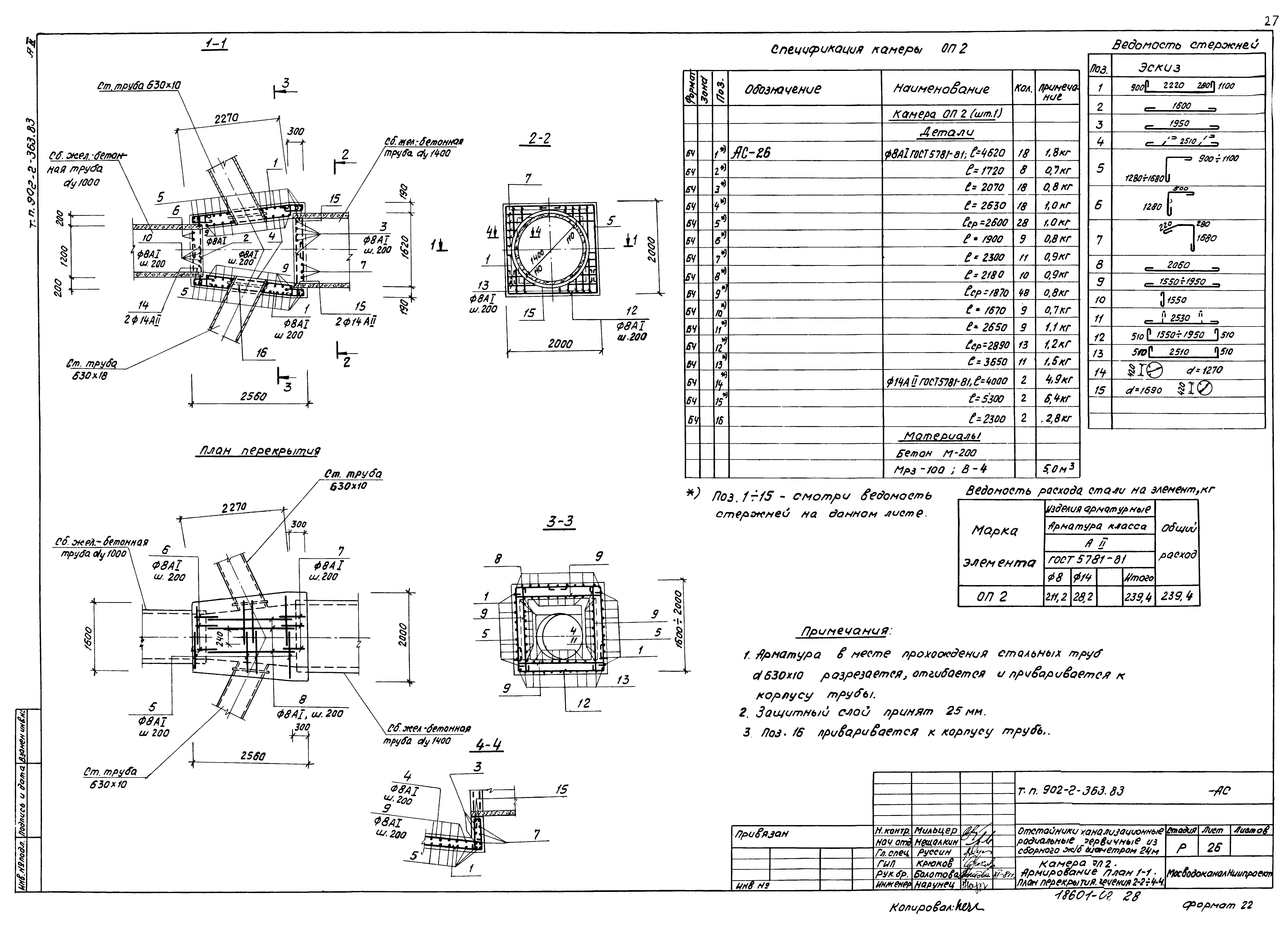
ТП 902-2-363-83-26 Камера ОП2. Армирование. План 1-1. План перекрытия. Сечения 2-2÷4-4
ТП 902-2-363-83-27 Насосная станция сырого осадка. Общие данные
ТП 902-2-363-83-28 Насосная станция сырого осадка. Фасады 1-2,2-1,А-Б. План надземной части. Деталь А
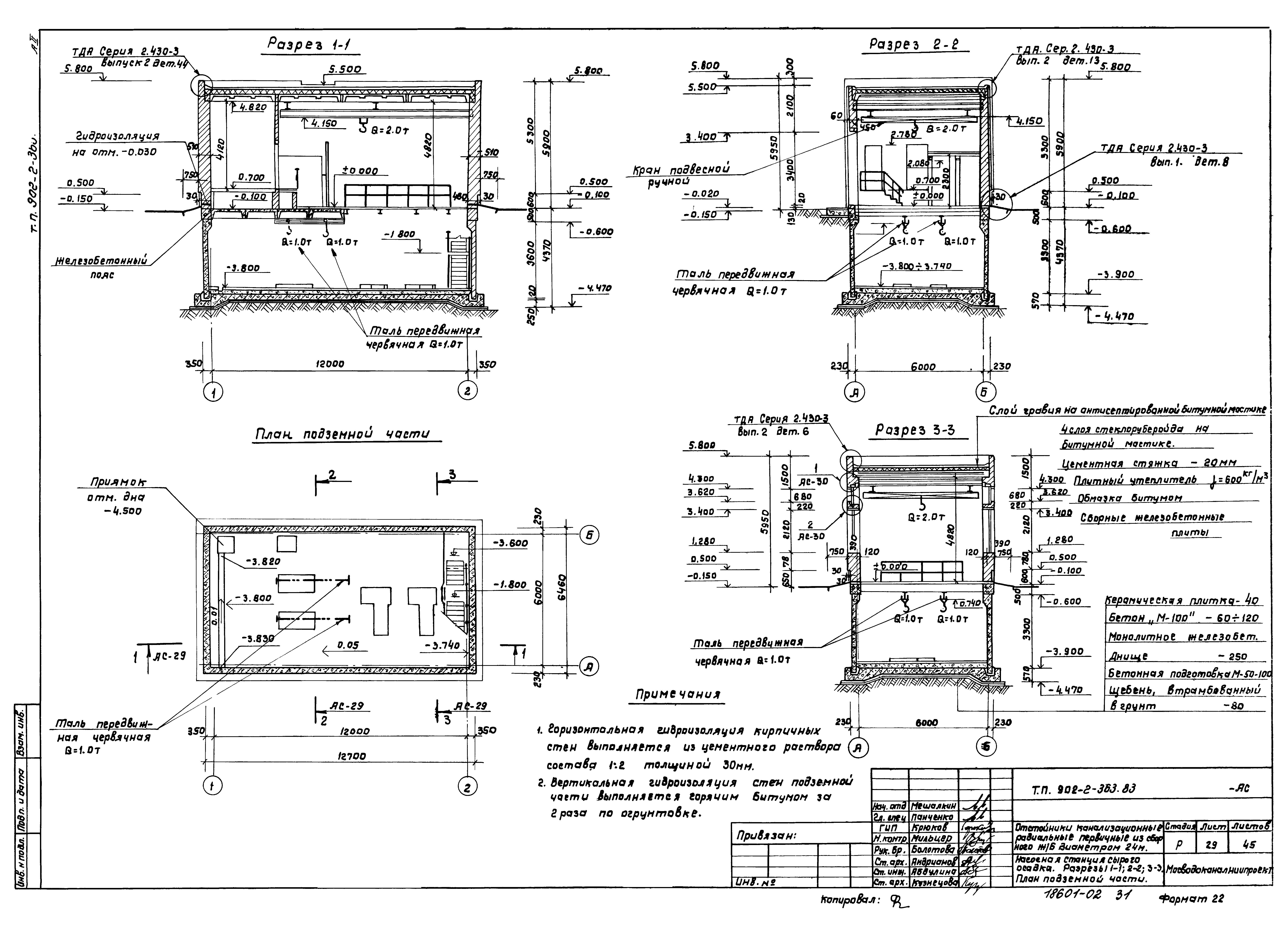
ТП 902-2-363-83-29 Насосная станция сырого осадка. Разрезы 1-1,2-2,3-3. План подземной части
ТП 902-2-363-83-30 Насосная станция сырого осадка. Спецификации, ведомости. Детали 1,2
ТП 902-2-363-83-31 Насосная станция сырого осадка. Схема расположения стеновых панелей. Сечения 1-1÷5-5
ТП 902-2-363-83-32 Насосная станция сырого осадка. Схема расположения стеновых панелей. Узлы 1-7
ТП 902-2-363-83-33 Насосная станция сырого осадка. Днище. Опалубочный чертеж. План и сечения
ТП 902-2-363-83-34 Насосная станция сырого осадка. Днище. Армирование. Планы. Сечение 1-1. Узлы
ТП 902-2-363-83-35 Насосная станция сырого осадка. Днище. Армирование. Сечения 2-2÷4-4. Узел 1
ТП 902-2-363-83-36 Насосная станция сырого осадка. Монолитные участки УМ-1÷УМ-4. Армирование. План. Сечения
ТП 902-2-363-83-37 Насосная станция сырого осадка. Обвязочный пояс ОПМ1. Армирование. План. Сечения 1-1÷5-5
ТП 902-2-363-83-38 Насосная станция сырого осадка. План покрытия и планы перекрытия на отм. 0.000,2.250
ТП 902-2-363-83-39 Насосная станция сырого осадка. План на отм. -3.740. План прокладки труб электрокабеля и расположения ФОМ1-ФОМ3
ТП 902-2-363-83-40 Насосная станция сырого осадка. Помещение щитов. Планы 1-1,2-2. Сечения 3-3÷5-5
ТП 902-2-363-83-41 Насосная станция сырого осадка. Общие данные
ТП 902-2-363-83-42 Насосная станция сырого осадка. Монорельс МР1. План и узлы
ТП 902-2-363-83-43 Насосная станция сырого осадка. Монорельс МР2. План, сечение и узлы
ТП 902-2-363-83-44 Насосная станция сырого осадка. Площадки и лестницы. План, сечения, узлы
ТП 902-2-363-83-45 Насосная станция сырого осадка. Подвеска и крепление технологических трубопроводов. План, сечения, узлы
Разработан: МосводоканалНИИпроект
Утверждён:17.11.1982 МосводоканалНИИпроект (192)
Расположен в:Техническая документация Строительство Справочные документы Типовые строительные конструкции, изделия и узлы Общероссийский строительный каталог Промышленные предприятия, здания и сооружения Здания и сооружения санитарно-технические Канализация Сооружения механической очистки Отстойники Отстойники радиальные первичные
Типовой проект 902-2-363.83Типовой проект 902-2-363.83Типовой проект 902-2-363.83Типовой проект 902-2-363.83Типовой проект 902-2-363.83Типовой проект 902-2-363.83Типовой проект 902-2-363.83Типовой проект 902-2-363.83Типовой проект 902-2-363.83Типовой проект 902-2-363.83Типовой проект 902-2-363.83Типовой проект 902-2-363.83Типовой проект 902-2-363.83Типовой проект 902-2-363.83Типовой проект 902-2-363.83Типовой проект 902-2-363.83Типовой проект 902-2-363.83Типовой проект 902-2-363.83Типовой проект 902-2-363.83Типовой проект 902-2-363.83Типовой проект 902-2-363.83Типовой проект 902-2-363.83Типовой проект 902-2-363.83Типовой проект 902-2-363.83Типовой проект 902-2-363.83Типовой проект 902-2-363.83Типовой проект 902-2-363.83Типовой проект 902-2-363.83Типовой проект 902-2-363.83Типовой проект 902-2-363.83Типовой проект 902-2-363.83Типовой проект 902-2-363.83Типовой проект 902-2-363.83Типовой проект 902-2-363.83Типовой проект 902-2-363.83Типовой проект 902-2-363.83Типовой проект 902-2-363.83Типовой проект 902-2-363.83Типовой проект 902-2-363.83Типовой проект 902-2-363.83Типовой проект 902-2-363.83Типовой проект 902-2-363.83Типовой проект 902-2-363.83Типовой проект 902-2-363.83Типовой проект 902-2-363.83Типовой проект 902-2-363.83Типовой проект 902-2-363.83Типовой проект 902-2-363.83

© 2013 Ёшкин Кот :-) Карта сайта