Информационная система
«Ёшкин Кот»

Скачать базу одним архивом
Скачать обновления
История создания базы
Карта сайта

Скачать Типовой проект 903-1-214.84 Альбом VIII. Контроль и регулирование

Дата актуализации: 10.08.2017

Типовой проект 903-1-214.84

Альбом VIII. Контроль и регулирование

Обозначение: Типовой проект 903-1-214.84
Обозначение англ: 903-1-214.84
Статус:не действует
Название рус.:Альбом VIII. Контроль и регулирование
Дата добавления в базу:01.09.2013
Дата актуализации:05.05.2017
Оглавление:ТП 903-1-214.84 Титульный лист
ТП 903-1-214.84-АТМ-1 Общие данные
ТП 903-1-214.84-АТМ-2 Котел "Факел" № 1(2-4). Схема функциональная автоматизации. Схема внешних проводок
ТП 903-1-214.84-АТМ-3 Котел КПГВ-1А № 1(2). Схема функциональная автоматизации. Схема внешних проводок
ТП 903-1-214.84-АТМ-4 ГРУ котлов "Факел" и КПГВ-1А. Схема функциональная контроля и регулирования
ТП 903-1-214.84-АТМ-5 Вспомогательное оборудование. Схема функциональная контроля и регулирования
ТП 903-1-214.84-АТМ-6 Вспомогательное оборудование. Блок насосов сетевой воды К2. Схема функциональная. Схема внешних проводок
ТП 903-1-214.84-АТМ-7 Вспомогательное оборудование. Блок подготовки исходной воды К4. Схема функциональная. Схема внешних проводок
ТП 903-1-214.84-АТМ-8 Вспомогательное оборудование. Блок циркуляции К12. Схема функциональная. Схема внешних проводок
ТП 903-1-214.84-АТМ-9 Вспомогательное оборудование. Блок насосов горячего водоснабжения К11. Схема функциональная. Схема внешних проводок
ТП 903-1-214.84-АТМ-10 Вспомогательное оборудование. Блок насосов рабочей воды К9. Схема функциональная. Схема внешних проводок
ТП 903-1-214.84-АТМ-11 Вспомогательное оборудование. Схема внешних проводок
ТП 903-1-214.84-АТМ-12 Вспомогательное оборудование. Блок местных приборов № 1
ТП 903-1-214.84-АТМ-13 Вспомогательное оборудование. Блок местных приборов № 2
ТП 903-1-214.84-АТМ-14 Вспомогательное оборудование. Блок местных приборов № 3
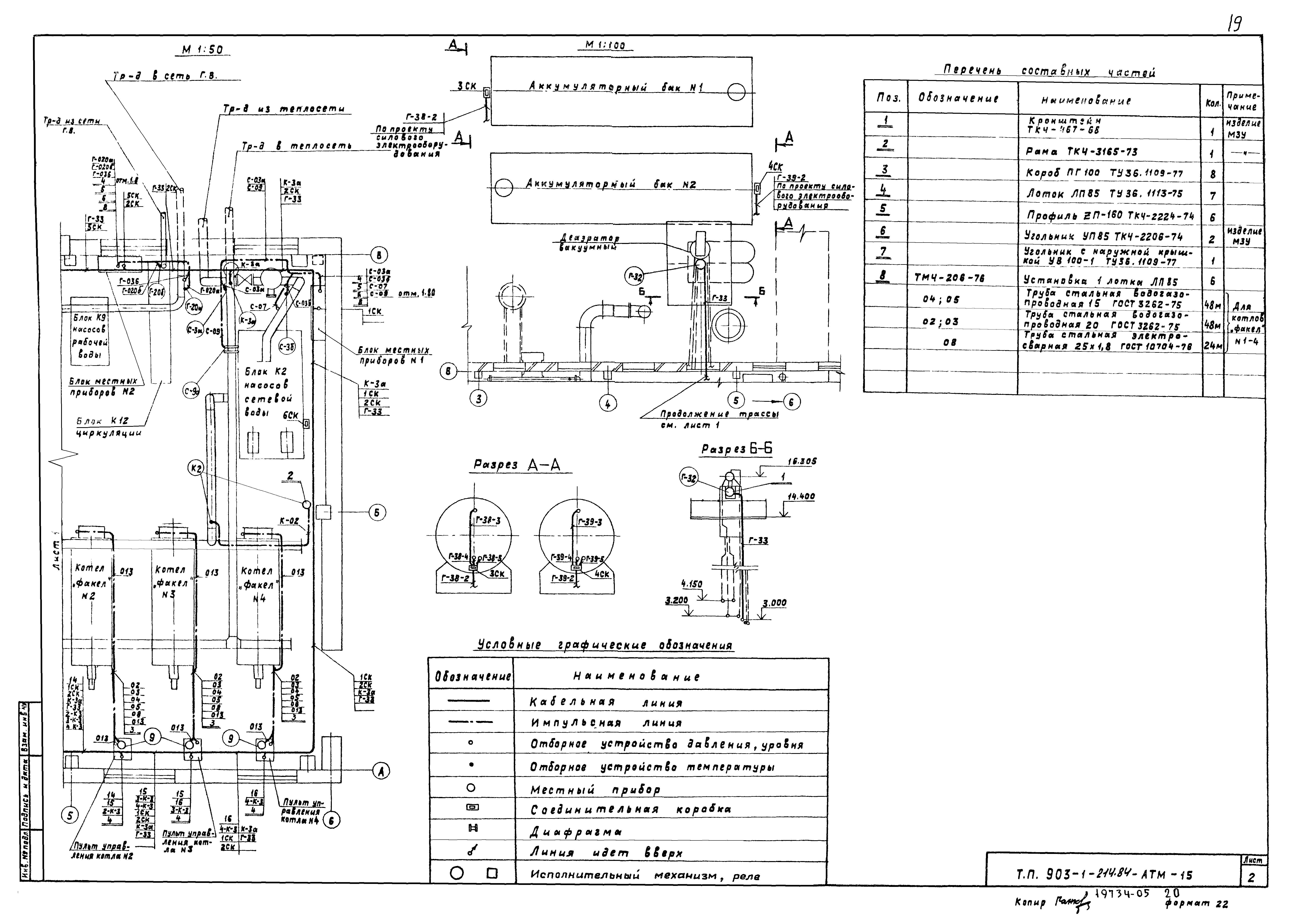
ТП 903-1-214.84-АТМ-15 Вспомогательное оборудование. План расположения
ТП 903-1-214.84-АТМ-16 Вспомогательное оборудование. Схема электрическая принципиальная питания приборов
ТП 903-1-214.84-АТМ-17 Вспомогательное оборудование. Схема электрическая принципиальная технологической сигнализации
ТП 903-1-214.84-АТМ-18 Вспомогательное оборудование. Перечень технической документации для здания заводу-изготовителю щитов
ТП 903-1-214.84-АТМ-19 Вспомогательное оборудование. Щит сигнализации. Общий вид
ТП 903-1-214.84-АТМ-20 Приточная система П1. Схема функциональная. Схема электрическая принципиальная
ТП 903-1-214.84-АТМ-21 Приточная система П1. Схема внешних проводок
Разработан: ГПИ Горьковский Сантехпроект
Утверждён:03.02.1984 Главпромстройпроект Госстроя СССР (4)
Расположен в:Техническая документация Строительство Справочные документы Типовые строительные конструкции, изделия и узлы Общероссийский строительный каталог Промышленные предприятия, здания и сооружения Здания и сооружения санитарно-технические Теплоснабжение Котельные установки Закрытые системы теплоснабжения Топливо - газ
Типовой проект 903-1-214.84Типовой проект 903-1-214.84Типовой проект 903-1-214.84Типовой проект 903-1-214.84Типовой проект 903-1-214.84Типовой проект 903-1-214.84Типовой проект 903-1-214.84Типовой проект 903-1-214.84Типовой проект 903-1-214.84Типовой проект 903-1-214.84Типовой проект 903-1-214.84Типовой проект 903-1-214.84Типовой проект 903-1-214.84Типовой проект 903-1-214.84Типовой проект 903-1-214.84Типовой проект 903-1-214.84Типовой проект 903-1-214.84Типовой проект 903-1-214.84Типовой проект 903-1-214.84Типовой проект 903-1-214.84Типовой проект 903-1-214.84Типовой проект 903-1-214.84Типовой проект 903-1-214.84Типовой проект 903-1-214.84Типовой проект 903-1-214.84Типовой проект 903-1-214.84Типовой проект 903-1-214.84Типовой проект 903-1-214.84Типовой проект 903-1-214.84Типовой проект 903-1-214.84Типовой проект 903-1-214.84Типовой проект 903-1-214.84

© 2013 Ёшкин Кот :-) Карта сайта