Скачать Серия 1.459-2 Выпуск 3. Лестницы, переходные площадки и ограждения из горячекатаных профилей с настилом и ступенями из элементов штампованного и решетчатого типов. Чертежи КМДДата актуализации: 10.08.2017 Серия 1.459-2
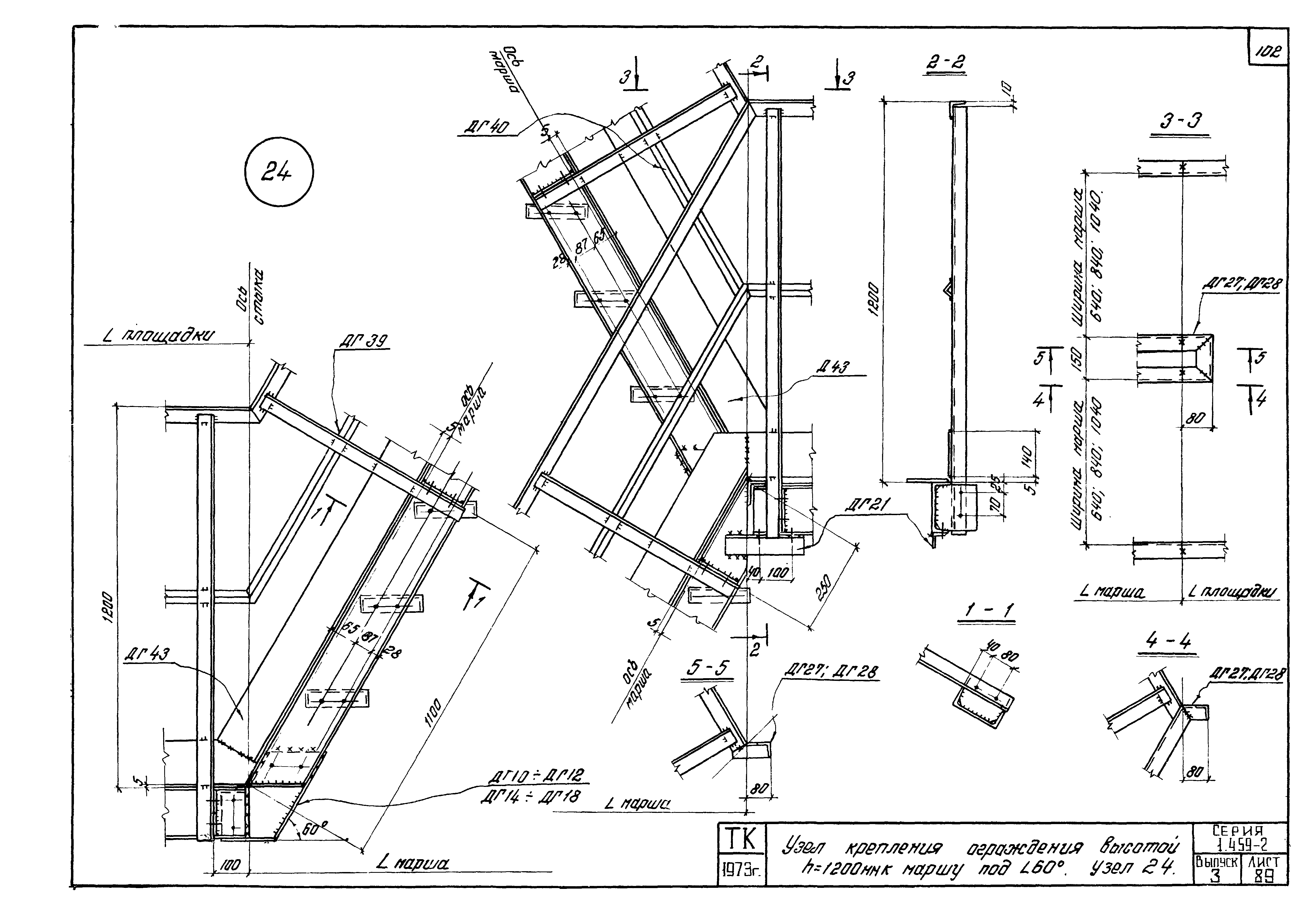
Выпуск 3. Лестницы, переходные площадки и ограждения из горячекатаных профилей с настилом и ступенями из элементов штампованного и решетчатого типов. Чертежи КМДОбозначение: | Серия 1.459-2 | Обозначение англ: | Series 1.459-2 | Статус: | не действует | Название рус.: | Выпуск 3. Лестницы, переходные площадки и ограждения из горячекатаных профилей с настилом и ступенями из элементов штампованного и решетчатого типов. Чертежи КМД | Дата добавления в базу: | 01.09.2013 | Дата актуализации: | 05.05.2017 | Дата введения: | 01.04.1974 | Дата окончания срока действия: | 01.12.1984 | Оглавление: | 1.459-2 Содержание выпуска 1.459-2 Пояснительная записка 1.459-2 Пример оформления заказа составных лестничных маршей под 45° 1.459-2 Пример оформления заказа составных лестничных маршей под 60° 1.459-2 Монтажные схемы лестничных маршей под 45° и ограждения к ним 1.459-2 Монтажные схемы лестничных маршей под 60° и ограждения к ним 1.459-2 Монтажные схемы переходных площадок и ограждения к ним 1.459-2 Монтажные схемы переходных площадок, ограждения к ним и ограждений по торцам переходных площадок 1.459-2 Монтажные схемы стремянок и ограждений к ним 1.459-2 Схема компоновки составных лестничных маршей под 45° с высотой ограждений h=1000 мм 1.459-2 Схема компоновки составных лестничных маршей под 45° с высотой ограждений h=1200 мм 1.459-2 Схема компоновки составных лестничных маршей под 60° с высотой ограждений h=1000 мм 1.459-2 Схема компоновки составных лестничных маршей под 60° с высотой ограждений h=1200 мм 1.459-2 Монтажные схемы крепления обслуживающих и переходных площадок к стенам 1.459-2 Монтажные схемы крепления обслуживающих и переходных площадок к стенкам 1.459-2 Лестничные марши ЛШГ1,ЛРГ1,ЛШГ2,ЛРГ2,ЛШГ3,ЛРГ3 1.459-2 Лестничные марши ЛШГ4,ЛРГ4,ЛШГ5,ЛРГ5,ЛШГ6,ЛРГ6 1.459-2 Лестничные марши ЛШГ7,ЛРГ7,ЛШГ8,ЛРГ8,ЛШГ9,ЛРГ9 1.459-2 Лестничные марши ЛШГ10,ЛРГ10,ЛШГ11,ЛРГ11,ЛШГ12,ЛРГ12 1.459-2 Лестничные марши ЛШГ13,ЛРГ13,ЛШГ14,ЛРГ14,ЛШГ15,ЛРГ15 1.459-2 Лестничные марши ЛШГ16,ЛРГ16,ЛШГ17,ЛРГ17,ЛШГ18,ЛРГ18 1.459-2 Лестничные марши ЛШГ19,ЛРГ19,ЛШГ20,ЛРГ20,ЛШГ21,ЛРГ21 1.459-2 Лестничные марши МШГ1,МРГ1,МШГ2,МРГ2 1.459-2 Лестничные марши МШГ3,МРГ3,МШГ4,МРГ4 1.459-2 Лестничные марши МШГ5,МРГ5,МШГ6,МРГ6 1.459-2 Лестничные марши МШГ7,МРГ7,МШГ8,МРГ8 1.459-2 Лестничные марши МШГ9,МРГ9,МШГ10,МРГ10 1.459-2 Лестничные марши МШГ11,МРГ11,МШГ12,МРГ12 1.459-2 Лестничные марши МШГ13,МРГ13,МШГ14,МРГ14 1.459-2 Лестничные марши МШГ15,МРГ15,МШГ16,МРГ16 1.459-2 Лестничные марши МШГ17,МРГ17,МШГ18,МРГ18 1.459-2 Лестничные марши МШГ19,МРГ19,МШГ20,МРГ20 1.459-2 Переходные площадки ПШГ1,ПШГ2,ПШГ3 1.459-2 Переходные площадки ПШГ4,ПШГ5,ПШГ6 1.459-2 Переходные площадки ПШГ7,ПШГ8,ПШГ9 1.459-2 Переходные площадки ПШГ10,ПШГ11,ПШГ12 1.459-2 Переходные площадки ПШГ13,ПШГ14,ПШГ15 1.459-2 Переходные площадки ПШГ16,ПШГ17,ПШГ18 1.459-2 Переходные площадки ПШГ19,ПШГ20,ПШГ21 1.459-2 Переходные площадки ПШГ22,ПШГ23,ПШГ24 1.459-2 Переходные площадки ПШГ25,ПШГ26,ПШГ27 1.459-2 Переходные площадки ПШГ28,ПШГ29,ПШГ30 1.459-2 Переходные площадки ПШГ31,ПШГ32,ПШГ33 1.459-2 Переходные площадки ПШГ34,ПШГ35,ПШГ36 1.459-2 Переходные площадки ПРГ1,ПРГ2,ПРГ3 1.459-2 Переходные площадки ПРГ4,ПРГ5,ПРГ6 1.459-2 Переходные площадки ПРГ7,ПРГ8,ПРГ9 1.459-2 Переходные площадки ПРГ10,ПРГ11,ПРГ12 1.459-2 Переходные площадки ПРГ13,ПРГ14,ПРГ15 1.459-2 Переходные площадки ПРГ16,ПРГ17,ПРГ18 1.459-2 Переходные площадки ПРГ19,ПРГ20,ПРГ21 1.459-2 Переходные площадки ПРГ22,ПРГ23,ПРГ24 1.459-2 Переходные площадки ПРГ25,ПРГ26,ПРГ27 1.459-2 Переходные площадки ПРГ28,ПРГ29,ПРГ30 1.459-2 Переходные площадки ПШГ31,ПШГ32,ПШГ33 1.459-2 Переходные площадки ПШГ34,ПШГ35,ПШГ36 1.459-2 Стремянки СГ1,СГ2,СГ3,СГ4 1.459-2 Стремянки СГ5,СГ6,СГ7 1.459-2 Стремянки СГ8,СГ9,СГ10 1.459-2 Элементы штампованного типа Ш1,Ш2,Ш3 1.459-2 Детали и спецификация стали элементов штампованного типа Ш1,Ш2,Ш3 1.459-2 Элементы штампованного типа Ш4,Ш5,Ш6 1.459-2 Детали и спецификация стали элементов штампованного типа Ш4,Ш5,Ш6 1.459-2 Элементы решетчатого типа Р1,Р2,Р3 1.459-2 Детали элементов решетчатого типа Р1,Р2,Р3,Р4,Р5,Р6 1.459-2 Детали и спецификация стали элементов решетчатого типа Р1,Р2,Р3 1.459-2 Элементы решетчатого типа Р4,Р5,Р6 1.459-2 Детали и спецификация стали элементов решетчатого типа Р4,Р5,Р6 1.459-2 Элементы решетчатого типа Р7,Р8,Р9 1.459-2 Детали и спецификация стали элементов решетчатого типа Р7,Р8,Р9 1.459-2 Дополнительные элементы ДГ1-ДГ3 1.459-2 Дополнительные элементы ДГ4-ДГ6 1.459-2 Дополнительные элементы ДГ7-ДГ9 1.459-2 Дополнительные элементы ДГ10;ДГ11 1.459-2 Дополнительные элементы ДГ12;ДГ14 1.459-2 Дополнительные элементы ДГ15;ДГ16 1.459-2 Дополнительные элементы ДГ17;ДГ18 1.459-2 Дополнительные элементы ДГ19-ДГ22;ДГ45-ДГ50 1.459-2 Дополнительные элементы ДГ23-ДГ28 1.459-2 Дополнительные элементы ДГ29-ДГ43 1.459-2 Верхний и нижний жесткие узлы сопряжения марша с типовой площадкой лестниц под 45°. Узлы 1,2 1.459-2 Верхний и нижний жесткие узлы сопряжения марша с типовой площадкой лестниц под 60°. Узлы 3,4 1.459-2 Верхний и нижний шарнирные узлы опирания марша на типовую площадку. Узлы 5,6 1.459-2 Верхние узлы опирания марша на двутавр и швеллер. Узлы 7,8,9 1.459-2 Нижние узлы опирания марша на двутавр и швеллер. Узлы 10,11,12,13 1.459-2 Верхний и нижний узлы опирания марша на сборную железобетонную плиту. Узлы 14,15 1.459-2 Верхний и нижний узлы опирания марша на монолитную железобетонную плиту. Узлы 16,17 1.459-2 Нижние узлы опирания марша на бетон. Узлы 18,19,20 1.459-2 Узел крепления ограждений высотой h=1000 мм к маршу 45°. Узел 21 1.459-2 Узел крепления ограждений высотой h=1200 мм к маршу 45°. Узел 22 1.459-2 Узел крепления ограждений высотой h=1000 мм к маршу 60°. Узел 23 1.459-2 Узел крепления ограждений высотой h=1200 мм к маршу 60°. Узел 24 1.459-2 Узлы крепления ограждений к площадкам и перекрытиям. Узлы 25-31 1.459-2 Узлы крепления обслуживающих и переходных площадок к кирпичным стенам. Узлы 32,33 1.459-2 Узлы крепления обслуживающих и переходных площадок к кирпичным стенам. Узлы 34,35 1.459-2 Узлы крепления обслуживающих и переходных площадок к панельным стенам. Узлы 36,37 | Разработан: | ЦНИИпроектстальконструкция Укрпроектстальконструкция
| Утверждён: | 10.01.1974 Госстрой СССР (Государственный комитет Совета Министров СССР по делам строительства) (USSR Gosstroy 2)
| Расположен в: |
| Чем заменён: | |
                                                                                                          
|