Информационная система
«Ёшкин Кот»

Скачать базу одним архивом
Скачать обновления
История создания базы
Карта сайта

Скачать Типовой проект 705-1-200.86 Альбом I. Пояснительная записка. Технология производства. Архитектурно-строительные решения. Конструкции железобетонные. Силовое электрооборудование. Связь и сигнализация

Дата актуализации: 10.08.2017

Типовой проект 705-1-200.86

Альбом I. Пояснительная записка. Технология производства. Архитектурно-строительные решения. Конструкции железобетонные. Силовое электрооборудование. Связь и сигнализация

Обозначение: Типовой проект 705-1-200.86
Обозначение англ: 705-1-200.86
Статус:не определен законодательством
Название рус.:Альбом I. Пояснительная записка. Технология производства. Архитектурно-строительные решения. Конструкции железобетонные. Силовое электрооборудование. Связь и сигнализация
Дата добавления в базу:01.09.2013
Дата актуализации:05.05.2017
Дата введения:16.04.1986
Оглавление:ТП 705-1-200.86 Содержание альбома
ТП 705-1-200.86-ПЗ-1 Пояснительная записка
ТП 705-1-200.86-ПЗ-2 Пояснительная записка
ТП 705-1-200.86-ПЗ-3 Пояснительная записка
ТП 705-1-200.86-ПЗ-4 Пояснительная записка
ТП 705-1-200.86-ТХ-1 Общие данные. План на отм. 1.200. Разрез 1-1
ТП 705-1-200.86-АР-1 Общие данные
ТП 705-1-200.86-АР-2 План на отм. 1.200
ТП 705-1-200.86-АР-3 Разрезы 1-1,2-2
ТП 705-1-200.86-АР-4 Фасады 1-13,13-1,В-А
ТП 705-1-200.86-АР-5 План полов. План кровли
ТП 705-1-200.86-КЖ-1 Общие данные
ТП 705-1-200.86-КЖ-2 Схема расположения фундаментов
ТП 705-1-200.86-КЖ-3 Узлы 1-7. Спецификация к схеме расположения фундаментов
ТП 705-1-200.86-КЖ-4 Схема расположения фундаментов и лицевых плит рампы
ТП 705-1-200.86-КЖ-5 Виды А-Г. Узел 9
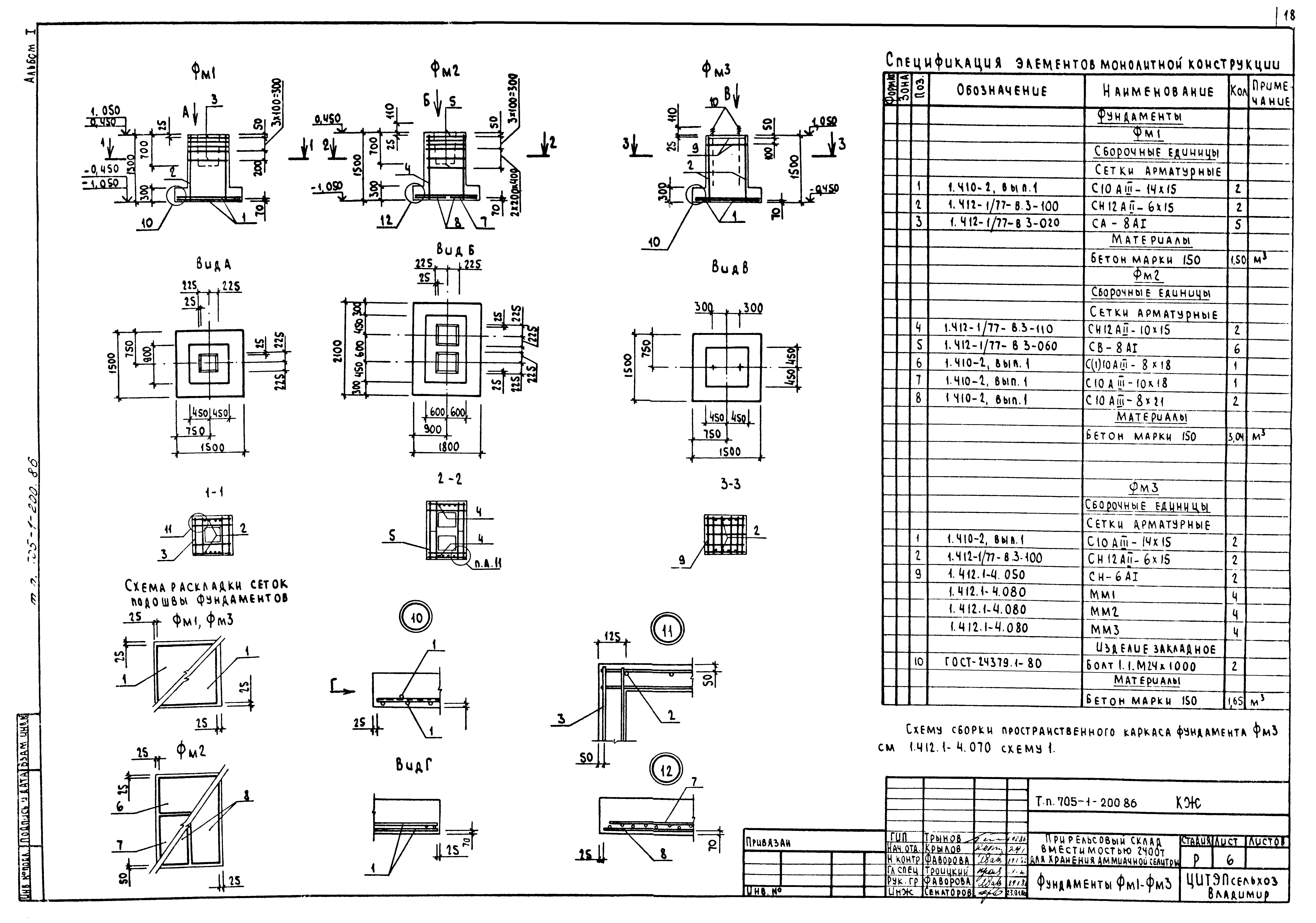
ТП 705-1-200.86-КЖ-6 Фундаменты ФМ1-ФМ3
ТП 705-1-200.86-КЖ-7 Фундаменты ФМ4-ФМ6
ТП 705-1-200.86-КЖ-8 Схема расположения колонн и балок
ТП 705-1-200.86-КЖ-9 Сечения 1-1÷4-4
ТП 705-1-200.86-КЖ-10 Схема расположения плит покрытия. Сечения 5-5÷7-7. Узлы 13-14
ТП 705-1-200.86-КЖ-11 Схема расположения панелей стен по осям А,В,1 и 13
ТП 705-1-200.86-ЭМ-1 Общие данные
ТП 705-1-200.86-ЭМ-2 Электрическое освещение. План на отм. 0.000
ТП 705-1-200.86-ЭМ-3 Молниезащита
ТП 705-1-200.86-ЭМ.ВИ Ведомость изделий мастерских электромонтажных заготовок МЭЗ
ТП 705-1-200.86-ЭМ.ВИМ Ведомость изделий и материалов для изготовления изделий МЭЗ
ТП 705-1-200.86-ЭМ.ВР Ведомость объемов строительных и монтажных работ по чертежам
ТП 705-1-200.86-СС-1 Общие данные. План на отм. 1.200
Разработан: ЦИТЭПсельхозпрома
Утверждён:12.12.1985 Минсельхоз СССР (USSR Minselkhoz 110-ЭГ)
Расположен в:Техническая документация Строительство Справочные документы Типовые строительные конструкции, изделия и узлы Общероссийский строительный каталог Сельскохозяйственные предприятия, здания и сооружения Предприятия, здания и сооружения по ремонту, техническому обслуживанию, хранению и обеспечению горюче-смазочными материалами сельхозтехники Прирельсовые склады твердых минеральных удобрений
Типовой проект 705-1-200.86Типовой проект 705-1-200.86Типовой проект 705-1-200.86Типовой проект 705-1-200.86Типовой проект 705-1-200.86Типовой проект 705-1-200.86Типовой проект 705-1-200.86Типовой проект 705-1-200.86Типовой проект 705-1-200.86Типовой проект 705-1-200.86Типовой проект 705-1-200.86Типовой проект 705-1-200.86Типовой проект 705-1-200.86Типовой проект 705-1-200.86Типовой проект 705-1-200.86Типовой проект 705-1-200.86Типовой проект 705-1-200.86Типовой проект 705-1-200.86Типовой проект 705-1-200.86Типовой проект 705-1-200.86Типовой проект 705-1-200.86Типовой проект 705-1-200.86Типовой проект 705-1-200.86Типовой проект 705-1-200.86Типовой проект 705-1-200.86Типовой проект 705-1-200.86Типовой проект 705-1-200.86Типовой проект 705-1-200.86Типовой проект 705-1-200.86Типовой проект 705-1-200.86

© 2013 Ёшкин Кот :-) Карта сайта