Информационная система
«Ёшкин Кот»

Скачать базу одним архивом
Скачать обновления
История создания базы
Карта сайта

Скачать Серия ИИС20-9 Альбом 1. Общестроительные чертежи

Дата актуализации: 10.08.2017

Серия ИИС20-9

Альбом 1. Общестроительные чертежи

Обозначение: Серия ИИС20-9
Обозначение англ: Series ИИС20-9
Статус:не действует
Название рус.:Альбом 1. Общестроительные чертежи
Дата добавления в базу:01.09.2013
Дата актуализации:05.05.2017
Дата введения:01.06.1990
Оглавление:ИИС20-9 Пояснительная записка
ИИС20-9 Рабочие чертежи
ИИС20-9 Примеры размещения лестничных клеток в здании
ИИС20-9 Схемы разрезов лестниц. Выбор материала для стен лестничных клеток в зависимости от высоты здания и сейсмичности
ИИС20-9 Лестница со стенами из монолитного железобетона, расположенная у наружных стен и в средней ячейке. Планы
ИИС20-9 Лестница со стенами из монолитного железобетона с выходом и без выхода на кровлю. Разрезы для зданий с высотой этажей 4,8 и 6,0;4,8 м
ИИС20-9 Лестница со стенами из монолитного железобетона без выхода на кровлю. Разрезы для зданий с высотой этажей 6,0 И 7,2;6,0 м
ИИС20-9 Лестница с кирпичными стенами с выходом и без выхода на кровлю. Планы и разрезы. Высота этажей 3,6 и 4,8 м
ИИС20-9 Фрагменты фасадов (лестничные клетки с монолитными железобетонными стенами)
ИИС20-9 Фрагменты фасадов (лестничные клетки с монолитными железобетонными и кирпичными стенами)
ИИС20-9 Маркировка перил в лестничных клетках с монолитными железобетонными и кирпичными стенами
ИИС20-9 Лестница для 3-х этажного здания с выходом на кровлю (высота этажа 3,6 м). Сейсмичность 7,8,9 баллов. Опалубочно-арматурный чертеж монолитных железобетонных стен
ИИС20-9 Лестница для 3-х этажного здания без выхода на кровлю (высота этажа 3,6 м). Сейсмичность 7,8,9 баллов. Опалубочно-арматурный чертеж монолитных железобетонных стен
ИИС20-9 Лестница для 4-х этажного здания с выходом на кровлю (высота этажа 3,6 м). Сейсмичность 7,8,9 баллов. Опалубочно-арматурный чертеж монолитных железобетонных стен
ИИС20-9 Лестница для 4-х этажного здания без выхода на кровлю (высота этажа 3,6 м). Сейсмичность 7,8,9 баллов. Опалубочно-арматурный чертеж монолитных железобетонных стен
ИИС20-9 Лестница для 5-ти этажного здания с выходом на кровлю (высота этажа 3,6 м). Сейсмичность 7,8 баллов. Опалубочно-арматурный чертеж монолитных железобетонных стен
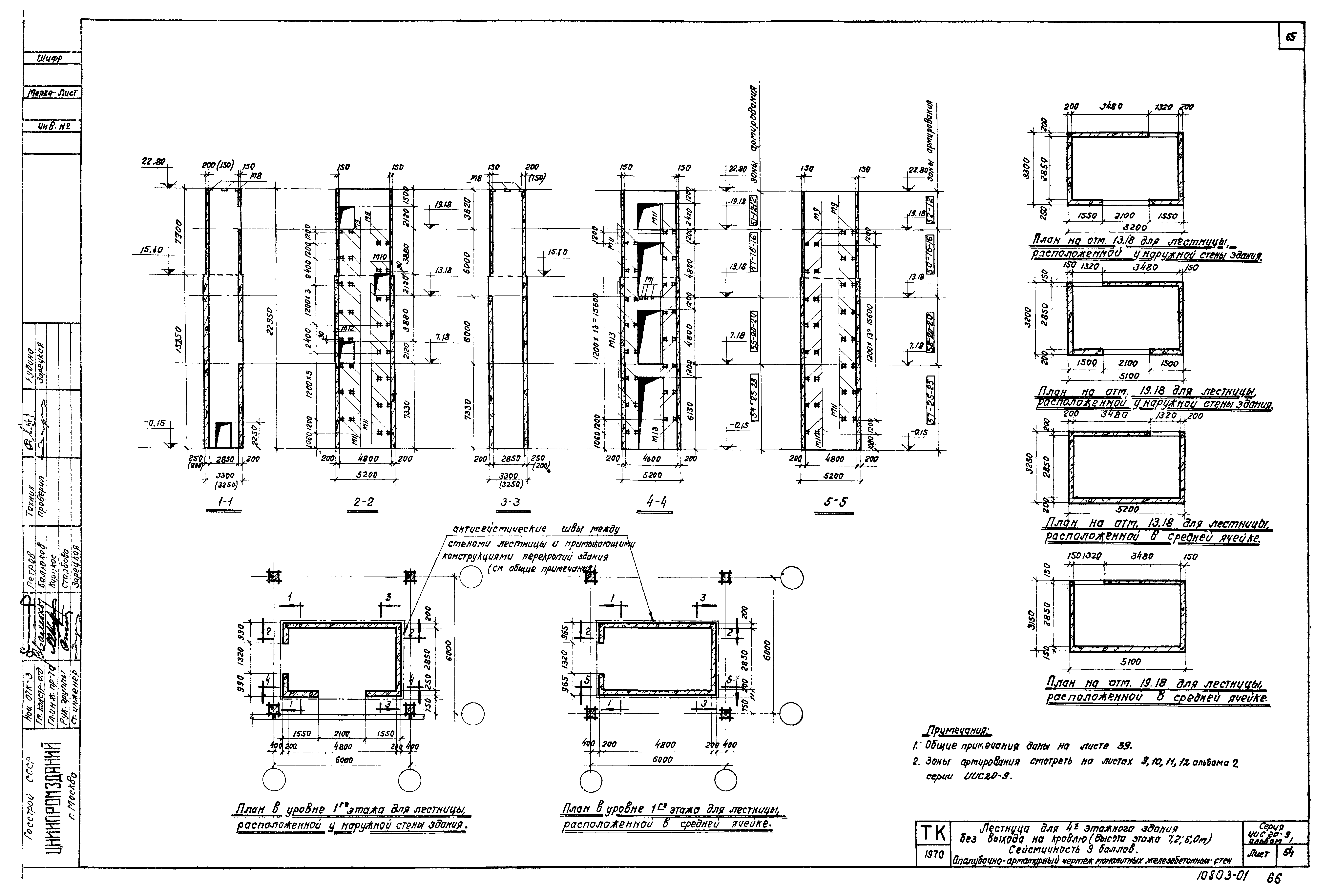
ИИС20-9 Лестница для 5-ти этажного здания с выходом на кровлю (высота этажа 3,6 м). Сейсмичность 9 баллов. Опалубочно-арматурный чертеж монолитных железобетонных стен
ИИС20-9 Лестница для 5-ти этажного здания без выхода на кровлю (высота этажа 3,6 м). Сейсмичность 7,8,9 баллов. Опалубочно-арматурный чертеж монолитных железобетонных стен
ИИС20-9 Лестница для 3-х этажного здания с выходом на кровлю (высота этажа 4,8 м). Сейсмичность 7,8,9 баллов. Опалубочно-арматурный чертеж монолитных железобетонных стен
ИИС20-9 Лестница для 3-х этажного здания без выхода на кровлю (высота этажа 4,8 м). Сейсмичность 7,8,9 баллов. Опалубочно-арматурный чертеж монолитных железобетонных стен
ИИС20-9 Лестница для 3-х этажного здания с выходом на кровлю (высота этажа 6,0;4,8 м). Сейсмичность 7,8,9 баллов. Опалубочно-арматурный чертеж монолитных железобетонных стен
ИИС20-9 Лестница для 3-х этажного здания без выхода на кровлю (высота этажа 6,0;4,8 м). Сейсмичность 7,8,9 баллов. Опалубочно-арматурный чертеж монолитных железобетонных стен
ИИС20-9 Лестница для 4-х этажного здания с выходом на кровлю (высота этажа 4,8 м). Сейсмичность 7,8 баллов. Опалубочно-арматурный чертеж монолитных железобетонных стен
ИИС20-9 Лестница для 4-х этажного здания с выходом на кровлю (высота этажа 4,8 м). Сейсмичность 9 баллов. Опалубочно-арматурный чертеж монолитных железобетонных стен
ИИС20-9 Лестница для 4-х этажного здания без выхода на кровлю (высота этажа 4,8 м). Сейсмичность 7,8,9 баллов. Опалубочно-арматурный чертеж монолитных железобетонных стен
ИИС20-9 Лестница для 4-х этажного здания с выходом на кровлю (высота этажа 6,0;4,8 м). Сейсмичность 7,8 баллов. Опалубочно-арматурный чертеж монолитных железобетонных стен
ИИС20-9 Лестница для 4-х этажного здания с выходом на кровлю (высота этажа 6,0;4,8 м). Сейсмичность 9 баллов. Опалубочно-арматурный чертеж монолитных железобетонных стен
ИИС20-9 Лестница для 4-х этажного здания без выхода на кровлю (высота этажа 6,0;4,8 м). Сейсмичность 7,8 баллов. Опалубочно-арматурный чертеж монолитных железобетонных стен
ИИС20-9 Лестница для 4-х этажного здания без выхода на кровлю (высота этажа 6,0;4,8 м). Сейсмичность 9 баллов. Опалубочно-арматурный чертеж монолитных железобетонных стен
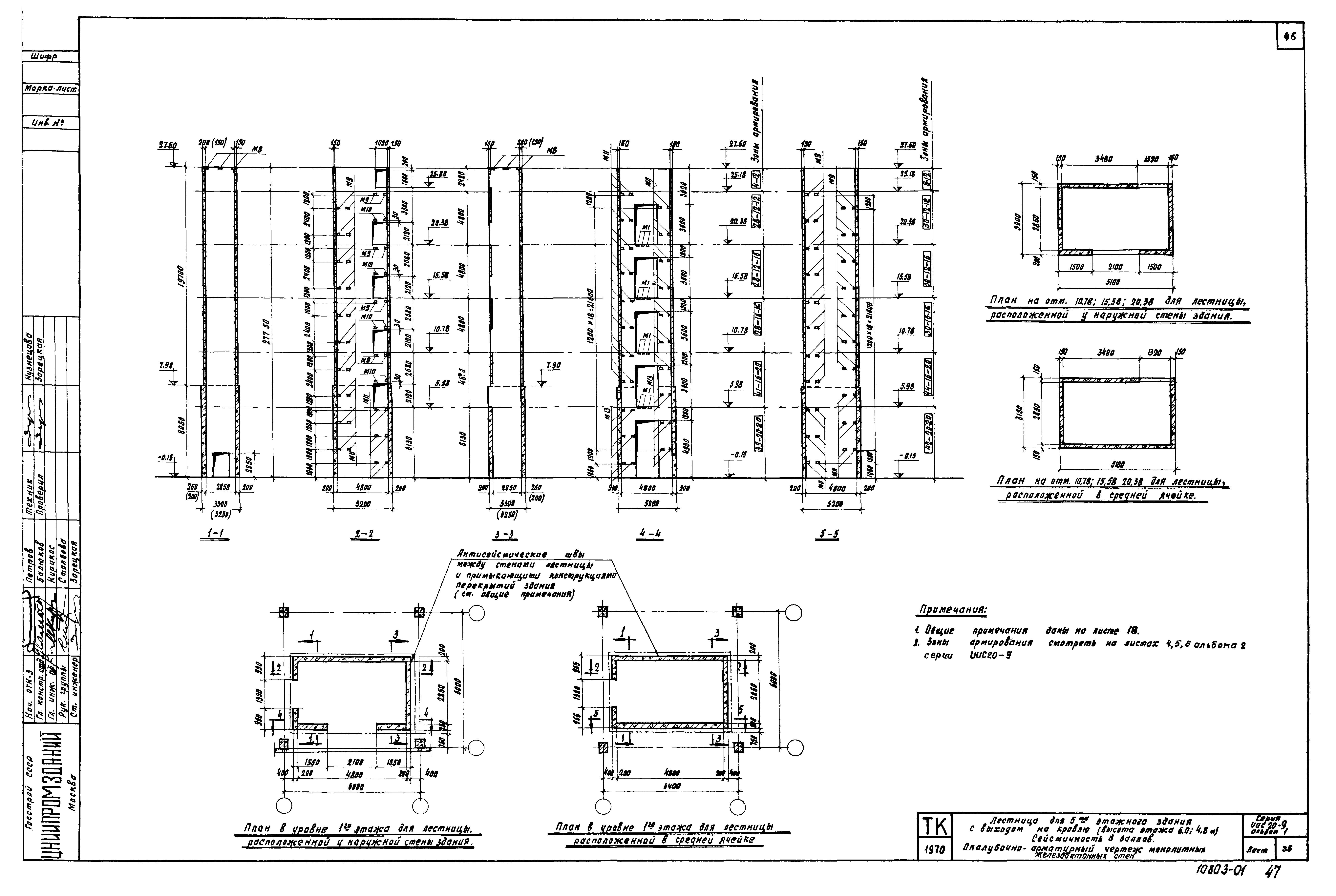
ИИС20-9 Лестница для 5-ти этажного здания с выходом на кровлю (высота этажа 4,8 м). Сейсмичность 7 баллов. Опалубочно-арматурный чертеж монолитных железобетонных стен
ИИС20-9 Лестница для 5-ти этажного здания с выходом на кровлю (высота этажа 4,8 м). Сейсмичность 8 баллов. Опалубочно-арматурный чертеж монолитных железобетонных стен
ИИС20-9 Лестница для 5-ти этажного здания с выходом на кровлю (высота этажа 4,8 м). Сейсмичность 9 баллов. Опалубочно-арматурный чертеж монолитных железобетонных стен
ИИС20-9 Лестница для 5-ти этажного здания без выхода на кровлю (высота этажа 4,8 м). Сейсмичность 7,8 баллов. Опалубочно-арматурный чертеж монолитных железобетонных стен
ИИС20-9 Лестница для 5-ти этажного здания без выхода на кровлю (высота этажа 4,8 м). Сейсмичность 9 баллов. Опалубочно-арматурный чертеж монолитных железобетонных стен
ИИС20-9 Лестница для 5-ти этажного здания с выходом на кровлю (высота этажа 6,0;4,8 м). Сейсмичность 7 баллов. Опалубочно-арматурный чертеж монолитных железобетонных стен
ИИС20-9 Лестница для 5-ти этажного здания с выходом на кровлю (высота этажа 6,0;4,8 м). Сейсмичность 8 баллов. Опалубочно-арматурный чертеж монолитных железобетонных стен
ИИС20-9 Лестница для 5-ти этажного здания с выходом на кровлю (высота этажа 6,0;4,8 м). Сейсмичность 9 баллов. Опалубочно-арматурный чертеж монолитных железобетонных стен
ИИС20-9 Лестница для 5-ти этажного здания без выхода на кровлю (высота этажа 6,0;4,8 м). Сейсмичность 7,8 баллов. Опалубочно-арматурный чертеж монолитных железобетонных стен
ИИС20-9 Лестница для 5-ти этажного здания без выхода на кровлю (высота этажа 6,0;4,8 м). Сейсмичность 9 баллов. Опалубочно-арматурный чертеж монолитных железобетонных стен
ИИС20-9 Лестница для 3-х этажного здания с выходом на кровлю (высота этажа 6,0 м). Сейсмичность 7,8 баллов. Опалубочно-арматурный чертеж монолитных железобетонных стен
ИИС20-9 Лестница для 3-х этажного здания с выходом на кровлю (высота этажа 6,0 м). Сейсмичность 9 баллов. Опалубочно-арматурный чертеж монолитных железобетонных стен
ИИС20-9 Лестница для 3-х этажного здания без выхода на кровлю (высота этажа 6,0 м). Сейсмичность 7,8,9 баллов. Опалубочно-арматурный чертеж монолитных железобетонных стен
ИИС20-9 Лестница для 3-х этажного здания с выходом на кровлю (высота этажа 7,2;6,0 м). Сейсмичность 7,8 баллов. Опалубочно-арматурный чертеж монолитных железобетонных стен
ИИС20-9 Лестница для 3-х этажного здания с выходом на кровлю (высота этажа 7,2;6,0 м). Сейсмичность 9 баллов. Опалубочно-арматурный чертеж монолитных железобетонных стен
ИИС20-9 Лестница для 3-х этажного здания без выхода на кровлю (высота этажа 7,2;6,0 м). Сейсмичность 7,8,9 баллов. Опалубочно-арматурный чертеж монолитных железобетонных стен
ИИС20-9 Лестница для 4-х этажного здания с выходом на кровлю (высота этажа 6,0 м). Сейсмичность 7 баллов. Опалубочно-арматурный чертеж монолитных железобетонных стен
ИИС20-9 Лестница для 4-х этажного здания с выходом на кровлю (высота этажа 6,0 м). Сейсмичность 8 баллов. Опалубочно-арматурный чертеж монолитных железобетонных стен
ИИС20-9 Лестница для 4-х этажного здания с выходом на кровлю (высота этажа 6,0 м). Сейсмичность 9 баллов. Опалубочно-арматурный чертеж монолитных железобетонных стен
ИИС20-9 Лестница для 4-х этажного здания без выхода на кровлю (высота этажа 6,0 м). Сейсмичность 7,8 баллов. Опалубочно-арматурный чертеж монолитных железобетонных стен
ИИС20-9 Лестница для 4-х этажного здания без выхода на кровлю (высота этажа 6,0 м). Сейсмичность 9 баллов. Опалубочно-арматурный чертеж монолитных железобетонных стен
ИИС20-9 Лестница для 4-х этажного здания с выходом на кровлю (высота этажа 7,2;6,0 м). Сейсмичность 7 баллов. Опалубочно-арматурный чертеж монолитных железобетонных стен
ИИС20-9 Лестница для 4-х этажного здания с выходом на кровлю (высота этажа 7,2;6,0 м). Сейсмичность 8 баллов. Опалубочно-арматурный чертеж монолитных железобетонных стен
ИИС20-9 Лестница для 4-х этажного здания с выходом на кровлю (высота этажа 7,2;6,0 м). Сейсмичность 9 баллов. Опалубочно-арматурный чертеж монолитных железобетонных стен
ИИС20-9 Лестница для 4-х этажного здания без выхода на кровлю (высота этажа 7,2;6,0 м). Сейсмичность 7,8 баллов. Опалубочно-арматурный чертеж монолитных железобетонных стен
ИИС20-9 Лестница для 4-х этажного здания без выхода на кровлю (высота этажа 7,2;6,0 м). Сейсмичность 9 баллов. Опалубочно-арматурный чертеж монолитных железобетонных стен
ИИС20-9 Лестница для 5-ти этажного здания с выходом на кровлю (высота этажа 6,0 м). Сейсмичность 7 баллов. Опалубочно-арматурный чертеж монолитных железобетонных стен
ИИС20-9 Лестница для 5-ти этажного здания с выходом на кровлю (высота этажа 6,0 м). Сейсмичность 8 баллов. Опалубочно-арматурный чертеж монолитных железобетонных стен
ИИС20-9 Лестница для 5-ти этажного здания без выхода на кровлю (высота этажа 6,0 м). Сейсмичность 7 баллов. Опалубочно-арматурный чертеж монолитных железобетонных стен
ИИС20-9 Лестница для 5-ти этажного здания без выхода на кровлю (высота этажа 6,0 м). Сейсмичность 8 баллов. Опалубочно-арматурный чертеж монолитных железобетонных стен
ИИС20-9 Лестница для 5-ти этажного здания с выходом на кровлю (высота этажа 7,2;6,0 м). Сейсмичность 7 баллов. Опалубочно-арматурный чертеж монолитных железобетонных стен
ИИС20-9 Лестница для 5-ти этажного здания с выходом на кровлю (высота этажа 7,2;6,0 м). Сейсмичность 8 баллов. Опалубочно-арматурный чертеж монолитных железобетонных стен
ИИС20-9 Лестница для 5-ти этажного здания без выхода на кровлю (высота этажа 7,2;6,0 м). Сейсмичность 7 баллов. Опалубочно-арматурный чертеж монолитных железобетонных стен
ИИС20-9 Лестница для 5-ти этажного здания без выхода на кровлю (высота этажа 7,2;6,0 м). Сейсмичность 8 баллов. Опалубочно-арматурный чертеж монолитных железобетонных стен
ИИС20-9 Расположение закладных деталей в монолитных железобетонных стенах лестниц. Опалубочный чертеж
ИИС20-9 Таблица размеров антисейсмических швов между монолитными железобетонными стенами лестниц и примыкающими конструкциями перекрытий зданий
ИИС20-9 Маркировочные схемы сборных железобетонных и стальных элементов для лестницы 5-ти этажного здания при высоте этажа 6,0 м. Маркировочные планы 1-1÷2-2, разрез 3-3
ИИС20-9 Маркировочные схемы сборных железобетонных и стальных элементов для лестницы 5-ти этажного здания при высоте этажа 6,0 м. Маркировочные планы 4-4÷7-7, разрезы 8-8;9-9
ИИС20-9 Монолитный участок МУ1, примыкающий к лестничной площадке на верхних этажах и при выходе на кровлю. Монолитный участок МУ2 покрытия лестничной клетки в месте примыкания к наружной стене
ИИС20-9 Варианты покрытий лестничных клеток в виде монолитных железобетонных плит
ИИС20-9 Усилия от лестничных клеток с монолитными железобетонными стенами на фундаменты
ИИС20-9 Вариант лестницы с кирпичными стенами для 3-х этажного здания с выходом на кровлю (высота этажа 3,6 м). Сейсмичность 7 баллов. Маркировочные планы и разрезы
ИИС20-9 Вариант лестницы с кирпичными стенами для 3-х этажного здания с выходом на кровлю (высота этажа 3,6 м). Сейсмичность 7 баллов. Маркировочные планы
ИИС20-9 Вариант лестницы с кирпичными стенами для 3-х этажного здания без выхода на кровлю (высота этажа 3,6 м). Сейсмичность 7 баллов. Маркировочные планы, разрезы
ИИС20-9 Вариант лестницы с кирпичными стенами для 3-х этажного здания без выхода на кровлю (высота этажа 4,8 м). Сейсмичность 7 баллов. Маркировочные планы и разрезы
ИИС20-9 Вариант лестницы с кирпичными стенами для 3-х этажного здания (высота этажа 3,6 и 4,8 м). Сейсмичность 7 баллов. Армирование кирпичных стен
ИИС20-9 Вариант лестницы с кирпичными стенами для 3-х этажного здания (высота этажа 3,6; 4,8 м). Сейсмичность 7 баллов. Армирование антисейсмических поясов АП1-АП4
ИИС20-9 Усилия от лестничных клеток с кирпичными стенами на фундаменты
ИИС20-9 Маркировочные схемы и ключи для подбора рабочих марок ригелей в ячейках с лестничными клетками, имеющими кирпичные стены (здания с перекрытиями типа 1)
ИИС20-9 Ригели каркаса здания, расположенные у лестничных клеток с кирпичными стенами. Схемы ригелей с маркировкой закладных деталей (планы)
ИИС20-9 Ригели каркаса здания, расположенные у лестничных клеток с кирпичными стенами. Схемы ригелей с маркировкой сеток в полках (планы)
Разработан: ЦНИИпромзданий
НИИЖБ
ЦНИИСК АСиА СССР
Утверждён:18.12.1970 Госстрой СССР (Государственный комитет Совета Министров СССР по делам строительства) (USSR Gosstroy 161)
Расположен в:Техническая документация Строительство Справочные документы Типовые строительные конструкции, изделия и узлы Общероссийский строительный каталог Строительные конструкции, изделия и узлы зданий и сооружений для всех видов строительства Конструкции, изделия и узлы зданий Несущие конструкции двухэтажных и многоэтажных зданий Лестницы
Серия ИИС20-9Серия ИИС20-9Серия ИИС20-9Серия ИИС20-9Серия ИИС20-9Серия ИИС20-9Серия ИИС20-9Серия ИИС20-9Серия ИИС20-9Серия ИИС20-9Серия ИИС20-9Серия ИИС20-9Серия ИИС20-9Серия ИИС20-9Серия ИИС20-9Серия ИИС20-9Серия ИИС20-9Серия ИИС20-9Серия ИИС20-9Серия ИИС20-9Серия ИИС20-9Серия ИИС20-9Серия ИИС20-9Серия ИИС20-9Серия ИИС20-9Серия ИИС20-9Серия ИИС20-9Серия ИИС20-9Серия ИИС20-9Серия ИИС20-9Серия ИИС20-9Серия ИИС20-9Серия ИИС20-9Серия ИИС20-9Серия ИИС20-9Серия ИИС20-9Серия ИИС20-9Серия ИИС20-9Серия ИИС20-9Серия ИИС20-9Серия ИИС20-9Серия ИИС20-9Серия ИИС20-9Серия ИИС20-9Серия ИИС20-9Серия ИИС20-9Серия ИИС20-9Серия ИИС20-9Серия ИИС20-9Серия ИИС20-9Серия ИИС20-9Серия ИИС20-9Серия ИИС20-9Серия ИИС20-9Серия ИИС20-9Серия ИИС20-9Серия ИИС20-9Серия ИИС20-9Серия ИИС20-9Серия ИИС20-9Серия ИИС20-9Серия ИИС20-9Серия ИИС20-9Серия ИИС20-9Серия ИИС20-9Серия ИИС20-9Серия ИИС20-9Серия ИИС20-9Серия ИИС20-9Серия ИИС20-9Серия ИИС20-9Серия ИИС20-9Серия ИИС20-9Серия ИИС20-9Серия ИИС20-9Серия ИИС20-9Серия ИИС20-9Серия ИИС20-9Серия ИИС20-9Серия ИИС20-9Серия ИИС20-9Серия ИИС20-9Серия ИИС20-9Серия ИИС20-9Серия ИИС20-9Серия ИИС20-9Серия ИИС20-9Серия ИИС20-9Серия ИИС20-9

© 2013 Ёшкин Кот :-) Карта сайта