Скачать Типовые проектные решения 407-0-135 Альбом II. Электротехническая часть. План ОРУ, ячейки, узлыДата актуализации: 10.08.2017 Типовые проектные решения 407-0-135
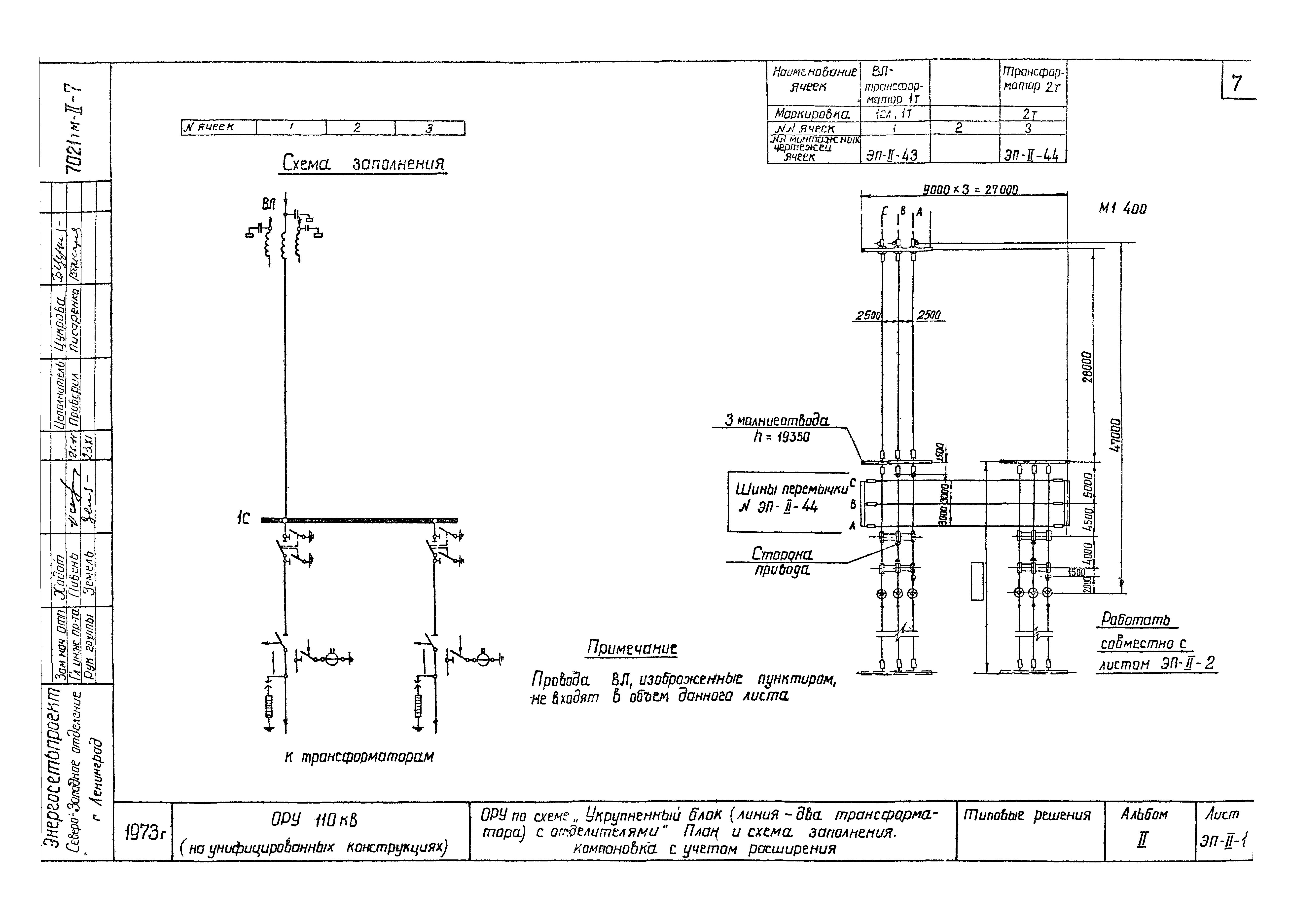
Альбом II. Электротехническая часть. План ОРУ, ячейки, узлыОбозначение: | Типовые проектные решения 407-0-135 | Обозначение англ: | 407-0-135 | Статус: | cправочные материалы, мп, тпр | Название рус.: | Альбом II. Электротехническая часть. План ОРУ, ячейки, узлы | Дата добавления в базу: | 01.09.2013 | Дата актуализации: | 05.05.2017 | Оглавление: | ТП 407-0-135 Титульный лист ТП 407-0-135 Перечень листов ТП 407-0-135 Пояснительная записка ТП 407-0-135-ЭЛ-II-1 ОРУ по схеме "Укрупненный блок (линия-два трансформатора) с отделителями". План и схема заполнения. Компоновка с учетом расширения ТП 407-0-135-ЭЛ-II-2 ОРУ по схеме "Укрупненный блок (линия-два трансформатора) с отделителями". План и схема заполнения. Компоновка с учетом расширения. Спецификация ТП 407-0-135-ЭЛ-II-3 ОРУ по схеме "Два блока с отделителями и неавтоматической перемычкой со стороны линий". План и схема заполнения. Компоновка с учетом расширения ТП 407-0-135-ЭЛ-II-4 ОРУ по схеме "Два блока с отделителями и неавтоматической перемычкой со стороны линий". План и схема заполнения. Компоновка с учетом расширения. Спецификация ТП 407-0-135-ЭЛ-II-5 ОРУ по схеме "Два блока с отделителями и автоматической перемычкой со стороны трансформаторов". План и схема заполнения. Компоновка с учетом расширения ТП 407-0-135-ЭЛ-II-6 ОРУ по схеме "Два блока с отделителями и автоматической перемычкой со стороны трансформаторов". План и схема заполнения. Компоновка с учетом расширения. Спецификация ТП 407-0-135-ЭЛ-II-7 ОРУ по схеме "Два блока с отделителями и дополнительной линией, присоединенной через два выключателя". План и схема заполнения ТП 407-0-135-ЭЛ-II-8 ОРУ по схеме "Два блока с отделителями и дополнительной линией, присоединенной через два выключателя". План и схема заполнения. Спецификация ТП 407-0-135-ЭЛ-II-19 ОРУ по схеме "Мостик с выключателями в перемычке и отделителями в цепях трансформаторов" (с ремонтной перемычкой). План и схема заполнения. Компоновка с учетом расширения ТП 407-0-135-ЭЛ-II-10 ОРУ по схеме "Мостик с выключателями в перемычке и отделителями в цепях трансформаторов" (с ремонтной перемычкой). План и схема заполнения. Компоновка с учетом расширения. Спецификация ТП 407-0-135-ЭЛ-II-11 ОРУ по схеме "Мостик с выключателем в перемычке и отделителями в цепях трансформаторов" (без ремонтной перемычки). План и схема заполнения ТП 407-0-135-ЭЛ-II-12 ОРУ по схеме "Мостик с выключателем в перемычке и отделителями в цепях трансформаторов" (без ремонтной перемычки). План и схема заполнения. Спецификация ТП 407-0-135-ЭЛ-II-13 ОРУ по схеме "Мостик с выключателями в перемычке и на линиях и отделителями в цепях трансформаторов" (с ремонтной перемычкой). План и схема заполнения ТП 407-0-135-ЭЛ-II-14 ОРУ по схеме "Мостик с выключателями в перемычке и на линиях и отделителями в цепях трансформаторов" (с ремонтной перемычкой). План и схема заполнения. Спецификация ТП 407-0-135-ЭЛ-II-15 ОРУ по схеме "Мостик с выключателями в перемычке и на линиях и отделителями в цепях трансформаторов" (без ремонтной перемычки). План и схема заполнения ТП 407-0-135-ЭЛ-II-16 ОРУ по схеме "Мостик с выключателями в перемычке и на линиях и отделителями в цепях трансформаторов" (без ремонтной перемычки). План и схема заполнения. Спецификация ТП 407-0-135-ЭЛ-II-17 ОРУ по схеме "Одна рабочая секционированная выключателем и обходная системы шин с отделителями в цепях трансформаторов с совмещенным секционным и обходным выключателем". План и схема заполнения ТП 407-0-135-ЭЛ-II-18 ОРУ по схеме "Одна рабочая секционированная выключателем и обходная системы шин с отделителями в цепях трансформаторов с совмещенным секционным и обходным выключателем". План и схема заполнения. Спецификация ТП 407-0-135-ЭЛ-II-19 ОРУ по схеме "Одна рабочая секционированная выключателем и обходная системы шин с выключателями в цепях трансформаторов с совмещенным секционным и обходным выключателем". План и схема заполнения ТП 407-0-135-ЭЛ-II-20 ОРУ по схеме "Одна рабочая секционированная выключателем и обходная системы шин с выключателями в цепях трансформаторов с совмещенным секционным и обходным выключателем". План и схема заполнения. Спецификация ТП 407-0-135-ЭЛ-II-21 ОРУ по схеме "Одна рабочая секционированная выключателем и обходная системы шин с выключателями в цепях трансформаторов с отдельным секционным и обходным выключателем". План и схема заполнения ТП 407-0-135-ЭЛ-II-22 ОРУ по схеме "Одна рабочая секционированная выключателем и обходная системы шин с выключателями в цепях трансформаторов с отдельным секционным и обходным выключателем". План и схема заполнения. Спецификация ТП 407-0-135-ЭЛ-II-23 ОРУ по схеме "Две рабочие системы шин с обходной". План и схема заполнения ТП 407-0-135-ЭЛ-II-24 ОРУ по схеме "Две рабочие системы шин с обходной". План и схема заполнения. Спецификация ТП 407-0-135-ЭЛ-II-25 ОРУ по схеме "Две рабочие системы шин с обходной". Узел секционирования сборных шин. Вариант 1. План, схема заполнения и спецификация ТП 407-0-135-ЭЛ-II-26 ОРУ по схеме "Две рабочие системы шин с обходной". Узел секционирования сборных шин. Вариант 2. План, схема заполнения и спецификация ТП 407-0-135-ЭЛ-II-27 ОРУ по схеме "Блок (линия-трансформатор) с отделителем". План, разрез, схема заполнения и спецификация ТП 407-0-135-ЭЛ-II-28 ОРУ по схеме "Блок (линия-трансформатор) с предохранителем". План, разрез, схема заполнения и спецификация. Компоновка без учета расширения ТП 407-0-135-ЭЛ-II-29 ОРУ по схеме "Укрупненный блок (линия-два трансформатора) с отделителями". План, схема заполнения и спецификация. Компоновка без учета расширения ТП 407-0-135-ЭЛ-II-30 ОРУ по схеме "Два блока с отделителями с неавтоматической перемычкой со стороны линий". План, схема заполнения и спецификация. Компоновка без учета расширения ТП 407-0-135-ЭЛ-II-31 ОРУ по схеме "Два блока с отделителями с автоматической перемычкой со стороны трансформаторов". План, схема заполнения и спецификация. Компоновка без учета расширения ТП 407-0-135-ЭЛ-II-32 ОРУ по схеме "Мостик с выключателем в перемычке и отделителями в цепях трансформаторов" (с ремонтной перемычкой). План, схема заполнения и спецификация. Компоновка без учета расширения ТП 407-0-135-ЭЛ-II-33 ОРУ по схеме "Мостик с выключателем в перемычке и отделителями в цепях трансформаторов" (без ремонтной перемычки). План, схема заполнения и спецификация. Компоновка без учета расширения ТП 407-0-135-ЭЛ-II-34 Узел выключателей У-110 и МКП-110 с шинной опорой ШО-110 при гибкой ошиновке перехода над дорогой ТП 407-0-135-ЭЛ-II-35 Узел выключателя ВМК-110 с трансформаторами тока ТФНД-110м-II и ТФНД-110м при гибкой ошиновке перехода над дорогой ТП 407-0-135-ЭЛ-II-36 Узел выключателя ВВБ-110-31,5/2000 с трансформаторами тока ТФНД-110м-II и ТФНД-110м при гибкой ошиновке перехода над дорогой ТП 407-0-135-ЭЛ-II-37 Узел выключателя ВВУ-110-40/2000 с трансформаторами тока ТФНД-110м-II при гибкой ошиновке перехода над дорогой ТП 407-0-135-ЭЛ-II-38 Узел выключателей У-110 и МКП-110. Компоновка без учета расширения ТП 407-0-135-ЭЛ-II-39 Узел выключателя ВМК-110 с трансформаторами тока ТФНД-110м. Компоновка без учета расширения ТП 407-0-135-ЭЛ-II-40 Узел выключателя ВВБ-110-31,5/2000 с трансформаторами тока ТФНД-110м. Компоновка без учета расширения ТП 407-0-135-ЭЛ-II-41 Узел выключателя ВВУ-110-40/2000 с трансформаторами тока ТФНД-110м. Компоновка без учета расширения ТП 407-0-135-ЭЛ-II-42 Узел аппаратуры в.ч. Связи ТП 407-0-135-ЭЛ-II-43 ОРУ по схеме "Укрупненный блок (линия-два трансформатора) с отделителями". Ячейка ВЛ-трансформатор ТП 407-0-135-ЭЛ-II-44 ОРУ по схеме "Укрупненный блок (линия-два трансформатора) с отделителями". Ячейка трансформатора 2Т и шины перемычки ТП 407-0-135-ЭЛ-II-45 ОРУ по схеме "Два блока с отделителями и неавтоматической перемычкой со стороны линий". Ячейка ВЛ-трансформатор 1Т(2Т) и шины перемычки ТП 407-0-135-ЭЛ-II-46 ОРУ по схеме "Два блока с отделителями и автоматической перемычкой со стороны трансформаторов". Ячейка трансформатора 1Т-ВЛ ТП 407-0-135-ЭЛ-II-47 ОРУ по схеме "Два блока с отделителями и автоматической перемычкой со стороны трансформаторов". Ячейка трансформатора 2Т-ВЛ ТП 407-0-135-ЭЛ-II-48 ОРУ по блочным и мостиковым схемам. Ячейка трансформатора 1Т(2Т)-ВЛ ТП 407-0-135-ЭЛ-II-49 ОРУ по схеме "Два блока с отделителями и дополнительной линией, присоединенной через два выключателя". Ячейка перемычки шинных аппаратов ТП 407-0-135-ЭЛ-II-50 ОРУ по схеме "Два блока с отделителями и дополнительной линией, присоединенной через два выключателя". Ячейка ВЛ ТП 407-0-135-ЭЛ-II-51 ОРУ по схеме "Мостик с выключателем в перемычке и отделителями в цепях трансформаторов" (с ремонтной перемычкой). Ячейка ВЛ-трансформатор 1Т ТП 407-0-135-ЭЛ-II-52 ОРУ по схеме "Мостик с выключателем в перемычке и отделителями в цепях трансформаторов" (с ремонтной перемычкой). Ячейка перемычки и шинных аппаратов ТП 407-0-135-ЭЛ-II-53 ОРУ по схеме "Мостик с выключателем в перемычке и отделителями в цепях трансформаторов" (с ремонтной перемычкой). Ячейка ВЛ-трансформатор 2Т ТП 407-0-135-ЭЛ-II-54 ОРУ по схеме "Мостик с выключателем в перемычке и отделителями в цепях трансформаторов" (без ремонтной перемычки). Ячейка трансформатора 2Т-ВЛ ТП 407-0-135-ЭЛ-II-55 ОРУ по схеме "Мостик с выключателями в перемычке и на линиях и отделителями в цепях трансформаторов" (с ремонтной перемычкой). Ячейка ВЛ-трансформатор 1Т ТП 407-0-135-ЭЛ-II-56 ОРУ по схеме "Мостик с выключателями в перемычке и на линиях и отделителями в цепях трансформаторов" (с ремонтной перемычкой). Ячейка перемычки и шинные аппараты ТП 407-0-135-ЭЛ-II-57 ОРУ по схеме "Мостик с выключателями в перемычке и на линиях и отделителями в цепях трансформаторов" (с ремонтной перемычкой). Ячейка ВЛ-трансформатор 2Т ТП 407-0-135-ЭЛ-II-58 ОРУ по схеме "Мостик с выключателями в перемычке и на линиях и отделителями в цепях трансформаторов" (без ремонтной перемычки). Ячейка ВЛ-трансформатор 1Т ТП 407-0-135-ЭЛ-II-59 ОРУ по схеме "Мостик с выключателями в перемычке и на линиях и отделителями в цепях трансформаторов" (без ремонтной перемычки). Ячейка ВЛ-трансформатор 2Т ТП 407-0-135-ЭЛ-II-60 ОРУ по схеме "Одна рабочая, секционированная выключателем и обходная системы шин с отделителями в цепях трансформаторов, с совмещенным секционным и обходным выключателем". Ячейка трансформатора 1Т-ВЛ ТП 407-0-135-ЭЛ-II-61 ОРУ по схеме "Одна рабочая, секционированная выключателем и обходная системы шин с отделителями в цепях трансформаторов, с совмещенным секционным и обходным выключателем". Ячейка трансформатора 2Т-ВЛ ТП 407-0-135-ЭЛ-II-62 ОРУ по схеме "Одна рабочая, секционированная выключателем и обходная системы шин". Ячейка трансформатора 1Т ТП 407-0-135-ЭЛ-II-63 ОРУ по схеме "Одна рабочая, секционированная выключателем и обходная системы шин". Ячейка трансформатора 2Т ТП 407-0-135-ЭЛ-II-64 ОРУ по схеме "Одна рабочая, секционированная выключателем и обходная системы шин". Ячейка ВЛ первой секции (в сторону, противоположную трансформаторам) ТП 407-0-135-ЭЛ-II-65 ОРУ по схеме "Одна рабочая, секционированная выключателем и обходная системы шин". Ячейка ВЛ первой секции (в сторону трансформаторов) ТП 407-0-135-ЭЛ-II-66 ОРУ по схеме "Одна рабочая, секционированная выключателем и обходная системы шин". Ячейка ВЛ второй секции (в сторону, противоположную трансформаторам) ТП 407-0-135-ЭЛ-II-67 ОРУ по схеме "Одна рабочая, секционированная выключателем и обходная системы шин". Ячейка ВЛ второй секции (в сторону трансформаторов) ТП 407-0-135-ЭЛ-II-68 ОРУ по схеме "Две рабочие системы шин с обходной". Ячейка трансформатора 1Т(2Т) ТП 407-0-135-ЭЛ-II-69 ОРУ по схеме "Две рабочие системы шин с обходной". Ячейка ВЛ (в сторону, противоположную трансформаторам) ТП 407-0-135-ЭЛ-II-70 ОРУ по схеме "Две рабочие системы шин с обходной". Ячейка ВЛ (в сторону трансформаторов) ТП 407-0-135-ЭЛ-II-71 ОРУ по схеме "Одна рабочая секционированная выключателем и обходная системы шин". Ячейка перемычки и шинные аппараты второй секции ТП 407-0-135-ЭЛ-II-72 ОРУ по схемам со сборными шинами. Ячейка шиносоединительного (секционного) выключателя (вариант 1) и шинные аппараты второй системы шин ТП 407-0-135-ЭЛ-II-73 ОРУ по схемам со сборными шинами. Ячейка шиносоединительного (секционного) выключателя (вариант 2) ТП 407-0-135-ЭЛ-II-74 ОРУ по схемам со сборными шинами. Ячейка совмещенного шиносоединительного и обходного выключателя ТП 407-0-135-ЭЛ-II-74И ОРУ по схемам со сборными шинами. Ячейка совмещенного шиносоединительного и обходного выключателя ТП 407-0-135-ЭЛ-II-75 ОРУ по схемам со сборными шинами. Ячейка обходного выключателя ТП 407-0-135-ЭЛ-II-76 ОРУ по схемам со сборными шинами. Ячейка обходного выключателя и шинных аппаратов первой и второй секции (системы шин) ТП 407-0-135-ЭЛ-II-77 ОРУ по мостиковым схемам и схемам со сборными шинами. Ячейки шинных аппаратов (вариант 1) ТП 407-0-135-ЭЛ-II-78 ОРУ по мостиковым схемам и схемам со сборными шинами. Ячейки шинных аппаратов (вариант 2) ТП 407-0-135-ЭЛ-II-79 ОРУ по схеме "Две рабочие системы шин с обходной" при ошиновке сдвоенными проводами. Ячейка трансформатора 1Т(2Т) ТП 407-0-135-ЭЛ-II-80 ОРУ по схемам со сборными шинами при ошиновке сдвоенными проводами. Ячейка обходного выключателя ТП 407-0-135-ЭЛ-II-81 ОРУ по схемам со сборными шинами при ошиновке сдвоенными проводами. Ячейка шиносоединительного (секционного) выключателя ТП 407-0-135-ЭЛ-II-82 Поячейковые спецификации на ячейки, не учтенные планами ОРУ ТП 407-0-135-ЭЛ-II-83 ОРУ по схеме "Две рабочие системы шин с обходной". Узел секционирования сборных шин. Вариант 2. Ячейка секционного выключателя шин 2С ТП 407-0-135-ЭЛ-II-84 ОРУ по схеме "Две рабочие системы шин с обходной". Узел секционирования сборных шин. Вариант 2. Ячейка секционного выключателя шин 1С ТП 407-0-135-ЭЛ-II-85 ОРУ по схеме "Две рабочие системы шин с обходной". Узел секционирования сборных шин. Вариант 2. Шины перемычек ТП 407-0-135-ЭЛ-II-86 ОРУ по схеме "Две рабочие системы шин с обходной". Узел секционирования сборных шин. Вариант 1. Разрезы ТП 407-0-135-ЭЛ-II-87 ОРУ по схеме "Укрупненный блок (линия-два трансформатора) с отделителями". Разрезы. Компоновка без учета расширения ТП 407-0-135-ЭЛ-II-88 ОРУ по схеме "Два блока с отделителями и неавтоматической перемычкой со стороны линий". Разрезы. Компоновка без учета расширения ТП 407-0-135-ЭЛ-II-89 ОРУ по схеме "Два блока с отделителями и автоматической перемычкой со стороны трансформаторов". Разрезы. Компоновка без учета расширения ТП 407-0-135-ЭЛ-II-90 ОРУ по схеме "Мостик с выключателем в перемычке и отделителями в цепях трансформаторов" (с ремонтной перемычкой). Ячейка ВЛ-трансформатор 1Т. Компоновка без учета расширения ТП 407-0-135-ЭЛ-II-91 ОРУ по схеме "Мостик с выключателем в перемычке и отделителями в цепях трансформаторов" (с ремонтной перемычкой). Ячейка ВЛ-трансформатор 2Т. Компоновка без учета расширения ТП 407-0-135-ЭЛ-II-92 ОРУ по схеме "Мостик с выключателем в перемычке и отделителями в цепях трансформаторов" (с ремонтной перемычкой). Ячейка перемычки. Компоновка без учета расширения ТП 407-0-135-ЭЛ-II-93 ОРУ по схеме "Мостик с выключателем в перемычке и отделителями в цепях трансформаторов" (без ремонтной перемычки). Ячейка ВЛ-трансформатор. Компоновка без учета расширения ТП 407-0-135-ЭЛ-II-94 ОРУ по блочным схемам. Сборные шины ТП 407-0-135-ЭЛ-II-95 ОРУ по мостиковым схемам. Сборные шины ТП 407-0-135-ЭЛ-II-96 ОРУ по схеме "Одна рабочая, секционированная выключателем и обходная системы шин с отделителями в цепях трансформаторов с совмещенным секционным и обходным выключателем". Сборные шины ТП 407-0-135-ЭЛ-II-97 ОРУ по схеме "Одна рабочая, секционированная выключателем и обходная системы шин с выключателями в цепях трансформаторов с совмещенным секционным и обходным выключателем". Сборные шины ТП 407-0-135-ЭЛ-II-98 ОРУ по схеме "Одна рабочая, секционированная выключателем и обходная системы шин с выключателями в цепях трансформаторов с отдельными секционным и обходным выключателями". Сборные шины ТП 407-0-135-ЭЛ-II-99 ОРУ по схеме "Две рабочие системы шин с обходной". Сборные шины ТП 407-0-135-ЭЛ-II-100 ОРУ по схеме "Две рабочие системы шин с обходной". Сборные шины при ошиновке сдвоенными проводами ТП 407-0-135-ЭЛ-II-101 Узлы присоединения проводов к выводам разъединителей и выключателей ТП 407-0-135-ЭЛ-II-102 Узел крепления двух проводов на опоре ШО-110 и опорная конструкция (поз. 32) ТП 407-0-135-ЭЛ-II-103 Узел выключателя ВНВ-110 с трансформаторами тока ТФНД-110м-II и ТФНД-110м при гибкой ошиновке перехода над дорогой ТП 407-0-135-ЭЛ-II-104 Узел выключателя ВНВ-110 с трансформаторами тока ТФНД-110м. Компоновка без учета расширения ТП 407-0-135-ЭЛ-II-105 Узел выключателя НLD-145/1250 с трансформаторами тока ТФНД-110м-II и ТФНД-110м при гибкой ошиновке перехода над дорогой ТП 407-0-135-ЭЛ-II-106 Узел выключателя НLD-145/1250 с трансформатором тока ТФНД-110м . Компоновка без учета расширения ТП 407-0-135-ЭЛ-II-107 Узел выключателя ММО-110/1250/20У1 с трансформаторами тока ТФНД-110м-II,ТФНД-110м при гибкой ошиновке перехода над дорогой ТП 407-0-135-ЭЛ-II-108 Узел выключателя ММО-110/1250/20У1 с трансформатором тока ТФНД-110м . Компоновка без учета расширения ТП 407-0-135-ЭЛ-II-109 Узел установки шести комплектов трансформаторов тока (по 2 в фазе) типа ТФНД-110м при гибкой ошиновке перехода над дорогой ТП 407-0-135-ЭЛ-II-1110 Узел установки шести комплектов трансформаторов тока (по 2 в фазе) типа ТФНД-110м-II при гибкой ошиновке перехода над дорогой | Разработан: | Северо-западное отделение института Энергосетьпроект
| Утверждён: | 17.12.1973 Минэнерго СССР (USSR Minenergo 275)
| Расположен в: |
| Чем заменён: | |
                                                                                                                    
|