Информационная система
«Ёшкин Кот»

Скачать базу одним архивом
Скачать обновления
История создания базы
Карта сайта

Скачать Типовой проект 902-2-406.86 Альбом II. Технология производства. Внутренние водопровод и канализация (из ТП 902-2-405.86)

Дата актуализации: 10.08.2017

Типовой проект 902-2-406.86

Альбом II. Технология производства. Внутренние водопровод и канализация (из ТП 902-2-405.86)

Обозначение: Типовой проект 902-2-406.86
Обозначение англ: 902-2-406.86
Статус:заменен
Название рус.:Альбом II. Технология производства. Внутренние водопровод и канализация (из ТП 902-2-405.86)
Дата добавления в базу:01.09.2013
Дата актуализации:05.05.2017
Дата введения:01.10.1987
Оглавление:ТП 902-2-405.86 Титульный лист
ТП 902-2-405.86 Содержание альбома
ТП 902-2-405.86-ТХ Технология производства ТХ
ТП 902-2-405.86-ТХ-1 Общие данные
ТП 902-2-405.86-ТХ-2 Схема взаимного расположения здания мойки и очистных сооружений. План расстановки технологического оборудования
ТП 902-2-405.86-ТХ-3 Технологическая схема очистки сточных вод
ТП 902-2-405.86-ТХ-4 План на отм. 0.000
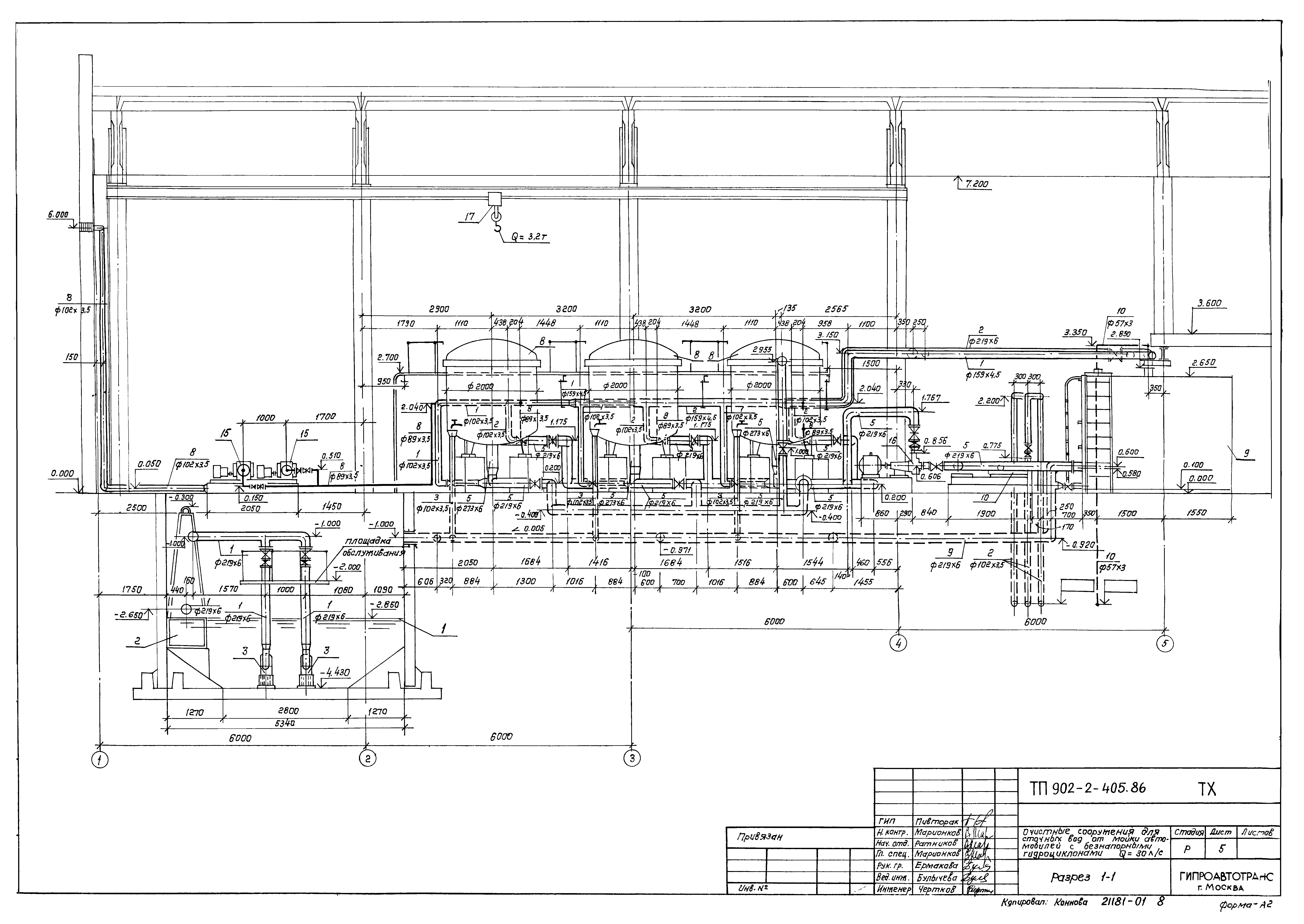
ТП 902-2-405.86-ТХ-5 Разрез 1-1
ТП 902-2-405.86-ТХ-6 Разрез 2-2
ТП 902-2-405.86-ТХ-7 Разрез 3-3;4-4
ТП 902-2-405.86-ТХ-8 Схемы систем 1,2,5,8,10
ТП 902-2-405.86-ТХ-9 Схемы систем 3,4,6,7,8,9
ТП 902-2-405.86-ТХ-10 Схемы систем 1,8
ТП 902-2-405.86-ВК Внутренние водопровод и канализация ВК
ТП 902-2-405.86-ВК-1 Общие данные. Планы на отм. 0.000,3.600. Схемы систем ВО,Т3,К1
Разработан: Гипроавтотранс
Утверждён:27.03.1985 Минавтотранс РСФСР (Russian Federation Minavtotrans 55)
Издан: ЦИТП Госстроя СССР (CITP, Gosstroy (USSR) 1986 г. )
Расположен в:Техническая документация Строительство Справочные документы Типовые строительные конструкции, изделия и узлы Общероссийский строительный каталог Промышленные предприятия, здания и сооружения Здания и сооружения санитарно-технические Канализация Сооружения для очистки производственных сточных вод Сооружения для очистки сточных вод от мойки автомобилей
Чем заменён:
Типовой проект 902-2-406.86Типовой проект 902-2-406.86Типовой проект 902-2-406.86Типовой проект 902-2-406.86Типовой проект 902-2-406.86Типовой проект 902-2-406.86Типовой проект 902-2-406.86Типовой проект 902-2-406.86Типовой проект 902-2-406.86Типовой проект 902-2-406.86Типовой проект 902-2-406.86Типовой проект 902-2-406.86Типовой проект 902-2-406.86Типовой проект 902-2-406.86Типовой проект 902-2-406.86

© 2013 Ёшкин Кот :-) Карта сайта