Информационная система
«Ёшкин Кот»

Скачать базу одним архивом
Скачать обновления
История создания базы
Карта сайта

Скачать Типовой проект 705-1-174.85 Альбом I. Пояснительная записка. Технология производства. Архитектурные решения. Конструкции железобетонные. Чертежи вентиляции. Электротехнические чертежи. Спецификации оборудования

Дата актуализации: 10.08.2017

Типовой проект 705-1-174.85

Альбом I. Пояснительная записка. Технология производства. Архитектурные решения. Конструкции железобетонные. Чертежи вентиляции. Электротехнические чертежи. Спецификации оборудования

Обозначение: Типовой проект 705-1-174.85
Обозначение англ: 705-1-174.85
Статус:действует
Название рус.:Альбом I. Пояснительная записка. Технология производства. Архитектурные решения. Конструкции железобетонные. Чертежи вентиляции. Электротехнические чертежи. Спецификации оборудования
Дата добавления в базу:01.09.2013
Дата актуализации:05.05.2017
Оглавление:ТП 705-1-174.85 Ведомость чертежей альбома
ТП 705-1-174.85-ПЗ Комплект ПЗ
ТП 705-1-174.85-ПЗ-1 Пояснительная записка (начало)
ТП 705-1-174.85-ПЗ-2 Пояснительная записка (продолжение)
ТП 705-1-174.85-ПЗ-3 Пояснительная записка (окончание)
ТП 705-1-174.85-ТХ Комплект ТХ
ТП 705-1-174.85-ТХ-1 Расположение технологического оборудования. План. Разрезы
ТП 705-1-174.85-АР Комплект АР
ТП 705-1-174.85-АР-1 Общие данные
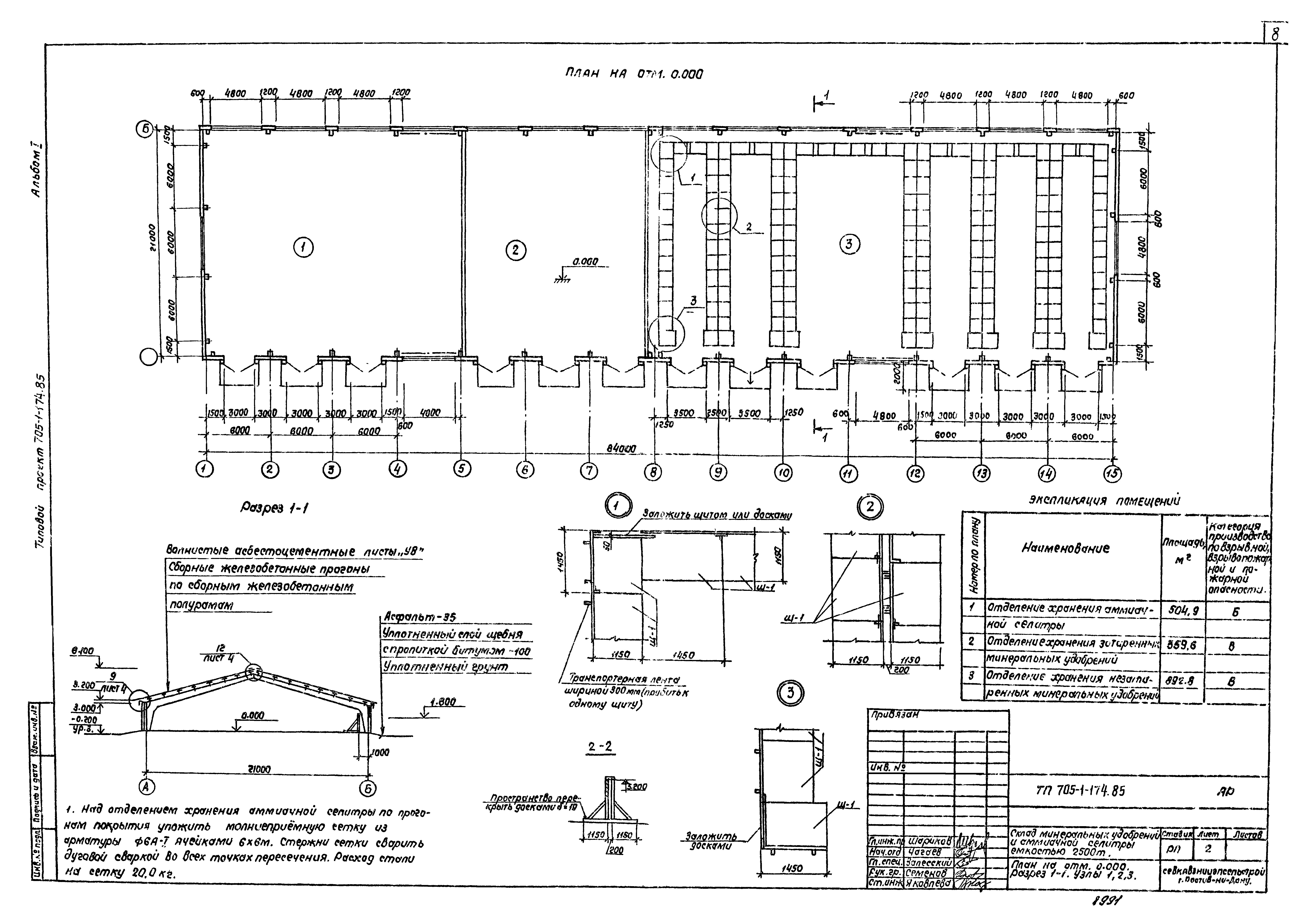
ТП 705-1-174.85-АР-2 План на отм. 0.000. Разрез 1-1. Узлы 1,2,3
ТП 705-1-174.85-АР-3 Фасады 1-15,15-1,А-Б,Б-А. План кровли. План полов. Схема заполнения оконных проемов
ТП 705-1-174.85-АР-4 Схема расположения ригелей стен. Узлы 4-12
ТП 705-1-174.85-КЖ Комплект КЖ
ТП 705-1-174.85-КЖ-1 Общие данные
ТП 705-1-174.85-КЖ-2 Схема расположения фундаментов и фундаментных балок
ТП 705-1-174.85-КЖ-3 Схема расположения фундаментов. Фрагменты планов 1-6
ТП 705-1-174.85-КЖ-4 Схема расположения полурам колонн и прогонов. Схема расположения стоек перегородок
ТП 705-1-174.85-КЖ-5 Схема расположения горизонтальных связей. Узлы 1-6
ТП 705-1-174.85-КЖ-6 Схема расположения стеновых панелей и перегородок
ТП 705-1-174.85-ОВ Комплект ОВ
ТП 705-1-174.85-ОВ-1 Общие данные
ТП 705-1-174.85-ОВ-2 План на отм. 0.000. Разрез 1-1
ТП 705-1-174.85-ЭЛ Комплект ЭЛ
ТП 705-1-174.85-ЭЛ-1 Общие данные
ТП 705-1-174.85-ЭЛ-2 Электросиловое оборудование. Схема принципиальная распределительной сети. Кабельный журнал
ТП 705-1-174.85-ЭЛ-3 Электросиловое оборудование. План сетей
ТП 705-1-174.85-ЭЛ-4 Электроосвещение. План сетей
ТП 705-1-174.85-ЭЛ-5 Молниезащита
ТП 705-1-174.85-ЭЛ-6 Автоматическое отключение вентиляции при пожаре
ТП 705-1-174.85-ПС Комплект ПС
ТП 705-1-174.85-ПС-1 Размещение датчиков пожарной сигнализации
ТП 705-1-174.85-ПС-2 Спецификации оборудования
Разработан: ВНИПТИМЭСХ
СевкавЗНИИЭПсельстрой
ВНИПТИХИМ
Утверждён:09.11.1983 Министерство сельского хозяйства РСФСР (Russian Federation Ministry of Agriculture 1)
Расположен в:Техническая документация Строительство Справочные документы Типовые строительные конструкции, изделия и узлы Общероссийский строительный каталог Сельскохозяйственные предприятия, здания и сооружения Предприятия, здания и сооружения по ремонту, техническому обслуживанию, хранению и обеспечению горюче-смазочными материалами сельхозтехники Прирельсовые склады твердых минеральных удобрений
Типовой проект 705-1-174.85Типовой проект 705-1-174.85Типовой проект 705-1-174.85Типовой проект 705-1-174.85Типовой проект 705-1-174.85Типовой проект 705-1-174.85Типовой проект 705-1-174.85Типовой проект 705-1-174.85Типовой проект 705-1-174.85Типовой проект 705-1-174.85Типовой проект 705-1-174.85Типовой проект 705-1-174.85Типовой проект 705-1-174.85Типовой проект 705-1-174.85Типовой проект 705-1-174.85Типовой проект 705-1-174.85Типовой проект 705-1-174.85Типовой проект 705-1-174.85Типовой проект 705-1-174.85Типовой проект 705-1-174.85Типовой проект 705-1-174.85Типовой проект 705-1-174.85Типовой проект 705-1-174.85Типовой проект 705-1-174.85Типовой проект 705-1-174.85Типовой проект 705-1-174.85Типовой проект 705-1-174.85Типовой проект 705-1-174.85

© 2013 Ёшкин Кот :-) Карта сайта