Скачать Типовые материалы для проектирования 902-08-1.88 Альбом II. Конструкции железобетонныеДата актуализации: 10.08.2017 Типовые материалы для проектирования 902-08-1.88
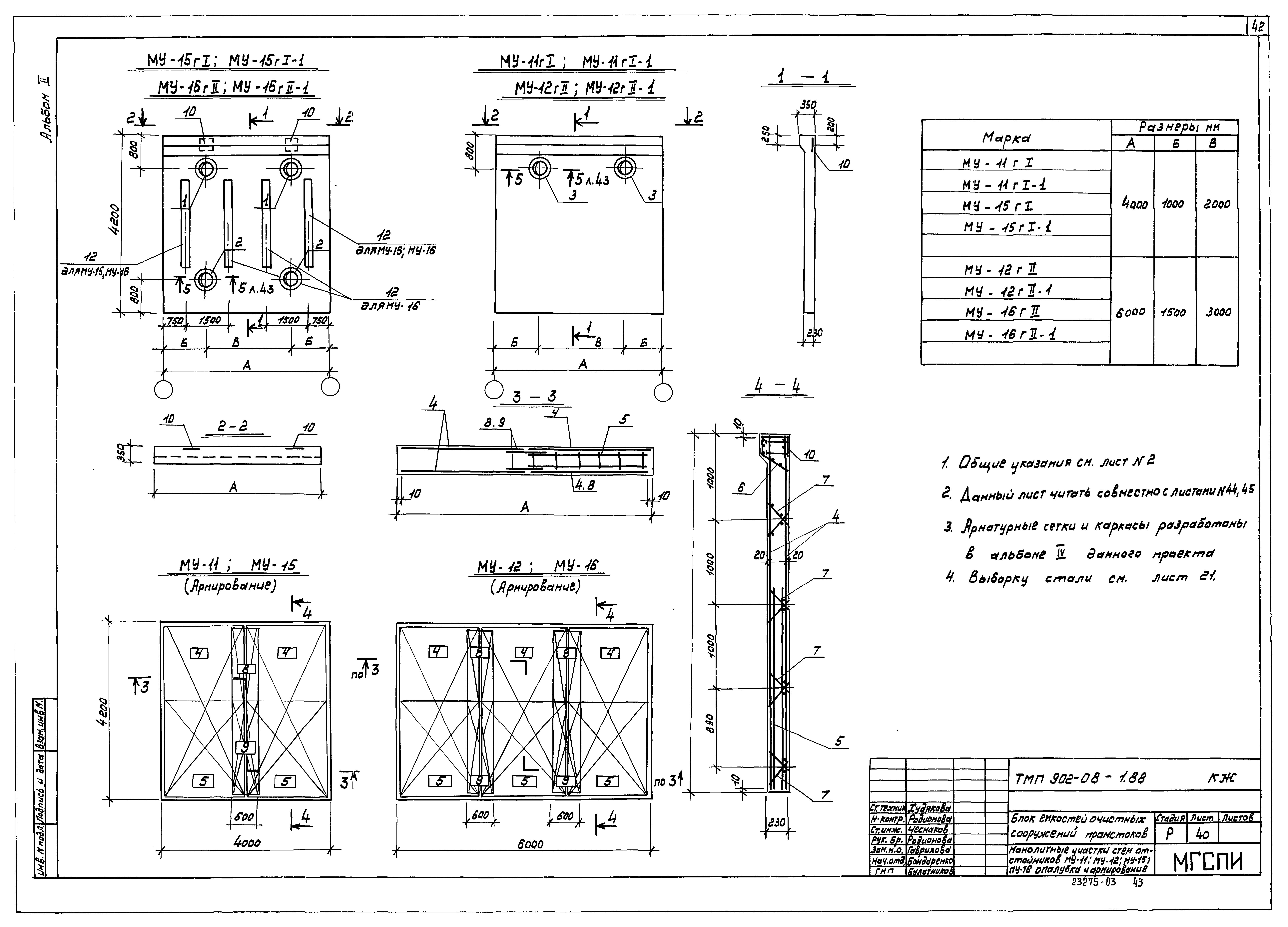
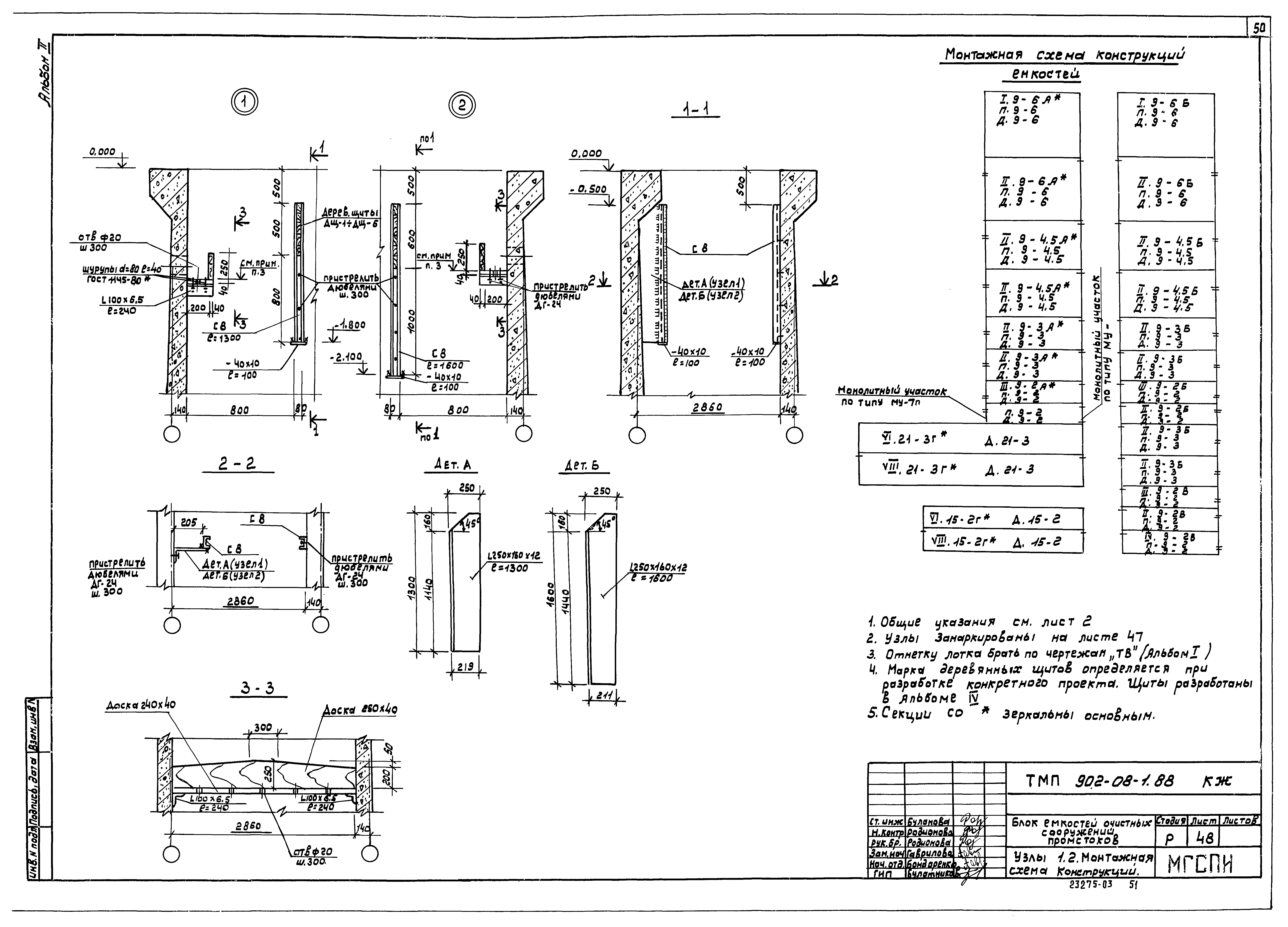
Альбом II. Конструкции железобетонныеОбозначение: | Типовые материалы для проектирования 902-08-1.88 | Обозначение англ: | 902-08-1.88 | Статус: | cправочные материалы, мп, тпр | Название рус.: | Альбом II. Конструкции железобетонные | Дата добавления в базу: | 01.09.2013 | Дата актуализации: | 05.05.2017 | Дата введения: | 25.04.1988 | Оглавление: | ТМП 902-08-188 Титульный лист ТМП 902-08-188 Содержание альбома ТМП 902-08-188-КЖ-1 Общие данные (начало) ТМП 902-08-188-КЖ-2 Общие данные (продолжение) ТМП 902-08-188-КЖ-3 Общие данные (окончание) ТМП 902-08-188-КЖ-4 Схемы секций стен блоков емкостей ТМП 902-08-188-КЖ-5 Схемы покрытий и днищ секций блоков емкостей ТМП 902-08-188-КЖ-6 Блокировка секций ТМП 902-08-188-КЖ-7 Монтажные схемы стен I.9-2÷V.9-2 ТМП 902-08-188-КЖ-8 Монтажные схемы стен I.9-3;II.9-3;V.9-3 ТМП 902-08-188-КЖ-9 Монтажные схемы стен I.9-4;II.9-4,5;V.9-4,5 ТМП 902-08-188-КЖ-10 Монтажные схемы стен I.9-6;II.9-6;V.9-6 ТМП 902-08-188-КЖ-11 Монтажные схемы стен VI.15-2÷VIII.15-2 ТМП 902-08-188-КЖ-12 Монтажные схемы стен VI.21-3÷VIII.21-3 ТМП 902-08-188-КЖ-13 Монтажные схемы стен I.12-4;II.12-4,5;V.12-4,5 ТМП 902-08-188-КЖ-14 Монтажные схемы стен I.12-6;II.12-6;V.12-6 ТМП 902-08-188-КЖ-15 Монтажные схемы стен VI.15-2÷VIII.15-2 ТМП 902-08-188-КЖ-16 Монтажные схемы стен VI.21-3÷VIII.21-3 ТМП 902-08-188-КЖ-17 Расход материалов на узлы стен. Спецификация узлов на схемы ТМП 902-08-188-КЖ-18 Спецификация узлов на схемы ТМП 902-08-188-КЖ-19 Спецификация узлов на схемы ТМП 902-08-188-КЖ-20 Спецификация узлов на схемы ТМП 902-08-188-КЖ-21 Выборка стали на монолитные участки ТМП 902-08-188-КЖ-22 Уплотнители осадка, усреднители. Резервуары запаса воды в=2.0 м. Покрытие к схемам ТМП 902-08-188-КЖ-23 Уплотнители осадка, усреднители. Резервуары запаса воды в=3.0 м. Покрытие к схемам ТМП 902-08-188-КЖ-24 Уплотнители осадка, усреднители. Резервуары запаса воды в=4.5 м. Покрытие к схемам ТМП 902-08-188-КЖ-25 Уплотнители осадка, усреднители. Резервуары запаса воды в=6.0 м. Покрытие к схемам 23-28 ТМП 902-08-188-КЖ-26 Опалубочные планы днищ секций емкостей (А,Б,В,Г) ТМП 902-08-188-КЖ-27 Армирование днищ секций емкостей Д.9-2;3, Д.12-2;3 ТМП 902-08-188-КЖ-28 Армирование днищ секций емкостей Д.9-4;5, Д.9-6 ТМП 902-08-188-КЖ-29 Армирование днищ секций емкостей Д.12-4;5, Д.12-6 ТМП 902-08-188-КЖ-30 Армирование днищ секций емкостей Д.15-2, Д.21-3 ТМП 902-08-188-КЖ-31 Монолитный участок стены МУ-1. Опалубка и армирование ТМП 902-08-188-КЖ-32 Монолитный участок стены МУ-2. Опалубка и армирование ТМП 902-08-188-КЖ-33 Монолитный участок стены МУ-3. Опалубка и армирование ТМП 902-08-188-КЖ-34 Монолитный участок стен МУ-4÷МУ-7 (опалубка) ТМП 902-08-188-КЖ-35 Монолитный участок стен МУ-4л÷МУ-7л (опалубка) ТМП 902-08-188-КЖ-36 Монолитный участок стен МУ-4,МУ-5,МУ-6 и МУ-7 (армирование) ТМП 902-08-188-КЖ-37 Монолитный участок стен МУ-4÷МУ-7л (армирование) ТМП 902-08-188-КЖ-38 Монолитный участок стен МУ-8. Опалубка. Армирование ТМП 902-08-188-КЖ-39 Монолитные участки стен отстойников МУ-8,МУ-10,МУ-13,МУ-14. Опалубка. Армирование ТМП 902-08-188-КЖ-40 Монолитные участки стен отстойников МУ-11,МУ-12,МУ-15,МУ-16. Опалубка. Армирование ТМП 902-08-188-КЖ-41 Спецификация изделий, материалов на монолитные участки стен (начало) ТМП 902-08-188-КЖ-42 Спецификация изделий, материалов на монолитные участки стен (окончание) ТМП 902-08-188-КЖ-43 Спецификация изделий, материалов на монолитные участки стен (начало) ТМП 902-08-188-КЖ-44 Спецификация изделий, материалов на монолитные участки стен (продолжение) ТМП 902-08-188-КЖ-45 Спецификация изделий, материалов на монолитные участки стен (окончание) ТМП 902-08-188-КЖ-46 Пример компоновки очистных сооружений. Планы ТМП 902-08-188-КЖ-47 Пример компоновки очистных сооружений. Разрезы ТМП 902-08-188-КЖ-48 Узлы 1,2 ТМП 902-08-188-КЖ-49 Монтажные схемы рельсовых путей отстойников | Разработан: | МГСПИ
| Утверждён: | 25.04.1988 Госстрой СССР (Государственный комитет Совета Министров СССР по делам строительства) (USSR Gosstroy 303)
| Расположен в: |
|
                                                  
|