Информационная система
«Ёшкин Кот»

Скачать базу одним архивом
Скачать обновления
История создания базы
Карта сайта

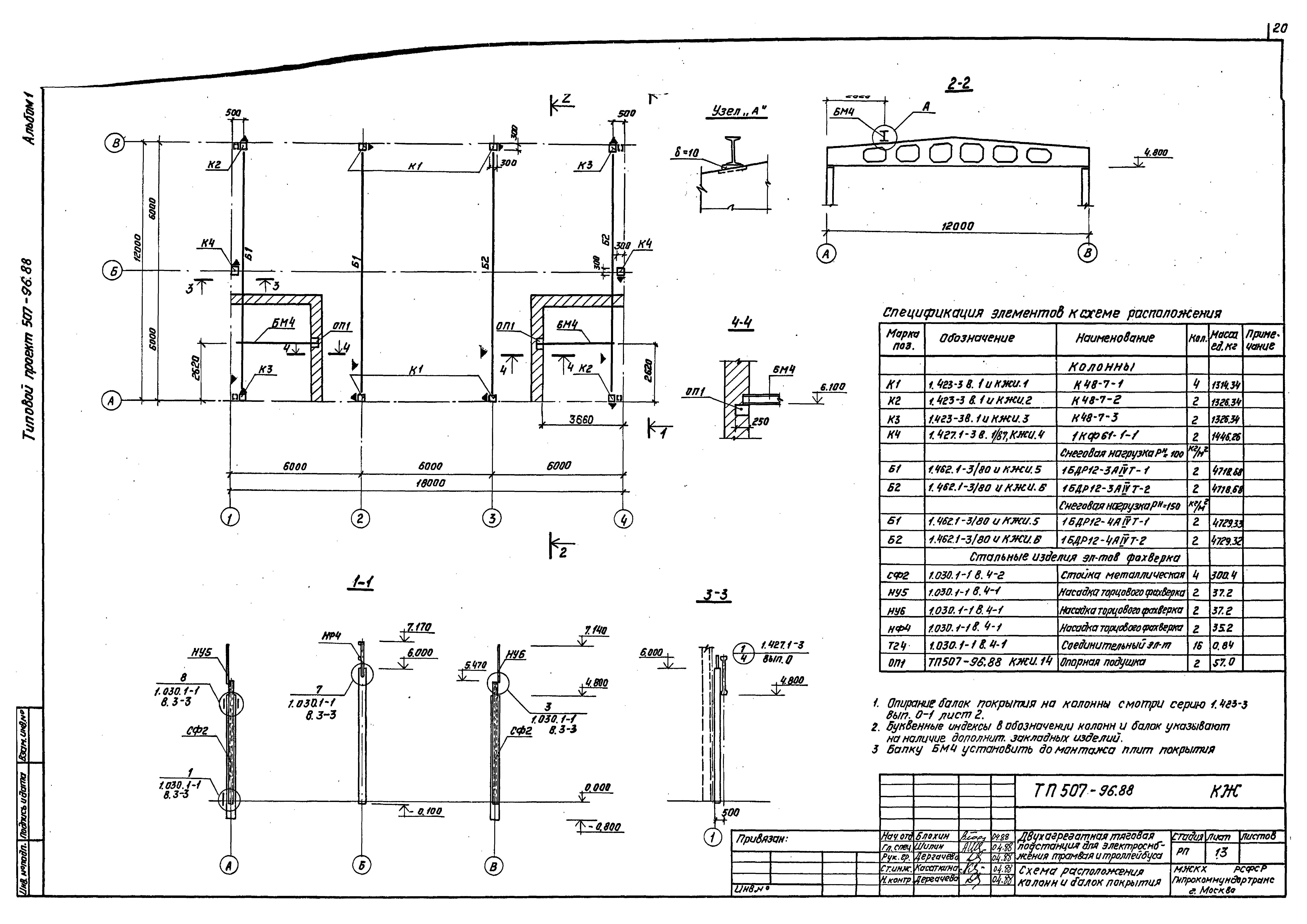
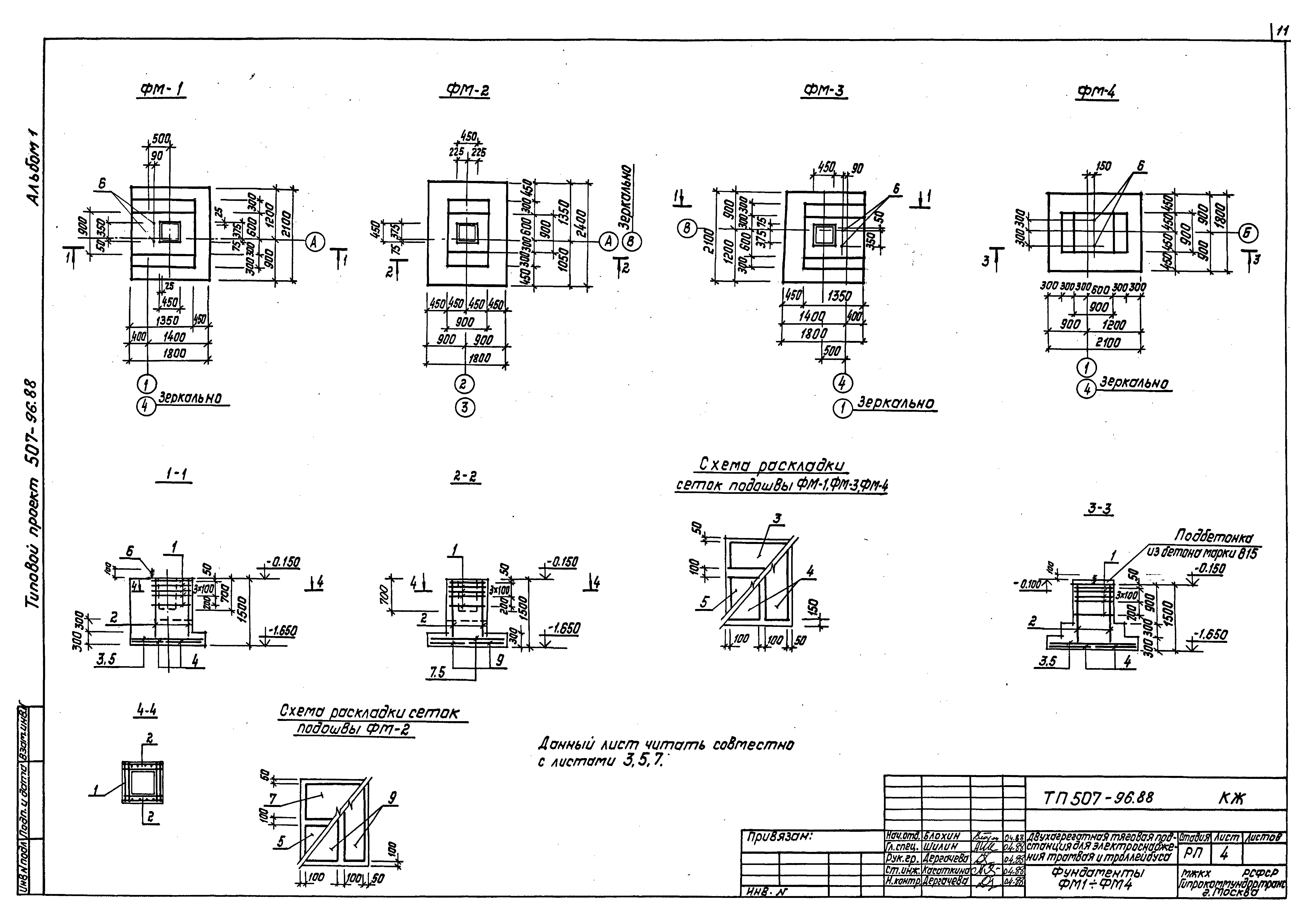
Скачать Типовой проект 507-96.88 Альбом 1. Пояснительная записка. Архитектурные решения. Конструкции железобетонные. Конструкции металлические. Внутренний водопровод и канализация. Отопление и вентиляция. Автоматизация отопления и вентиляции

Дата актуализации: 10.08.2017

Типовой проект 507-96.88

Альбом 1. Пояснительная записка. Архитектурные решения. Конструкции железобетонные. Конструкции металлические. Внутренний водопровод и канализация. Отопление и вентиляция. Автоматизация отопления и вентиляции

Обозначение: Типовой проект 507-96.88
Обозначение англ: 507-96.88
Статус:не определен законодательством
Название рус.:Альбом 1. Пояснительная записка. Архитектурные решения. Конструкции железобетонные. Конструкции металлические. Внутренний водопровод и канализация. Отопление и вентиляция. Автоматизация отопления и вентиляции
Дата добавления в базу:01.09.2013
Дата актуализации:05.05.2017
Дата введения:22.12.1988
Разработан: Гипрокоммундортранс Минжилкомхоза РСФСР
Утверждён:22.12.1988 Министерство жилищно-коммунального хозяйства РСФСР (350)
Расположен в:Техническая документация Строительство Справочные документы Типовые строительные конструкции, изделия и узлы Общероссийский строительный каталог Промышленные предприятия, здания и сооружения Предприятия, здания и сооружения транспорта Транспорт городской, кроме автомобильного
Типовой проект 507-96.88Типовой проект 507-96.88Типовой проект 507-96.88Типовой проект 507-96.88Типовой проект 507-96.88Типовой проект 507-96.88Типовой проект 507-96.88Типовой проект 507-96.88Типовой проект 507-96.88Типовой проект 507-96.88Типовой проект 507-96.88Типовой проект 507-96.88Типовой проект 507-96.88Типовой проект 507-96.88Типовой проект 507-96.88Типовой проект 507-96.88Типовой проект 507-96.88Типовой проект 507-96.88Типовой проект 507-96.88Типовой проект 507-96.88Типовой проект 507-96.88Типовой проект 507-96.88Типовой проект 507-96.88Типовой проект 507-96.88Типовой проект 507-96.88Типовой проект 507-96.88Типовой проект 507-96.88Типовой проект 507-96.88Типовой проект 507-96.88Типовой проект 507-96.88Типовой проект 507-96.88Типовой проект 507-96.88Типовой проект 507-96.88Типовой проект 507-96.88Типовой проект 507-96.88Типовой проект 507-96.88Типовой проект 507-96.88Типовой проект 507-96.88Типовой проект 507-96.88Типовой проект 507-96.88

© 2013 Ёшкин Кот :-) Карта сайта