Информационная система
«Ёшкин Кот»

Скачать базу одним архивом
Скачать обновления
История создания базы
Карта сайта

Скачать Типовой проект 501-6-24.12.88 Альбом II. Архитектурные решения. Конструкции железобетонные. Отопление и вентиляция. Внутренний водопровод и канализация. Электротехническая часть. Связь и сигнализация. Электроосвещение. Автоматизация

Дата актуализации: 10.08.2017

Типовой проект 501-6-24.12.88

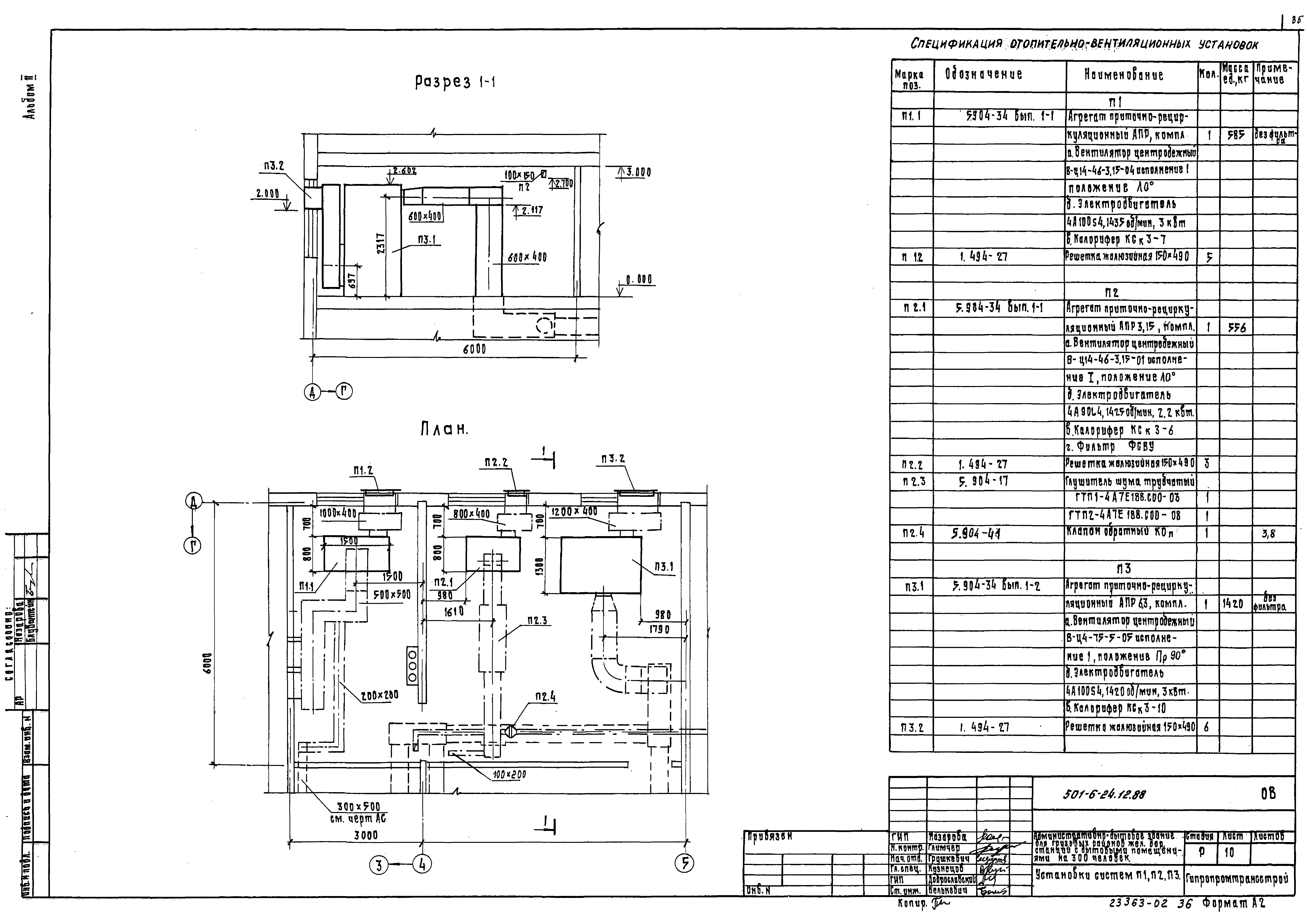
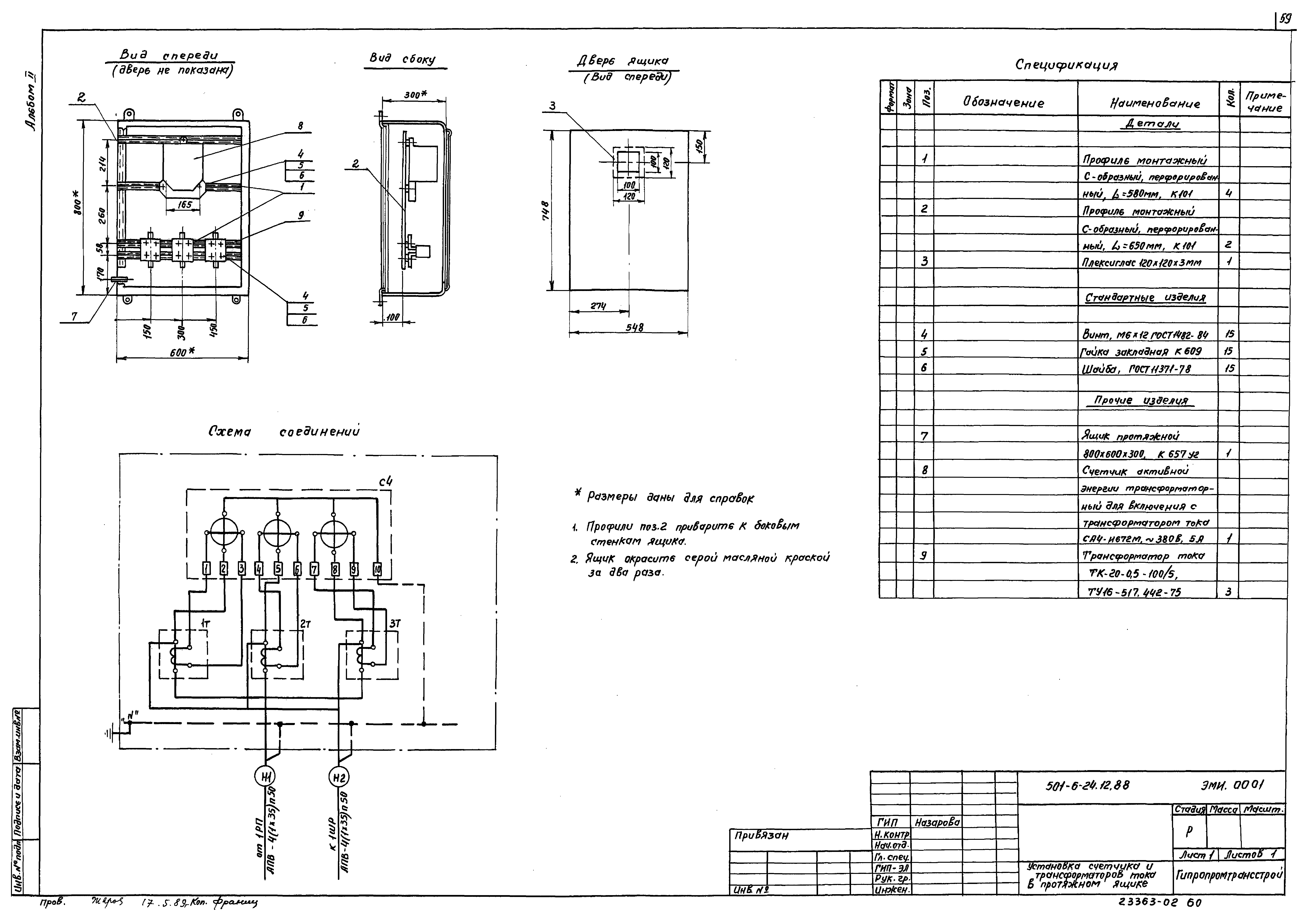
Альбом II. Архитектурные решения. Конструкции железобетонные. Отопление и вентиляция. Внутренний водопровод и канализация. Электротехническая часть. Связь и сигнализация. Электроосвещение. Автоматизация

Обозначение: Типовой проект 501-6-24.12.88
Обозначение англ: 501-6-24.12.88
Статус:не определен законодательством
Название рус.:Альбом II. Архитектурные решения. Конструкции железобетонные. Отопление и вентиляция. Внутренний водопровод и канализация. Электротехническая часть. Связь и сигнализация. Электроосвещение. Автоматизация
Дата добавления в базу:01.09.2013
Дата актуализации:05.05.2017
Дата введения:07.07.1988
Разработан: Гипротрансстрой
Утверждён:07.07.1988 МПС (Ministry of Railroads А-2356у)
Расположен в:Техническая документация Строительство Справочные документы Типовые строительные конструкции, изделия и узлы Общероссийский строительный каталог Промышленные предприятия, здания и сооружения Предприятия, здания и сооружения промышленности и электроэнергетики Ремонтные предприятия. Административно-бытовые, производственные и вспомогательные здания и сооружения промышленных предприятий Здания административно-бытовые, заводоуправления и конторы
Типовой проект 501-6-24.12.88Типовой проект 501-6-24.12.88Типовой проект 501-6-24.12.88Типовой проект 501-6-24.12.88Типовой проект 501-6-24.12.88Типовой проект 501-6-24.12.88Типовой проект 501-6-24.12.88Типовой проект 501-6-24.12.88Типовой проект 501-6-24.12.88Типовой проект 501-6-24.12.88Типовой проект 501-6-24.12.88Типовой проект 501-6-24.12.88Типовой проект 501-6-24.12.88Типовой проект 501-6-24.12.88Типовой проект 501-6-24.12.88Типовой проект 501-6-24.12.88Типовой проект 501-6-24.12.88Типовой проект 501-6-24.12.88Типовой проект 501-6-24.12.88Типовой проект 501-6-24.12.88Типовой проект 501-6-24.12.88Типовой проект 501-6-24.12.88Типовой проект 501-6-24.12.88Типовой проект 501-6-24.12.88Типовой проект 501-6-24.12.88Типовой проект 501-6-24.12.88Типовой проект 501-6-24.12.88Типовой проект 501-6-24.12.88Типовой проект 501-6-24.12.88Типовой проект 501-6-24.12.88Типовой проект 501-6-24.12.88Типовой проект 501-6-24.12.88Типовой проект 501-6-24.12.88Типовой проект 501-6-24.12.88Типовой проект 501-6-24.12.88Типовой проект 501-6-24.12.88Типовой проект 501-6-24.12.88Типовой проект 501-6-24.12.88Типовой проект 501-6-24.12.88Типовой проект 501-6-24.12.88Типовой проект 501-6-24.12.88Типовой проект 501-6-24.12.88Типовой проект 501-6-24.12.88Типовой проект 501-6-24.12.88Типовой проект 501-6-24.12.88Типовой проект 501-6-24.12.88Типовой проект 501-6-24.12.88Типовой проект 501-6-24.12.88Типовой проект 501-6-24.12.88Типовой проект 501-6-24.12.88Типовой проект 501-6-24.12.88Типовой проект 501-6-24.12.88Типовой проект 501-6-24.12.88Типовой проект 501-6-24.12.88Типовой проект 501-6-24.12.88Типовой проект 501-6-24.12.88Типовой проект 501-6-24.12.88Типовой проект 501-6-24.12.88Типовой проект 501-6-24.12.88Типовой проект 501-6-24.12.88Типовой проект 501-6-24.12.88Типовой проект 501-6-24.12.88Типовой проект 501-6-24.12.88Типовой проект 501-6-24.12.88Типовой проект 501-6-24.12.88Типовой проект 501-6-24.12.88Типовой проект 501-6-24.12.88Типовой проект 501-6-24.12.88Типовой проект 501-6-24.12.88Типовой проект 501-6-24.12.88Типовой проект 501-6-24.12.88Типовой проект 501-6-24.12.88Типовой проект 501-6-24.12.88Типовой проект 501-6-24.12.88Типовой проект 501-6-24.12.88Типовой проект 501-6-24.12.88Типовой проект 501-6-24.12.88Типовой проект 501-6-24.12.88Типовой проект 501-6-24.12.88Типовой проект 501-6-24.12.88Типовой проект 501-6-24.12.88Типовой проект 501-6-24.12.88Типовой проект 501-6-24.12.88Типовой проект 501-6-24.12.88Типовой проект 501-6-24.12.88Типовой проект 501-6-24.12.88Типовой проект 501-6-24.12.88Типовой проект 501-6-24.12.88

© 2013 Ёшкин Кот :-) Карта сайта