Информационная система
«Ёшкин Кот»

Скачать базу одним архивом
Скачать обновления
История создания базы
Карта сайта

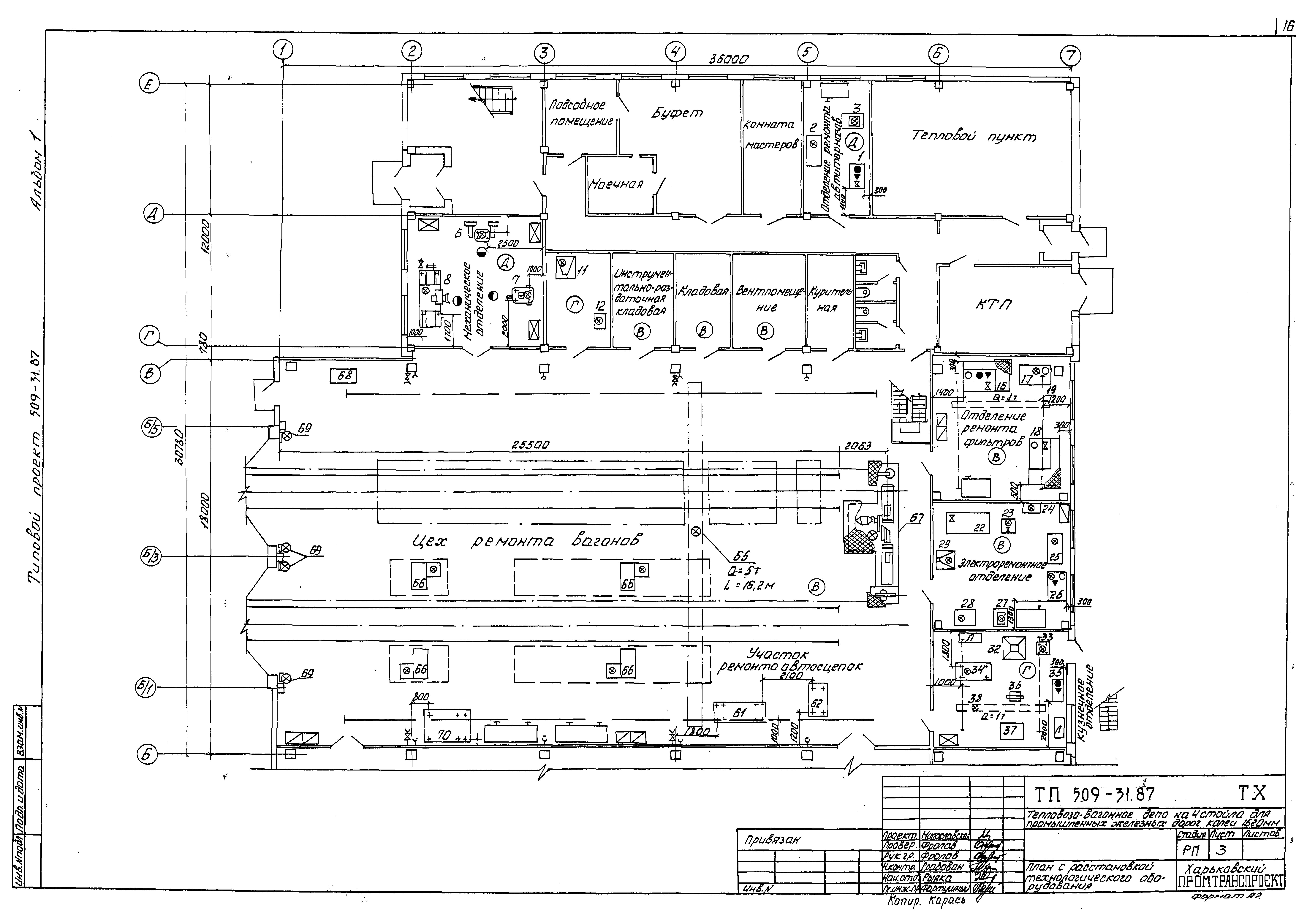
Скачать Типовой проект 509-31.87 Альбом 1. Общая пояснительная записка. Технология производства

Дата актуализации: 10.08.2017

Типовой проект 509-31.87

Альбом 1. Общая пояснительная записка. Технология производства

Обозначение: Типовой проект 509-31.87
Обозначение англ: 509-31.87
Статус:не определен законодательством
Название рус.:Альбом 1. Общая пояснительная записка. Технология производства
Дата добавления в базу:01.09.2013
Дата актуализации:05.05.2017
Дата введения:11.08.1987
Разработан: Харьковский Промстройниипроект
Утверждён:11.08.1987 Госстрой СССР (Государственный комитет Совета Министров СССР по делам строительства) (USSR Gosstroy 44)
Расположен в:Техническая документация Строительство Справочные документы Типовые строительные конструкции, изделия и узлы Общероссийский строительный каталог Промышленные предприятия, здания и сооружения Предприятия, здания и сооружения транспорта Транспорт промпредприятий железнодорожный
Типовой проект 509-31.87Типовой проект 509-31.87Типовой проект 509-31.87Типовой проект 509-31.87Типовой проект 509-31.87Типовой проект 509-31.87Типовой проект 509-31.87Типовой проект 509-31.87Типовой проект 509-31.87Типовой проект 509-31.87Типовой проект 509-31.87Типовой проект 509-31.87Типовой проект 509-31.87Типовой проект 509-31.87Типовой проект 509-31.87Типовой проект 509-31.87Типовой проект 509-31.87Типовой проект 509-31.87Типовой проект 509-31.87

© 2013 Ёшкин Кот :-) Карта сайта