Информационная система
«Ёшкин Кот»

Скачать базу одним архивом
Скачать обновления
История создания базы
Карта сайта

Скачать Серия 1.465-11 Выпуск 1. Плиты покрытий с деревянным каркасом. Рабочие чертежи

Дата актуализации: 10.08.2017

Серия 1.465-11

Выпуск 1. Плиты покрытий с деревянным каркасом. Рабочие чертежи

Обозначение: Серия 1.465-11
Обозначение англ: Series 1.465-11
Статус:не действует
Название рус.:Выпуск 1. Плиты покрытий с деревянным каркасом. Рабочие чертежи
Дата добавления в базу:01.09.2013
Дата актуализации:05.05.2017
Оглавление:1.465-11 Пояснительная записка
1.465-11 Номенклатура плит покрытий с деревянным каркасом
1.465-11 Плиты АКПД-1,АКПД-2
1.465-11 Плиты АКПД-3,АКПД-4
1.465-11 Плиты АКПД-5,АКПД-6
1.465-11 Плиты АКПД-7,АКПД-8
1.465-11 Плиты АКПД-9,АКПД-10
1.465-11 Плиты АКПД-11,АКПД-12
1.465-11 Плиты АКПД-13,АКПД-14
1.465-11 Детали А,Б,В,Г
1.465-11 Детали Д,Е,Ж,И,К
1.465-11 Раскрой асбестоцементных листов с разбивкой отверстий под шурупы
1.465-11 Элементы деревянных каркасов
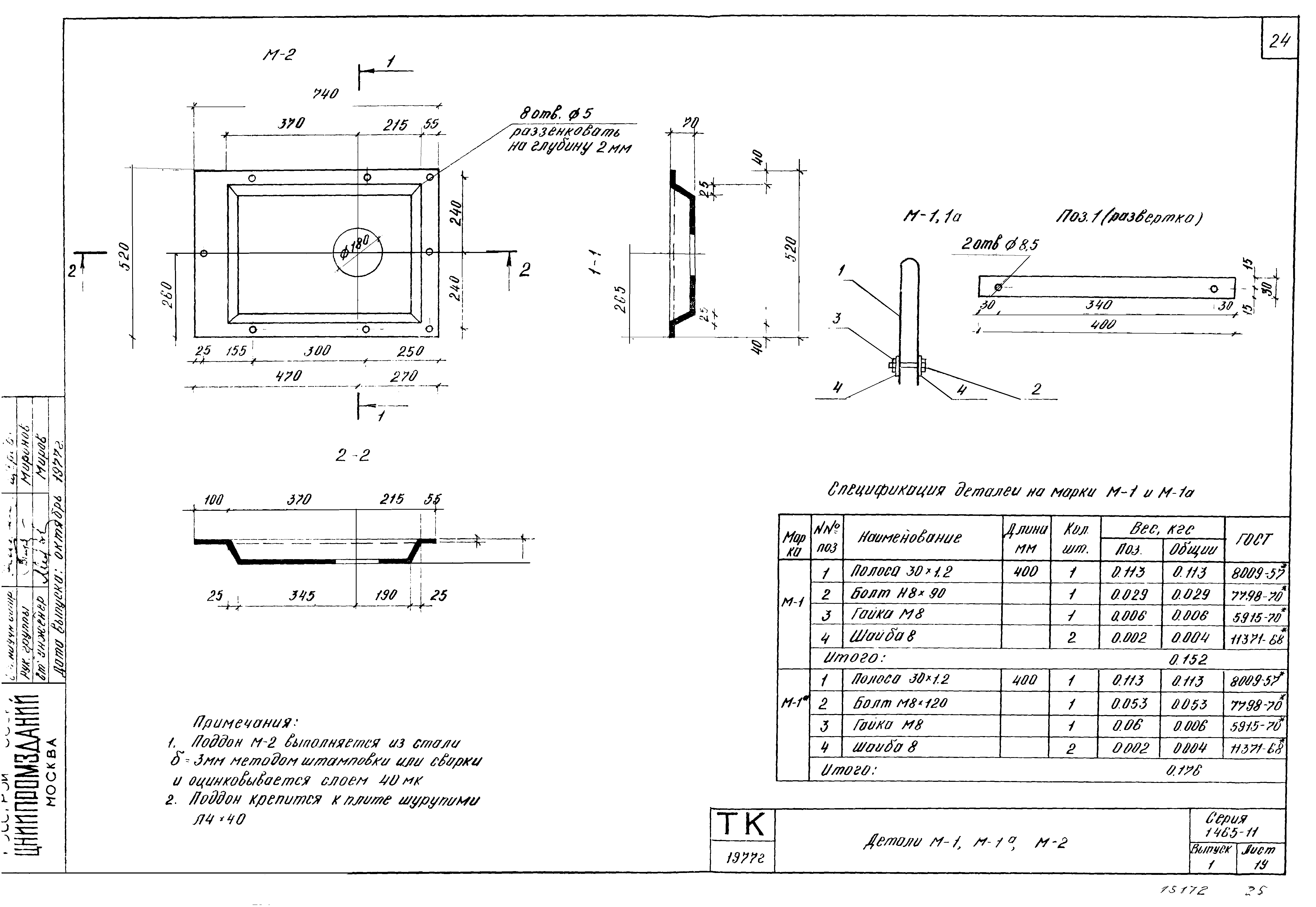
1.465-11 Детали М-1,М-1а,М-2
1.465-11 Детали М-3,М-3а
1.465-11 Спецификация металлических изделий
Разработан: ЦНИИСК им. В.А. Кучеренко
ЦНИИпромзданий
НИИСФ
Утверждён: Госстрой СССР (Государственный комитет Совета Министров СССР по делам строительства) (USSR Gosstroy )
Расположен в:Техническая документация Строительство Справочные документы Типовые строительные конструкции, изделия и узлы Общероссийский строительный каталог Строительные конструкции, изделия и узлы зданий и сооружений для всех видов строительства Конструкции, изделия и узлы зданий Ограждающие конструкции Покрытия Панели из профилированного листа, плиты и кровля из других материалов
Серия 1.465-11Серия 1.465-11Серия 1.465-11Серия 1.465-11Серия 1.465-11Серия 1.465-11Серия 1.465-11Серия 1.465-11Серия 1.465-11Серия 1.465-11Серия 1.465-11Серия 1.465-11Серия 1.465-11Серия 1.465-11Серия 1.465-11Серия 1.465-11Серия 1.465-11Серия 1.465-11Серия 1.465-11Серия 1.465-11Серия 1.465-11Серия 1.465-11Серия 1.465-11Серия 1.465-11Серия 1.465-11Серия 1.465-11Серия 1.465-11Серия 1.465-11

© 2013 Ёшкин Кот :-) Карта сайта