Скачать Серия 1.431.9-29с Выпуск 0. Материалы для проектированияДата актуализации: 10.08.2017 Серия 1.431.9-29с
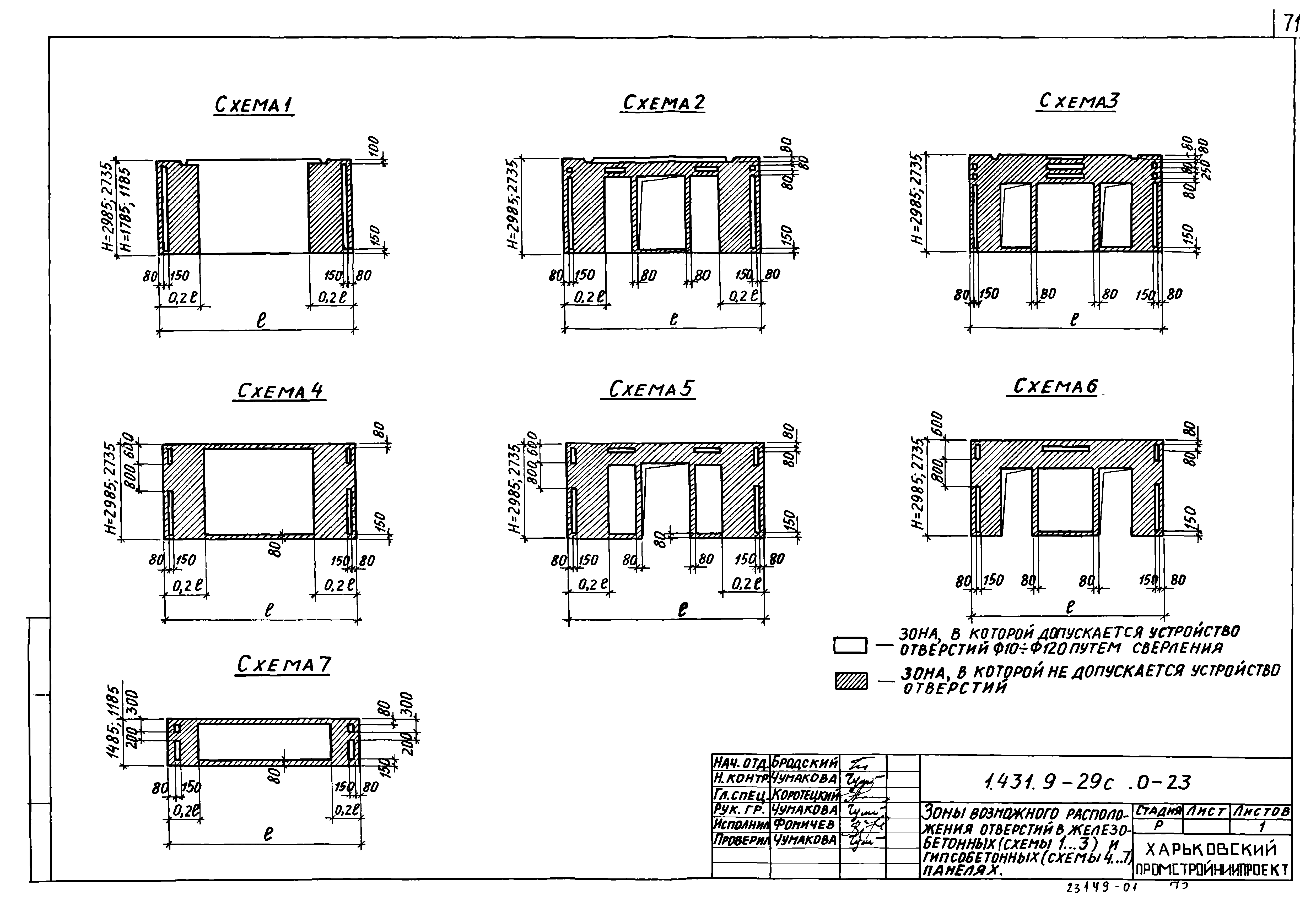
Выпуск 0. Материалы для проектированияОбозначение: | Серия 1.431.9-29с | Обозначение англ: | Series 1.431.9-29с | Статус: | не действует | Название рус.: | Выпуск 0. Материалы для проектирования | Дата добавления в базу: | 01.09.2013 | Дата актуализации: | 05.05.2017 | Дата введения: | 01.12.1991 | Область применения: | Конструкции перегородок данной серии разработаны для многоэтажных производственных зданий с каркасом по серии ИИС-20 с сеткой колонн 6х6 м; 9х6 м с высотами этажей 3,6; 4,8; 6,0; 7,2 м и серии 1.020.1-2с с сетками колонн 6х6 м; (6+3+6)х6 м; 9х6; (9+3+9)х6 м и высотами этажей 3,3; 3,6; 4,2; 4,8; 5,4; 6,0 м, возводимых в районах сейсмичностью 7, 8 и 9 баллов и ветровой нагрузкой для I - районов по скоростному напору ветра | Оглавление: | 1.431.9-29с.0-00ПЗ Пояснительная записка 1.431.9-29с.0-01 Способы антикоррозионной защиты панелей перегородок 1.431.9-29с.0-02 Материалы для отделки панелей перегородок 1.431.9-29с.0-03 Таблица габаритных размеров железобетонных панелей перегородок, принятых по серии 1.030.9-2 1.431.9-29с.0-04 Таблица габаритных размеров гипсобетонных панелей перегородок, принятых по серии 1.030.9-2 1.431.9-29с.0-05 Номенклатура железобетонных панелей перегородок, принятых по серии 1.030.9-2 1.431.9-29с.0-06 Номенклатура гипсобетонных панелей перегородок, принятых по серии 1.030.9-2 1.431.9-29с.0-07 Таблица маркировки гипсобетонных панелей с вырезами 1.431.9-29с.0-08 Ключ для подбора стальных колонн фахверка перегородок многоэтажных зданий промышленных предприятий для первого этажа 1.431.9-29с.0-09 Ключ для подбора стальных колонн фахверка перегородок многоэтажных зданий промышленных предприятий для среднего и верхнего этажа 1.431.9-29с.0-10 Номенклатура стальных колонн фахверка 1.431.9-29с.0-11 Величины опорных реакций фахверковых стоек при особом сочетании нагрузок 1.431.9-29с.0-12 Примеры решения перегородок зданий с каркасом по серии ИИС-20. Перекрытие типа 1. Высота этажа 3.6 м 1.431.9-29с.0-13 Примеры решения перегородок зданий с каркасом по серии ИИС-20. Перекрытие типа 1. Высота этажа 4.8 м 1.431.9-29с.0-14 Примеры решения перегородок зданий с каркасом по серии ИИС-20. Перекрытие типа 2. Высота этажа 4.8 м 1.431.9-29с.0-15 Примеры решения перегородок зданий с каркасом по серии 1.020.1-2с. Перекрытие из многопустотных панелей. Высота этажа 3.3 м 1.431.9-29с.0-16 Примеры решения перегородок зданий с каркасом по серии 1.020.1-2с. Перекрытие из многопустотных панелей. Высота этажа 3.6 м 1.431.9-29с.0-17 Примеры решения перегородок зданий с каркасом по серии 1.020.1-2с. Перекрытие из многопустотных панелей. Высота этажа 4.2 м 1.431.9-29с.0-18 Примеры решения перегородок зданий с каркасом по серии 1.020.1-2с. Перекрытие из многопустотных панелей. Высота этажа 4.8 м 1.431.9-29с.0-19 Примеры решения перегородок зданий с каркасом по серии 1.020.1-2с. Перекрытие из многопустотных панелей. Высота этажа 6.0 м 1.431.9-29с.0-20 Примеры решения перегородок зданий с каркасом по серии 1.020.1-2с. Перекрытие из ребристых плит. Высота этажа 3.6 м 1.431.9-29с.0-21 Примеры решения перегородок зданий с каркасом по серии 1.020.1-2с. Перекрытие из ребристых плит. Высота этажа 4.2 м 1.431.9-29с.0-22 Примеры решения перегородок зданий с каркасом по серии 1.020.1-2с. Перекрытие из ребристых плит. Высота этажа 4.8 м 1.431.9-29с.0-23 Зоны возможного расположения отверстий в железобетонных (схемы 1...3) и гипсобетонных (схемы 4...7) панелях 1.431.9-29с.0-24 Примеры крепления кронштейнов к панелям перегородок 1.431.9-29с.0-25 Детали А, Б, В, Г, Д, Е, Ж, И, К 1.431.9-29с.0-26 Железобетонные подушки ОП4...ОП7 | Разработан: | ЦНИИпромзданий Харьковский Промстройниипроект Узгипротяжпром
| Утверждён: | 07.01.1988 Госстрой СССР (Государственный комитет Совета Министров СССР по делам строительства) (USSR Gosstroy 6/6-31)
| Расположен в: |
| Нормативные ссылки: | |
                                                                             
|