Информационная система
«Ёшкин Кот»

Скачать базу одним архивом
Скачать обновления
История создания базы
Карта сайта

Скачать Типовой проект 902-2-44 Альбом I. Технологическая часть

Дата актуализации: 10.08.2017

Типовой проект 902-2-44

Альбом I. Технологическая часть

Обозначение: Типовой проект 902-2-44
Обозначение англ: 902-2-44
Статус:не действует
Название рус.:Альбом I. Технологическая часть
Дата добавления в базу:01.09.2013
Дата актуализации:05.05.2017
Оглавление:ТП 902-2-44-ПЗ-1-5 Пояснительная записка
ТП 902-2-44-ТМ-1 Монтажный чертеж. План, разрезы
ТП 902-2-44-ТМ-2 Узлы с сальниковыми уплотнениями. Спецификация
ТП 902-2-44-ТМ-3 Распределительная труба. Монтажный чертеж
ТП 902-2-44-ОВ-1 Электрощитовая. Отопление. Планы и схемы. Теплоносители: пар 1,5-2 ати и перегретая вода 150º-70º
ТП 902-2-44-ЭЛ-1 Спецификация
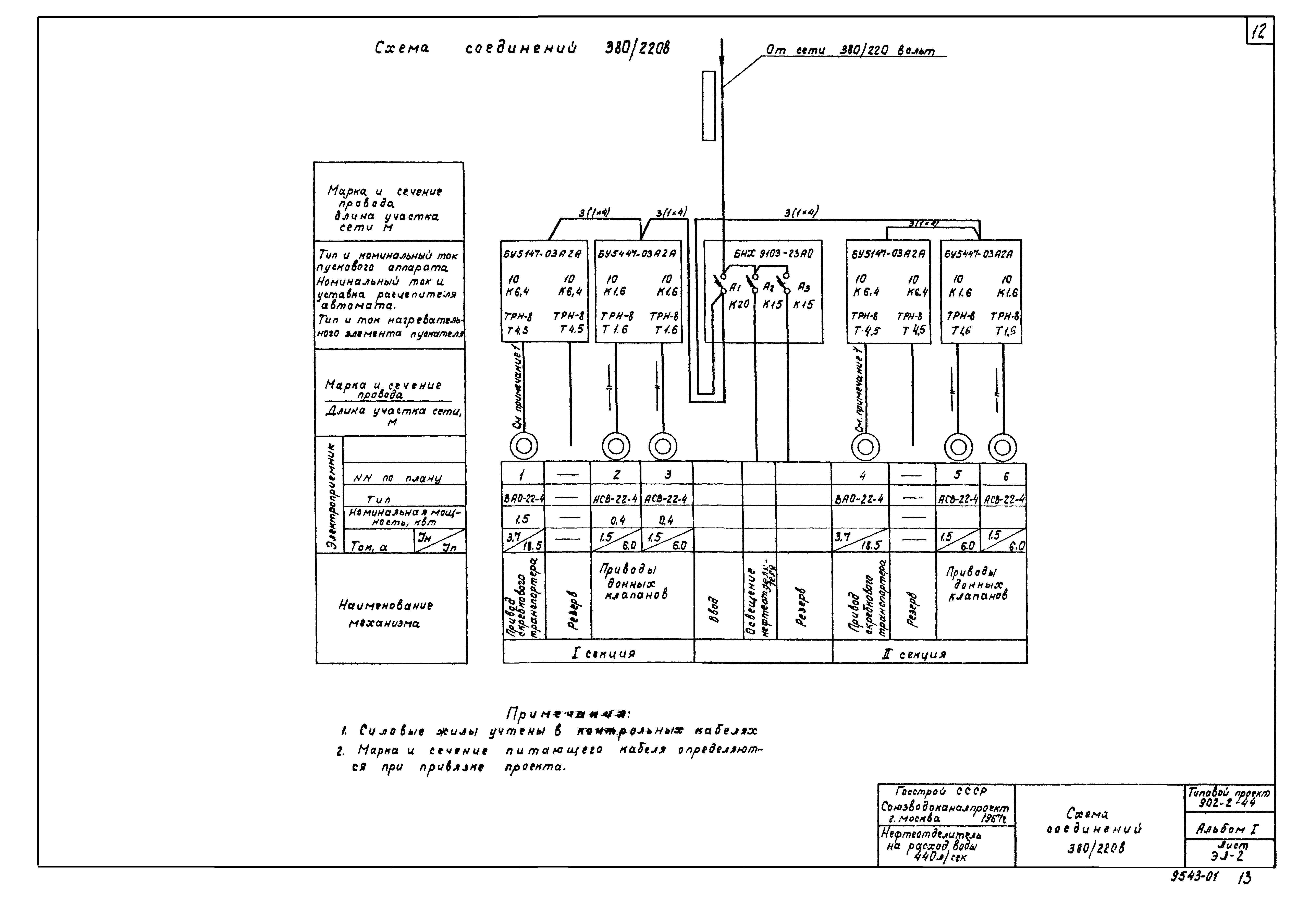
ТП 902-2-44-ЭЛ-2 Схема соединений 380/220 В
ТП 902-2-44-ЭЛ-3 Схема управления скребковым транспортером № 1(4) и донным клапаном №2(3,5,6)
ТП 902-2-44-ЭЛ-4 Щит станций управления ЩСУ. Общий вид
ТП 902-2-44-ЭЛ-5 Щит станций управления ЩСУ. Монтажная схема панелей 1, 2
ТП 902-2-44-ЭЛ-6 Пост местного управления 1ПМУ(4ПМУ). Общий вид. Монтажная схема
ТП 902-2-44-ЭЛ-7 Схема внешних соединений. Пост местного управления ГПМУ (3,5,6 ПМУ). Общий вид. Монтажная схема
ТП 902-2-44-ЭЛ-8 Кабельный журнал
ТП 902-2-44-ЭЛ-9 Расположение электрооборудования и прокладка труб и кабелей
ТП 902-2-44-ЭЛ-10 Электрическое освещение
ТП 902-2-44-ЭО-1-3 Задание заводу-изготовителю на щит станций управления ЩСУ
Разработан: Союзводоканалниипроект
Утверждён:07.12.1967 СоюзводоканалНИИпроект (SoyuzvodokanalNIIproject 251)
Расположен в:Техническая документация Строительство Справочные документы Типовые строительные конструкции, изделия и узлы Общероссийский строительный каталог Промышленные предприятия, здания и сооружения Здания и сооружения санитарно-технические Канализация Сооружения для очистки производственных сточных вод Флотаторы
Типовой проект 902-2-44Типовой проект 902-2-44Типовой проект 902-2-44Типовой проект 902-2-44Типовой проект 902-2-44Типовой проект 902-2-44Типовой проект 902-2-44Типовой проект 902-2-44Типовой проект 902-2-44Типовой проект 902-2-44Типовой проект 902-2-44Типовой проект 902-2-44Типовой проект 902-2-44Типовой проект 902-2-44Типовой проект 902-2-44Типовой проект 902-2-44Типовой проект 902-2-44Типовой проект 902-2-44Типовой проект 902-2-44Типовой проект 902-2-44Типовой проект 902-2-44Типовой проект 902-2-44Типовой проект 902-2-44Типовой проект 902-2-44Типовой проект 902-2-44Типовой проект 902-2-44

© 2013 Ёшкин Кот :-) Карта сайта