Скачать Серия 1.494-1 Вытяжные центральные шахты с осевыми вентиляторами общей производительностью до 0,5 млн. куб. м/ч на покрытиях промышленных зданий. Рабочие чертежиДата актуализации: 10.08.2017 Серия 1.494-1
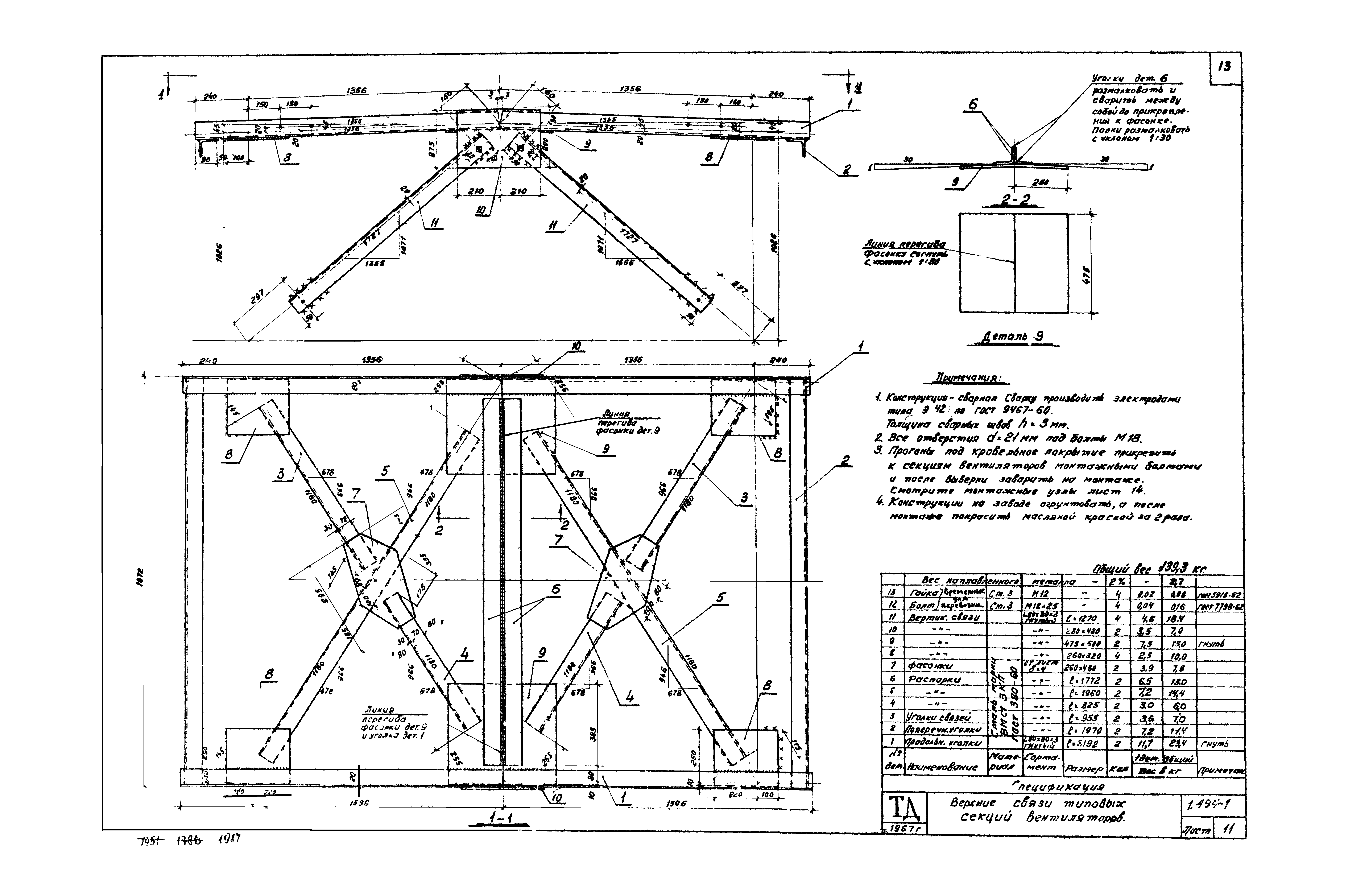
Вытяжные центральные шахты с осевыми вентиляторами общей производительностью до 0,5 млн. куб. м/ч на покрытиях промышленных зданий. Рабочие чертежиОбозначение: | Серия 1.494-1 | Обозначение англ: | Series 1.494-1 | Статус: | не действует | Название рус.: | Вытяжные центральные шахты с осевыми вентиляторами общей производительностью до 0,5 млн. куб. м/ч на покрытиях промышленных зданий. Рабочие чертежи | Дата добавления в базу: | 01.09.2013 | Дата актуализации: | 05.05.2017 | Дата введения: | 29.03.1968 | Дата окончания срока действия: | 01.04.1977 | Оглавление: | 1.494-1 Предисловие и общие указания 1.494-1 Чертежи 1.494-1 Центральная вытяжная шахта размером 3х6 м на покрытии здания (перспектива) 1.494-1 Центральная вытяжная шахта размером 3х6 м с осевыми вентиляторами типа "У" №16. Общий вид 1.494-1 Типовая секция с осевым вентилятором типа "У" № 16. Общий вид 1.494-1 Типовая секция с осевым вентилятором типа "У" № 16. Установка электродвигателя 1.494-1 Типовая секция с осевым вентилятором типа "У" № 16. Детали 1.494-1 Монтажная схема компоновки типовых секций с осевыми вентиляторами типа "У" №16 1.494-1 Металлический каркас для типовой секции вентилятора. Общий вид 1.494-1 Металлическая рама для типовой секции вентилятора 1.494-1 Опорная рама вытяжной шахты 1.494-1 Детали рамы 1.494-1 Верхние связи типовых секций вентиляторов 1.494-1 Щиты торцевых стенок вытяжной шахты 1.494-1 Детали перекрытия шахты, решетка настила с сеткой 1.494-1 Монтажные узлы 1.494-1 Виброизолятор цилиндрический пружинного типа 1.494-1 Центральная вытяжная шахта. Узлы 1 и 2 | Разработан: | ЦНИИпромзданий
| Утверждён: | 10.01.1968 Главпромстройпроект Госстроя СССР (3/5-194)
| Расположен в: |
|
                  
|