Информационная система
«Ёшкин Кот»

Скачать базу одним архивом
Скачать обновления
История создания базы
Карта сайта

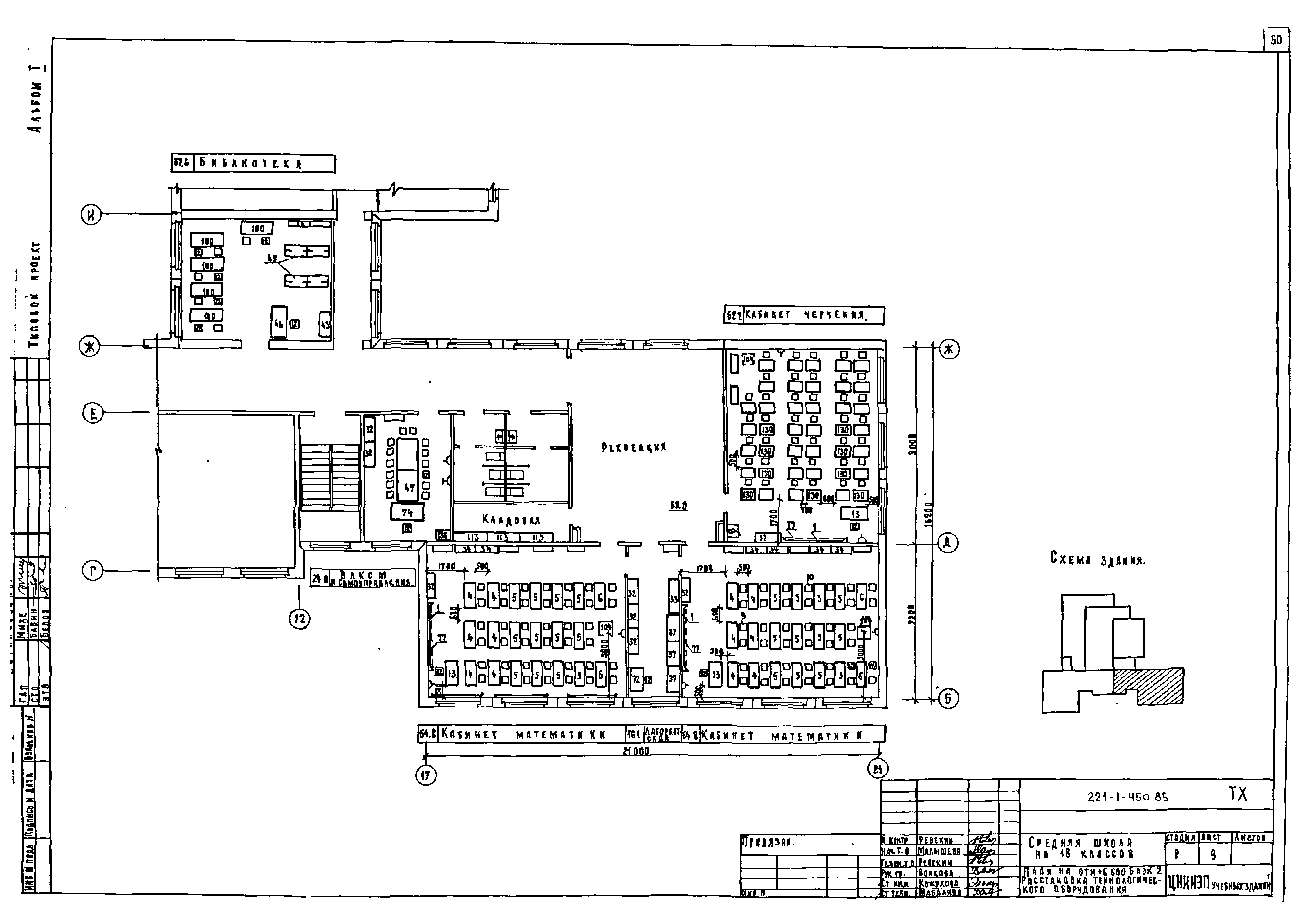
Скачать Типовой проект 221-1-450.85 Альбом I. Архитектурно-строительные и технологические чертежи

Дата актуализации: 10.08.2017

Типовой проект 221-1-450.85

Альбом I. Архитектурно-строительные и технологические чертежи

Обозначение: Типовой проект 221-1-450.85
Обозначение англ: 221-1-450.85
Статус:не определен законодательством
Название рус.:Альбом I. Архитектурно-строительные и технологические чертежи
Дата добавления в базу:01.09.2013
Дата актуализации:05.05.2017
Дата введения:12.12.1985
Разработан: ЦНИИЭП учебных зданий Госгражданстроя
Утверждён:19.08.1983 Госгражданстрой (Gosgrazhdanstroy 243)
Расположен в:Техническая документация Строительство Справочные документы Типовые строительные конструкции, изделия и узлы Общероссийский строительный каталог Защитные сооружения гражданской обороны Типовые проекты защитных сооружений гражданской обороны для жилищно-гражданского строительства Для строительства в сельской местности Встроенные помещения, приспосабливаемые под противорадиационные укрытия в общественных зданиях Противорадиационные укрытия в школах и внешкольных учреждениях Общественные здания для строительства в сельской местности Школы и внешкольные учреждения Общеобразовательные школы
Типовой проект 221-1-450.85Типовой проект 221-1-450.85Типовой проект 221-1-450.85Типовой проект 221-1-450.85Типовой проект 221-1-450.85Типовой проект 221-1-450.85Типовой проект 221-1-450.85Типовой проект 221-1-450.85Типовой проект 221-1-450.85Типовой проект 221-1-450.85Типовой проект 221-1-450.85Типовой проект 221-1-450.85Типовой проект 221-1-450.85Типовой проект 221-1-450.85Типовой проект 221-1-450.85Типовой проект 221-1-450.85Типовой проект 221-1-450.85Типовой проект 221-1-450.85Типовой проект 221-1-450.85Типовой проект 221-1-450.85Типовой проект 221-1-450.85Типовой проект 221-1-450.85Типовой проект 221-1-450.85Типовой проект 221-1-450.85Типовой проект 221-1-450.85Типовой проект 221-1-450.85Типовой проект 221-1-450.85Типовой проект 221-1-450.85Типовой проект 221-1-450.85Типовой проект 221-1-450.85Типовой проект 221-1-450.85Типовой проект 221-1-450.85Типовой проект 221-1-450.85Типовой проект 221-1-450.85Типовой проект 221-1-450.85Типовой проект 221-1-450.85Типовой проект 221-1-450.85Типовой проект 221-1-450.85Типовой проект 221-1-450.85Типовой проект 221-1-450.85Типовой проект 221-1-450.85Типовой проект 221-1-450.85Типовой проект 221-1-450.85Типовой проект 221-1-450.85Типовой проект 221-1-450.85Типовой проект 221-1-450.85Типовой проект 221-1-450.85Типовой проект 221-1-450.85Типовой проект 221-1-450.85Типовой проект 221-1-450.85Типовой проект 221-1-450.85Типовой проект 221-1-450.85Типовой проект 221-1-450.85Типовой проект 221-1-450.85Типовой проект 221-1-450.85

© 2013 Ёшкин Кот :-) Карта сайта