Скачать Типовой проект 902-2-260 Альбом II. Блок емкостей. Строительная часть. Опалубка и армирование днища. Монтажные схемы. ВыборкиДата актуализации: 10.08.2017 Типовой проект 902-2-260
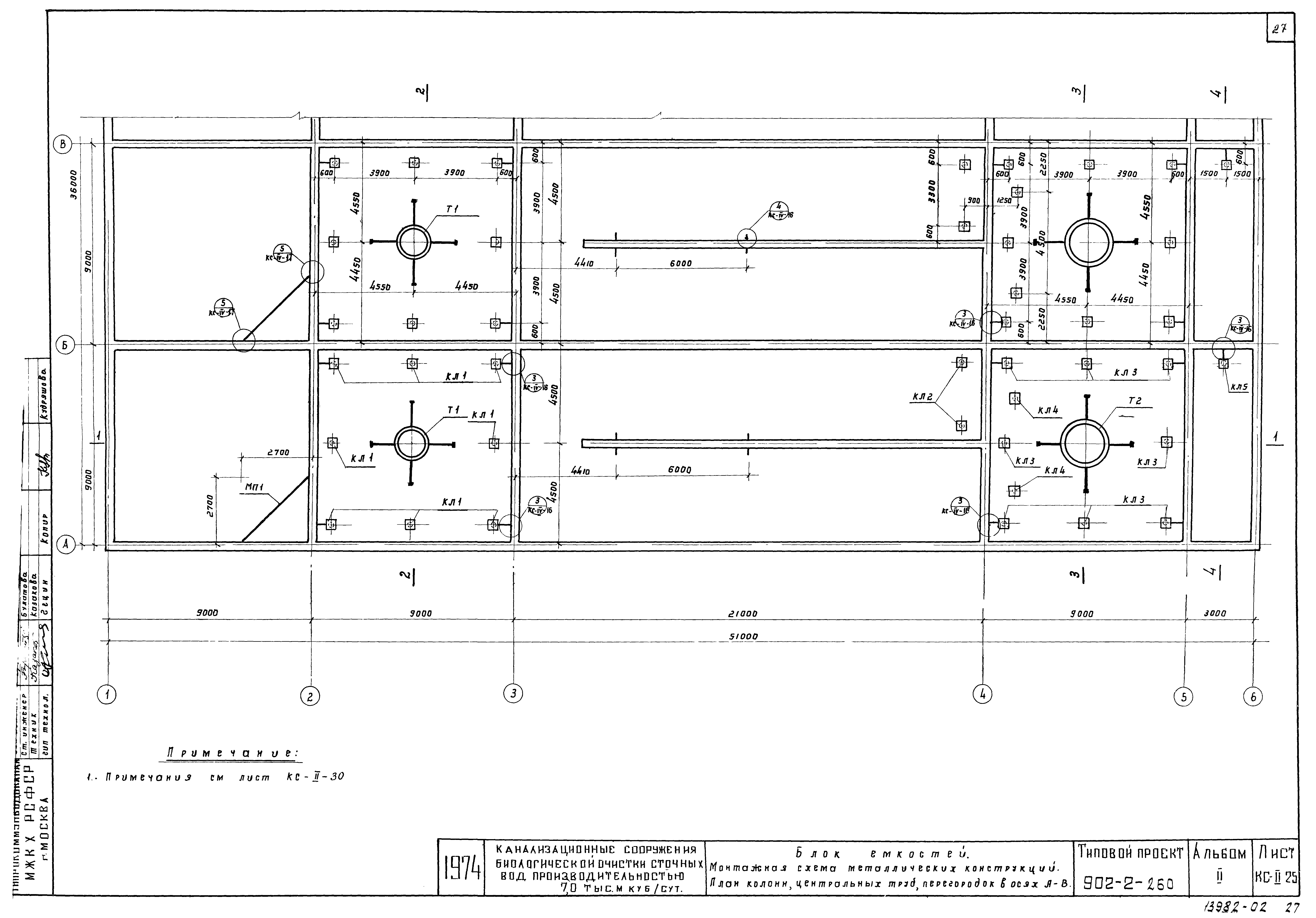
Альбом II. Блок емкостей. Строительная часть. Опалубка и армирование днища. Монтажные схемы. ВыборкиОбозначение: | Типовой проект 902-2-260 | Обозначение англ: | 902-2-260 | Статус: | действует | Название рус.: | Альбом II. Блок емкостей. Строительная часть. Опалубка и армирование днища. Монтажные схемы. Выборки | Дата добавления в базу: | 01.09.2013 | Дата актуализации: | 05.05.2017 | Дата введения: | 29.12.1975 | Оглавление: | ТП 902-2-260-С-1Содержание альбома ТП 902-2-260-КС-II-1 Общеувязочный чертеж. План в осях А-В ТП 902-2-260-КС-II-2 Общеувязочный чертеж. План в осях В-Д ТП 902-2-260-КС-II-3 Общеувязочный чертеж. Разрезы ТП 902-2-260-КС-II-4 Днище. Опалубочный чертеж. План в осях А-В ТП 902-2-260-КС-II-5 Днище. Опалубочный чертеж. План в осях В-Д ТП 902-2-260-КС-II-6 Днище. Опалубочный чертеж. Разрезы 1-1; 2-2 ТП 902-2-260-КС-II-7 Днище. Опалубочный чертеж. Разрезы 3-3; 4-4 ТП 902-2-260-КС-II-8 Днище. Армирование. План нижних сеток в осях А-В ТП 902-2-260-КС-II-9 Днище. Армирование. План нижних сеток в осях В-Д ТП 902-2-260-КС-II-10 Днище. Армирование. План верхних сеток в осях А-В ТП 902-2-260-КС-II-11 Днище. Армирование. План верхних сеток в осях В-Д ТП 902-2-260-КС-II-12 Днище. Армирование. План раскладки каркасных блоков в осях А-В ТП 902-2-260-КС-II-13 Днище. Армирование. План раскладки каркасных блоков в осях В-Д ТП 902-2-260-КС-II-14 Днище. Армирование. Разрезы 1-1 ÷ 3-3 ТП 902-2-260-КС-II-15 Днище. Армирование. Разрезы 4-4; 5-5. Выборки ТП 902-2-260-КС-II-16 Днище. Набетонка. План в осях А-В ТП 902-2-260-КС-II-17 Днище. Набетонка. План в осях В-Д ТП 902-2-260-КС-II-18 Днище. Набетонка. Разрезы 1-1 ÷ 4-4 ТП 902-2-260-КС-II-19 Монтажная схема фильтросных коробов. План в осях А-В. Выборки ТП 902-2-260-КС-II-20 Монтажная схема фильтросных коробов. План в осях В-Д. Разрезы 1-1;2-2 ТП 902-2-260-КС-II-21 Монтажная схема стен. План в осях А-В ТП 902-2-260-КС-II-22 Монтажная схема стен. План в осях В-Д ТП 902-2-260-КС-II-23 Монтажная схема стен. Разрезы 1-1 ÷ 5-5 ТП 902-2-260-КС-II-24 Монтажная схема стен. Разрез 6-6. Выборки ТП 902-2-260-КС-II-25 Монтажная схема металлических конструкций. План колонн, центральных труб, перегородок в осях А-В ТП 902-2-260-КС-II-26 Монтажная схема металлических конструкций. План колонн, центральных труб, перегородок в осях В-Д ТП 902-2-260-КС-II-27 Монтажная схема металлических конструкций. План лотков, балок, лестниц в осях А-В ТП 902-2-260-КС-II-28 Монтажная схема металлических конструкций. План лотков, балок, лестниц в осях В-Д ТП 902-2-260-КС-II-29 Монтажная схема металлических конструкций. Разрезы 1-1÷3-3 ТП 902-2-260-КС-II-30 Монтажная схема металлических конструкций. Разрез 4-4. Выборки ТП 902-2-260-КС-II-31 Монтажная схема мостиков. План в осях А-В ТП 902-2-260-КС-II-32 Монтажная схема мостиков. План в осях В-Д ТП 902-2-260-КС-II-33 Монтажная схема мостиков. Разрез. Выборки ТП 902-2-260-КС-II-34 Выборки ТП 902-2-260-КС-II-35 Выборки ТП 902-2-260-КС-II-36 Выборки | Разработан: | Гипрокоммунводоканал Минжилкомхоза РСФСР
| Утверждён: | 20.06.1975 МЖКХ РСФСР (10ТД)
| Издан: | ЦИТП Госстроя СССР (CITP, Gosstroy (USSR) 1976 г. )
| Расположен в: |
|
                                     
|