Информационная система
«Ёшкин Кот»

Скачать базу одним архивом
Скачать обновления
История создания базы
Карта сайта

Скачать Серия ИС-01-05 Выпуск 7. Материалы для проектирования и сборные железобетонные элементы внутрицеховых тоннелей. Рабочие чертежи

Дата актуализации: 10.08.2017

Серия ИС-01-05

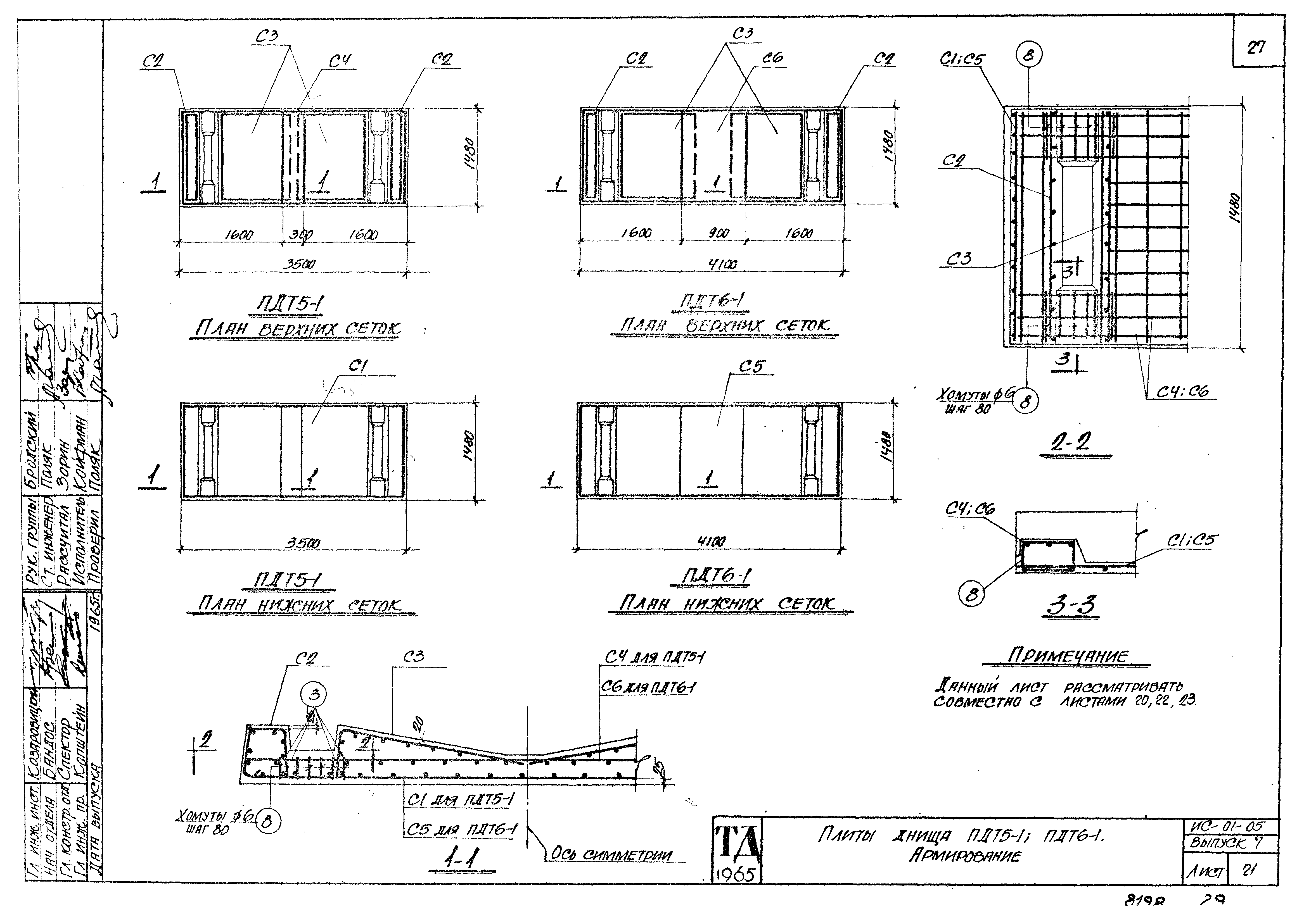
Выпуск 7. Материалы для проектирования и сборные железобетонные элементы внутрицеховых тоннелей. Рабочие чертежи

Обозначение: Серия ИС-01-05
Обозначение англ: Series ИС-01-05
Статус:не действует
Название рус.:Выпуск 7. Материалы для проектирования и сборные железобетонные элементы внутрицеховых тоннелей. Рабочие чертежи
Дата добавления в базу:01.09.2013
Дата актуализации:05.05.2017
Дата введения:01.01.1966
Дата окончания срока действия:01.02.1979
Разработан: Харьковский Промстройниипроект Госстроя СССР
НИИЖБ
Утверждён:24.11.1965 Госстрой СССР (Государственный комитет Совета Министров СССР по делам строительства) (USSR Gosstroy 209)
Расположен в:Техническая документация Строительство Справочные документы Типовые строительные конструкции, изделия и узлы Общероссийский строительный каталог Строительные конструкции, изделия и узлы зданий и сооружений для всех видов строительства Конструкции и изделия сооружений и оборудования зданий Подземные сооружения Каналы, тоннели, лотки
Чем заменён:
Серия ИС-01-05Серия ИС-01-05Серия ИС-01-05Серия ИС-01-05Серия ИС-01-05Серия ИС-01-05Серия ИС-01-05Серия ИС-01-05Серия ИС-01-05Серия ИС-01-05Серия ИС-01-05Серия ИС-01-05Серия ИС-01-05Серия ИС-01-05Серия ИС-01-05Серия ИС-01-05Серия ИС-01-05Серия ИС-01-05Серия ИС-01-05Серия ИС-01-05Серия ИС-01-05Серия ИС-01-05Серия ИС-01-05Серия ИС-01-05Серия ИС-01-05Серия ИС-01-05Серия ИС-01-05Серия ИС-01-05Серия ИС-01-05Серия ИС-01-05Серия ИС-01-05Серия ИС-01-05Серия ИС-01-05Серия ИС-01-05Серия ИС-01-05Серия ИС-01-05Серия ИС-01-05Серия ИС-01-05Серия ИС-01-05Серия ИС-01-05Серия ИС-01-05Серия ИС-01-05Серия ИС-01-05Серия ИС-01-05Серия ИС-01-05Серия ИС-01-05Серия ИС-01-05

© 2013 Ёшкин Кот :-) Карта сайта