Скачать Серия 3.403-7 Альбом I. Пояснительная записка, сметы, рабочие чертежиДата актуализации: 10.08.2017 Серия 3.403-7
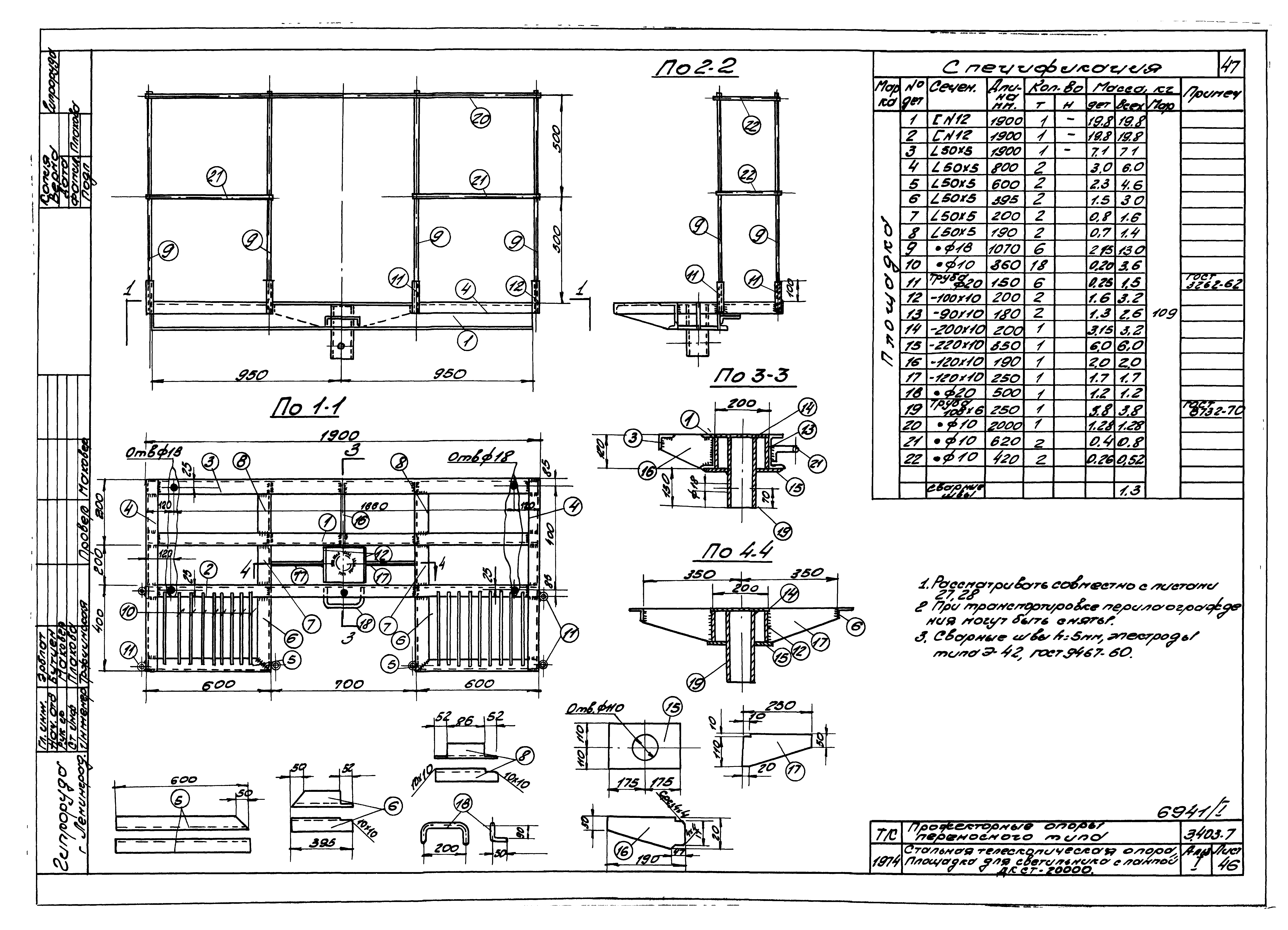
Альбом I. Пояснительная записка, сметы, рабочие чертежиОбозначение: | Серия 3.403-7 | Обозначение англ: | Series 3.403-7 | Статус: | не определен законодательством | Название рус.: | Альбом I. Пояснительная записка, сметы, рабочие чертежи | Дата добавления в базу: | 01.09.2013 | Дата актуализации: | 05.05.2017 | Дата введения: | 01.08.1976 | Оглавление: | 3.403-7 Титульный лист 3.403-7 Содержание альбома. Пояснительная записка 3.403-7 Сметы на изготовление монтаж прожекторных опор переносного типа 3.403-7 Расчетные нагрузки 3.403-7 Стальные прожекторные опоры высотой 10 и 15 м 3.403-7 Монтажная схема опоры высотой Н=10 м на металлическом подножнике 3.403-7 Монтажная схема опоры высотой Н=10 м на железобетонном подножнике 3.403-7 Монтажная схема опоры высотой Н=15 м на металлическом подножнике 3.403-7 Монтажная схема опоры высотой Н=15 м на железобетонном подножнике 3.403-7 Секции ствола опоры. Марки ППО-1,ППО-2 3.403-7 Секция ствола опоры. Марка ППО 3. Стыковые уголки. Марки ППО-4,ППО-5 3.403-7 Площадка для прожекторов. Марки ППО6, ППО7. Фасад. План 3.403-7 Площадка для прожекторов. Марки ППО6, ППО7. Боковой вид. Спецификация 3.403-7 Площадка для светильника с лампой ДКСТ20000. Марка ППО8. Фасад. Боковой вид 3.403-7 Площадка для светильника с лампой ДКСТ20000. План. Спецификация 3.403-7 Секции лестницы. Марки ППО9,ППО10 3.403-7 Металлический подножник. Марка ППО-11 3.403-7 Железобетонный подножник. Марка ПЖ-1. Пригрузочная плита. Марка ПЖ-2 3.403-7 Электрооборудование прожекторных опор 3.403-7 Электрооборудование прожекторной площадки. Установка на опоре светильников с лампой ДКСТ20000 3.403-7 Стальная опора с регулировкой высоты на 1 прожектор типа ПЗС-35 3.403-7 Монтажная схема 3.403-7 Детали №№ 2-10 3.403-7 Деревянная опора на 3 прожектора типа ПЗС-35 3.403-7 Монтажная схема 3.403-7 Узлы А, В, Д 3.403-7 Узел Г. Детали 3.403-7 Стальная телескопическая опора 3.403-7 Общий вид опоры, схема запасовки тросов, установка ручной лебедки ЛР1 3.403-7 Таблица элементов, выборка материалов 3.403-7 Общий вид опоры в сборе (верхняя часть) 3.403-7 Общий вид опоры в сборе (нижняя часть) 3.403-7 Боковой вид, разрезы верхней части опоры 3.403-7 Детали опоры 4, 5, 6, 8, 9, 10, 11, 12, 13, 14, 20 3.403-7 Блоки внутренний, наружный № 1, 2, неподвижный 3.403-7 Секция 1. Общий вид 3.403-7 Детали 1-5 3.403-7 Секция 2. Общий вид 3.403-7 Детали 1-7 3.403-7 Детали 10, 11, 12, 13, 15, 20 3.403-7 Секция 3. Общий вид 3.403-7 Детали 1-6 3.403-7 Детали 7-10 3.403-7 Секция 4. Общий вид 3.403-7 Детали 1-9 3.403-7 Секция 5. Общий вид 3.403-7 Детали 1-9 3.403-7 Площадка для светильника с лампой ДКСТ20000 3.403-7 Металлический подножник 3.403-7 Пригрузочная плита. Марка ПЖ2. Установка на опоре светильника для лампы ДКСТ-20000 | Разработан: | Гипроруда Минчермета СССР
| Утверждён: | 14.07.1976 Минчермет СССР (USSR Minchermet 572)
| Расположен в: |
|
                                               
|