Информационная система
«Ёшкин Кот»

Скачать базу одним архивом
Скачать обновления
История создания базы
Карта сайта

Скачать Типовой проект 902-9-4 Альбом V. Технологическая и электротехническая части

Дата актуализации: 10.08.2017

Типовой проект 902-9-4

Альбом V. Технологическая и электротехническая части

Обозначение: Типовой проект 902-9-4
Обозначение англ: 902-9-4
Статус:действует
Название рус.:Альбом V. Технологическая и электротехническая части
Дата добавления в базу:01.09.2013
Дата актуализации:05.05.2017
Дата введения:01.03.1974
Оглавление:ТП 902-9-4 Содержание альбома
ТП 902-9-4 Пояснительная записка
ТП 902-9-4-ТК Технологическая часть
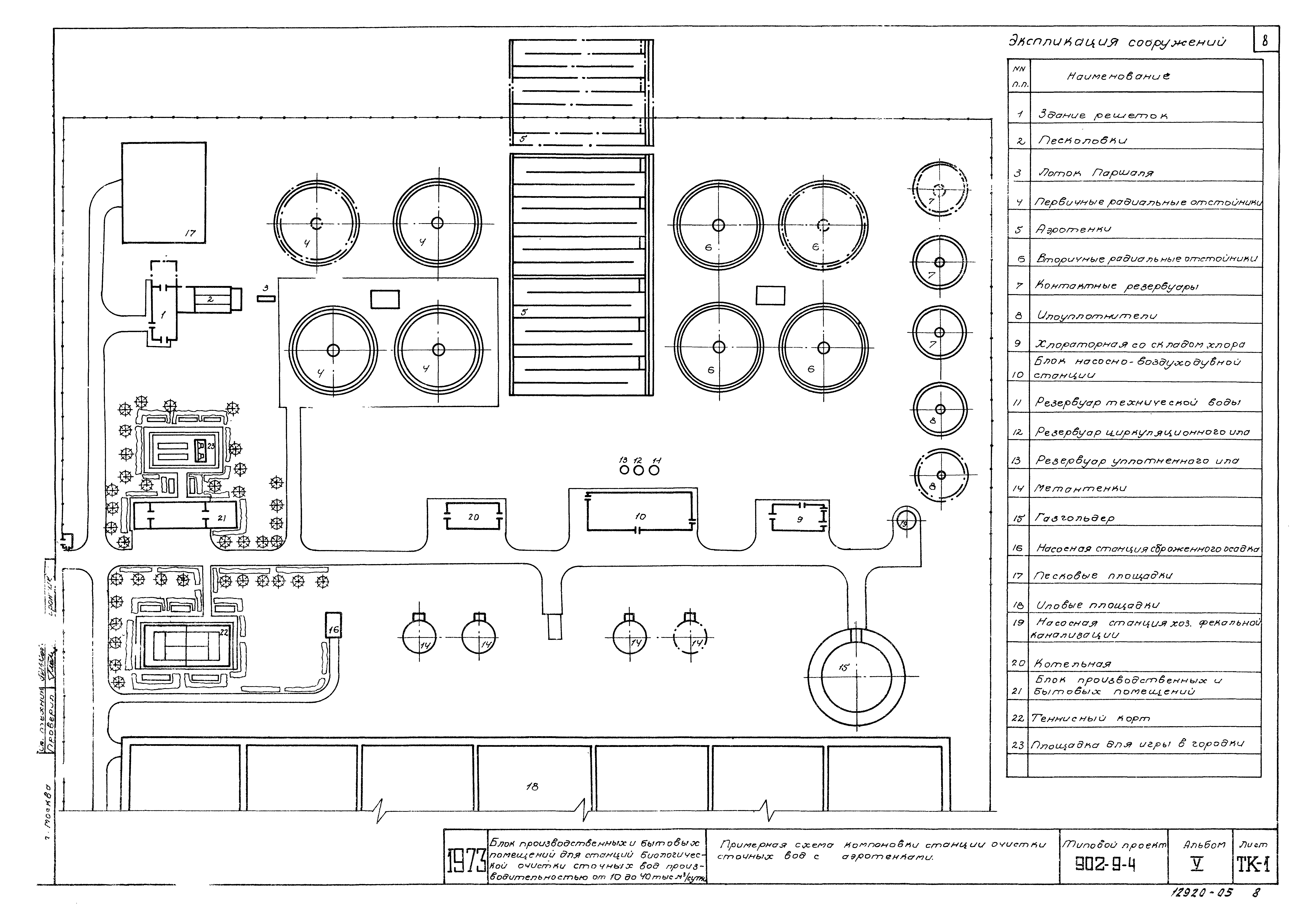
ТП 902-9-4-ТК-1 Примерная схема компоновки станции очистки сточных вод с аэротенками
ТП 902-9-4-ТК-2 Химическая и бактериологическая лаборатории. План, разрез, схемы подсоединений сантехпанелей, экспликация оборудования (вариант - стены панельные)
ТП 902-9-4-ТК-3 Химическая и бактериологическая лаборатории. План, разрез, схемы подсоединений сантехпанелей, экспликация оборудования (вариант - стены кирпичные)
ТП 902-9-4-ТК-4 План 1 этажа буфета на 8 мест с расстановкой и привязкой подводок электроэнергии и воды к технологическому оборудованию. Спецификация технологического оборудования (Вариант - стены панельные)
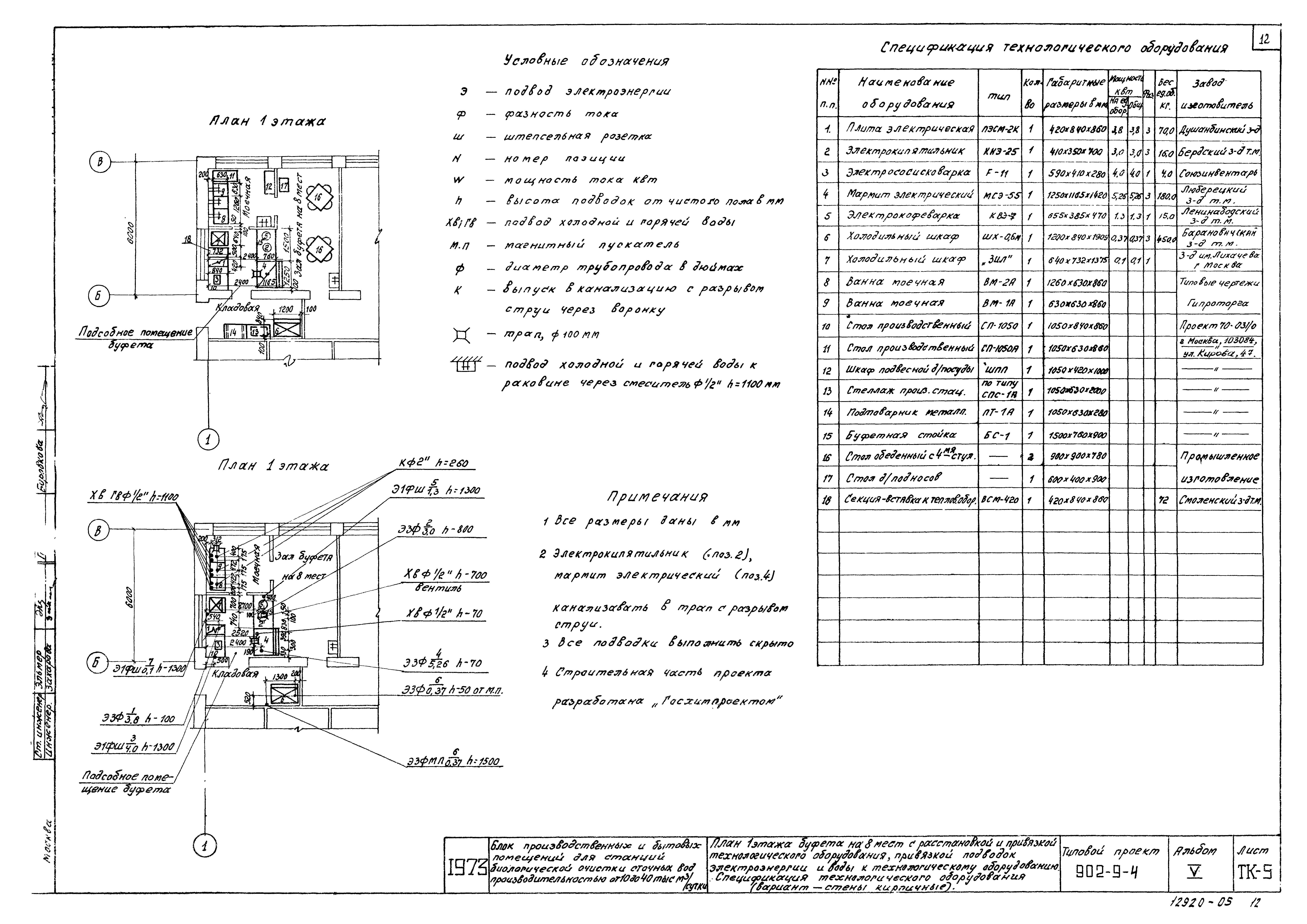
ТП 902-9-4-ТК-5 План 1 этажа буфета на 8 мест с расстановкой и привязкой подводок электроэнергии и воды к технологическому оборудованию. Спецификация технологического оборудования (Вариант - стены кирпичные)
ТП 902-9-4-ЭЛ Электротехническая часть
ТП 902-9-4 Раздел 1
ТП 902-9-4 Чертежи монтажной зоны. Листы ЭЛ-1-ЭЛ-14
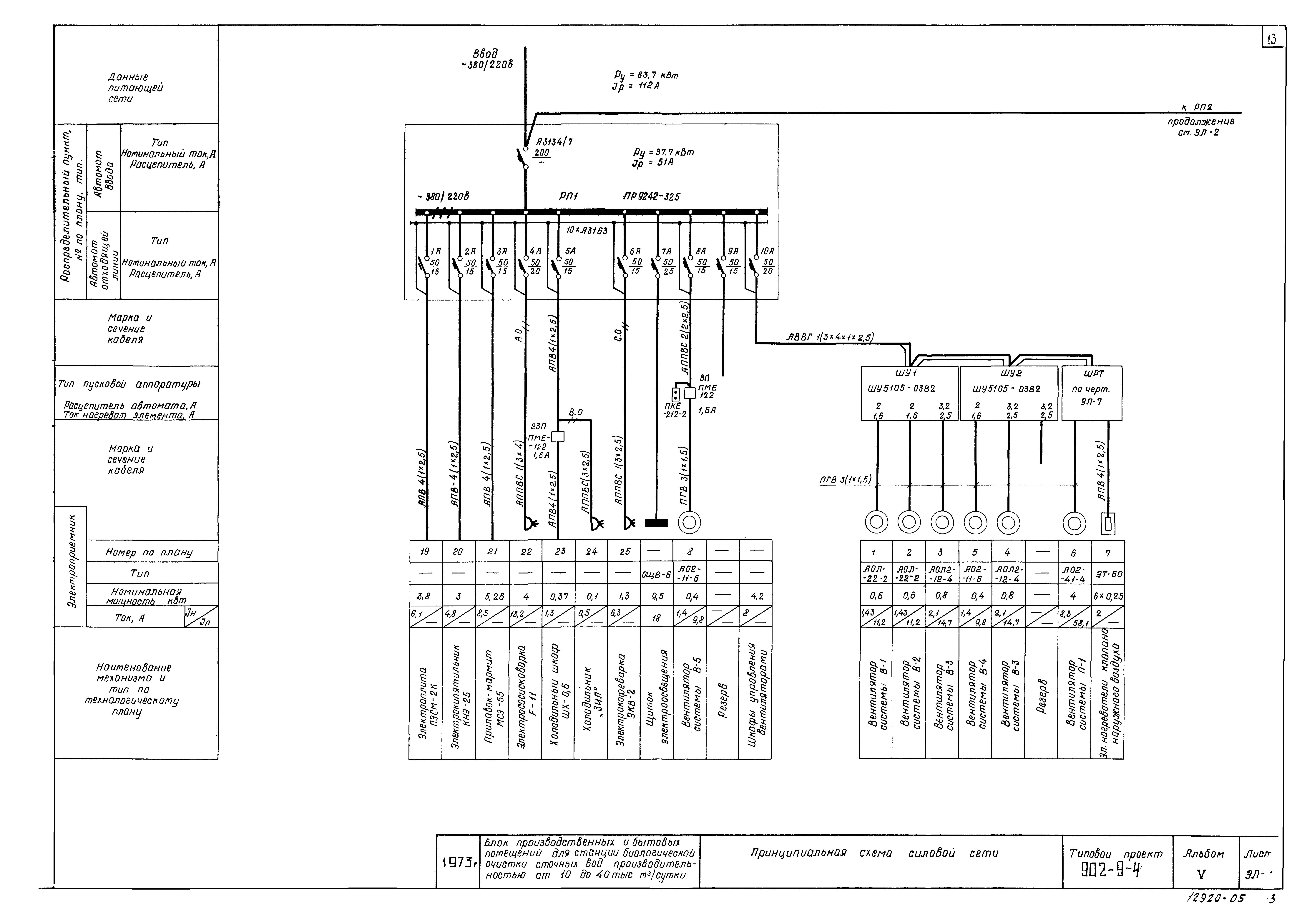
ТП 902-9-4-ЭЛ-1 Принципиальная схема силовой сети
ТП 902-9-4-ЭЛ-2 Принципиальная схема силовой сети
ТП 902-9-4-ЭЛ-3 Принципиальная схема управления приточным вентилятором и нагревателями наружного воздуха. Принципиальная схема регулирования температуры воздуха
ТП 902-9-4-ЭЛ-4 Принципиальная схема управления приточным вентилятором и нагревателями клапана наружного воздуха. Принципиальная схема регулирования температуры воздуха
ТП 902-9-4-ЭЛ-5 Принципиальная схема управления вытяжными вентиляторами В-1-В-4. Шкафы управления. Схема подключений
ТП 902-9-4-ЭЛ-5-1 Принципиальная схема управления вытяжными вентиляторами В-1-В-4
ТП 902-9-4-ЭЛ-5-2 Шкафы управления. Схема подключений
ТП 902-9-4-ЭЛ-6 Принципиальная схема управления вытяжным вентилятором В-5. Вытяжной вентилятор В-5. Схема подключений.
ТП 902-9-4-ЭЛ-6-1 Принципиальная схема управления вытяжным вентилятором В-5
ТП 902-9-4-ЭЛ-6-2 Вытяжной вентилятор В-5. Схема подключений
ТП 902-9-4-ЭЛ-7 Функциональная схема технологического контроля. Схема подключений электрических проводок
ТП 902-9-4-ЭЛ-7-1 Функциональная схема технологического контроля
ТП 902-9-4-ЭЛ-7-2 Схема подключений электрических проводок
ТП 902-9-4-ЭЛ-8 Шкаф управления ШРТ. Общий вид
ТП 902-9-4-ЭЛ-9 Шкаф управления ШРТ. Схема соединений
ТП 902-9-4-ЭЛ-10 Прокладка кабелей
ТП 902-9-4-ЭЛ-11 Прокладка кабелей
ТП 902-9-4-ЭЛ-11-1 Прокладка кабелей
ТП 902-9-4-ЭЛ-11-2 Прокладка труб в полах
ТП 902-9-4-ЭЛ-12 Кабельный журнал
ТП 902-9-4-ЭЛ-13 Кабельный журнал
ТП 902-9-4-ЭЛ-14 Электрическое освещение. План
ТП 902-9-4 Раздел 2
ТП 902-9-4 Задание заводу Главмонтажавтоматики, листы ЭЛ-15-ЭЛ-18
ТП 902-9-4-ЭЛ-15 Принципиальная схема управления приточным вентилятором и нагревателями клапана наружного воздуха. Принципиальная схема регулирования температуры воздуха
ТП 902-9-4-ЭЛ-16 Принципиальная схема управления приточным вентилятором и нагревателями клапана наружного воздуха. Принципиальная схема регулирования температуры воздуха
ТП 902-9-4-ЭЛ-17 Шкаф управления ШРТ. Общий вид
ТП 902-9-4-ЭЛ-18 Шкаф управления ШРТ. Схема соединений
Разработан: Союзводоканалниипроект
Утверждён:25.02.1974 СоюзводоканалНИИпроект (SoyuzvodokanalNIIproject 39)
Расположен в:Техническая документация Строительство Справочные документы Типовые строительные конструкции, изделия и узлы Общероссийский строительный каталог Промышленные предприятия, здания и сооружения Здания и сооружения санитарно-технические Канализация Сооружения биологической (биохимической) очистки Станции биологической очистки сточных вод
Типовой проект 902-9-4Типовой проект 902-9-4Типовой проект 902-9-4Типовой проект 902-9-4Типовой проект 902-9-4Типовой проект 902-9-4Типовой проект 902-9-4Типовой проект 902-9-4Типовой проект 902-9-4Типовой проект 902-9-4Типовой проект 902-9-4Типовой проект 902-9-4Типовой проект 902-9-4Типовой проект 902-9-4Типовой проект 902-9-4Типовой проект 902-9-4Типовой проект 902-9-4Типовой проект 902-9-4Типовой проект 902-9-4Типовой проект 902-9-4Типовой проект 902-9-4Типовой проект 902-9-4Типовой проект 902-9-4Типовой проект 902-9-4Типовой проект 902-9-4Типовой проект 902-9-4Типовой проект 902-9-4Типовой проект 902-9-4Типовой проект 902-9-4Типовой проект 902-9-4Типовой проект 902-9-4

© 2013 Ёшкин Кот :-) Карта сайта