Информационная система
«Ёшкин Кот»

Скачать базу одним архивом
Скачать обновления
История создания базы
Карта сайта

Скачать Типовой проект 903-1-279.90 Альбом 4. Строительные изделия

Дата актуализации: 10.08.2017

Типовой проект 903-1-279.90

Альбом 4. Строительные изделия

Обозначение: Типовой проект 903-1-279.90
Обозначение англ: 903-1-279.90
Статус:не определен законодательством
Название рус.:Альбом 4. Строительные изделия
Дата добавления в базу:01.09.2013
Дата актуализации:05.05.2017
Дата введения:23.11.1988
Оглавление:ТП 903-1-279.90-КЖ1.И.ТУ Технические условия
ТП 903-1-279.90-КЖ1.И.01.1 Изделие соединительное (МС1-1,МС1-1а)
ТП 903-1-279.90-КЖ1.И.08.1 Панель стеновая ПС60.12.25-2Л-36а
ТП 903-1-279.90-КЖ1.И.1.2 Сетка С2
ТП 903-1-279.90-КЖ1.И.1.3 Сетка С3
ТП 903-1-279.90-КЖ1.И.1.4 Сетка С4
ТП 903-1-279.90-КЖ1.И.1.1 Сетка С1
ТП 903-1-279.90-КЖ1.И.2.1 Изделие закладное МН1
ТП 903-1-279.90-КЖ1.И.2.2 Изделие закладное МН2
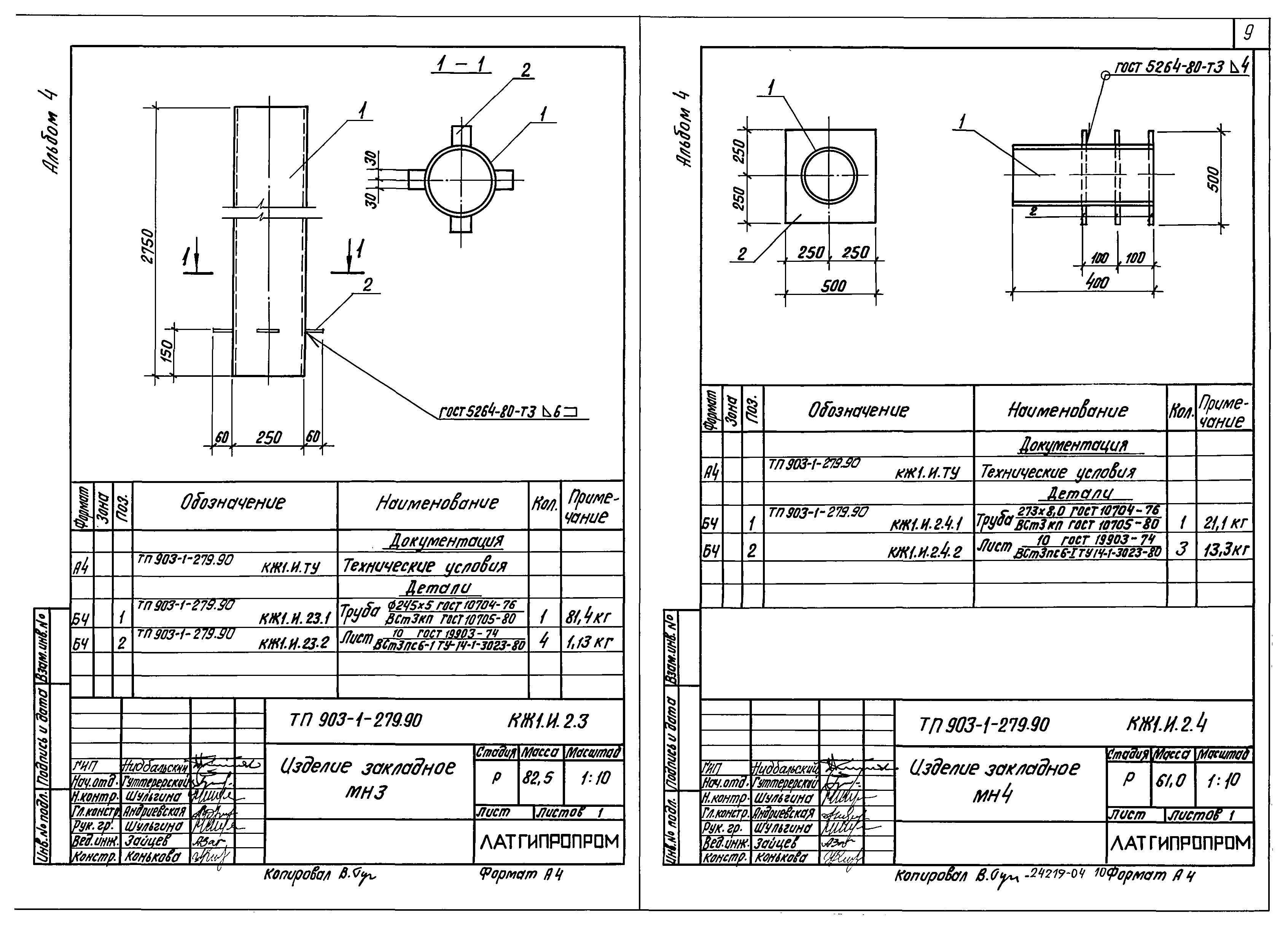
ТП 903-1-279.90-КЖ1.И.2.3 Изделие закладное МН3
ТП 903-1-279.90-КЖ1.И.2.4 Изделие закладное МН4
ТП 903-1-279.90-КЖ1.И.2.5 Изделие закладное МН5
ТП 903-1-279.90-КЖ1.И.2.6 Изделие закладное МН6
ТП 903-1-279.90-КЖ1.И.2.7 Изделие закладное МН7
ТП 903-1-279.90-КЖ1.И.2.9 Изделие закладное МН9
ТП 903-1-279.90-КЖ1.И.2.10 Изделие закладное МН10
ТП 903-1-279.90-КЖ1.И.2.11 Изделие закладное МН11
ТП 903-1-279.90-КЖ1.И.2.12 Изделие закладное МН12
ТП 903-1-279.90-КЖ1.И.3.3 Изделие соединительное МС4
ТП 903-1-279.90-КЖ1.И.3.4 МС1-2
ТП 903-1-279.90-КЖ1.И.3.7 Стальной элемент НТ1
ТП 903-1-279.90-КЖ1.И.3.8 Стальной элемент НТ2
ТП 903-1-279.90-КЖ1.И.3.11 Рама Р-1
ТП 903-1-279.90-КЖ1.И.3.12 Решетка Р-2
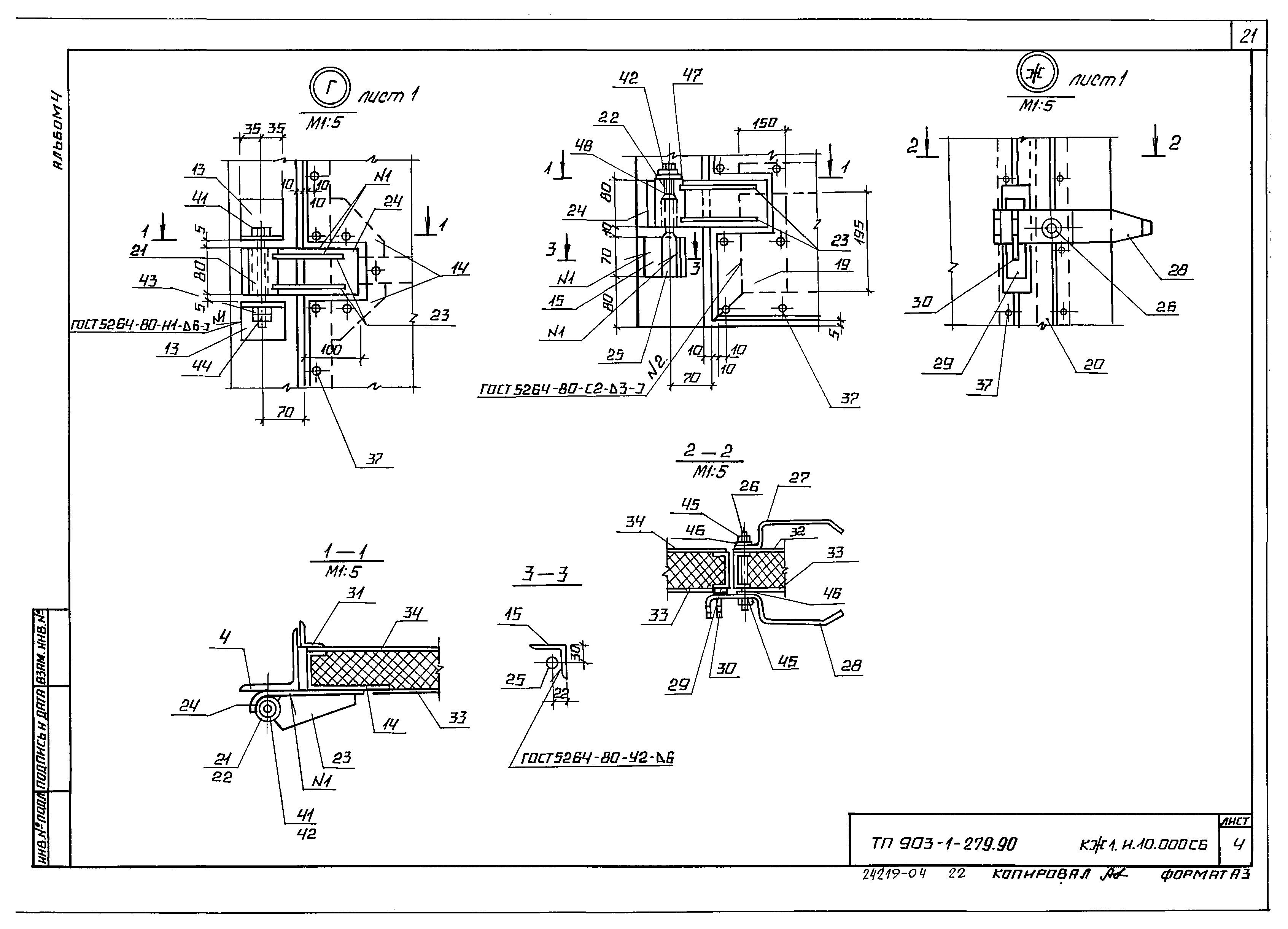
ТП 903-1-279.90-КЖ1.И.10.000 Лист 1 Ворота распашные ВТУ-3
ТП 903-1-279.90-КЖ1.И.10.000 Лист 2 Ворота распашные ВТУ-3
ТП 903-1-279.90-КЖ1.И.10.000 Лист 3 Ворота распашные ВТУ-3
ТП 903-1-279.90-КЖ1.И.10.000 СБ Лист 1 Ворота распашные ВТУ-3. Сборочный чертеж
ТП 903-1-279.90-КЖ1.И.10.000 СБ Лист 2 Ворота распашные ВТУ-3. Сборочный чертеж
ТП 903-1-279.90-КЖ1.И.10.000 СБ Лист 3 Ворота распашные ВТУ-3. Сборочный чертеж
ТП 903-1-279.90-КЖ1.И.10.000 СБ Лист 4 Ворота распашные ВТУ-3. Сборочный чертеж
ТП 903-1-279.90-КЖ1.И.10.000 СБ Лист 5 Ворота распашные ВТУ-3. Сборочный чертеж
ТП 903-1-279.90-КЖ1.И.10.001 Перемычка
ТП 903-1-279.90-КЖ1.И.10.002 Стойка
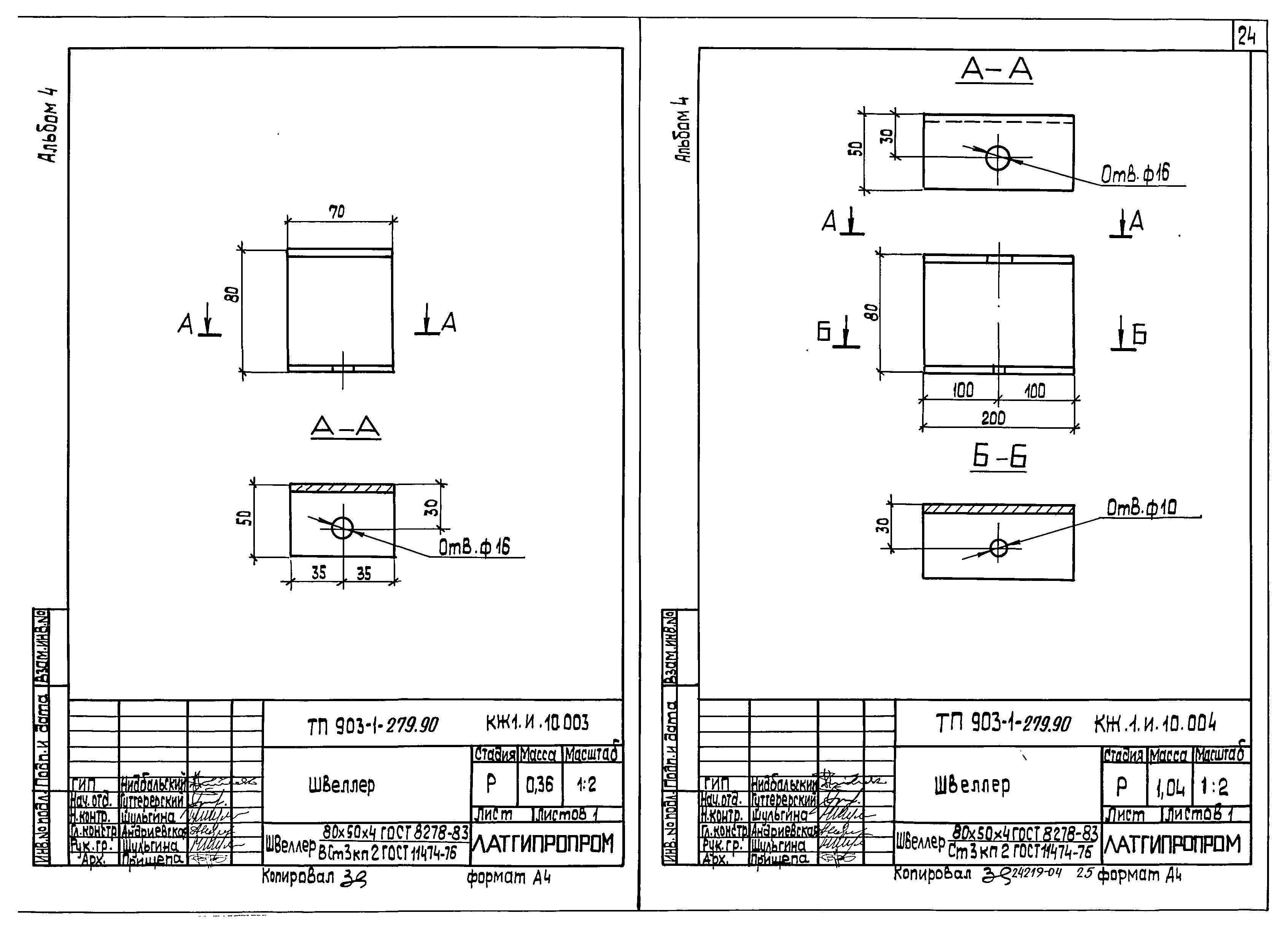
ТП 903-1-279.90-КЖ1.И.10.003 Швеллер
ТП 903-1-279.90-КЖ1.И.10.004 Швеллер
ТП 903-1-279.90-КЖ1.И.10.005 Уголок
ТП 903-1-279.90-КЖ1.И.10.006 Уголок
ТП 903-1-279.90-КЖ1.И.10.007 Уголок
ТП 903-1-279.90-КЖ1.И.10.008 Лист
ТП 903-1-279.90-КЖ1.И.10.009 Втулка
ТП 903-1-279.90-КЖ1.И.10.010 Втулка
ТП 903-1-279.90-КЖ1.И.10.011 Ребро
ТП 903-1-279.90-КЖ1.И.10.012 Полоса
ТП 903-1-279.90-КЖ1.И.10.013 Ось
ТП 903-1-279.90-КЖ1.И.10.014 Ось
ТП 903-1-279.90-КЖ1.И.10.015 Ручка
ТП 903-1-279.90-КЖ1.И.10.016 Ручка
ТП 903-1-279.90-КЖ1.И.10.017 Крюк
ТП 903-1-279.90-КЖ1.И.10.018 Обшивка
ТП 903-1-279.90-КЖ1.И.10.019 Обшивка
ТП 903-1-279.90-КЖ1.И.10.020 Обшивка
ТП 903-1-279.90-КЖ1.И.10.100 СБ Рама полотна ворот. Сборочный чертеж
ТП 903-1-279.90-КЖ1.И.10.100 Рама полотна ворот
ТП 903-1-279.90-КЖ1.И.10.101 Стойка
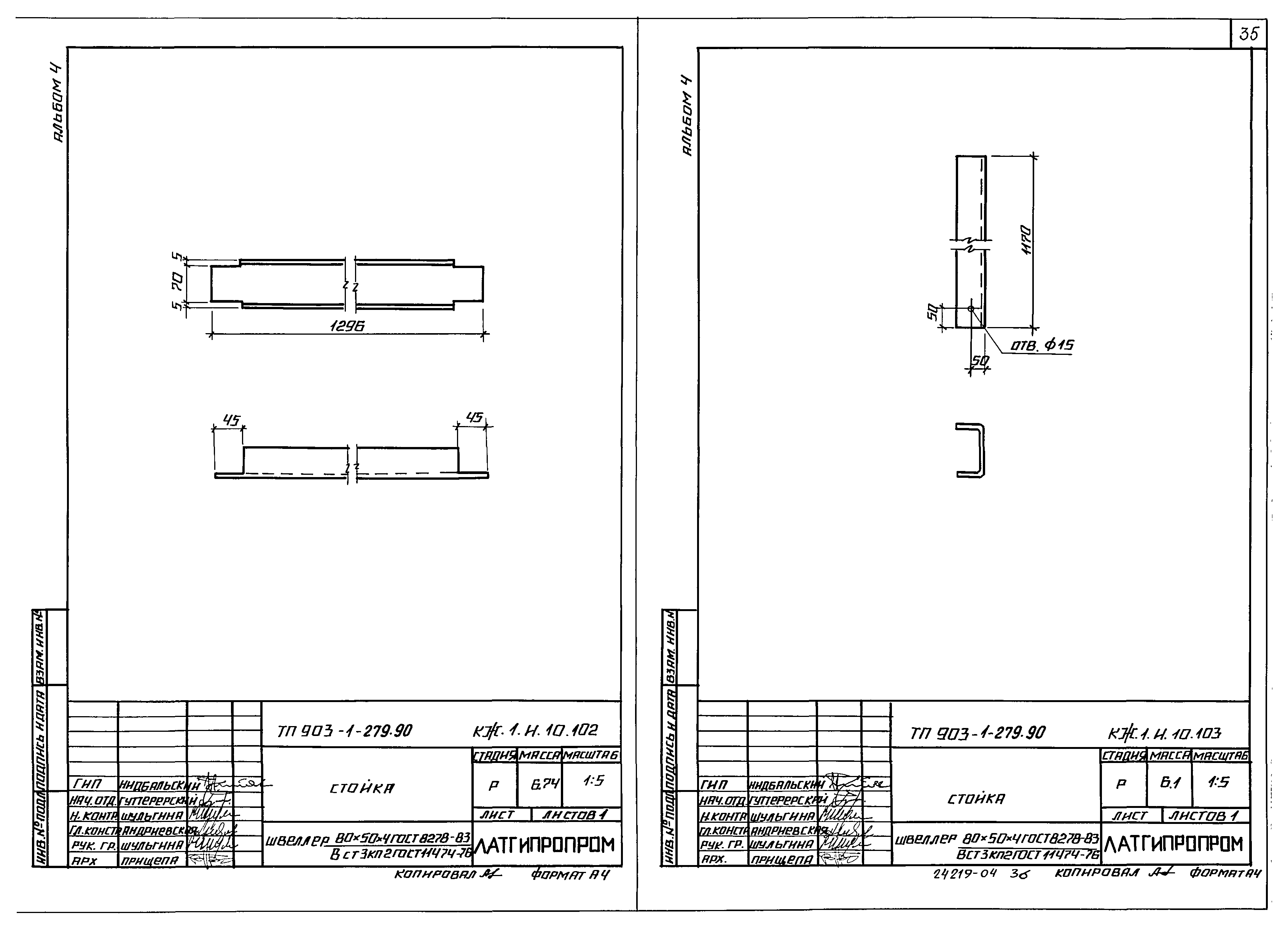
ТП 903-1-279.90-КЖ1.И.10.102 Стойка
ТП 903-1-279.90-КЖ1.И.10.103 Стойка
ТП 903-1-279.90-КЖ1.И.10.200 СБ Клапан. Сборочный чертеж
ТП 903-1-279.90-КЖ1.И.10.200 Клапан
ТП 903-1-279.90-КЖ1.И.10.201 Деталь рамы
ТП 903-1-279.90-КЖ1.И.10.300 СБ Шпингалет. Сборочный чертеж
ТП 903-1-279.90-КЖ1.И.10.300 Шпингалет
ТП 903-1-279.90-КЖ1.И.10.301 Ось
ТП 903-1-279.90-КЖ1.И.10.302 Втулка
ТП 903-1-279.90-КЖ1.И.10.303 Кольцо
ТП 903-1-279.90-КЖ1.И.10.304 Стяжка
ТП 903-1-279.90-КЖ1.И.11.000 СБ Лист 1 Дверь ДВ1. Сборочный чертеж
ТП 903-1-279.90-КЖ1.И.11.000 СБ Лист 2 Дверь ДВ1. Сборочный чертеж
ТП 903-1-279.90-КЖ1.И.11.000 Лист 1 Дверь ДВ1
ТП 903-1-279.90-КЖ1.И.11.000 Лист 2 Дверь ДВ1
ТП 903-1-279.90-КЖ1.И.11.001 Перемычка
ТП 903-1-279.90-КЖ1.И.11.002 Стойка
ТП 903-1-279.90-КЖ1.И.11.100 СБ Полотно дверей. Сборочный чертеж
ТП 903-1-279.90-КЖ1.И.11.000 Полотно дверей. Сборочный чертеж
ТП 903-1-279.90-КЖ1.И.11.101 Перемычка
ТП 903-1-279.90-КЖ1.И.11.102 Стойка
ТП 903-1-279.90-КЖ1.И.11.103 Стяжка
ТП 903-1-279.90-КЖ1.И.11.104 Полоса
ТП 903-1-279.90-КЖ1.И.11.105 Обшивка
ТП 903-1-279.90-КЖ1.И.11.106 Обшивка
Разработан: Латгипропром
Утверждён:23.11.1988 Госстрой СССР (Государственный комитет Совета Министров СССР по делам строительства) (USSR Gosstroy 77)
Расположен в:Техническая документация Строительство Справочные документы Типовые строительные конструкции, изделия и узлы Общероссийский строительный каталог Промышленные предприятия, здания и сооружения Здания и сооружения санитарно-технические Теплоснабжение Котельные установки Открытые системы теплоснабжения Топливо - газ и мазут
Типовой проект 903-1-279.90Типовой проект 903-1-279.90Типовой проект 903-1-279.90Типовой проект 903-1-279.90Типовой проект 903-1-279.90Типовой проект 903-1-279.90Типовой проект 903-1-279.90Типовой проект 903-1-279.90Типовой проект 903-1-279.90Типовой проект 903-1-279.90Типовой проект 903-1-279.90Типовой проект 903-1-279.90Типовой проект 903-1-279.90Типовой проект 903-1-279.90Типовой проект 903-1-279.90Типовой проект 903-1-279.90Типовой проект 903-1-279.90Типовой проект 903-1-279.90Типовой проект 903-1-279.90Типовой проект 903-1-279.90Типовой проект 903-1-279.90Типовой проект 903-1-279.90Типовой проект 903-1-279.90Типовой проект 903-1-279.90Типовой проект 903-1-279.90Типовой проект 903-1-279.90Типовой проект 903-1-279.90Типовой проект 903-1-279.90Типовой проект 903-1-279.90Типовой проект 903-1-279.90Типовой проект 903-1-279.90Типовой проект 903-1-279.90Типовой проект 903-1-279.90Типовой проект 903-1-279.90Типовой проект 903-1-279.90Типовой проект 903-1-279.90Типовой проект 903-1-279.90Типовой проект 903-1-279.90Типовой проект 903-1-279.90Типовой проект 903-1-279.90Типовой проект 903-1-279.90Типовой проект 903-1-279.90Типовой проект 903-1-279.90Типовой проект 903-1-279.90Типовой проект 903-1-279.90Типовой проект 903-1-279.90Типовой проект 903-1-279.90Типовой проект 903-1-279.90

© 2013 Ёшкин Кот :-) Карта сайта