Информационная система
«Ёшкин Кот»

Скачать базу одним архивом
Скачать обновления
История создания базы
Карта сайта

Скачать Типовой проект 903-1-278.90 Альбом 12. Отопление и вентиляция. Внутренние водопровод и канализация. Тепловые сети

Дата актуализации: 10.08.2017

Типовой проект 903-1-278.90

Альбом 12. Отопление и вентиляция. Внутренние водопровод и канализация. Тепловые сети

Обозначение: Типовой проект 903-1-278.90
Обозначение англ: 903-1-278.90
Статус:не определен законодательством
Название рус.:Альбом 12. Отопление и вентиляция. Внутренние водопровод и канализация. Тепловые сети
Дата добавления в базу:01.09.2013
Дата актуализации:05.05.2017
Дата введения:23.11.1988
Оглавление:ТП 903-1-278.90-ОВ Отопление и вентиляция ОВ
ТП 903-1-278.90-ОВ-1 Общие данные (начало)
ТП 903-1-278.90-ОВ-2 Общие данные (окончание)
ТП 903-1-278.90-ОВ-2 Общие данные (окончание) (задание из ЛМК)
ТП 903-1-278.90-ОВ-3 Планы на отм. 0.000 и 3.300
ТП 903-1-278.90-ОВ-3 Планы на отм. 0.000 и 3.300 (задание из ЛМК)
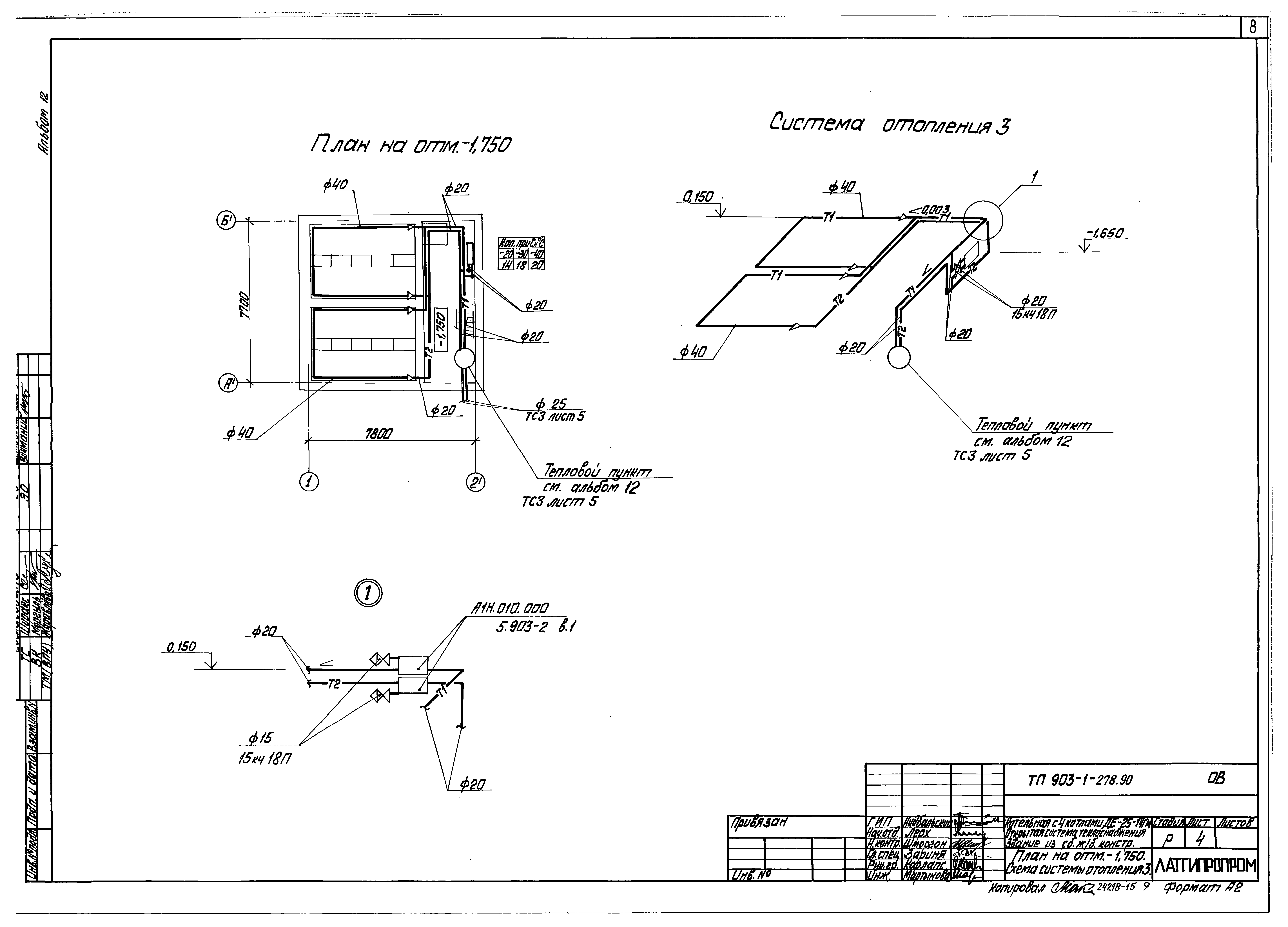
ТП 903-1-278.90-ОВ-4 Планы на отм. -1.750. Схема системы отопления 3
ТП 903-1-278.90-ОВ-5 Схемы системы отопления 1 и 2 (задание из ЛМК)
ТП 903-1-278.90-ОВ-5 Схемы системы отопления 1 и 2
ТП 903-1-278.90-ОВ-6 Схемы системы теплоснабжения установки П1 и вентиляции П1,В1-В8,ВЕ1
ТП 903-1-278.90-ОВ-6 Схемы системы теплоснабжения установки П1 и вентиляции В1-В8,ВЕ2 (задание из ЛМК)
ТП 903-1-278.90-ОВ-7 Установка систем П1,В1 и В2
ТП 903-1-278.90-ОВ-7 Установка систем П1,В1 и В2 (задание из ЛМК)
ТП 903-1-278.90-ВК Внутреннее водоснабжение и канализация ВК
ТП 903-1-278.90-ВК-1 Общие данные (начало)
ТП 903-1-278.90-ВК-2 Общие данные (окончание)
ТП 903-1-278.90-ВК-3 План на отм. 0.000 между осями 1-6 и А-Д. План на отм. -1.750
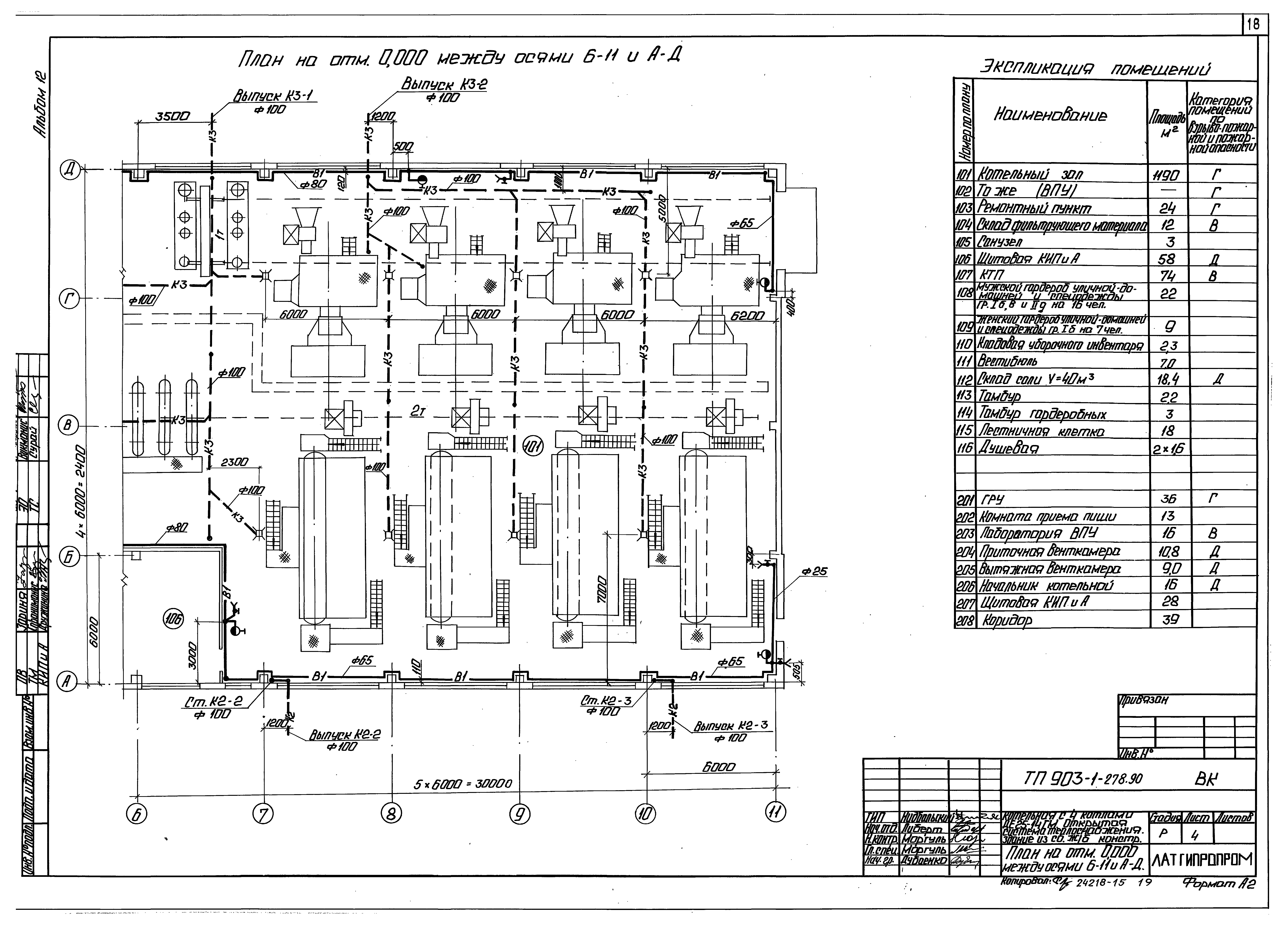
ТП 903-1-278.90-ВК-4 План на отм. 0.000 между осями 6-11 и А-Д
ТП 903-1-278.90-ВК-5 План на отм. 3.300. План кровли. Дождеприемный колодец
ТП 903-1-278.90-ВК-6 Схема системы В1
ТП 903-1-278.90-ВК-7 Схемы систем Т3,К1,К2
ТП 903-1-278.90-ВК-8 Схемы систем К3,К3Н,К13
ТП 903-1-278.90-ТС2 Тепловые сети ТС2
ТП 903-1-278.90-ТС2-1 Общие данные
ТП 903-1-278.90-ТС2-1 Общие данные (вариант из ЛМК)
ТП 903-1-278.90-ТС2-2 Ведомость теплоизоляционных конструкций
ТП 903-1-278.90-ТС2-3 Индивидуальный тепловой пункт котельной. План. План подключения трубопроводов в котельной
ТП 903-1-278.90-ТС2-4 Индивидуальный тепловой пункт котельной. Схема узла теплоснабжения
ТП 903-1-278.90-ТС2-5 Индивидуальный тепловой пункт склада соли. План. Схема узла теплоснабжения
Разработан: Латгипропром
Утверждён:23.11.1988 Госстрой СССР (Государственный комитет Совета Министров СССР по делам строительства) (USSR Gosstroy 78)
Расположен в:Техническая документация Строительство Справочные документы Типовые строительные конструкции, изделия и узлы Общероссийский строительный каталог Промышленные предприятия, здания и сооружения Здания и сооружения санитарно-технические Теплоснабжение Котельные установки Открытые системы теплоснабжения Топливо - газ и мазут
Заменяет собой:
Типовой проект 903-1-278.90Типовой проект 903-1-278.90Типовой проект 903-1-278.90Типовой проект 903-1-278.90Типовой проект 903-1-278.90Типовой проект 903-1-278.90Типовой проект 903-1-278.90Типовой проект 903-1-278.90Типовой проект 903-1-278.90Типовой проект 903-1-278.90Типовой проект 903-1-278.90Типовой проект 903-1-278.90Типовой проект 903-1-278.90Типовой проект 903-1-278.90Типовой проект 903-1-278.90Типовой проект 903-1-278.90Типовой проект 903-1-278.90Типовой проект 903-1-278.90Типовой проект 903-1-278.90Типовой проект 903-1-278.90Типовой проект 903-1-278.90Типовой проект 903-1-278.90Типовой проект 903-1-278.90Типовой проект 903-1-278.90Типовой проект 903-1-278.90Типовой проект 903-1-278.90Типовой проект 903-1-278.90Типовой проект 903-1-278.90Типовой проект 903-1-278.90

© 2013 Ёшкин Кот :-) Карта сайта