Информационная система
«Ёшкин Кот»

Скачать базу одним архивом
Скачать обновления
История создания базы
Карта сайта

Скачать Типовой проект 903-1-278.90 Альбом 5. Часть 2. Строительно-технологическая блок-секция котлоагрегата ДЕ-25-14ГМ. Металлоконструкции газовоздухопроводов и вспомогательного оборудования

Дата актуализации: 10.08.2017

Типовой проект 903-1-278.90

Альбом 5. Часть 2. Строительно-технологическая блок-секция котлоагрегата ДЕ-25-14ГМ. Металлоконструкции газовоздухопроводов и вспомогательного оборудования

Обозначение: Типовой проект 903-1-278.90
Обозначение англ: 903-1-278.90
Статус:не определен законодательством
Название рус.:Альбом 5. Часть 2. Строительно-технологическая блок-секция котлоагрегата ДЕ-25-14ГМ. Металлоконструкции газовоздухопроводов и вспомогательного оборудования
Дата добавления в базу:01.09.2013
Дата актуализации:05.05.2017
Дата введения:23.11.1988
Оглавление:ТП 903-1-278.90 Лаз борова
ТП 903-1-278.90 58.01.00.000 Лаз борова
ТП 903-1-278.90 58.01.00.000 СБ Лаз борова. Сборочный чертеж
ТП 903-1-278.90 58.01.00.001 Корпус
ТП 903-1-278.90 58.01.00.002 Дверка
ТП 903-1-278.90 58.01.00.003 Ось
ТП 903-1-278.90 Оборудование конденсатного бака
ТП 903-1-278.90 50.17.00.000 Опора
ТП 903-1-278.90 50.17.00.000 СБ Опора. Сборочный чертеж
ТП 903-1-278.90 50.17.00.001 Кронштейн
ТП 903-1-278.90 50.17.00.002 Кронштейн
ТП 903-1-278.90 50.07.60.002 Опора
ТП 903-1-278.90 50.07.50.002 Планка
ТП 903-1-278.90 63.01.00.001 Воронка
ТП 903-1-278.90 Конденсатоотводчик
ТП 903-1-278.90 24.01.00.000 Конденсатоотводчик
ТП 903-1-278.90 24.01.00.000 СБ Конденсатоотводчик. Сборочный чертеж
ТП 903-1-278.90 24.01.00.001 Прокладка
ТП 903-1-278.90 24.01.01.000 Корпус
ТП 903-1-278.90 24.01.01.000 СБ Корпус. Сборочный чертеж
ТП 903-1-278.90 24.01.01.001 Крышка
ТП 903-1-278.90 24.01.01.002 Днище
ТП 903-1-278.90 24.01.01.003 Боковина
ТП 903-1-278.90 24.01.01.005 Перегородка
ТП 903-1-278.90 24.01.01.006 Фланец
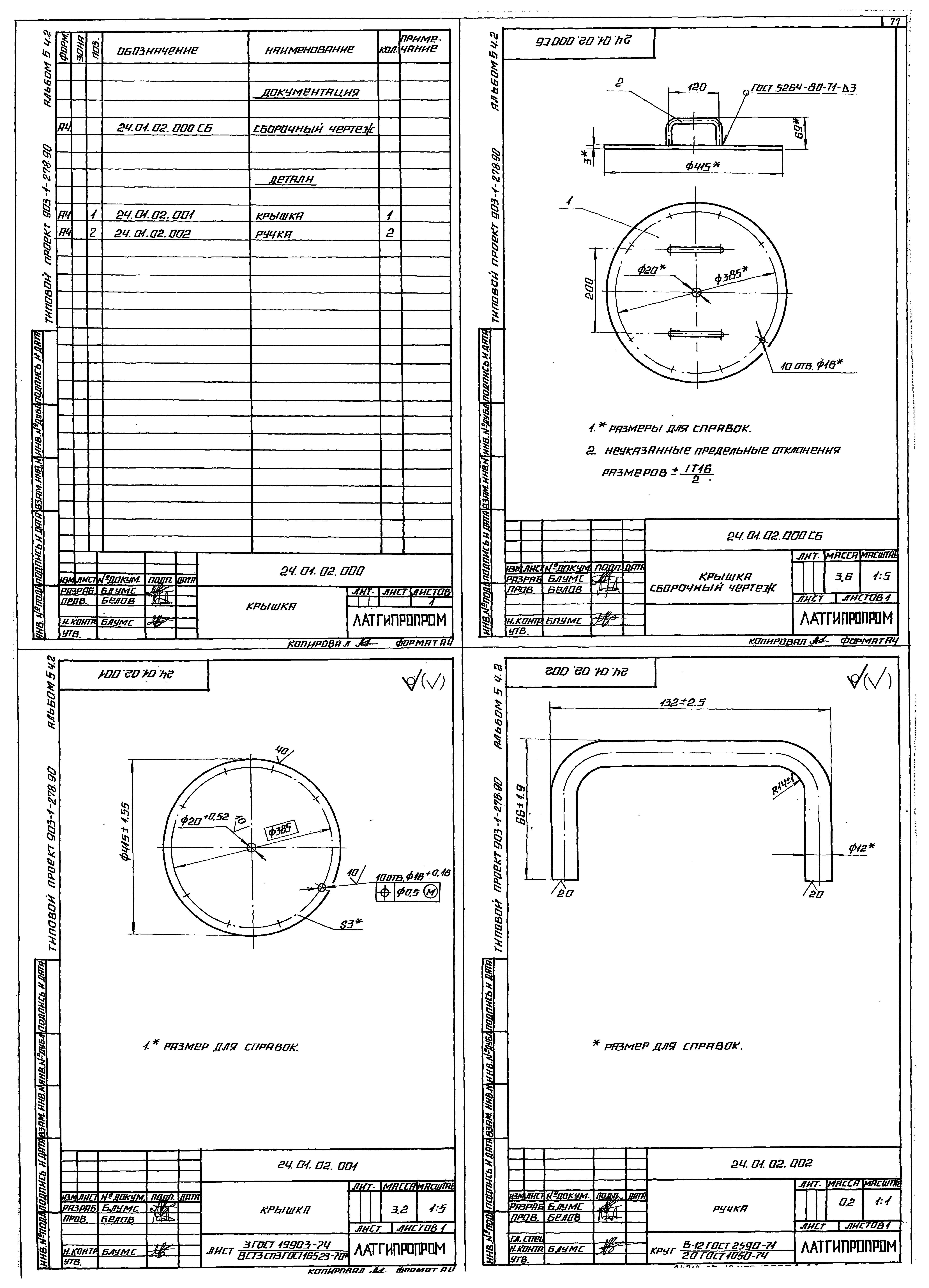
ТП 903-1-278.90 24.01.02.000 Крышка
ТП 903-1-278.90 24.01.02.000 СБ Крышка. Сборочный чертеж
ТП 903-1-278.90 24.01.02.001 Крышка
ТП 903-1-278.90 24.01.02.002 Ручка
ТП 903-1-278.90 24.01.03.000 Кронштейн
ТП 903-1-278.90 24.01.03.000 СБ Кронштейн. Сборочный чертеж
ТП 903-1-278.90 24.01.03.001 Подпорка
ТП 903-1-278.90 24.01.03.002 Полка
ТП 903-1-278.90 Площадка
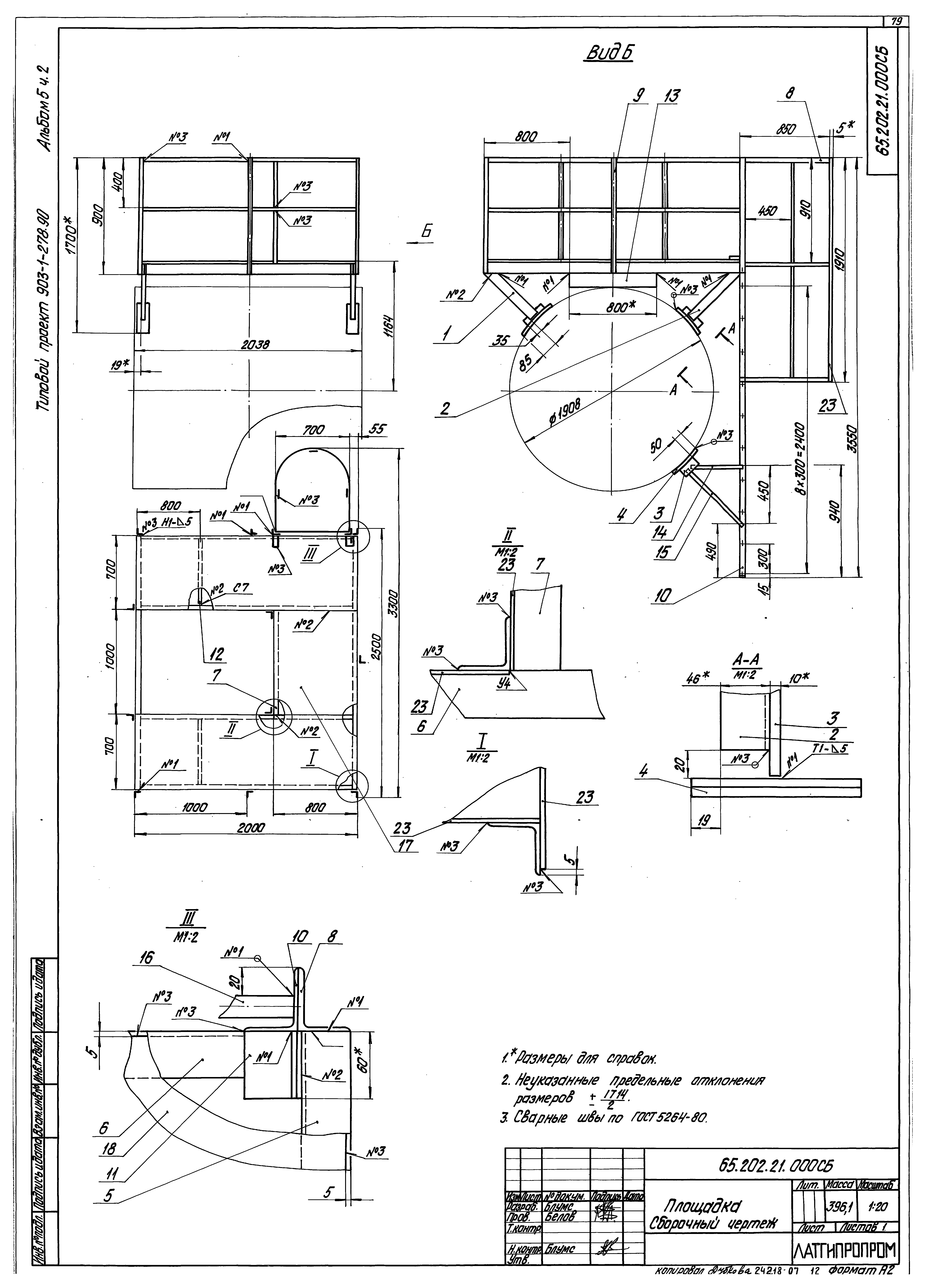
ТП 903-1-278.90 65.202.20.21.000 Площадка
ТП 903-1-278.90 65.202.20.21.000 СБ Площадка. Сборочный чертеж
ТП 903-1-278.90 65.202.20.21.001 Подкос
ТП 903-1-278.90 65.202.20.21.002 Косынка
ТП 903-1-278.90 65.202.20.21.003 Опора
ТП 903-1-278.90 65.202.20.21.007 Дуга
ТП 903-1-278.90 Клапан
ТП 903-1-278.90 65.202.22.000 Клапан
ТП 903-1-278.90 65.202.22.000 СБ Клапан. Сборочный чертеж
ТП 903-1-278.90 65.202.22.002 Подвеска
ТП 903-1-278.90 65.202.22.003 Ось
ТП 903-1-278.90 65.202.22.004 Тяга
ТП 903-1-278.90 65.202.22.005 Фланец
ТП 903-1-278.90 65.202.22.010 Заглушка
ТП 903-1-278.90 65.202.22.010 СБ Заглушка. Сборочный чертеж
ТП 903-1-278.90 65.202.22.011 Серьга
ТП 903-1-278.90 65.202.22.013 Подвеска
ТП 903-1-278.90 65.202.22.020 Поплавок
ТП 903-1-278.90 65.202.22.020 СБ Поплавок. Сборочный чертеж
ТП 903-1-278.90 65.202.22.021 Накладка
ТП 903-1-278.90 65.202.22.100 Цилиндр
ТП 903-1-278.90 65.202.22.100 СБ Цилиндр. Сборочный чертеж
ТП 903-1-278.90 65.202.22.101 Обечайка
ТП 903-1-278.90 Бак-мерник V=2м³
ТП 903-1-278.90 24.03.00.000 Бак-мерник V=2м³
ТП 903-1-278.90 24.03.00.000 СБ Бак-мерник V=2м³. Сборочный чертеж
ТП 903-1-278.90 24.03.00.001 Рейка
ТП 903-1-278.90 24.03.01.000 Бак
ТП 903-1-278.90 24.03.01.000 СБ Бак. Сборочный чертеж
ТП 903-1-278.90 24.03.01.001 Корпус
ТП 903-1-278.90 24.03.01.002 Кольцо
ТП 903-1-278.90 24.03.01.003 Днище
ТП 903-1-278.90 24.03.01.004 Фланец
ТП 903-1-278.90 24.03.01.005 Патрубок
ТП 903-1-278.90 24.03.01.006 Патрубок
ТП 903-1-278.90 24.03.01.007 Сегмент
ТП 903-1-278.90 24.03.01.008 Сектор
ТП 903-1-278.90 24.03.01.009 Балка
ТП 903-1-278.90 24.03.01.010 Кронштейн
ТП 903-1-278.90 24.03.01.011 Бобышка
ТП 903-1-278.90 24.03.02.000 Крышка
ТП 903-1-278.90 24.03.02.000 СБ Крышка. Сборочный чертеж
ТП 903-1-278.90 24.03.02.001 Крышка
ТП 903-1-278.90 24.03.02.002 Ручка
ТП 903-1-278.90 24.03.03.000 Полукрышка
ТП 903-1-278.90 24.03.03.000 СБ Полукрышка. Сборочный чертеж
ТП 903-1-278.90 24.03.04.000 Полукрышка
ТП 903-1-278.90 24.03.04.000 СБ Полукрышка. Сборочный чертеж
Разработан: Латгипропром
Утверждён:23.11.1988 Госстрой СССР (Государственный комитет Совета Министров СССР по делам строительства) (USSR Gosstroy 78)
Расположен в:Техническая документация Строительство Справочные документы Типовые строительные конструкции, изделия и узлы Общероссийский строительный каталог Промышленные предприятия, здания и сооружения Здания и сооружения санитарно-технические Теплоснабжение Котельные установки Открытые системы теплоснабжения Топливо - газ и мазут
Заменяет собой:
Типовой проект 903-1-278.90Типовой проект 903-1-278.90Типовой проект 903-1-278.90Типовой проект 903-1-278.90Типовой проект 903-1-278.90Типовой проект 903-1-278.90Типовой проект 903-1-278.90Типовой проект 903-1-278.90Типовой проект 903-1-278.90Типовой проект 903-1-278.90Типовой проект 903-1-278.90Типовой проект 903-1-278.90Типовой проект 903-1-278.90Типовой проект 903-1-278.90Типовой проект 903-1-278.90Типовой проект 903-1-278.90Типовой проект 903-1-278.90Типовой проект 903-1-278.90Типовой проект 903-1-278.90Типовой проект 903-1-278.90Типовой проект 903-1-278.90Типовой проект 903-1-278.90Типовой проект 903-1-278.90Типовой проект 903-1-278.90Типовой проект 903-1-278.90Типовой проект 903-1-278.90Типовой проект 903-1-278.90

© 2013 Ёшкин Кот :-) Карта сайта