Информационная система
«Ёшкин Кот»

Скачать базу одним архивом
Скачать обновления
История создания базы
Карта сайта

Скачать Типовой проект 903-1-278.90 Альбом 2. Часть 2. Тепломеханические решения. Газоснабжение. Станция водоподготовки

Дата актуализации: 10.08.2017

Типовой проект 903-1-278.90

Альбом 2. Часть 2. Тепломеханические решения. Газоснабжение. Станция водоподготовки

Обозначение: Типовой проект 903-1-278.90
Обозначение англ: 903-1-278.90
Статус:не определен законодательством
Название рус.:Альбом 2. Часть 2. Тепломеханические решения. Газоснабжение. Станция водоподготовки
Дата добавления в базу:01.09.2013
Дата актуализации:05.05.2017
Дата введения:23.11.1988
Оглавление:ТП 903-1-278.90-ГСВ1-1 Общие данные
ТП 903-1-278.90-ГСВ1-2 Газопроводы котельной. План
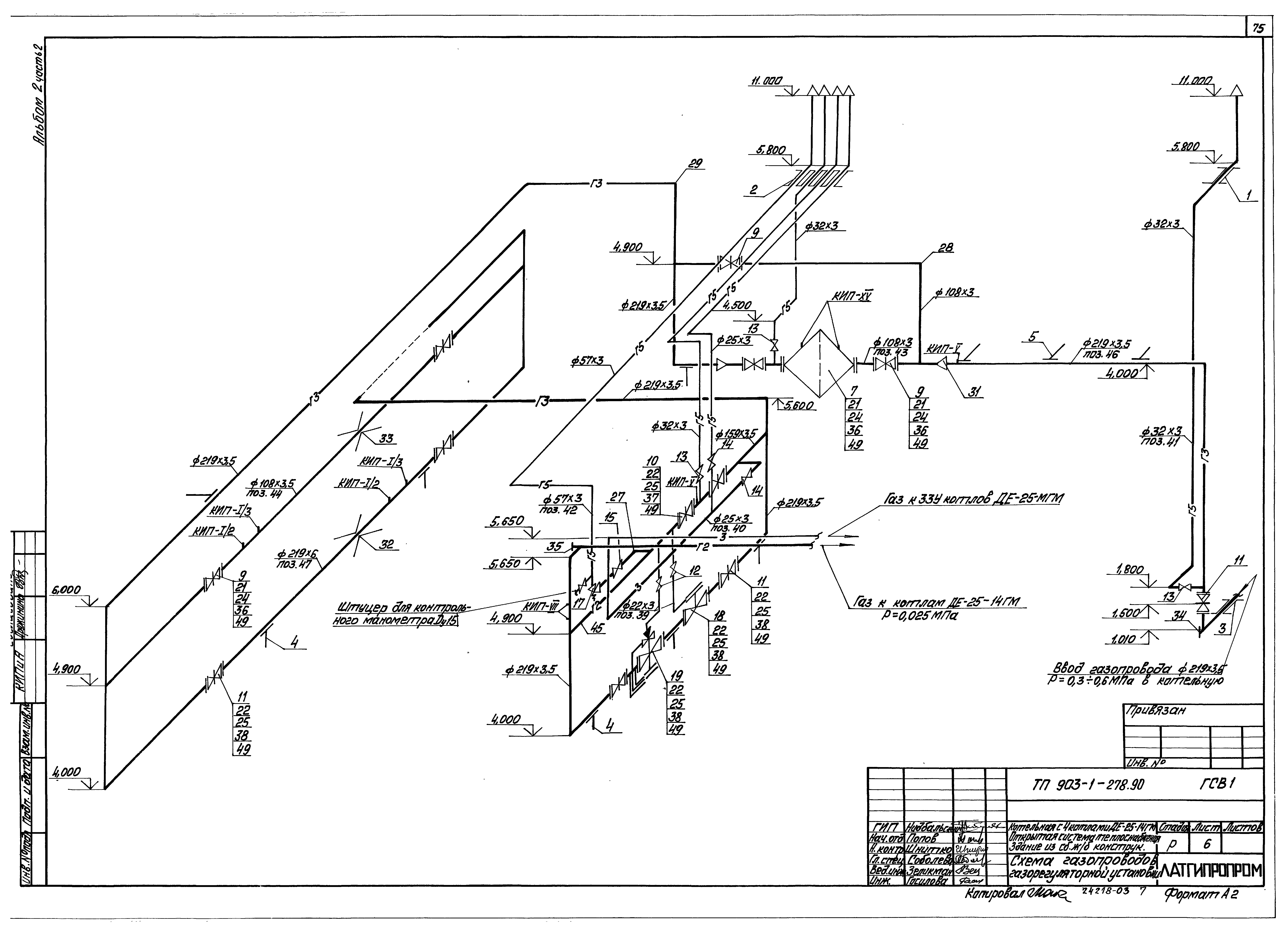
ТП 903-1-278.90-ГСВ1-3 Схема газопроводов котельной
ТП 903-1-278.90-ГСВ1-4 План газорегуляторной установки на отм. 3.300. Вид А. Разрезы 1-1;2-2
ТП 903-1-278.90-ГСВ1-5 Схема газопроводов газорегуляторной установки
ТП 903-1-278.90-ГСВ1-6 Спецификация на оборудование газорегуляторной установки
ТП 903-1-278.90-ВП-1 Общие данные (начало)
ТП 903-1-278.90-ВП-2 Общие данные (продолжение)
ТП 903-1-278.90-ВП-3 Общие данные (продолжение)
ТП 903-1-278.90-ВП-4 Общие данные (окончание)
ТП 903-1-278.90-ВП-5 Схема соединений
ТП 903-1-278.90-ВП-6 Принципиальная схема первоначальной загрузки и гидроперегрузки фильтрующего материала
ТП 903-1-278.90-ВП-7 Компоновка оборудования. План
ТП 903-1-278.90-ВП-8 Компоновка оборудования. План. Разрез А-А
ТП 903-1-278.90-ВП-9 Компоновка оборудования (вариант для здания из ЛМК). План
ТП 903-1-278.90-ВП-10 Компоновка оборудования (вариант для здания из ЛМК). План. Разрез А-А
ТП 903-1-278.90-ВП-11 Трубопроводы исходной, взрыхляющей и химочищенной воды. План
ТП 903-1-278.90-ВП-12 Трубопроводы исходной, взрыхляющей и химочищенной воды. Разрезы А-А,Б-Б,В-В,Г-Г,Д-Д
ТП 903-1-278.90-ВП-13 Трубопроводы исходной, взрыхляющей и химочищенной воды. Разрезы Е-Е,Ж-Ж,И-И
ТП 903-1-278.90-ВП-14 Трубопроводы исходной, взрыхляющей и химочищенной воды. Разрез К-К
ТП 903-1-278.90-ВП-15 Трубопроводы дренажей, горячей воды, раствора соли и конденсата. План
ТП 903-1-278.90-ВП-16 Трубопроводы дренажей, горячей воды, раствора соли и конденсата. Разрезы А-А,Б-Б,В-В,Г-Г,Д-Д,Е-Е
ТП 903-1-278.90-ВП-17 Трубопроводы дренажей, горячей воды, раствора соли и конденсата. План. Разрезы Ж-Ж,З-З
ТП 903-1-278.90-ВП-18 Трубопроводы дренажей, горячей воды, раствора соли и конденсата. Спецификация
Разработан: Латгипропром
Утверждён:23.11.1988 Госстрой СССР (Государственный комитет Совета Министров СССР по делам строительства) (USSR Gosstroy 78)
Расположен в:Техническая документация Строительство Справочные документы Типовые строительные конструкции, изделия и узлы Общероссийский строительный каталог Промышленные предприятия, здания и сооружения Здания и сооружения санитарно-технические Теплоснабжение Котельные установки Открытые системы теплоснабжения Топливо - газ и мазут
Заменяет собой:
Типовой проект 903-1-278.90Типовой проект 903-1-278.90Типовой проект 903-1-278.90Типовой проект 903-1-278.90Типовой проект 903-1-278.90Типовой проект 903-1-278.90Типовой проект 903-1-278.90Типовой проект 903-1-278.90Типовой проект 903-1-278.90Типовой проект 903-1-278.90Типовой проект 903-1-278.90Типовой проект 903-1-278.90Типовой проект 903-1-278.90Типовой проект 903-1-278.90Типовой проект 903-1-278.90Типовой проект 903-1-278.90Типовой проект 903-1-278.90Типовой проект 903-1-278.90Типовой проект 903-1-278.90Типовой проект 903-1-278.90Типовой проект 903-1-278.90Типовой проект 903-1-278.90Типовой проект 903-1-278.90Типовой проект 903-1-278.90Типовой проект 903-1-278.90Типовой проект 903-1-278.90Типовой проект 903-1-278.90

© 2013 Ёшкин Кот :-) Карта сайта