Скачать Шифр 21.0045 Четырехцепные железобетонные опоры ВЛИ 0,4 кВ с самонесущими изолированными проводамиДата актуализации: 10.08.2017 Шифр 21.0045
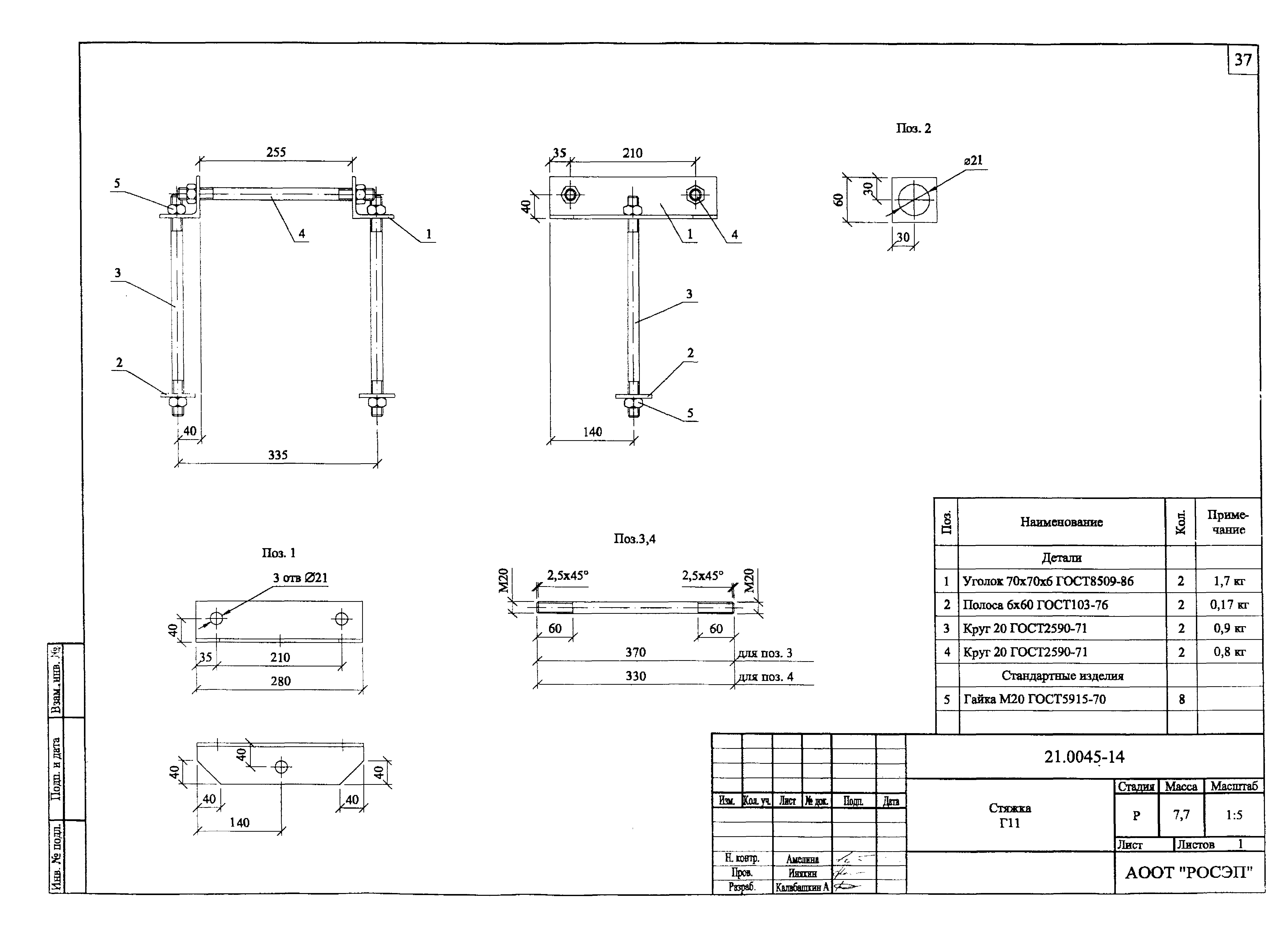
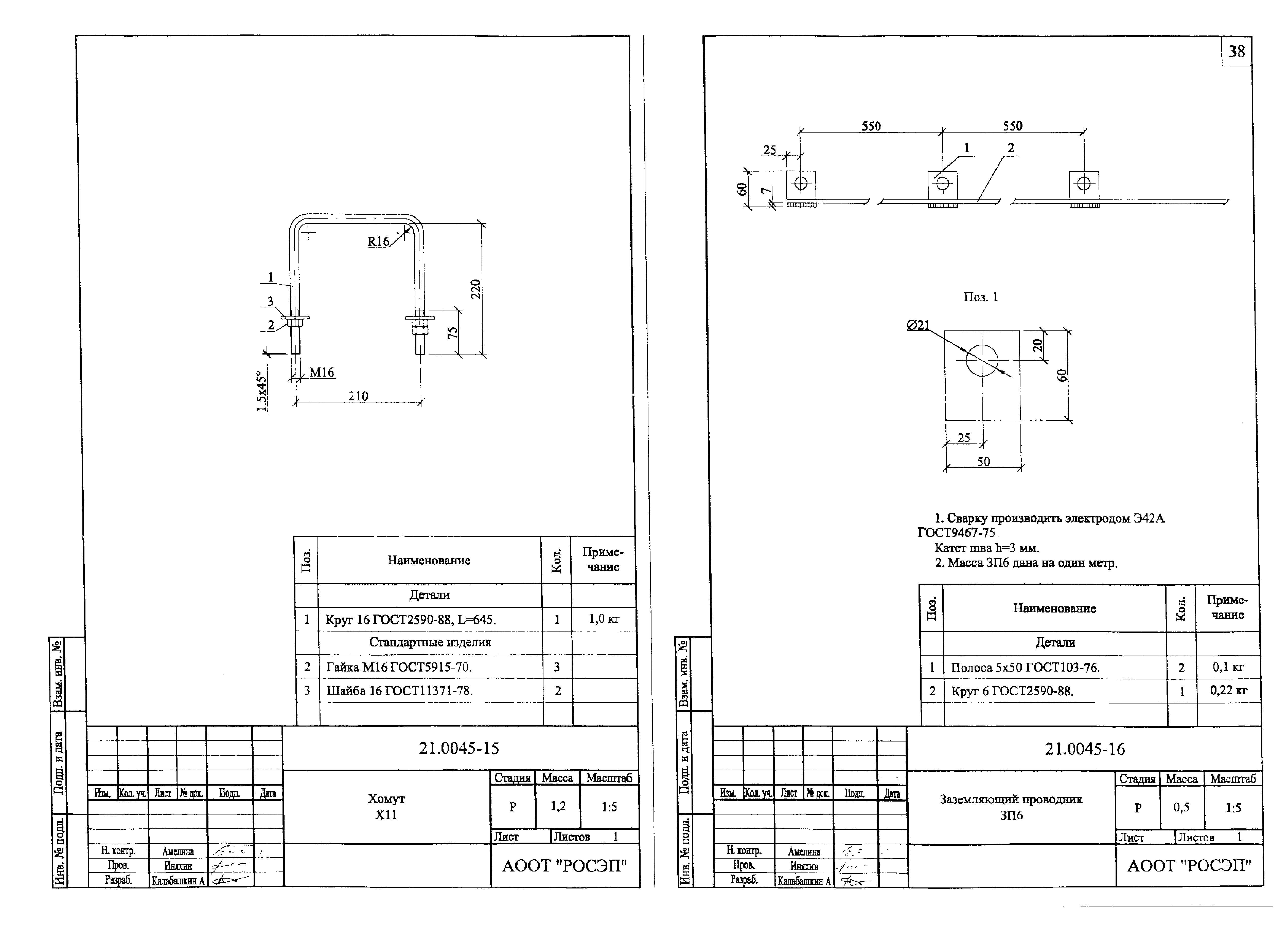
Четырехцепные железобетонные опоры ВЛИ 0,4 кВ с самонесущими изолированными проводамиОбозначение: | Шифр 21.0045 | Обозначение англ: | 21.0045 | Статус: | не определен законодательством | Название рус.: | Четырехцепные железобетонные опоры ВЛИ 0,4 кВ с самонесущими изолированными проводами | Дата добавления в базу: | 01.09.2013 | Дата актуализации: | 05.05.2017 | Дата введения: | 01.01.2001 | Оглавление: | 21.0045-00 Содержание. 21.0045-ПЗ Пояснительная записка. 21.0045-01 Номенклатура опор. 21.0045-02 Промежуточная опора П20. 21.0045-03 Угловая промежуточная опора УП20 21.0045-04 Концевая опора К20. 21.0045-05 Концевая ответвительная опора КО20. 21.0045-06 СБ Железобетонная стойка CB95-3-IV. Сборочный чертеж. 21.0045-07 СБ Железобетонная стойка СВ95-3-А. Сборочный чертеж. 21.0045-08 СБ Железобетонная стойка CB95-3-IV с ненапрягаемой арматурой. Сборочный чертеж. 21.0045-09 СБ Железобетонная стойка CB95-3с-IV. Сборочный чертеж. 21.0045-10 СБ Железобетонная стойка СВ95-3с-А. Сборочный чертеж. 21.0045-11 СБ Железобетонная стойка CB95-3c-IV с ненапрягаемой арматурой. Сборочный чертеж. 21.0045-12 Опорно-анкерная плита П-3и. 21.0045-13 Кронштейн У4. 21.0045-14 Стяжка Г11. 21.0045-15 Хомут X11. 21.0045-16 Заземляющий проводник ЗП6. 21.0045-17 Траверса ТН18. 21.0045-18 Траверса ТН19. | Разработан: | АООТ РОСЭП
| Утверждён: | 01.01.2001 АООТ РОСЭП
| Расположен в: |
|
                                     
|