Скачать Типовой проект 807-11-17.85 Альбом I. Пояснительная записка. Технология производства. Архитектурно-строительные решения. Внутренние водопровод и канализация. Отопление и вентиляция. Электротехнические чертежи. Автоматизация систем отопления и вентиляции. Связь и сигнализацияДата актуализации: 10.08.2017 Типовой проект 807-11-17.85
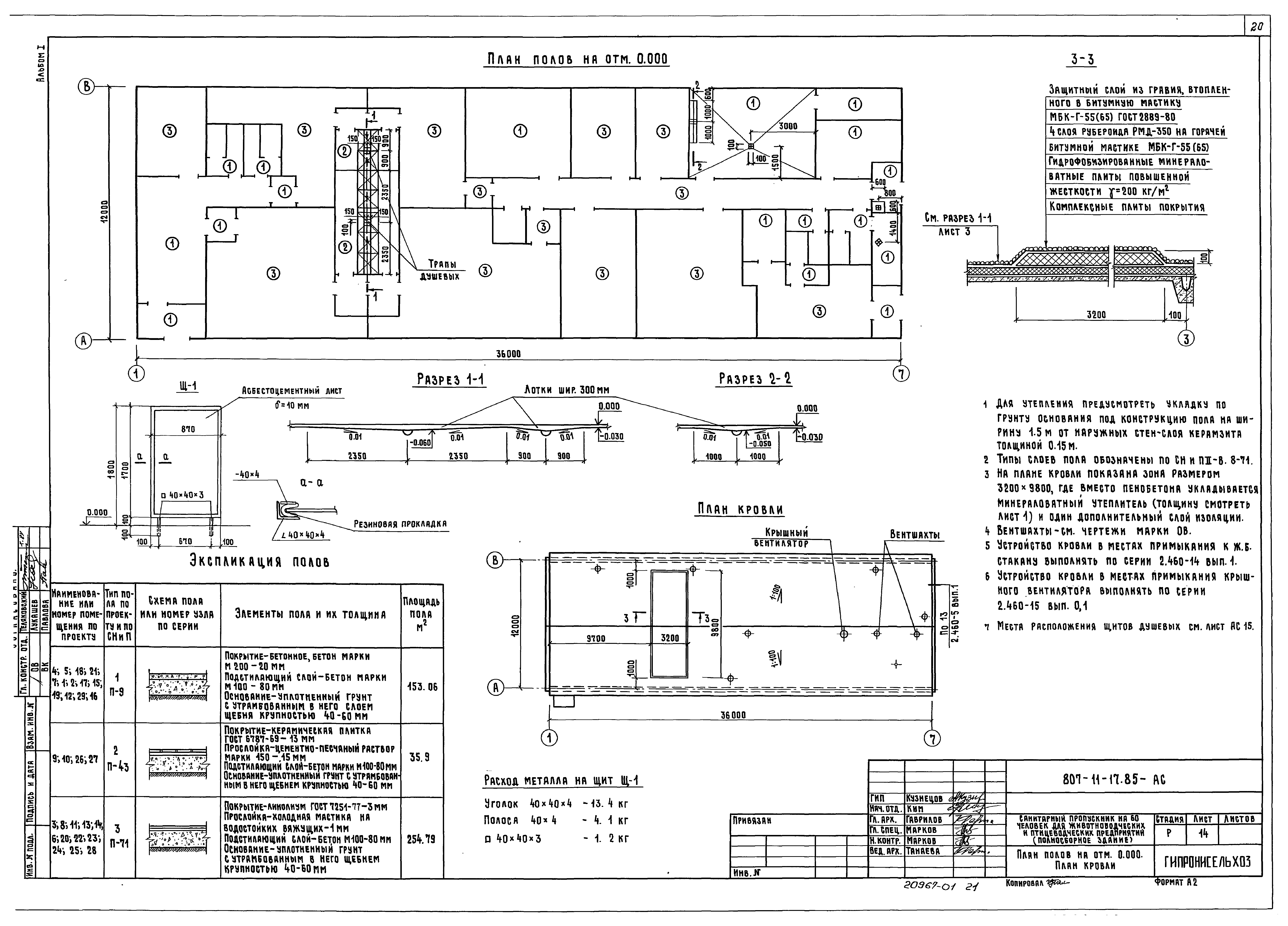
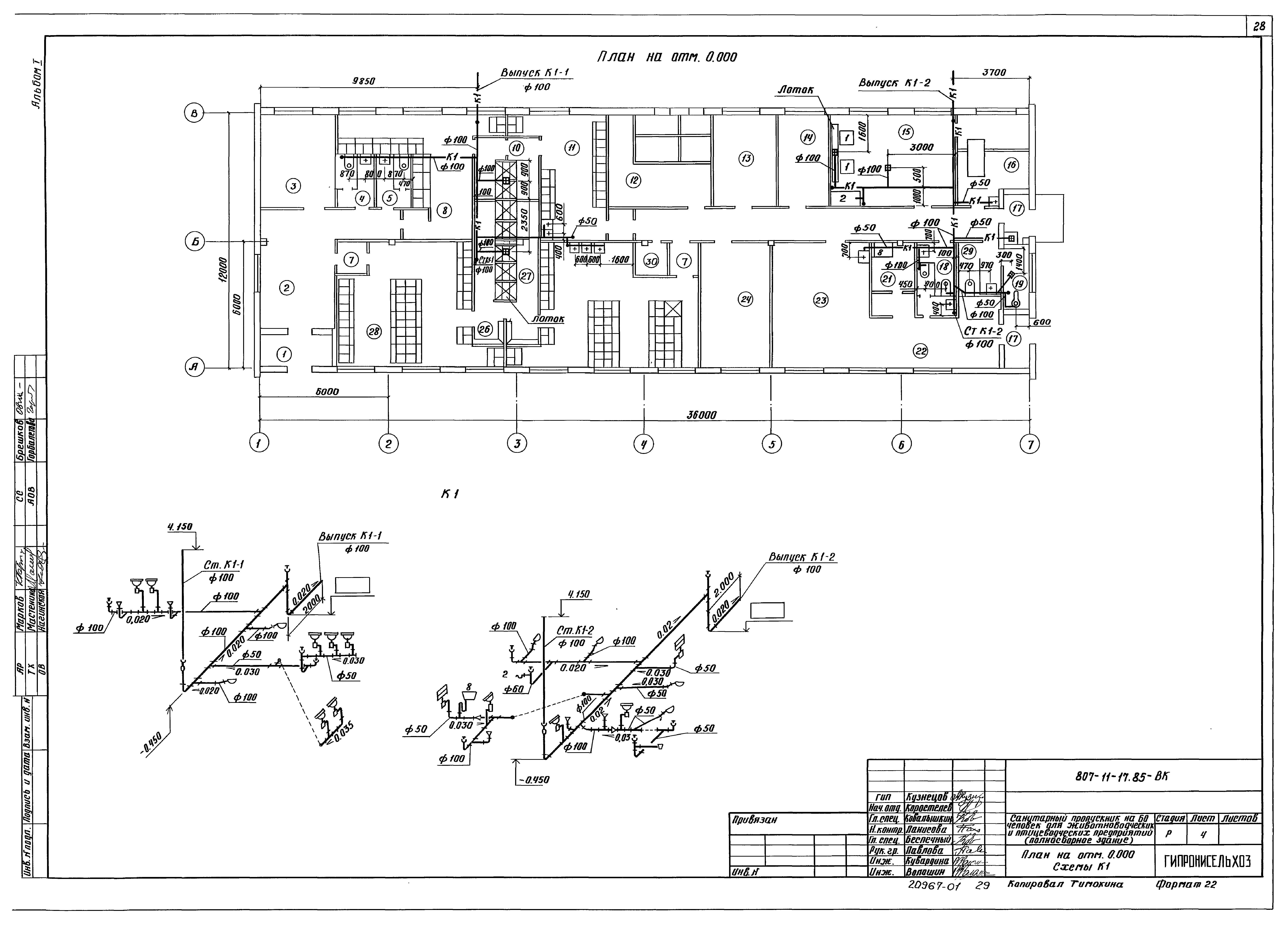
Альбом I. Пояснительная записка. Технология производства. Архитектурно-строительные решения. Внутренние водопровод и канализация. Отопление и вентиляция. Электротехнические чертежи. Автоматизация систем отопления и вентиляции. Связь и сигнализацияОбозначение: | Типовой проект 807-11-17.85 | Обозначение англ: | 807-11-17.85 | Статус: | не определен законодательством | Название рус.: | Альбом I. Пояснительная записка. Технология производства. Архитектурно-строительные решения. Внутренние водопровод и канализация. Отопление и вентиляция. Электротехнические чертежи. Автоматизация систем отопления и вентиляции. Связь и сигнализация | Дата добавления в базу: | 01.09.2013 | Дата актуализации: | 05.05.2017 | Дата введения: | 19.07.1984 | Оглавление: | ТП 801-6-11.85 Содержание ТП 801-6-11.85-ПЗ-1 Пояснительная записка ТП 801-6-11.85-ТХ Основной комплект рабочих чертежей марки ТХ ТП 801-6-11.85-ТХ-1 Общие данные ТП 801-6-11.85-ТХ-2 План ТП 801-6-11.85-АС Основной комплект рабочих чертежей марки АС ТП 801-6-11.85-АС-1 Общие данные (начало) ТП 801-6-11.85-АС-2 Общие данные (окончание) ТП 801-6-11.85-АС-3 План на отм. 0.000. Разрез 1-1 (стены из панелей повышенной заводской готовности) ТП 801-6-11.85-АС-4 Фасады (стены из панелей повышенной заводской готовности) ТП 801-6-11.85-АС-5 План на отметке 0.000. Разрез 1-1 (стены из панелей с горизонтальной разрезкой) ТП 801-6-11.85-АС-6 Фасады (стены из панелей с горизонтальной разрезкой) ТП 801-6-11.85-АС-7 Схема расположения фундаментов ТП 801-6-11.85-АС-8 Схема расположения свай, свай-колонн и фундаментных балок ТП 801-6-11.85-АС-9 Схемы расположения колонн, свай-колонн, балок покрытия и конструкций навеса над входом ТП 801-6-11.85-АС-10 Схема расположения плит покрытия ТП 801-6-11.85-АС-11 Схемы расположения панелей стен (стены из панелей повышенной заводской готовности) ТП 801-6-11.85-АС-12 Схемы расположения панелей стен (стены из панелей с горизонтальной разрезкой) ТП 801-6-11.85-АС-13 Спецификация к схемам расположения панелей стен (стены из панелей с горизонтальной разрезкой) ТП 801-6-11.85-АС-14 План полов на отметке 0.000. План кровли ТП 801-6-11.85-АС-15 Схема расположения панелей перегородок ТП 801-6-11.85-АС-16 Разрезы к схемам расположения панелей перегородок ТП 801-6-11.85-АС-17 Разрезы к схемам расположения панелей перегородок ТП 801-6-11.85-АС-18 Узлы крепления панелей перегородок ТП 801-6-11.85-ВК Основной комплект рабочих чертежей марки ВК ТП 801-6-11.85-ВК-1 Общие данные ТП 801-6-11.85-ВК-2 План на отметке 0.000 ТП 801-6-11.85-ВК-3 Схемы систем В1,Т3 ТП 801-6-11.85-ВК-4 План на отметке 0.000. Схемы К1 ТП 801-6-11.85-ОВ Основной комплект рабочих чертежей марки ОВ ТП 801-6-11.85-ОВ-1 Общие данные (начало) ТП 801-6-11.85-ОВ-2 Общие данные (окончание) ТП 801-6-11.85-ОВ-3 План вентиляции на отметке 0.000 ТП 801-6-11.85-ОВ-4 Схемы систем П1,П2,В1-В4,ВЕ1-ВЕ5 ТП 801-6-11.85-ОВ-5 План отопления и теплоснабжения на отметке 0.000 ТП 801-6-11.85-ОВ-6 Схемы систем отопления и теплоснабжения установок П1,П2. Узел управления ТП 801-6-11.85-ОВ-7 Установки систем П1,П2 ТП 801-6-11.85-ОВН Прилагаемые чертежи ТП 801-6-11.85-ОВН Содержание ТП 801-6-11.85-ОВН1 Тройник ТП 801-6-11.85-ОВН2 Переход ТП 801-6-11.85-ОВН3 Переход ТП 801-6-11.85-ОВН4 Переход ТП 801-6-11.85-ОВН5 Переход ТП 801-6-11.85-ОВН6 Лючек для замера параметров воздуха ТП 801-6-11.85-ОВН7 Сетка в рамке ТП 801-6-11.85-ОВН8 Конструкция тепловой изоляции трубопровода ТП 801-6-11.85-ОВН9 Конструкция изоляции воздуховода ТП 801-6-11.85-Э Основной комплект рабочих чертежей марки Э ТП 801-6-11.85-Э-1д Общие данные ТП 801-6-11.85-Э-2д Электроосвещение. План сети. Силовое электрооборудование. План сети ТП 801-6-11.85-Э-3д Электроосвещение. Спецификация ТП 801-6-11.85-Э-4 Силовое электрооборудование. Спецификация ТП 801-6-11.85-Э-5 Электроосвещение и силовое электрооборудование. Расчетная схема сети. Планы трубных проводок ТП 801-6-11.85-АОВ Основной комплект рабочих чертежей марки АОВ ТП 801-6-11.85-АОВ-1 Общие данные. Приточная система П1,П2. Схема функциональная. Схема электрическая принципиальная управления ТП 801-6-11.85-АОВ-2 Приточная система П1,П2. Схема внешних проводок. План расположения ТП 801-6-11.85-СС Основной комплект рабочих чертежей марки СС ТП 801-6-11.85-СС-1 Общие данные ТП 801-6-11.85-СС-2 План расположения сетей связи и сигнализации | Разработан: | ФГНУ НПЦ Гипронисельхоз
| Утверждён: | 19.04.1983 Главсельстройпроект Минсельхоза СССР (Glavselstroyproject, USSR Minselkhoz 33)
| Расположен в: |
|
                                                
|