Скачать Типовые проектные решения 409-28-053.89 Альбом 5. Вариант в сборном керамзитобетоне. Вариант в монолитном керамзитобетоне. Камеры типа III. Конструкции железобетонные. Конструкции металлическиеДата актуализации: 10.08.2017 Типовые проектные решения 409-28-053.89
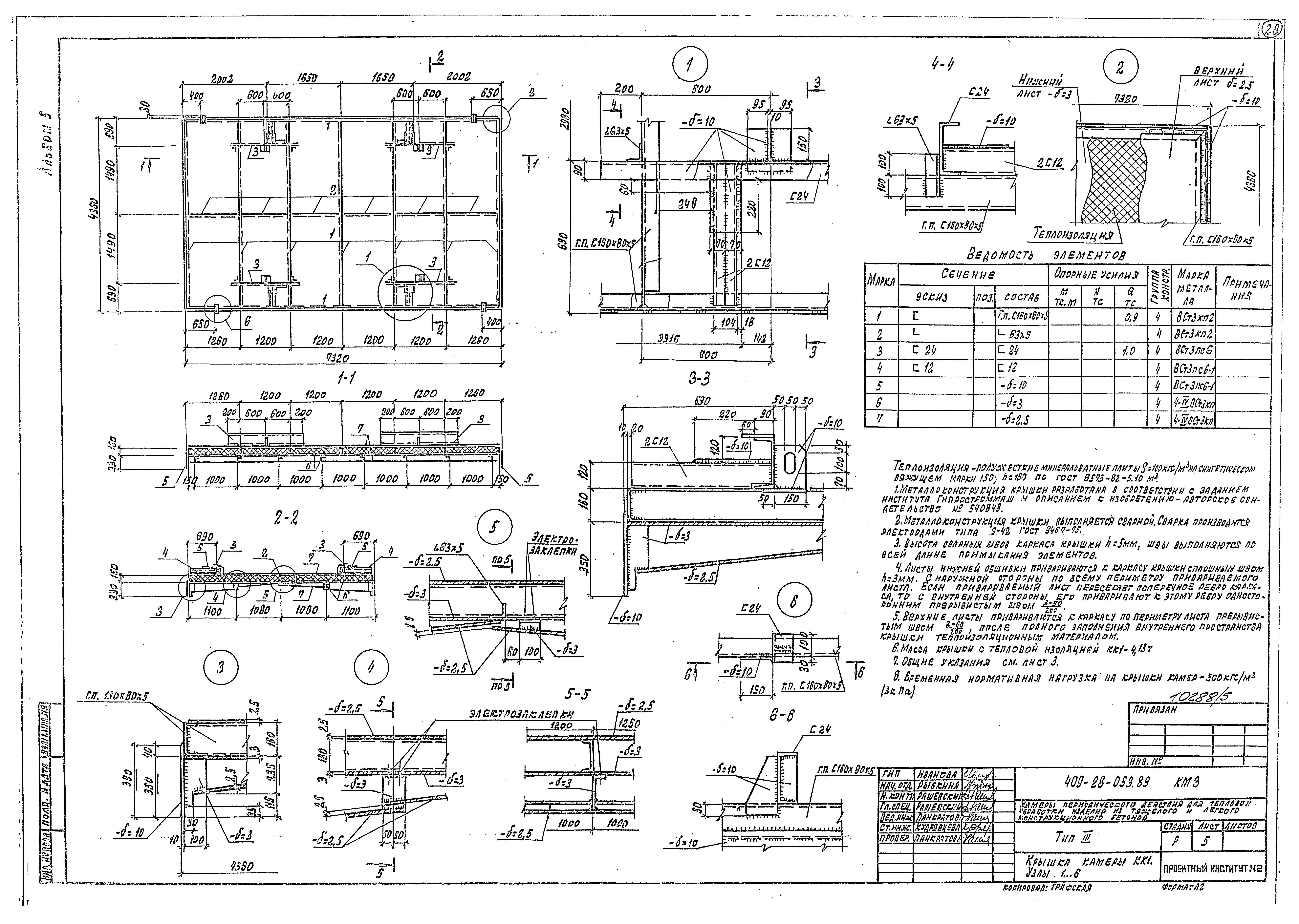
Альбом 5. Вариант в сборном керамзитобетоне. Вариант в монолитном керамзитобетоне. Камеры типа III. Конструкции железобетонные. Конструкции металлическиеОбозначение: | Типовые проектные решения 409-28-053.89 | Обозначение англ: | 409-28-053.89 | Статус: | cправочные материалы, мп, тпр | Название рус.: | Альбом 5. Вариант в сборном керамзитобетоне. Вариант в монолитном керамзитобетоне. Камеры типа III. Конструкции железобетонные. Конструкции металлические | Дата добавления в базу: | 01.09.2013 | Дата актуализации: | 05.05.2017 | Дата введения: | 18.08.1989 | Разработан: | Гипростроммаш
| Утверждён: | 18.08.1989 Гипростроммаш (109)
| Расположен в: |
|
                           
|