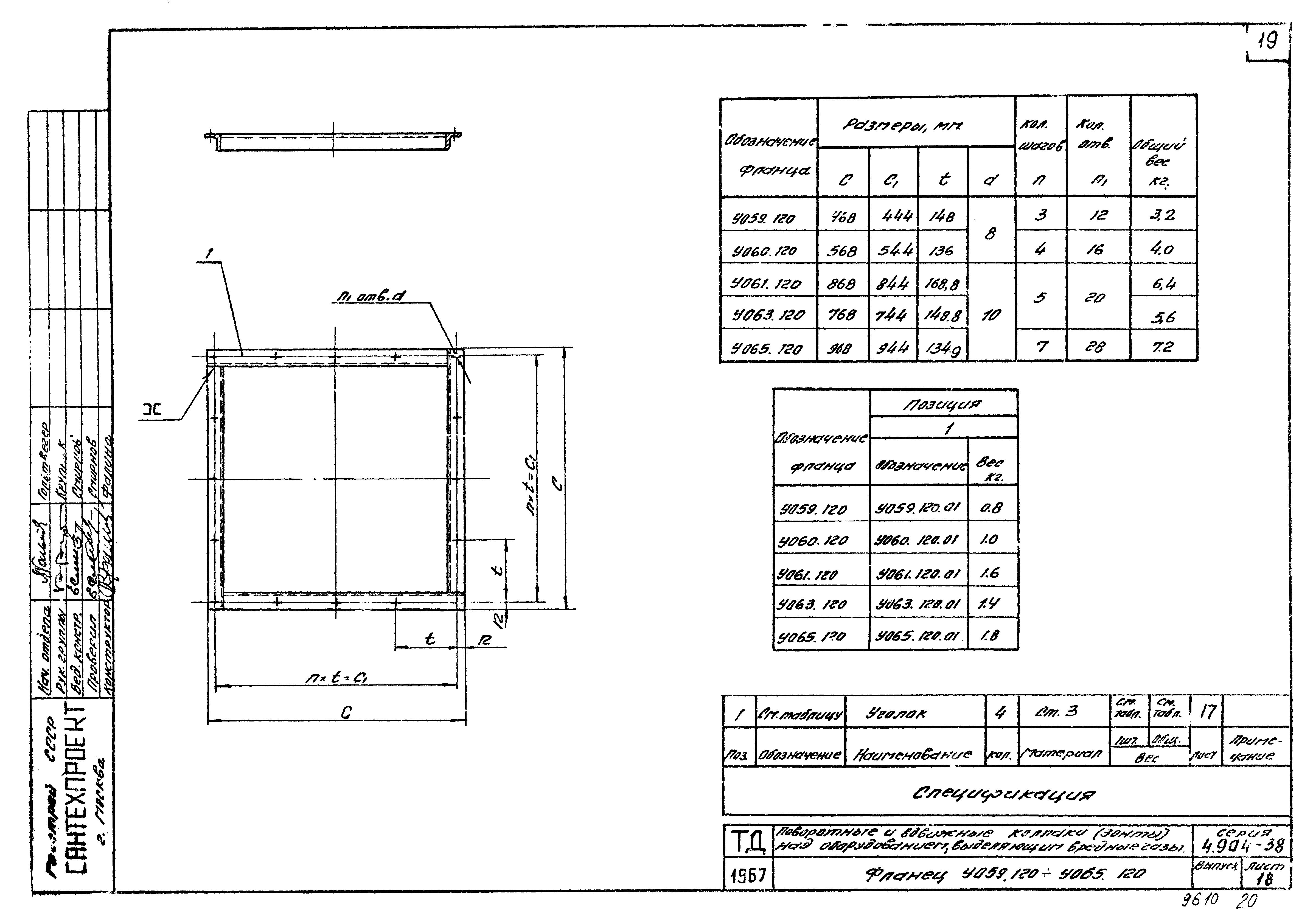
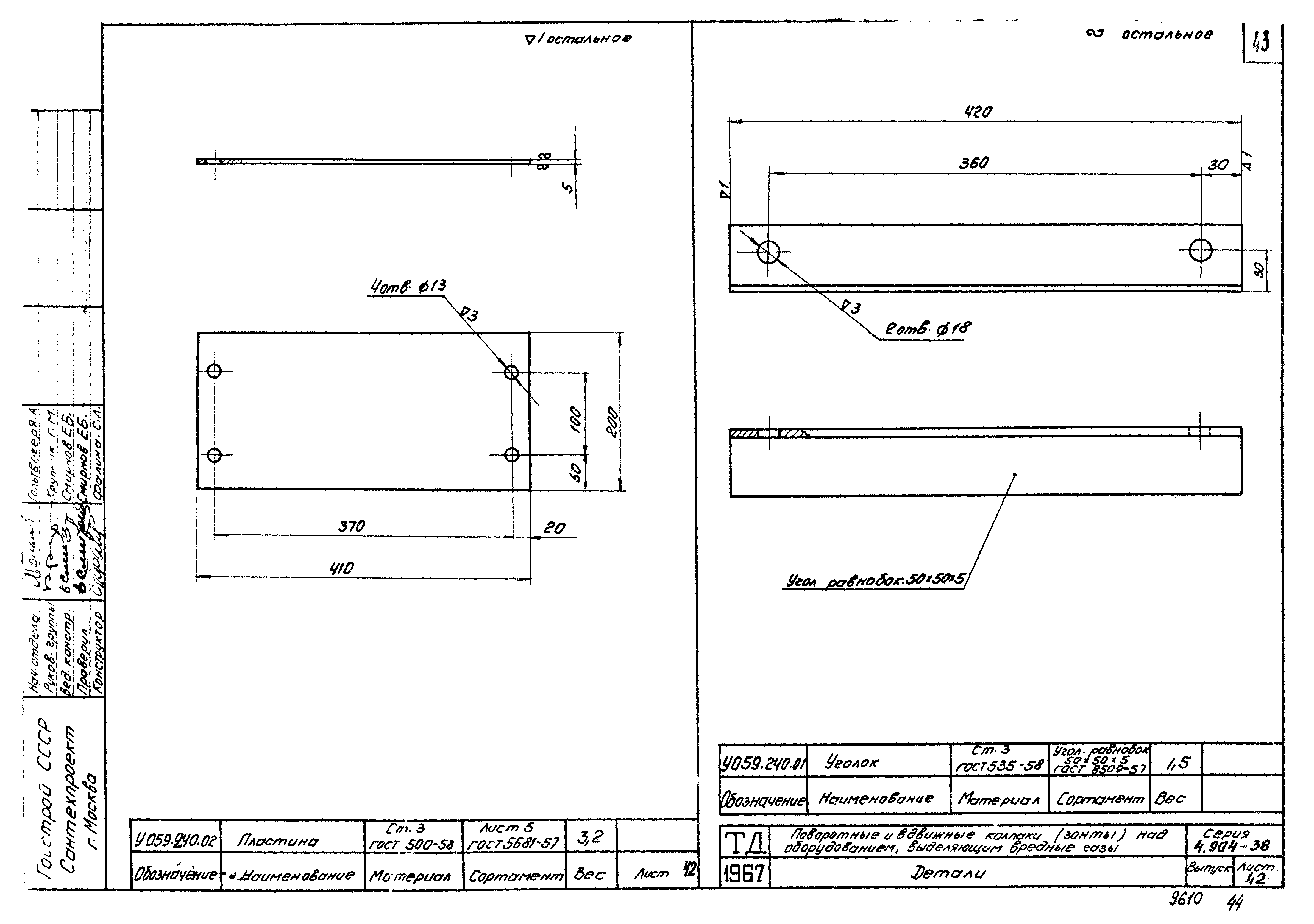
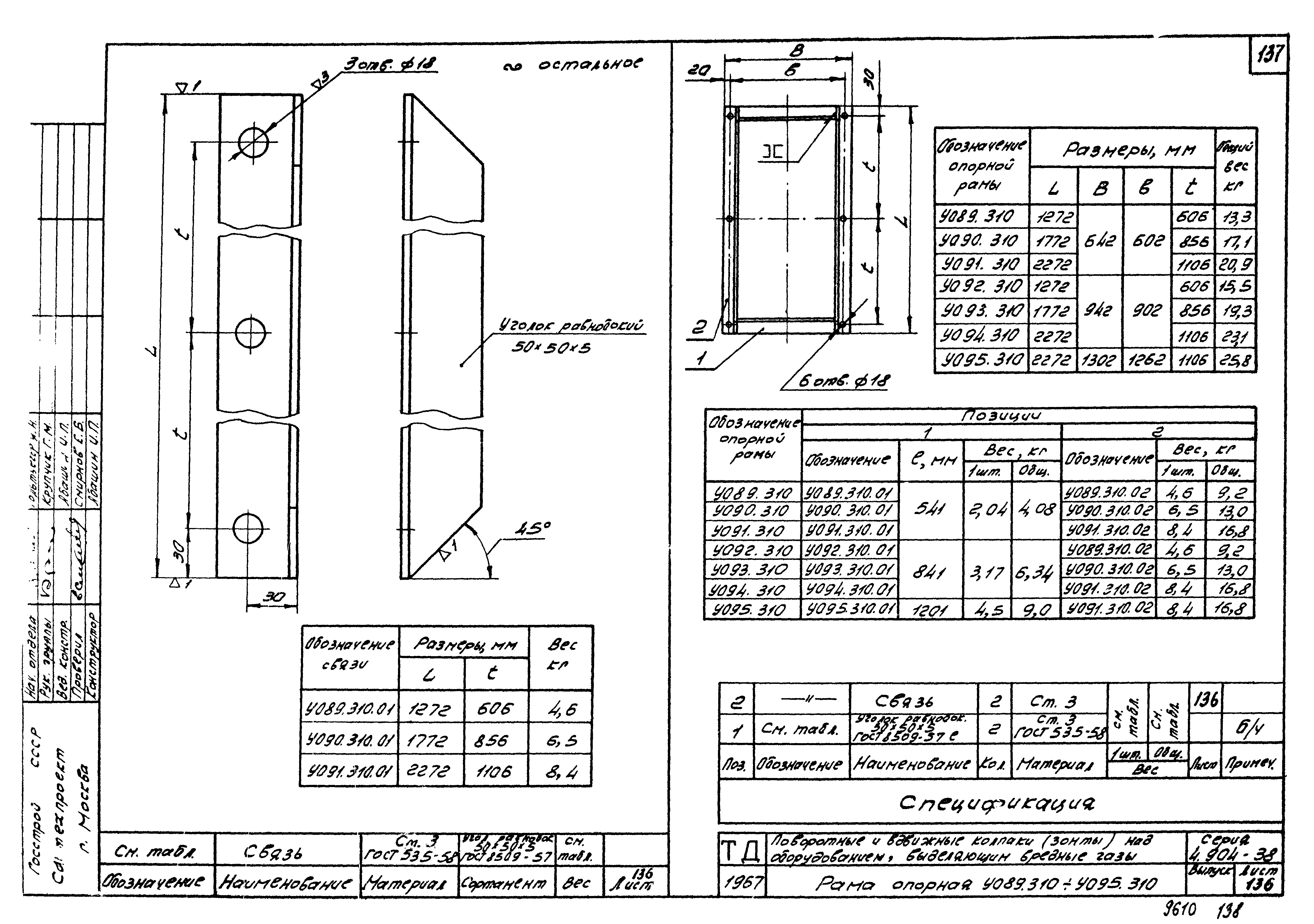
Скачать Серия 4.904-38 Поворотные и вдвижные колпаки (зонты) над оборудованием, выделяющим вредные газы. Рабочие чертежиДата актуализации: 10.08.2017 Серия 4.904-38
Поворотные и вдвижные колпаки (зонты) над оборудованием, выделяющим вредные газы. Рабочие чертежиОбозначение: | Серия 4.904-38 | Обозначение англ: | Series 4.904-38 | Статус: | не определен законодательством | Название рус.: | Поворотные и вдвижные колпаки (зонты) над оборудованием, выделяющим вредные газы. Рабочие чертежи | Дата добавления в базу: | 01.09.2013 | Дата актуализации: | 05.05.2017 | Дата введения: | 05.11.1967 | Разработан: | ГПИ Сантехпроект Госстроя СССР
| Утверждён: | 05.11.1967 Госстрой СССР (Государственный комитет Совета Министров СССР по делам строительства) (USSR Gosstroy 55)
| Издан: | ЦИТП Госстроя СССР (CITP, Gosstroy (USSR) 1970 г. )
| Расположен в: |
|
                                                                                                                                                   
|