Информационная система
«Ёшкин Кот»

Скачать базу одним архивом
Скачать обновления
История создания базы
Карта сайта

Скачать Типовой проект 902-2-378.83 Альбом II. Архитектурно-строительная часть

Дата актуализации: 10.08.2017

Типовой проект 902-2-378.83

Альбом II. Архитектурно-строительная часть

Обозначение: Типовой проект 902-2-378.83
Обозначение англ: 902-2-378.83
Статус:действует
Название рус.:Альбом II. Архитектурно-строительная часть
Дата добавления в базу:01.09.2013
Дата актуализации:05.05.2017
Дата введения:10.08.1983
Оглавление:ТП 902-2-378.83-АС-1 Общие данные (начало)
ТП 902-2-378.83-АС-2 Общие данные (продолжение)
ТП 902-2-378.83-АС-3-7 Общие данные (окончание)
ТП 902-2-378.83-АС-8 Планы группы отстойников и коммуникаций
ТП 902-2-378.83-АС-9 Отстойник. План 1-1. Сечения 2-2,3-3
ТП 902-2-378.83-АС-10 Отстойник. Центральная часть. Сечения 4-4÷8-8. Узел 1
ТП 902-2-378.83-АС-11 Отстойник. Спецификация центральной части и днища. Ведомости и спецификации
ТП 902-2-378.83-АС-12 Отстойник. Днище. Армирование. Планы. Сечения 1-1,2-2. Узел 1
ТП 902-2-378.83-АС-13 Отстойник. Центральная часть. Армирование. Сечения 3-3÷9-9. Узел 2
ТП 902-2-378.83-АС-14 Отстойник. Центральная часть. Армирование. Сечения 10-10÷13-13
ТП 902-2-378.83-АС-15 Отстойник. Схема расположения стеновых панелей. Узлы 1,2. Сечение 1-1
ТП 902-2-378.83-АС-16 Отстойник. Узлы 3-6
ТП 902-2-378.83-АС-17 Отстойник. Узел 7. Сечения 6-6÷8-8
ТП 902-2-378.83-АС-18 Отстойник. Схема расположения стеновых лотков. Узел 8
ТП 902-2-378.83-АС-19 Отстойник. Выпускная камера. Сечения 1-1÷6-6
ТП 902-2-378.83-АС-20 Отстойник. Выпускная камера. Армирование. Сечения 6-6÷11-11
ТП 902-2-378.83-АС-21 Отстойник. Борт отстойника. Выпускная камера. Армирование
ТП 902-2-378.83-АС-22 Распределительная чаша. Планы 1-1,2-2,5-5. Сечения 3-3,4-4,6-6
ТП 902-2-378.83-АС-23 Распределительная чаша. Армирование. Сечения 1-1÷4-4
ТП 902-2-378.83-АС-24 Распределительная чаша. Армирование. Сечения 5-5÷11-11
ТП 902-2-378.83-АС-25 Жиросборники Ж1,Ж2. Планы, сечения
ТП 902-2-378.83-АС-26 Жиросборники Ж1,Ж2. Армирование. Планы. Сечения
ТП 902-2-378.83-АС-27 Камеры ОП1 и ОП2. Планы, сечения
ТП 902-2-378.83-АС-28 Камера ОП1. Армирование. Планы, сечения
ТП 902-2-378.83-АС-29 Камера ОП2. Армирование. Планы, сечения
ТП 902-2-378.83-АС-30 Насосная станция сырого осадка. Общие данные
ТП 902-2-378.83-АС-31 Насосная станция сырого осадка. Фасады 1-2,2-1,А-Б. План надземной части. Узел А
ТП 902-2-378.83-АС-32 Насосная станция сырого осадка. Разрезы 1-1,2-2,3-3. План подземной части
ТП 902-2-378.83-АС-33 Насосная станция сырого осадка. Спецификации. Ведомости. Детали 1,2
ТП 902-2-378.83-АС-34 Насосная станция сырого осадка. Схема расположения стеновых панелей
ТП 902-2-378.83-АС-35 Насосная станция сырого осадка. Схема расположения стеновых панелей. Узлы 1-7
ТП 902-2-378.83-АС-36 Насосная станция сырого осадка. Днище. Опалубочный чертеж. План и сечения
ТП 902-2-378.83-АС-37 Насосная станция сырого осадка. Днище. Армирование. Планы. Сечение 1-1
ТП 902-2-378.83-АС-38 Насосная станция сырого осадка. Днище. Армирование. Планы. Сечение 2-2÷4-4. Узел 1
ТП 902-2-378.83-АС-39 Насосная станция сырого осадка. Монолитные участки УМ1-УМ4. Армирование. План. Сечения
ТП 902-2-378.83-АС-40 Насосная станция сырого осадка. Обвязочный пояс ОПМ1. Армирование. План. Сечения 1-1÷5-5
ТП 902-2-378.83-АС-41 Насосная станция сырого осадка. Схема покрытия на отметке 6.400 и перекрытий на отметках 0.000 и 2.250
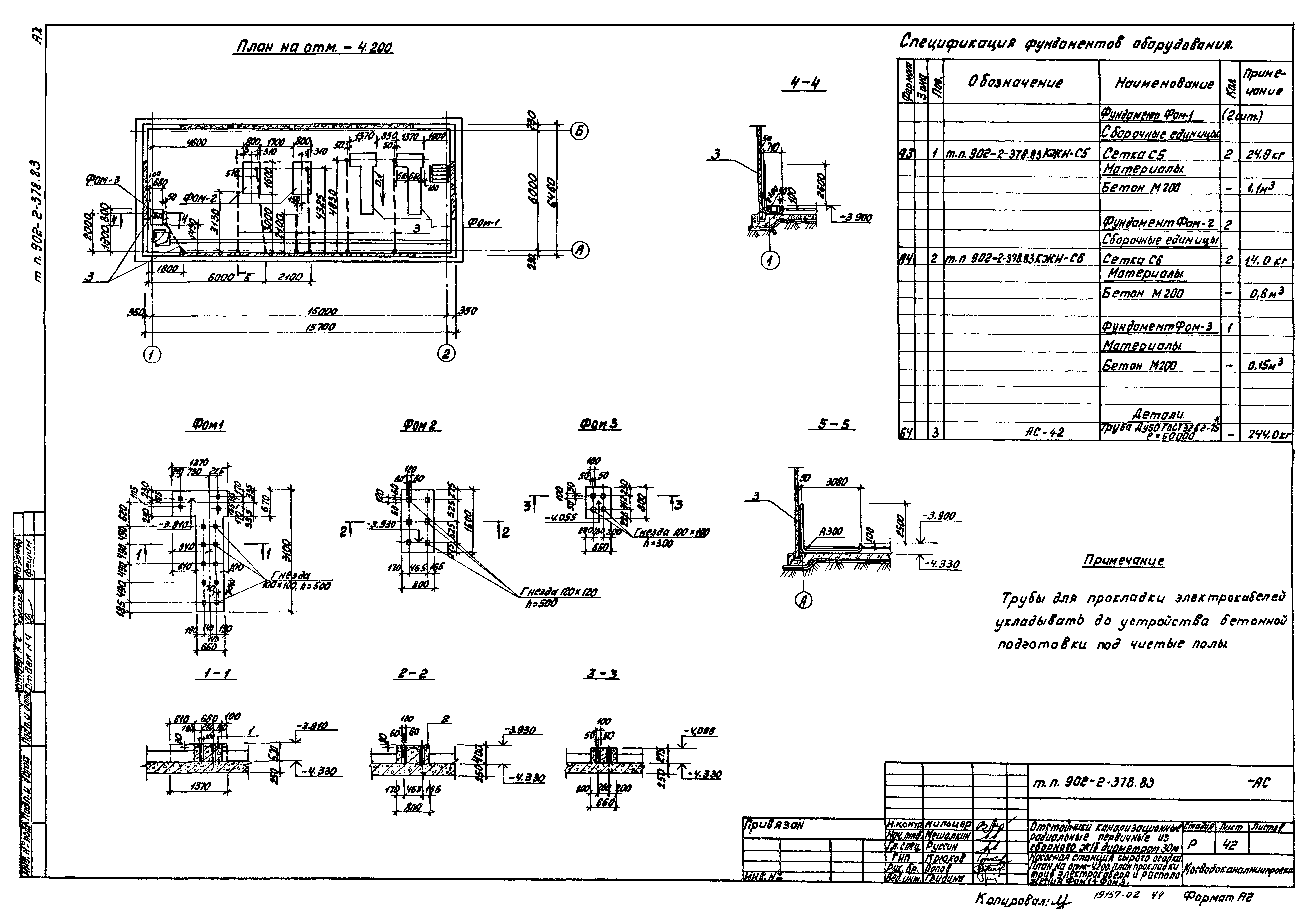
ТП 902-2-378.83-АС-42 Насосная станция сырого осадка. План на отметке -4.200. План прокладки труб электрокабеля и расположения ФОМ1-ФОМ3
ТП 902-2-378.83-АС-43 Насосная станция сырого осадка. Помещение щитов. Планы 1-1,2-2. Сечения 3-3÷5-5. Щит ДЩ1
ТП 902-2-378.83-АС-44 Насосная станция сырого осадка. Общие данные
ТП 902-2-378.83-АС-45 Насосная станция сырого осадка. Схема монорельса на отметке -0.780
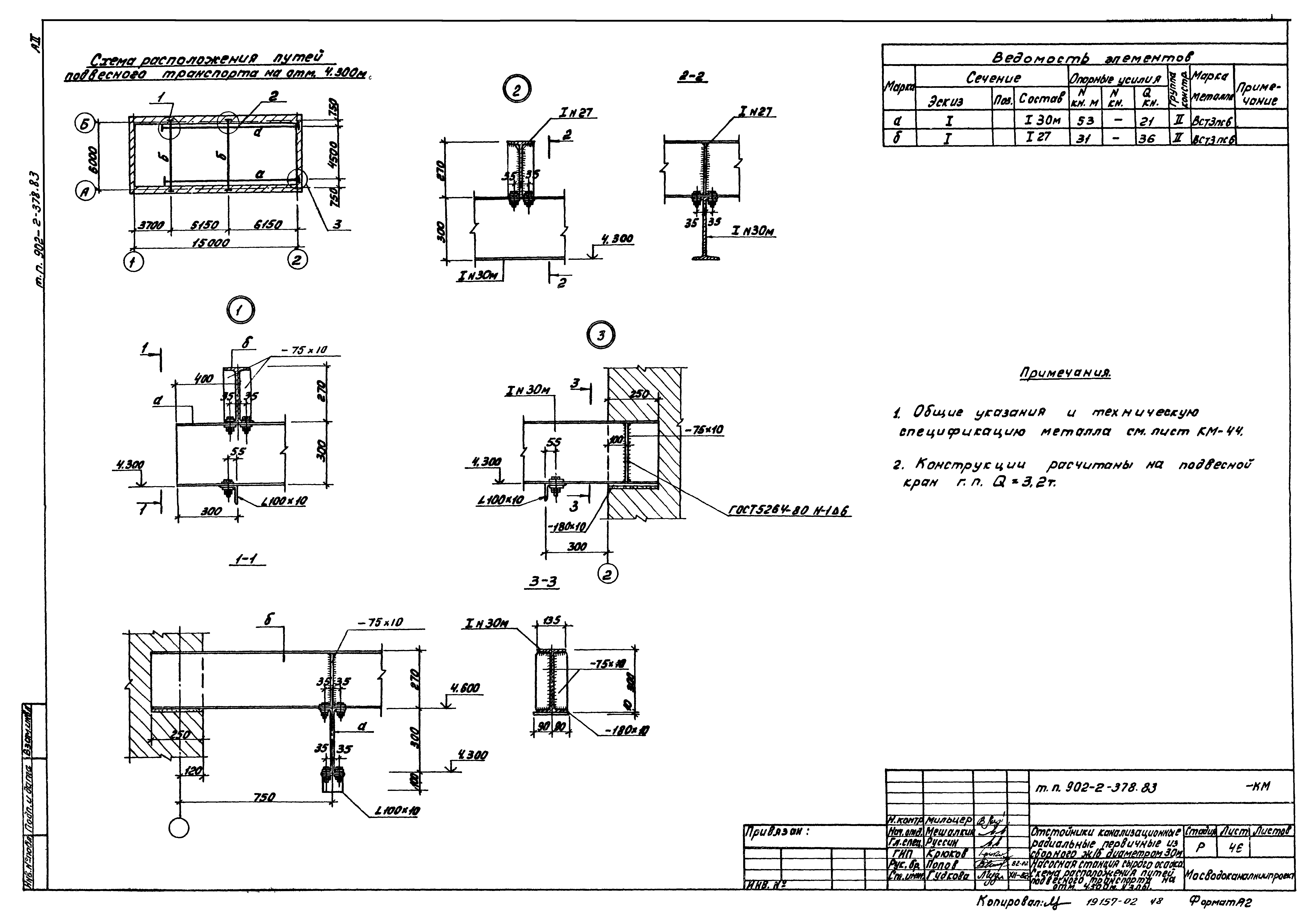
ТП 902-2-378.83-АС-46 Насосная станция сырого осадка. Схема расположения путей подвесного транспорта на отметке 4.300. Узлы
ТП 902-2-378.83-АС-47 Насосная станция сырого осадка. Площадки и лестницы. План, сечения, узлы
ТП 902-2-378.83-АС-48 Насосная станция сырого осадка. Схема крепления технологических трубопроводов
ТП 902-2-378.83-АС-49 Техническая спецификация металла
ТП 902-2-378.83-АС-50 Ведомость конструкций по видам профилей
Разработан: МосводоканалНИИпроект
Утверждён:10.08.1983 МосводоканалНИИпроект (192)
Расположен в:Техническая документация Строительство Справочные документы Типовые строительные конструкции, изделия и узлы Общероссийский строительный каталог Промышленные предприятия, здания и сооружения Здания и сооружения санитарно-технические Канализация Сооружения механической очистки Отстойники Отстойники радиальные первичные
Типовой проект 902-2-378.83Типовой проект 902-2-378.83Типовой проект 902-2-378.83Типовой проект 902-2-378.83Типовой проект 902-2-378.83Типовой проект 902-2-378.83Типовой проект 902-2-378.83Типовой проект 902-2-378.83Типовой проект 902-2-378.83Типовой проект 902-2-378.83Типовой проект 902-2-378.83Типовой проект 902-2-378.83Типовой проект 902-2-378.83Типовой проект 902-2-378.83Типовой проект 902-2-378.83Типовой проект 902-2-378.83Типовой проект 902-2-378.83Типовой проект 902-2-378.83Типовой проект 902-2-378.83Типовой проект 902-2-378.83Типовой проект 902-2-378.83Типовой проект 902-2-378.83Типовой проект 902-2-378.83Типовой проект 902-2-378.83Типовой проект 902-2-378.83Типовой проект 902-2-378.83Типовой проект 902-2-378.83Типовой проект 902-2-378.83Типовой проект 902-2-378.83Типовой проект 902-2-378.83Типовой проект 902-2-378.83Типовой проект 902-2-378.83Типовой проект 902-2-378.83Типовой проект 902-2-378.83Типовой проект 902-2-378.83Типовой проект 902-2-378.83Типовой проект 902-2-378.83Типовой проект 902-2-378.83Типовой проект 902-2-378.83Типовой проект 902-2-378.83Типовой проект 902-2-378.83Типовой проект 902-2-378.83Типовой проект 902-2-378.83Типовой проект 902-2-378.83Типовой проект 902-2-378.83Типовой проект 902-2-378.83Типовой проект 902-2-378.83Типовой проект 902-2-378.83Типовой проект 902-2-378.83Типовой проект 902-2-378.83Типовой проект 902-2-378.83Типовой проект 902-2-378.83

© 2013 Ёшкин Кот :-) Карта сайта