Информационная система
«Ёшкин Кот»

Скачать базу одним архивом
Скачать обновления
История создания базы
Карта сайта

Скачать Серия 3.904-15 Выпуск 1-13. Конструкции камер. Рабочие чертежи. Приемные секции с различным расположением рециркуляционных отверстий

Дата актуализации: 10.08.2017

Серия 3.904-15

Выпуск 1-13. Конструкции камер. Рабочие чертежи. Приемные секции с различным расположением рециркуляционных отверстий

Обозначение: Серия 3.904-15
Обозначение англ: Series 3.904-15
Статус:не действует
Название рус.:Выпуск 1-13. Конструкции камер. Рабочие чертежи. Приемные секции с различным расположением рециркуляционных отверстий
Дата добавления в базу:01.09.2013
Дата актуализации:05.05.2017
Дата введения:15.03.1978
Дата окончания срока действия:01.10.1982
Оглавление:3.904-15 Содержание
3.904-15 А1А136.000ТО Секция приемная с фильтром приточной камеры типа 1ПК10 с рециркуляционной заслонкой на задней панели. Техническое описание
3.904-15 А1А136.000 Секция приемная с фильтром приточной камеры типа 1ПК10 с рециркуляционной заслонкой на задней панели
3.904-15 А1А136.010 Панель задняя
3.904-15 А1А136.000 СБ Секция приемная с фильтром приточной камеры типа 1ПК10 с рециркуляционной заслонкой на задней панели. Сборочный чертеж
3.904-15 А1А136.010 СБ Панель задняя
3.904-15 А1А136.012 Угольник
3.904-15 А1А136.013 Угольник
3.904-15 А1А136.014 Профиль
3.904-15 А1А137.000 Секция приемная приточной камеры типа 1ПК10 с рециркуляционной заслонкой на задней панели
3.904-15 А1А137.000 СБ Секция приемная приточной камеры типа 1ПК10 с рециркуляционной заслонкой на задней панели. Сборочный чертеж
3.904-15 А1А138.000 Секция приемная приточной камеры типа 1ПК10 с нижним расположением рециркуляционной заслонки
3.904-15 А1А138.010 Патрубок
3.904-15 А1А138.000 СБ Секция приемная приточной камеры типа 1ПК10 с нижним расположением рециркуляционной заслонки. Сборочный чертеж
3.904-15 А1А138.020 Крышка
3.904-15 А1А138.030 Решетка
3.904-15 А1А138.040 Корыто
3.904-15 А1А138.010 СБ Патрубок. Сборочный чертеж
3.904-15 А1А138.020 СБ Крышка. Сборочный чертеж
3.904-15 А1А138.030 СБ Решетка. Сборочный чертеж
3.904-15 А1А138.035 Хомут
3.904-15 А1А138.036 Ручка
3.904-15 А1А138.040 СБ Корыто
3.904-15 А1А138.055 Профиль
3.904-15 А1А138.056 Корыто
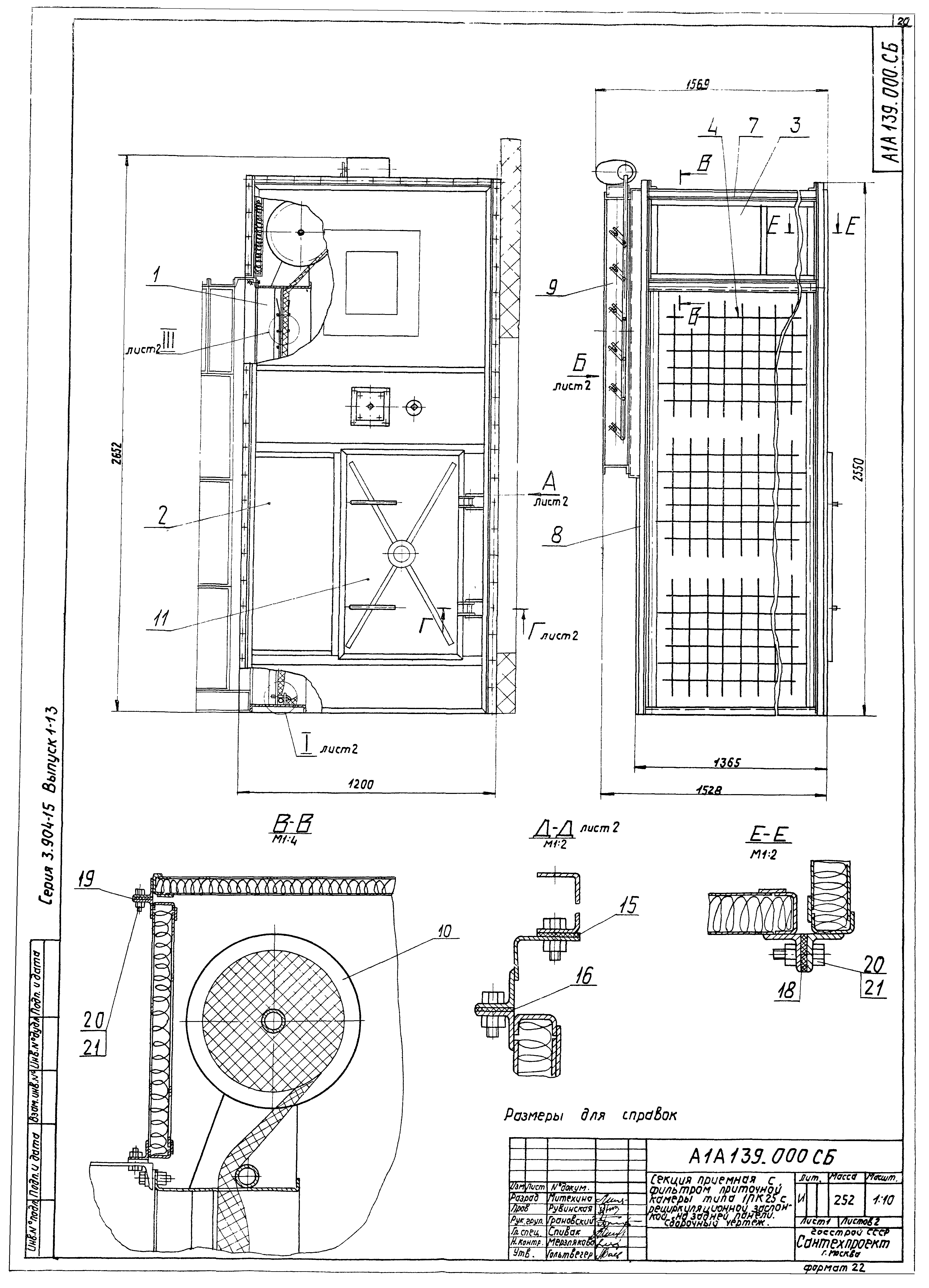
3.904-15 А1А139.000 Секция приемная с фильтром приточной камеры типа 1ПК25 с рециркуляционной заслонкой на задней панели
3.904-15 А1А139.010 Панель задняя
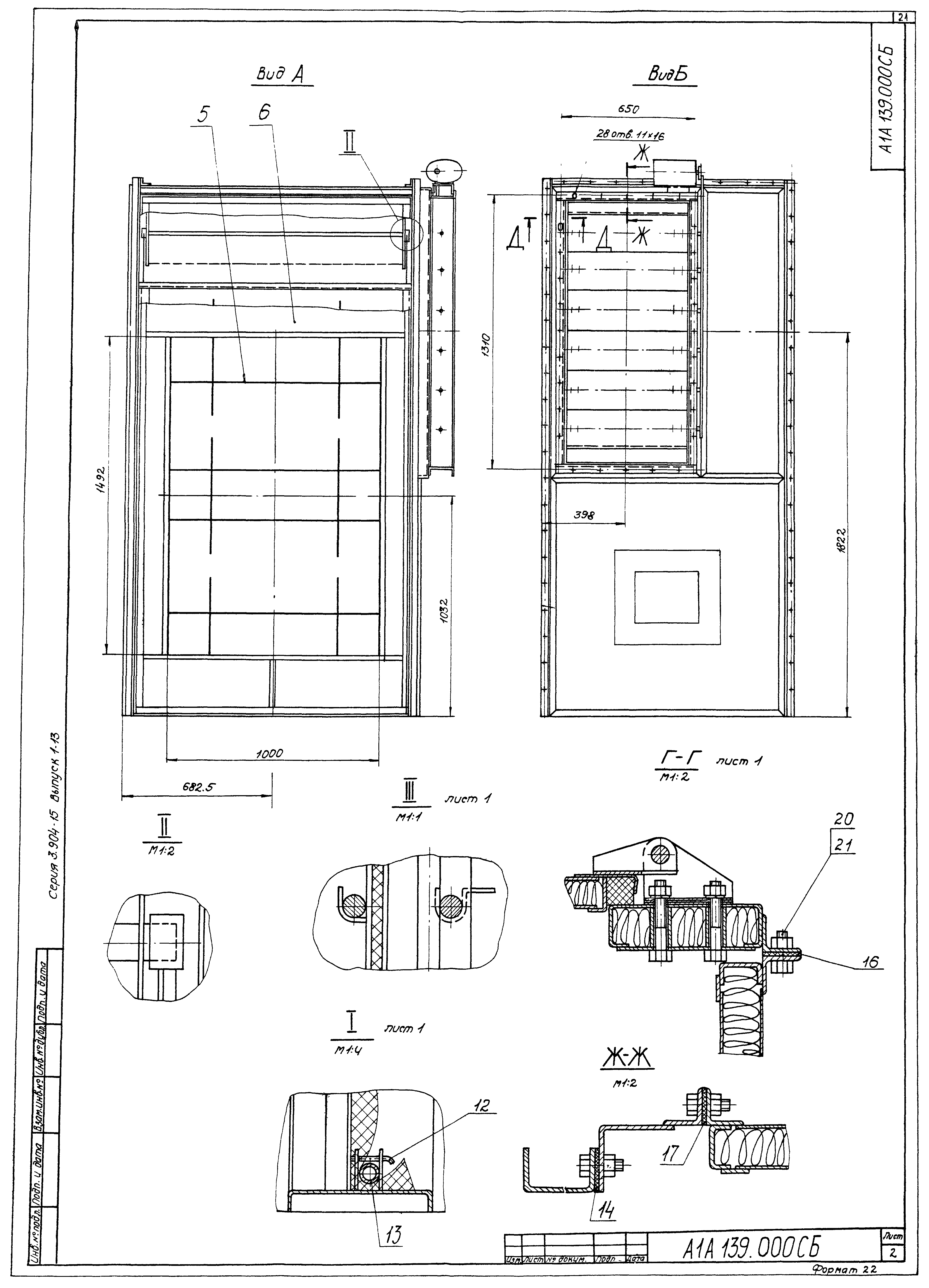
3.904-15 А1А139.000 СБ Секция приемная с фильтром приточной камеры типа 1ПК25 с рециркуляционной заслонкой на задней панели. Сборочный чертеж
3.904-15 А1А139.010 СБ Панель задняя. Сборочный чертеж
3.904-15 А1А139.011 Лист
3.904-15 А1А140.000 Секция приемная приточной камеры типа 1ПК25 с рециркуляционной заслонкой на задней панели
3.904-15 А1А140.000 СБ Секция приемная приточной камеры типа 1ПК25 с рециркуляционной заслонкой на задней панели. Сборочный чертеж
3.904-15 А1А141.000 Секция приемная приточной камеры типа 1ПК25 с нижним расположением рециркуляционной заслонки
3.904-15 А1А140.010 Панель задняя
3.904-15 А1А136.011 Угольник
3.904-15 А1А140.000 СБ Панель задняя. Сборочный чертеж
3.904-15 А1А141.000 СБ Секция приемная приточной камеры типа 1ПК25 с нижним расположением рециркуляционной заслонки. Сборочный чертеж
3.904-15 А1А142.000 Секция приемная с фильтром приточной камеры типа 1ПК50 с рециркуляционной заслонкой на задней панели
3.904-15 А1А142.010 Панель задняя
3.904-15 А1А142.000 СБ Секция приемная с фильтром приточной камеры типа 1ПК50 с рециркуляционной заслонкой на задней панели. Сборочный чертеж
3.904-15 А1А144.012 Корыто
3.904-15 А1А145.011 Лист
3.904-15 А1А142.010 СБ Панель задняя. Сборочный чертеж
3.904-15 А1А143.000 Секция приемная приточной камеры типа 1ПК50 с рециркуляционной заслонкой на задней панели
3.904-15 А1А143.010 Панель задняя. Сборочный чертеж
3.904-15 А1А143.000 СБ Секция приемная приточной камеры типа 1ПК50 с рециркуляционной заслонкой на задней панели. Сборочный чертеж
3.904-15 А1А143.010 СБ Панель задняя. Сборочный чертеж
3.904-15 А1А144.000 Секция приемная приточной камеры типа 1ПК50 с нижним расположением рециркуляционной заслонки
3.904-15 А1А144.010 Корыто
3.904-15 А1А144.000 СБ Секция приемная приточной камеры типа 1ПК50 с нижним расположением рециркуляционной заслонки. Сборочный чертеж
3.904-15 А1А144.010 СБ Корыто. Сборочный чертеж
3.904-15 А1А144.011 Профиль
3.904-15 А1А145.000 Секция приемная с фильтром приточной камеры типа 1ПК70 с рециркуляционной заслонкой на задней панели
3.904-15 А1А145.010 Панель задняя
3.904-15 А1А151.006 Уголок
3.904-15 А1А151.007 Уголок
3.904-15 А1А145.000 СБ Секция приемная с фильтром приточной камеры типа 1ПК70 с рециркуляционной заслонкой на задней панели. Сборочный чертеж
3.904-15 А1А145.010 СБ Панель задняя. Сборочный чертеж
3.904-15 А1А146.000 Секция приемная приточной камеры типа 1ПК70 с рециркуляционной заслонкой на задней панели
3.904-15 А1А146.010 Панель задняя
3.904-15 А1А147.000 Секция приемная приточной камеры типа 1ПК70 с нижним расположением рециркуляционной заслонки
3.904-15 А1А148.000 Секция приемная с фильтром приточной камеры типа 1ПК100 с рециркуляционной заслонкой на задней панели
3.904-15 А1А148.010 Панель задняя
3.904-15 А1А146.000 СБ Секция приемная с фильтром приточной камеры типа 1ПК70 с рециркуляционной заслонкой на задней панели. Сборочный чертеж
3.904-15 А1А146.010 Панель задняя
3.904-15 А1А147.000 СБ Секция приемная приточной камеры типа 1ПК70 с нижним расположением рециркуляционной заслонки. Сборочный чертеж
3.904-15 А1А148.000 СБ Секция приемная с фильтром приточной камеры типа 1ПК100 с рециркуляционной заслонкой на задней панели. Сборочный чертеж
3.904-15 А1А148.010 СБ Панель задняя. Сборочный чертеж
3.904-15 А1А149.000 Секция приемная приточной камеры типа 1ПК100 с рециркуляционной заслонкой на задней панели
3.904-15 А1А149.010 Панель задняя
3.904-15 А1А149.000 СБ Секция приемная приточной камеры типа 1ПК100 с рециркуляционной заслонкой на задней панели. Сборочный чертеж
3.904-15 А1А149.010 СБ Панель задняя. Сборочный чертеж
3.904-15 А1А150.000 Секция приемная приточной камеры типа 1ПК100 с нижним расположением рециркуляционной заслонки
3.904-15 А1А151.000 Секция приемная приточной камеры типа 1ПК100 с рециркуляционной заслонкой на задней панели
3.904-15 А1А150.000 СБ Секция приемная приточной камеры типа 1ПК100 с нижним расположением рециркуляционной заслонки. Сборочный чертеж
3.904-15 А1А151.000 СБ Секция приемная приточной камеры типа 1ПК100 с рециркуляционной заслонкой на задней панели. Сборочный чертеж
3.904-15 А1А151.010 Панель задняя
3.904-15 А1А152.000 Секция приемная приточной камеры типа 1ПК150 с нижним расположением рециркуляционной заслонки
3.904-15 А1А151.000 СБ Панель задняя. Сборочный чертеж
3.904-15 А1А152.000 СБ Секция приемная приточной камеры типа 1ПК150 с нижним расположением рециркуляционной заслонки. Сборочный чертеж
3.904-15 А1А151.005 Кронштейн
3.904-15 А1А151.008 Ушко
3.904-15 А1А151.015 Уголок
3.904-15 А3Д079.000 Заслонка воздушная рециркуляционная с электроприводом
3.904-15 А3Д079.000 СБ Заслонка воздушная рециркуляционная с электроприводом. Сборочный чертеж
3.904-15 А3Д079.001 Упор
3.904-15 А3Д079.002 Корпус подшипника
3.904-15 А3Д079.003 Шайба
3.904-15 А3Д079.010 Корпус
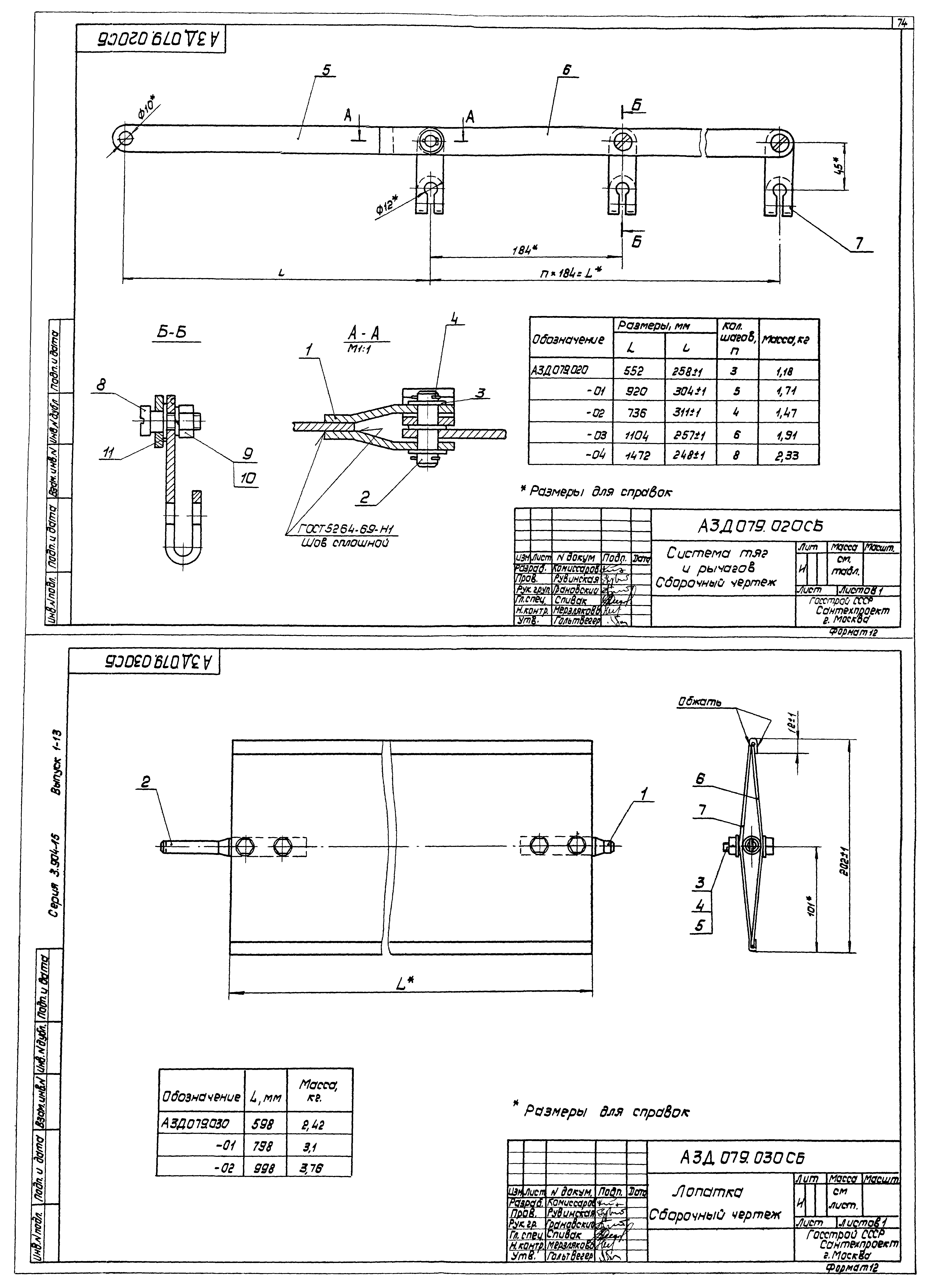
3.904-15 А3Д079.020 Система тяг и рычагов
3.904-15 А3Д079.030 Лопатка
3.904-15 А3Д079.010 СБ Корпус. Сборочный чертеж
3.904-15 А3Д079.020 СБ Система тяг и рычагов. Сборочный чертеж
3.904-15 А3Д079.030 СБ Лопатка. Сборочный чертеж
3.904-15 А3Д079.006 Профиль
3.904-15 А3Д079.007 Профиль
3.904-15 А3Д079.011 Тяга
3.904-15 А3Д079.012 Тяга
3.904-15 А3Д079.013 Серьга
3.904-15 А3Д079.014 Палец
3.904-15 А3Д079.009 Ось
3.904-15 А3Д079.015 Полуось
3.904-15 А3Д079.016 Полуось
3.904-15 А3Д079.017 Перо
3.904-15 А3Д079.018 Перо
Разработан: ГПИ Сантехпроект Госстроя СССР
Утверждён:14.02.1978 Главпромстройпроект Госстроя СССР (7)
Расположен в:Техническая документация Строительство Справочные документы Типовые строительные конструкции, изделия и узлы Общероссийский строительный каталог Строительные конструкции, изделия и узлы зданий и сооружений для всех видов строительства Инженерное оборудование Инженерное оборудование; изделия и узлы инженерного оборудования зданий и сооружений Воздухоснабжение, вентиляция и кондиционирование Приточные камеры и установки, завесы
Чем заменён:
Серия 3.904-15Серия 3.904-15Серия 3.904-15Серия 3.904-15Серия 3.904-15Серия 3.904-15Серия 3.904-15Серия 3.904-15Серия 3.904-15Серия 3.904-15Серия 3.904-15Серия 3.904-15Серия 3.904-15Серия 3.904-15Серия 3.904-15Серия 3.904-15Серия 3.904-15Серия 3.904-15Серия 3.904-15Серия 3.904-15Серия 3.904-15Серия 3.904-15Серия 3.904-15Серия 3.904-15Серия 3.904-15Серия 3.904-15Серия 3.904-15Серия 3.904-15Серия 3.904-15Серия 3.904-15Серия 3.904-15Серия 3.904-15Серия 3.904-15Серия 3.904-15Серия 3.904-15Серия 3.904-15Серия 3.904-15Серия 3.904-15Серия 3.904-15Серия 3.904-15Серия 3.904-15Серия 3.904-15Серия 3.904-15Серия 3.904-15Серия 3.904-15Серия 3.904-15Серия 3.904-15Серия 3.904-15Серия 3.904-15Серия 3.904-15Серия 3.904-15Серия 3.904-15Серия 3.904-15Серия 3.904-15Серия 3.904-15Серия 3.904-15Серия 3.904-15Серия 3.904-15Серия 3.904-15Серия 3.904-15Серия 3.904-15Серия 3.904-15Серия 3.904-15Серия 3.904-15Серия 3.904-15Серия 3.904-15Серия 3.904-15Серия 3.904-15Серия 3.904-15Серия 3.904-15Серия 3.904-15Серия 3.904-15Серия 3.904-15Серия 3.904-15Серия 3.904-15Серия 3.904-15Серия 3.904-15Серия 3.904-15Серия 3.904-15

© 2013 Ёшкин Кот :-) Карта сайта