Информационная система
«Ёшкин Кот»

Скачать базу одним архивом
Скачать обновления
История создания базы
Карта сайта

Скачать Серия 3.904-15 Выпуск 1-12. Часть I. Конструкции камер. Рабочие чертежи. Приточная вентиляционная камера типа 1ПК150 уменьшенной высоты

Дата актуализации: 10.08.2017

Серия 3.904-15

Выпуск 1-12. Часть I. Конструкции камер. Рабочие чертежи. Приточная вентиляционная камера типа 1ПК150 уменьшенной высоты

Обозначение: Серия 3.904-15
Обозначение англ: Series 3.904-15
Статус:не действует
Название рус.:Выпуск 1-12. Часть I. Конструкции камер. Рабочие чертежи. Приточная вентиляционная камера типа 1ПК150 уменьшенной высоты
Дата добавления в базу:01.09.2013
Дата актуализации:05.05.2017
Дата введения:15.03.1978
Дата окончания срока действия:01.10.1982
Оглавление:3.904-15 Содержание
3.904-15 А1А133.000ТО Приточная вентиляционная камера типа 1ПК15ОА с секцией орошения. Техническое описание
3.904-15 А1А133.000 Приточная вентиляционная камера типа 1ПК15ОА с секцией орошения
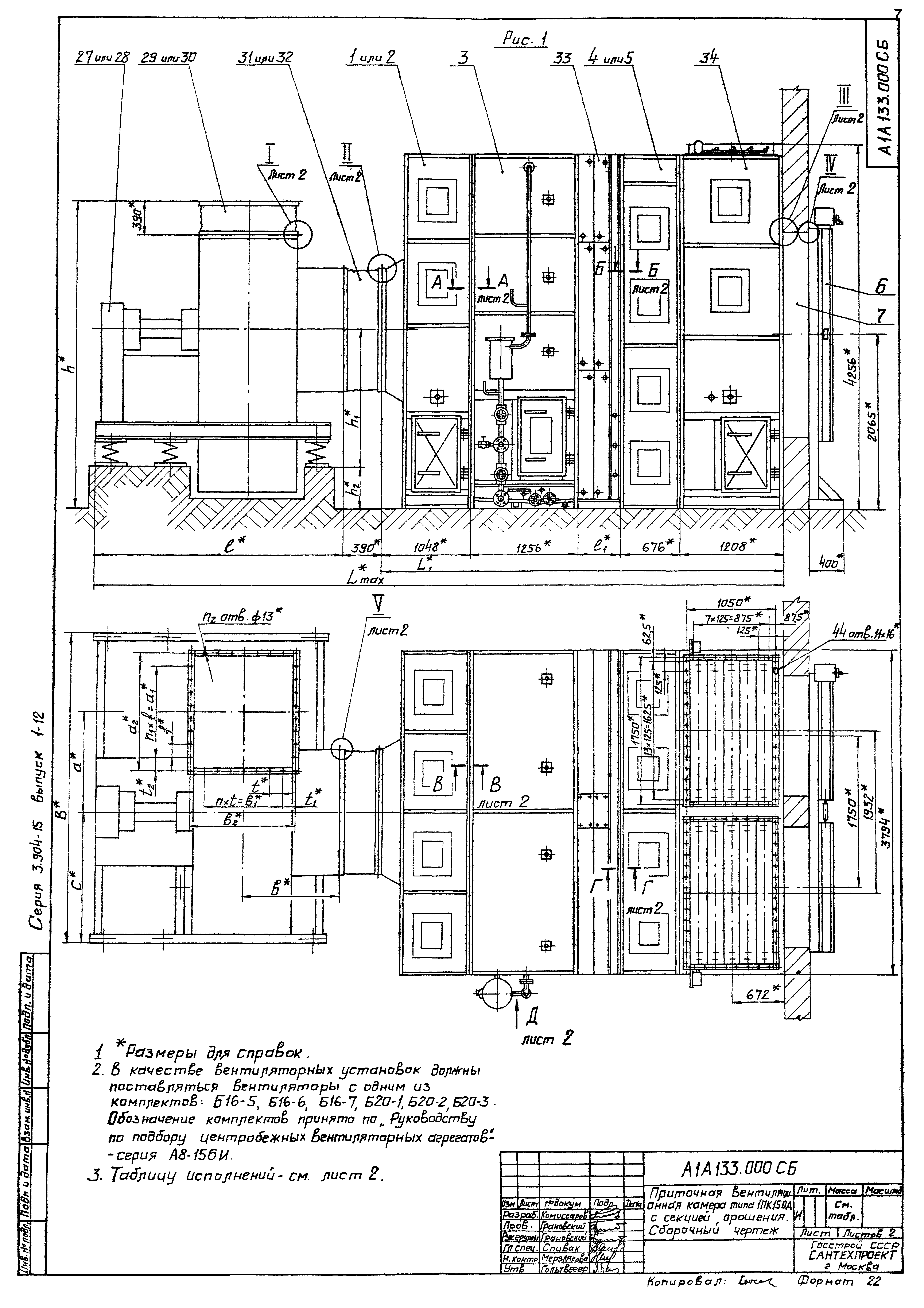
3.904-15 А1А133.000 СБ Приточная вентиляционная камера типа 1ПК15ОА с секцией орошения. Сборочный чертеж
3.904-15 А1А134.000 Приточная вентиляционная камера типа 1ПК15ОА с фильтром
3.904-15 А1А134.000 СБ Приточная вентиляционная камера типа 1ПК15ОА с фильтром. Сборочный чертеж
3.904-15 А1А135.000 Приточная вентиляционная камера типа 1ПК15ОА
3.904-15 А1А135.000 СБ Приточная вентиляционная камера типа 1ПК15ОА. Сборочный чертеж
3.904-15 А1А133.010 Секция соединительная
3.904-15 А1А133.020 Панель передняя
3.904-15 А1А133.010 СБ Секция соединительная. Сборочный чертеж
3.904-15 А1А133.020 СБ Панель передняя. Сборочный чертеж
3.904-15 А1А133.029 Лист
3.904-15 А1А133.031 Уголок
3.904-15 А1А133.032 Профиль
3.904-15 А1А133.035 Планка
3.904-15 А1А133.030 Панель задняя
3.904-15 А1А133.040 Панель верхняя
3.904-15 А1А133.025 Уголок
3.904-15 А1А133.026 Уголок
3.904-15 А1А133.030 СБ Панель задняя. Сборочный чертеж
3.904-15 А1А133.040 СБ Панель верхняя. Сборочный чертеж
3.904-15 А1А133.036 Прокладка
3.904-15 А1А133.037 Уголок
3.904-15 А1А133.038 Уголок
3.904-15 А1А133.041 Уголок
3.904-15 А1А133.050 Панель торцевая
3.904-15 А1А133.050 СБ Панель торцевая. Сборочный чертеж
3.904-15 А1А133.044 Уголок
3.904-15 А1А133.045 Уголок
3.904-15 А1А133.046 Уголок
3.904-15 А1А133.047 Уголок
3.904-15 А1А133.043 Хомут
3.904-15 А1А133.048 Уголок
3.904-15 А1А133.049 Лист
3.904-15 А1А133.060 Конфузор
3.904-15 А1А133.070 Решетка
3.904-15 А1А133.080 Решетка
3.904-15 А1А133.027 Уголок
3.904-15 А1А133.060 СБ Конфузор. Сборочный чертеж
3.904-15 А1А133.071 Фланец
3.904-15 А1А133.072 Фланец
3.904-15 А1А133.073 Конфузор
3.904-15 А1А133.070 СБ Решетка. Сборочный чертеж
3.904-15 А1А133.080 СБ Решетка. Сборочный чертеж
3.904-15 А1А133.074 Кольцо
3.904-15 А1А133.075 Пруток
3.904-15 А1А133.100 Секция оросительная
3.904-15 А1А133.028 Лист
3.904-15 А1А133.100 СБ Секция оросительная. Сборочный чертеж
3.904-15 А1А133.082 Уголок
3.904-15 А1А133.083 Уголок
3.904-15 А1А133.087 Отбойник
3.904-15 А1А133.088 Шайба
3.904-15 А1А133.081 Уголок
3.904-15 А1А133.084 Хомут
3.904-15 А1А133.085 Кронштейн
3.904-15 А1А133.086 Крюк
3.904-15 А1А133.110 Поддон
3.904-15 А1А133.120 Каркас поддона
3.904-15 А1А133.110 СБ Поддон. Сборочный чертеж
3.904-15 А1А133.095 Направляющая
3.904-15 А1А133.096 Швеллер опорный
3.904-15 А1А133.097 Лист ходовой
3.904-15 А1А133.099 Водозабор
3.904-15 А1А133.101 Стенка
3.904-15 А1А133.103 Бобышка
3.904-15 А1А133.104 Пробка
3.904-15 А1А133.106 Трубка
3.904-15 А1А133.120 СБ Каркас поддона. Сборочный чертеж
3.904-15 А1А133.111 Лист задний
3.904-15 А1А133.112 Лист передний
3.904-15 А1А133.113 Уголок
3.904-15 А1А133.114 Уголок
3.904-15 А1А133.115 Опора
3.904-15 А1А133.116 Днище
3.904-15 А1А133.117 Корыто
3.904-15 А1А133.118 Стойка
3.904-15 А1А133.119 Стойка
3.904-15 А1А133.121 Уголок
3.904-15 А1А133.122 Профиль
3.904-15 А1А133.123 Уголок
3.904-15 А1А133.124 Стойка
3.904-15 А1А133.125 Стойка
3.904-15 А1А133.129 Пластина
3.904-15 А1А133.130 Колено
3.904-15 А1А133.140 Фильтр
3.904-15 А1А133.150 Перелив
3.904-15 А1А133.160 Каркас фильтра
3.904-15 А1А133.130 СБ Колено. Сборочный чертеж
3.904-15 А1А133.140 СБ Фильтр. Сборочный чертеж
3.904-15 А1А133.132 Полоса
3.904-15 А1А133.133 Ручка
3.904-15 А1А133.150 СБ Перелив. Сборочный чертеж
3.904-15 А1А133.135 Воронка
3.904-15 А1А133.136 Патрубок
3.904-15 А1А133.137 Труба
3.904-15 А1А133.160 СБ Каркас фильтра. Сборочный чертеж
3.904-15 А1А133.139 Стенка задняя
3.904-15 А1А133.141 Стенка боковая
3.904-15 А1А133.170 Панель передняя
3.904-15 А1А133.180 Панель задняя
3.904-15 А1А133.190 Панель верхняя
3.904-15 А1А133.170 СБ Панель передняя. Сборочный чертеж
3.904-15 А1А133.146 Уголок
3.904-15 А1А133.147 Шайба
3.904-15 А1А133.148 Трубка
3.904-15 А1А133.149 Уголок
3.904-15 А1А133.151 Профиль
3.904-15 А1А133.152 Профиль
3.904-15 А1А133.153 Профиль
3.904-15 А1А133.157 Кронштейн
3.904-15 А1А133.154 Рамка
3.904-15 А1А133.155 Лист
3.904-15 А1А133.158 Уголок
3.904-15 А1А133.159 Профиль
3.904-15 А1А133.142 Стенка боковая
3.904-15 А1А133.143 Поперечина
3.904-15 А1А133.156 Лист
3.904-15 А1А133.162 Козырек
3.904-15 А1А133.180 СБ Панель задняя. Сборочный чертеж
3.904-15 А1А133.190 СБ Панель верхняя. Сборочный чертеж
3.904-15 А1А133.167 Лист
3.904-15 А1А133.163 Кронштейн
3.904-15 А1А133.164 Лист
3.904-15 А1А133.165 Уголок
3.904-15 А1А133.166 Уголок
3.904-15 А1А133.200 Стояк
3.904-15 А1А133.210 Коллектор
3.904-15 А1А133.220 Гребенка
3.904-15 А1А133.172 Труба
3.904-15 А1А133.200 СБ Стояк. Сборочный чертеж
3.904-15 А1А133.168 Трубка для манометра
3.904-15 А1А133.169 Труба
3.904-15 А1А133.210 СБ Коллектор. Сборочный чертеж
3.904-15 А1А133.220 СБ Гребенка. Сборочный чертеж
3.904-15 А1А133.174 Патрубок
3.904-15 А1А133.175 Патрубок
3.904-15 А1А133.176 Патрубок
3.904-15 А1А133.177 Заглушка
3.904-15 А1А133.210 Блок сепараторов
3.904-15 А1А133.171 Стояк
3.904-15 А1А133.230 СБ Блок сепараторов. Сборочный чертеж
3.904-15 А1А133.240 Сепаратор в сборе
3.904-15 А1А133.250 Опора
3.904-15 А1А133.173 Труба
3.904-15 А1А133.240 СБ Сепаратор в сборе. Сборочный чертеж
3.904-15 А1А133.186 Гребенка
3.904-15 А1А133.187 Сепаратор
3.904-15 А1А133.188 Лист боковой
3.904-15 А1А133.250 СБ Опора. Сборочный чертеж
3.904-15 А1А133.192 Корыто
3.904-15 А1А133.193 Кронштейн
3.904-15 А1А133.181 Уголок
3.904-15 А1А133.182 Уголок
3.904-15 А1А133.191 Швеллер
Разработан: ГПИ Сантехпроект Госстроя СССР
Утверждён:14.02.1978 Главпромстройпроект Госстроя СССР (7)
Расположен в:Техническая документация Строительство Справочные документы Типовые строительные конструкции, изделия и узлы Общероссийский строительный каталог Строительные конструкции, изделия и узлы зданий и сооружений для всех видов строительства Инженерное оборудование Инженерное оборудование; изделия и узлы инженерного оборудования зданий и сооружений Воздухоснабжение, вентиляция и кондиционирование Приточные камеры и установки, завесы
Чем заменён:
Серия 3.904-15Серия 3.904-15Серия 3.904-15Серия 3.904-15Серия 3.904-15Серия 3.904-15Серия 3.904-15Серия 3.904-15Серия 3.904-15Серия 3.904-15Серия 3.904-15Серия 3.904-15Серия 3.904-15Серия 3.904-15Серия 3.904-15Серия 3.904-15Серия 3.904-15Серия 3.904-15Серия 3.904-15Серия 3.904-15Серия 3.904-15Серия 3.904-15Серия 3.904-15Серия 3.904-15Серия 3.904-15Серия 3.904-15Серия 3.904-15Серия 3.904-15Серия 3.904-15Серия 3.904-15Серия 3.904-15Серия 3.904-15Серия 3.904-15Серия 3.904-15Серия 3.904-15Серия 3.904-15Серия 3.904-15Серия 3.904-15Серия 3.904-15Серия 3.904-15Серия 3.904-15Серия 3.904-15Серия 3.904-15Серия 3.904-15Серия 3.904-15Серия 3.904-15Серия 3.904-15Серия 3.904-15Серия 3.904-15Серия 3.904-15Серия 3.904-15Серия 3.904-15Серия 3.904-15Серия 3.904-15Серия 3.904-15Серия 3.904-15Серия 3.904-15Серия 3.904-15Серия 3.904-15Серия 3.904-15Серия 3.904-15Серия 3.904-15Серия 3.904-15Серия 3.904-15Серия 3.904-15Серия 3.904-15Серия 3.904-15Серия 3.904-15Серия 3.904-15Серия 3.904-15Серия 3.904-15

© 2013 Ёшкин Кот :-) Карта сайта