Информационная система
«Ёшкин Кот»

Скачать базу одним архивом
Скачать обновления
История создания базы
Карта сайта

Скачать Серия 3.904-15 Выпуск 1-3. Часть II. Конструкции камер. Рабочие чертежи. Приточная вентиляционная камера типа 1ПК50 производительностью от 25 до 50 тыс. куб. м/ч

Дата актуализации: 10.08.2017

Серия 3.904-15

Выпуск 1-3. Часть II. Конструкции камер. Рабочие чертежи. Приточная вентиляционная камера типа 1ПК50 производительностью от 25 до 50 тыс. куб. м/ч

Обозначение: Серия 3.904-15
Обозначение англ: Series 3.904-15
Статус:не действует
Название рус.:Выпуск 1-3. Часть II. Конструкции камер. Рабочие чертежи. Приточная вентиляционная камера типа 1ПК50 производительностью от 25 до 50 тыс. куб. м/ч
Дата добавления в базу:01.09.2013
Дата актуализации:05.05.2017
Дата введения:01.10.1974
Дата окончания срока действия:01.10.1982
Оглавление:3.904-15 А1АО41.310 Секция приемная с фильтром
3.904-15 А1АО41.320 Корпус фильтра
3.904-15 А1АО41.330 Панель верхняя
3.904-15 А1АО41.340 Панель передняя
3.904-15 А1АО41.350 Панель задняя
3.904-15 А1АО41.360 Панель торцевая
3.904-15 А1АО41.370 Сектор верхний
3.904-15 А1АО41.380 Сектор нижний
3.904-15 А1АО41.390 Панель боковая
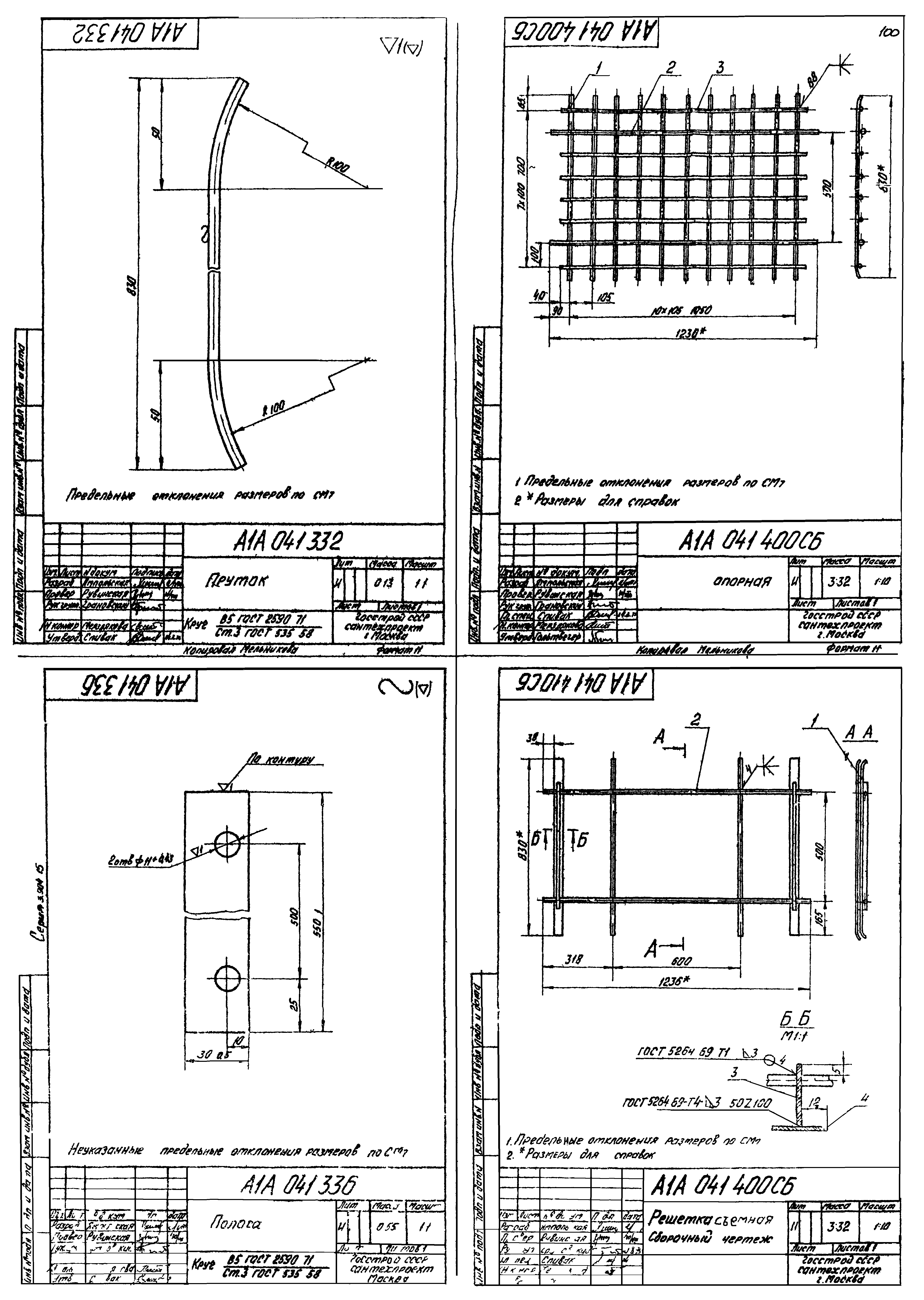
3.904-15 А1АО41.400 Решетка опорная
3.904-15 А1АО41.410 Решетка съемная
3.904-15 А1АО41.420 Панель перекрытия
3.904-15 А1АО41.430 Панель перекрытия утепленная
3.904-15 А1АО43.010 Секция приемная
3.904-15 А1АО43.020 Панель передняя
3.904-15 А1АО43.030 Панель задняя
3.904-15 А1АО43.040 Панель торцевая
3.904-15 А1АО43.050 Сектор
3.904-15 А1АО43.060 Панель перекрытия
3.904-15 А1АО43.070 Панель перекрытия утепленная
Разработан: ГПИ Сантехпроект Госстроя СССР
Утверждён:26.09.1974 Главпромстройпроект Госстроя СССР (42)
Расположен в:Техническая документация Строительство Справочные документы Типовые строительные конструкции, изделия и узлы Общероссийский строительный каталог Строительные конструкции, изделия и узлы зданий и сооружений для всех видов строительства Инженерное оборудование Инженерное оборудование; изделия и узлы инженерного оборудования зданий и сооружений Воздухоснабжение, вентиляция и кондиционирование Приточные камеры и установки, завесы
Чем заменён:
Серия 3.904-15Серия 3.904-15Серия 3.904-15Серия 3.904-15Серия 3.904-15Серия 3.904-15Серия 3.904-15Серия 3.904-15Серия 3.904-15Серия 3.904-15Серия 3.904-15Серия 3.904-15Серия 3.904-15Серия 3.904-15Серия 3.904-15Серия 3.904-15Серия 3.904-15Серия 3.904-15Серия 3.904-15Серия 3.904-15Серия 3.904-15Серия 3.904-15Серия 3.904-15Серия 3.904-15Серия 3.904-15Серия 3.904-15Серия 3.904-15Серия 3.904-15Серия 3.904-15Серия 3.904-15Серия 3.904-15Серия 3.904-15Серия 3.904-15Серия 3.904-15Серия 3.904-15Серия 3.904-15Серия 3.904-15Серия 3.904-15Серия 3.904-15Серия 3.904-15Серия 3.904-15Серия 3.904-15Серия 3.904-15Серия 3.904-15Серия 3.904-15Серия 3.904-15Серия 3.904-15Серия 3.904-15

© 2013 Ёшкин Кот :-) Карта сайта