Информационная система
«Ёшкин Кот»

Скачать базу одним архивом
Скачать обновления
История создания базы
Карта сайта

Скачать Серия 3.904-15 Выпуск 1-3. Часть I. Конструкции камер. Рабочие чертежи. Приточная вентиляционная камера типа 1ПК50 производительностью от 25 до 50 тыс. куб. м/ч

Дата актуализации: 10.08.2017

Серия 3.904-15

Выпуск 1-3. Часть I. Конструкции камер. Рабочие чертежи. Приточная вентиляционная камера типа 1ПК50 производительностью от 25 до 50 тыс. куб. м/ч

Обозначение: Серия 3.904-15
Обозначение англ: Series 3.904-15
Статус:не действует
Название рус.:Выпуск 1-3. Часть I. Конструкции камер. Рабочие чертежи. Приточная вентиляционная камера типа 1ПК50 производительностью от 25 до 50 тыс. куб. м/ч
Дата добавления в базу:01.09.2013
Дата актуализации:05.05.2017
Дата введения:01.10.1974
Дата окончания срока действия:01.10.1982
Оглавление:3.904-15 Содержание
3.904-15 А1АО41.000ПЗ Пояснительная записка
3.904-15 А1АО41.000 Приточная вентиляционная камера типа 1ПК50 с секцией орошения
3.904-15 А1АО42.000 Приточная вентиляционная камера типа 1ПК50 с фильтром
3.904-15 А1АО43.000 Приточная вентиляционная камера типа 1ПК50
3.904-15 А1АО41.010 Секция соединительная
3.904-15 А1АО41.020 Панель перекрытия
3.904-15 А1АО41.030 Панель передняя
3.904-15 А1АО41.040 Панель задняя
3.904-15 А1АО41.050 Панель торцевая
3.904-15 А1АО41.060 Конфузор
3.904-15 А1АО41.070 Сектор
3.904-15 А1АО41.080 Решетка ограждающая
3.904-15 А1АО41.090 Секция орошения
3.904-15 А1АО41.100 Панель передняя
3.904-15 А1АО41.110 Коллектор
3.904-15 А1АО41.120 Коллектор
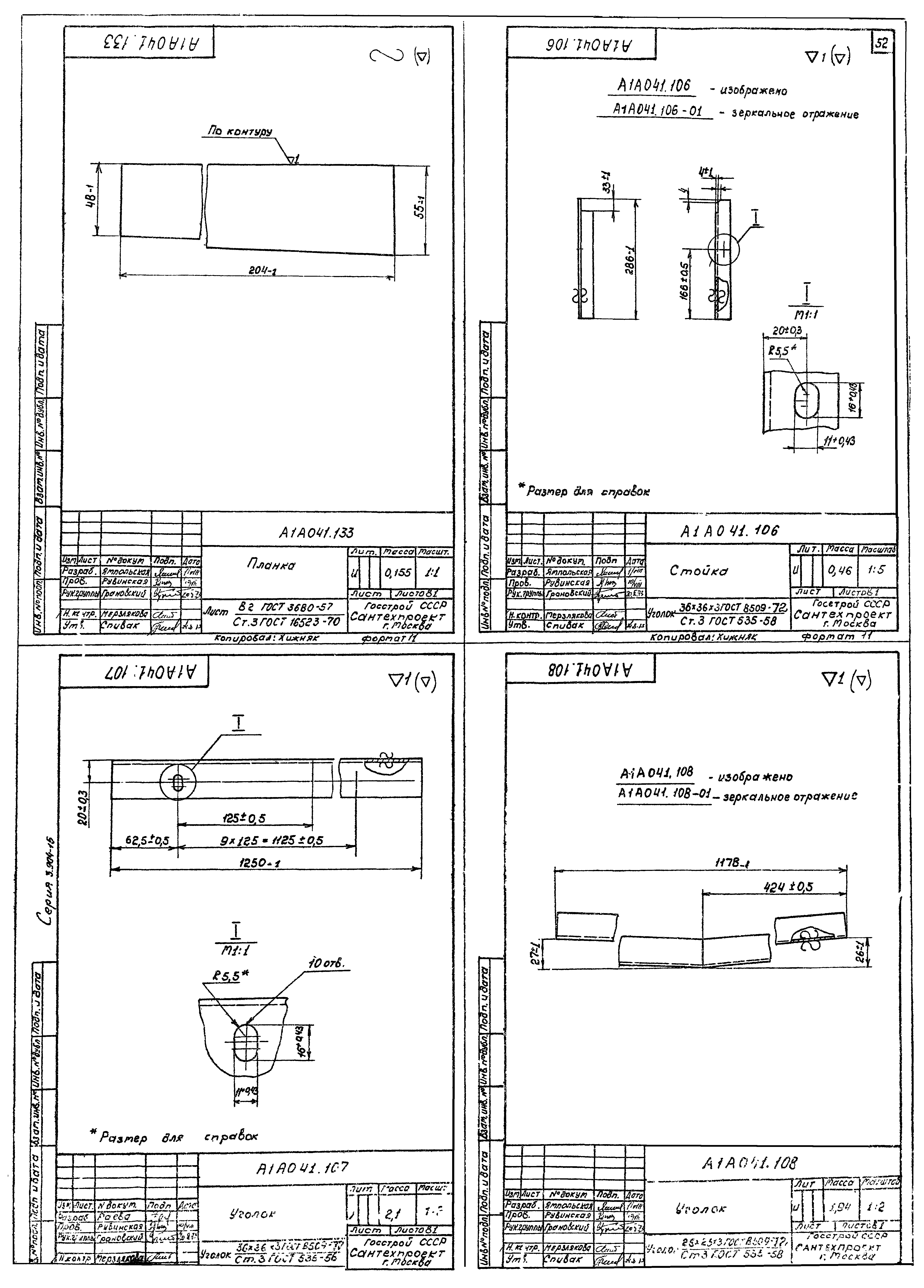
3.904-15 А1АО41.130 Стояк
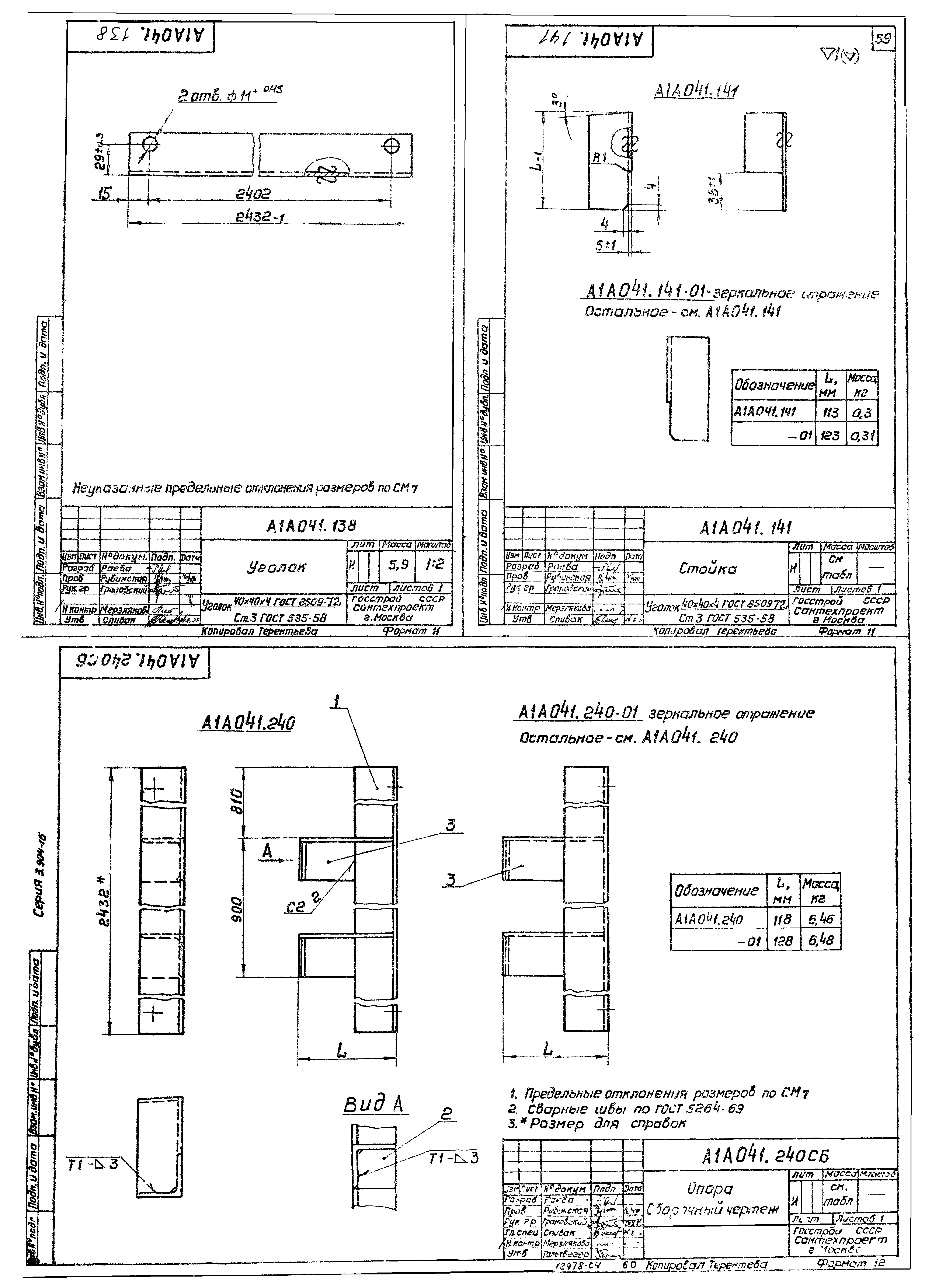
3.904-15 А1АО41.140 Панель задняя
3.904-15 А1АО41.150 Панель перекрытия
3.904-15 А1АО41.160 Узел подачи воды к форсункам
3.904-15 А1АО41.170 Поддон
3.904-15 А1АО41.180 Каркас
3.904-15 А1АО41.190 Ограничитель уровня воды
3.904-15 А1АО41.200 Патрубок
3.904-15 А1АО41.210 Корпус фильтра
3.904-15 А1АО41.220 Труба
3.904-15 А1АО41.230 Труба
3.904-15 А1АО41.240 Опора
3.904-15 А1АО41.250 Фильтр
3.904-15 А1АО41.260 Кольцо
3.904-15 А1АО41.270 Патрубок с фланцем
3.904-15 А1АО41.280 Секция калориферная
3.904-15 А1АО41.290 Рама
3.904-15 А1АО41.300 Щиток
Разработан: ГПИ Сантехпроект Госстроя СССР
Утверждён:26.09.1974 Главпромстройпроект Госстроя СССР (42)
Расположен в:Техническая документация Строительство Справочные документы Типовые строительные конструкции, изделия и узлы Общероссийский строительный каталог Строительные конструкции, изделия и узлы зданий и сооружений для всех видов строительства Инженерное оборудование Инженерное оборудование; изделия и узлы инженерного оборудования зданий и сооружений Воздухоснабжение, вентиляция и кондиционирование Приточные камеры и установки, завесы
Чем заменён:
Серия 3.904-15Серия 3.904-15Серия 3.904-15Серия 3.904-15Серия 3.904-15Серия 3.904-15Серия 3.904-15Серия 3.904-15Серия 3.904-15Серия 3.904-15Серия 3.904-15Серия 3.904-15Серия 3.904-15Серия 3.904-15Серия 3.904-15Серия 3.904-15Серия 3.904-15Серия 3.904-15Серия 3.904-15Серия 3.904-15Серия 3.904-15Серия 3.904-15Серия 3.904-15Серия 3.904-15Серия 3.904-15Серия 3.904-15Серия 3.904-15Серия 3.904-15Серия 3.904-15Серия 3.904-15Серия 3.904-15Серия 3.904-15Серия 3.904-15Серия 3.904-15Серия 3.904-15Серия 3.904-15Серия 3.904-15Серия 3.904-15Серия 3.904-15Серия 3.904-15Серия 3.904-15Серия 3.904-15Серия 3.904-15Серия 3.904-15Серия 3.904-15Серия 3.904-15Серия 3.904-15Серия 3.904-15Серия 3.904-15Серия 3.904-15Серия 3.904-15Серия 3.904-15Серия 3.904-15Серия 3.904-15Серия 3.904-15Серия 3.904-15Серия 3.904-15Серия 3.904-15Серия 3.904-15Серия 3.904-15Серия 3.904-15Серия 3.904-15Серия 3.904-15Серия 3.904-15Серия 3.904-15Серия 3.904-15Серия 3.904-15Серия 3.904-15Серия 3.904-15Серия 3.904-15Серия 3.904-15Серия 3.904-15Серия 3.904-15Серия 3.904-15Серия 3.904-15Серия 3.904-15Серия 3.904-15

© 2013 Ёшкин Кот :-) Карта сайта