Скачать Типовой проект 902-2-283 Альбом II. Технологическая, строительная и электротехническая частиДата актуализации: 10.08.2017 Типовой проект 902-2-283
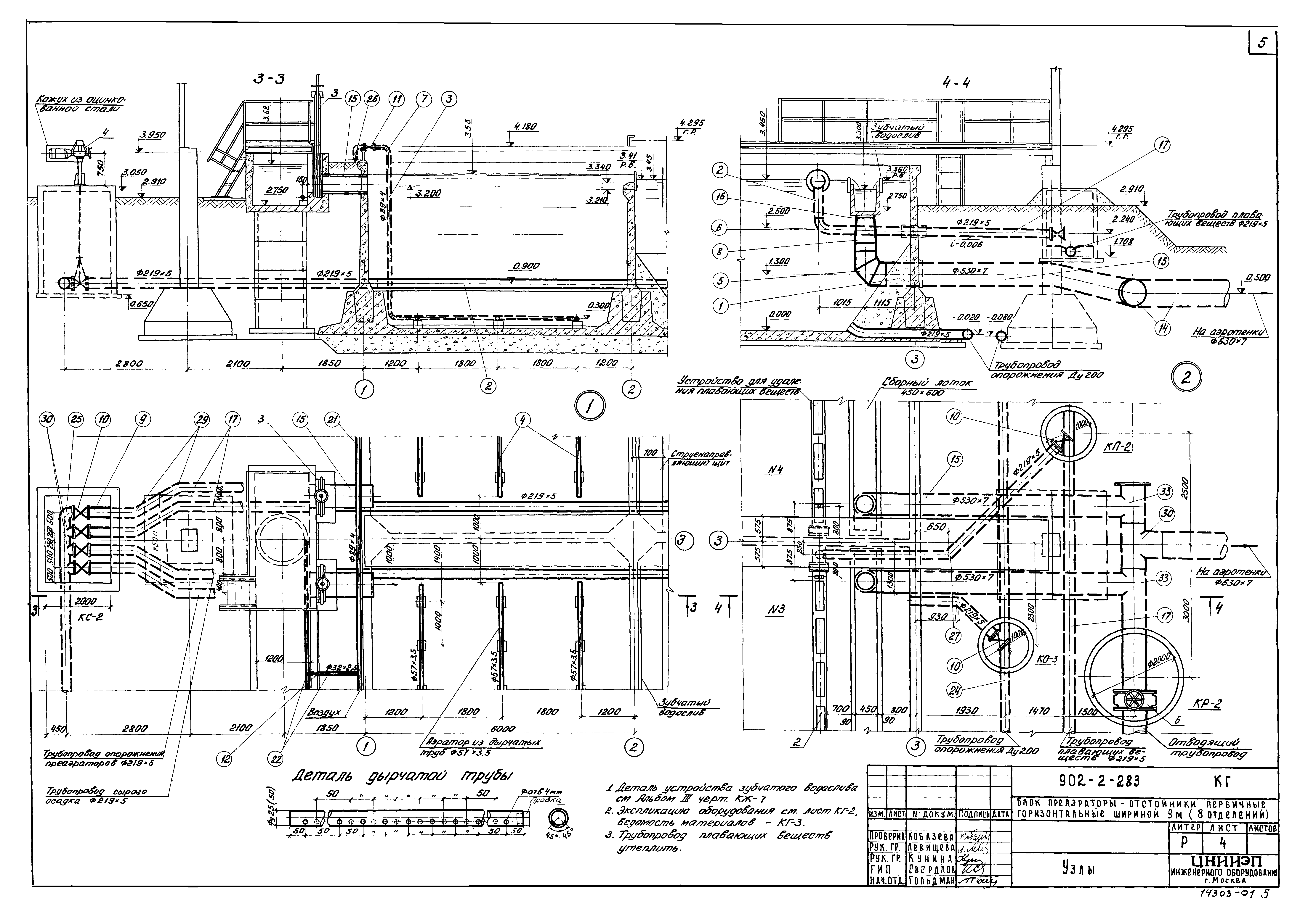
Альбом II. Технологическая, строительная и электротехническая частиОбозначение: | Типовой проект 902-2-283 | Обозначение англ: | 902-2-283 | Статус: | действует | Название рус.: | Альбом II. Технологическая, строительная и электротехническая части | Дата добавления в базу: | 01.09.2013 | Дата актуализации: | 05.05.2017 | Дата введения: | 15.12.1976 | Оглавление: | ТП 902-2-281-КГ-1 Содержание альбома. Заглавный лист ТП 902-2-281-КГ-2 План. Экспликация оборудования ТП 902-2-281-КГ-3 Разрезы 1-1;2-2. Ведомость материалов ТП 902-2-281-КГ-4 Узлы ТП 902-2-281-КГ-5 Профиль трубопровода плавающих веществ. Камера насосов плавающих веществ ТП 902-2-281-КГ-6 Схема установки скребкового механизма ТП 902-2-281-КЖ-1 Общие данные ТП 902-2-281-КЖ-2 Общий вид. План от оси "А" до оси "Дш". План от оси "Дш" до оси "К" ТП 902-2-281-КЖ-3 Маркировочные схемы панелей ТП 902-2-281-КЖ-4 Маркировочные схемы лотков ТП 902-2-281-КЖ-5 Общий вид. Разрезы 1-1÷3-3 ТП 902-2-281-КЖ-6 Сводная спецификация бетонных и железобетонных элементов ТП 902-2-281-КЖ-7 Набетонка по днищу. План. Разрезы ТП 902-2-281-КЖ-8 Днище. Опалубка. План. Разрезы ТП 902-2-281-КЖ-9 Днище. Армирование. Планы раскладки верхних и нижних сеток ТП 902-2-281-КЖ-10 Днище. Армирование. Планы раскладки каркасов. Разрезы ТП 902-2-281-КЖ-11 Днище. Армирование. Узлы "8";"9". Детали. Спецификация ТП 902-2-281-КЖ-12 Монолитные участки стен УМ-11,УМ-12,УМ-14,УМ-15. Опалубка ТП 902-2-281-КЖ-13 Монолитные участки стен УМ-13. Опалубка. Планы. Разрезы ТП 902-2-281-КЖ-14 Монолитные участки стен УМ-11,УМ-12,УМ-14. Армирование. Планы. Разрезы 33-33÷36-36 ТП 902-2-281-КЖ-15 Монолитные участки стен УМ-15. Армирование. Планы. Разрезы 37-37÷41-41 ТП 902-2-281-КЖ-16 Монолитные участки стен УМ-13. Армирование. Планы. Разрезы 42-42÷47-47 ТП 902-2-281-КЖ-17 Монолитные участки стен УМ-16. Армирование. Планы. Разрезы 48-48÷51-51 ТП 902-2-281-КЖ-18 Монолитные участки стен. Ведомости стержней на один элемент ТП 902-2-281-КЖ-19 Монолитные участки стен. Выборки и спецификации ТП 902-2-281-КЖ-20 Лоток ЛТМ-1. Опалубка ТП 902-2-281-КЖ-21 Лоток ЛТМ-1. Армирование ТП 902-2-281-АК-1 Схема подключения электрооборудования ТП 902-2-281-АК-2 Кабельный журнал. Лист 1 ТП 902-2-281-АК-3 Кабельный журнал. Лист 2 ТП 902-2-281-АК-4 План блока преаэраторов-отстойников. Размещение электрооборудования и прокладка кабеля | Разработан: | ЦНИИЭП иженерного оборудования
| Утверждён: | 22.07.1974 Госгражданстрой (Gosgrazhdanstroy 164)
| Расположен в: |
|
                               
|