Скачать Типовые материалы для проектирования 904-02-31.87 Альбом XIV. Кондиционер с рециркуляцией, воздухонагревателем первого подогрева, оснащаемым циркуляционным насосом, и с четырьмя доводчиками. Электрическая система регулированияДата актуализации: 10.08.2017 Типовые материалы для проектирования 904-02-31.87
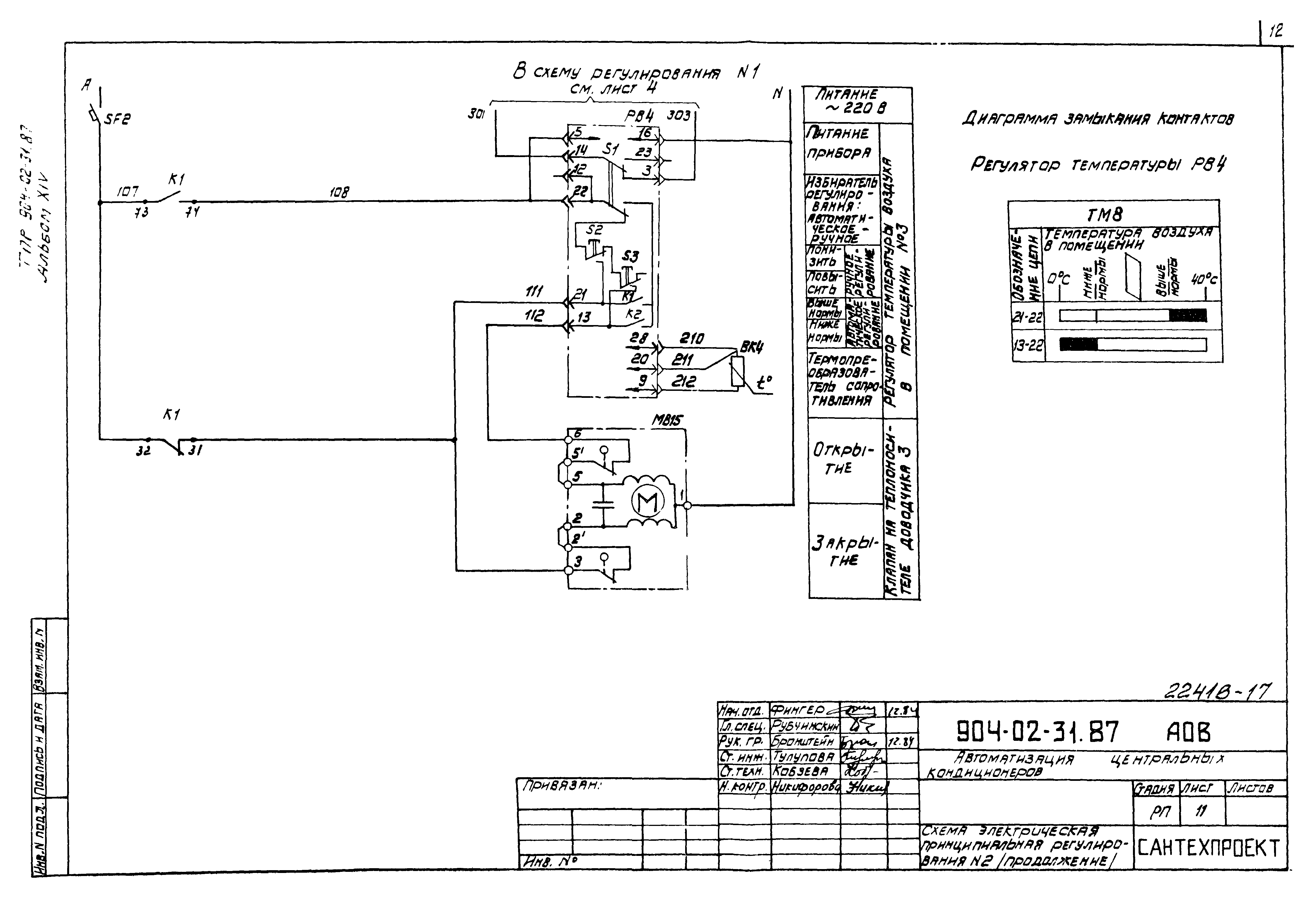
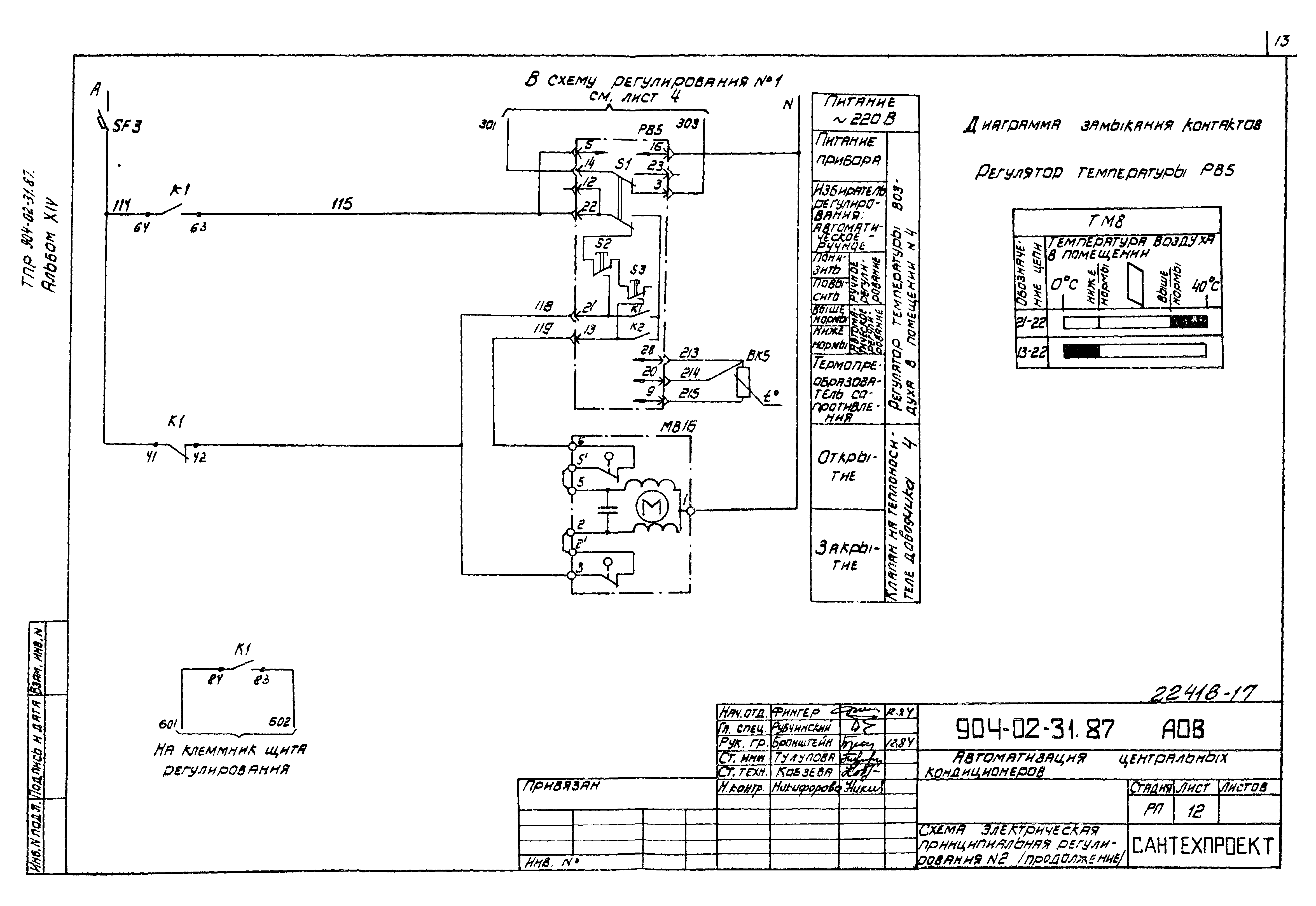
Альбом XIV. Кондиционер с рециркуляцией, воздухонагревателем первого подогрева, оснащаемым циркуляционным насосом, и с четырьмя доводчиками. Электрическая система регулированияОбозначение: | Типовые материалы для проектирования 904-02-31.87 | Обозначение англ: | 904-02-31.87 | Статус: | cправочные материалы, мп, тпр | Название рус.: | Альбом XIV. Кондиционер с рециркуляцией, воздухонагревателем первого подогрева, оснащаемым циркуляционным насосом, и с четырьмя доводчиками. Электрическая система регулирования | Дата добавления в базу: | 01.09.2013 | Дата актуализации: | 05.05.2017 | Дата введения: | 12.06.1986 | Оглавление: | ТП 904-02-31.87-АОВ-1 Общие данные ТП 904-02-31.87-АОВ-2,3 Схема автоматизации ТП 904-02-31.87-АОВ-4-9 Схема электрическая принципиальная регулирования № 1 ТП 904-02-31.87-АОВ-10-13 Схема электрическая принципиальная регулирования № 2 ТП 904-02-31.87-АОВ-14-18 Щит Щ5Р1-1Д. Общий вид ТП 904-02-31.87-АОВ-19-25 Щит Щ5Р1-1Д. Таблица соединений ТП 904-02-31.87-АОВ-26-29 Щит Щ5Р1-1Д. Таблица подключения ТП 904-02-31.87-АОВ-30-34 Щит Щ5-3Д. Общий вид ТП 904-02-31.87-АОВ-35-38 Щит Щ5-3Д. Таблица соединений ТП 904-02-31.87-АОВ-39-41 Щит Щ5-3Д. Таблица подключения ТП 904-02-31.87-АОВ-42 Схема подключения №1 ТП 904-02-31.87-АОВ-43 Схема подключения №2 | Разработан: | Сантехниипроект Госстроя России
| Утверждён: | 12.06.1986 Главстройпроект Госстроя СССР (32)
| Расположен в: |
|
                                
|