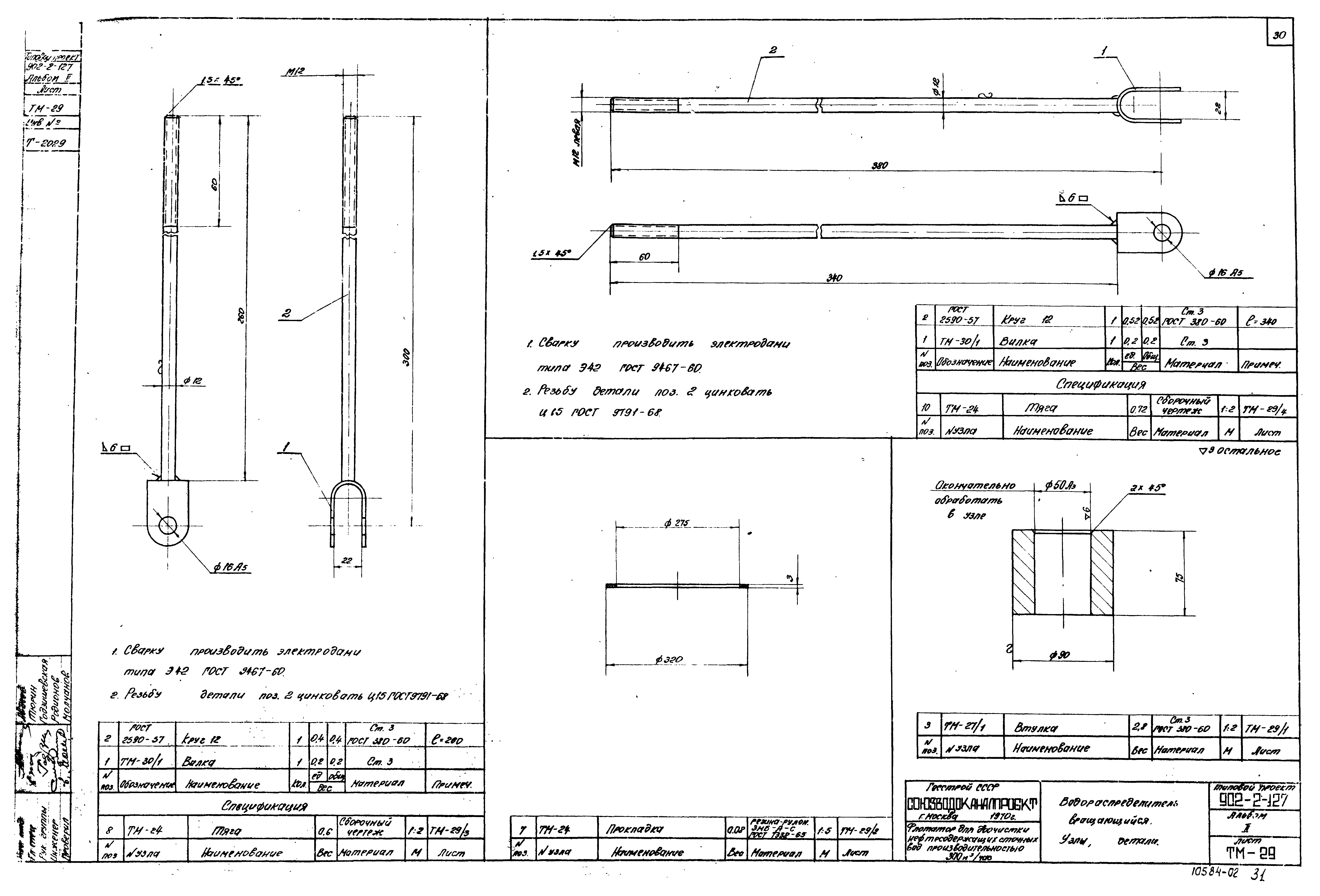
Скачать Типовой проект 902-2-127 Альбом II. Нестандартное оборудованиеДата актуализации: 10.08.2017 Типовой проект 902-2-127
Альбом II. Нестандартное оборудованиеОбозначение: | Типовой проект 902-2-127 | Обозначение англ: | 902-2-127 | Статус: | не действует | Название рус.: | Альбом II. Нестандартное оборудование | Дата добавления в базу: | 01.09.2013 | Дата актуализации: | 05.05.2017 | Разработан: | Союзводоканалниипроект
| Утверждён: | 27.08.1970 СоюзводоканалНИИпроект (SoyuzvodokanalNIIproject 194)
| Расположен в: |
|
                                    
|