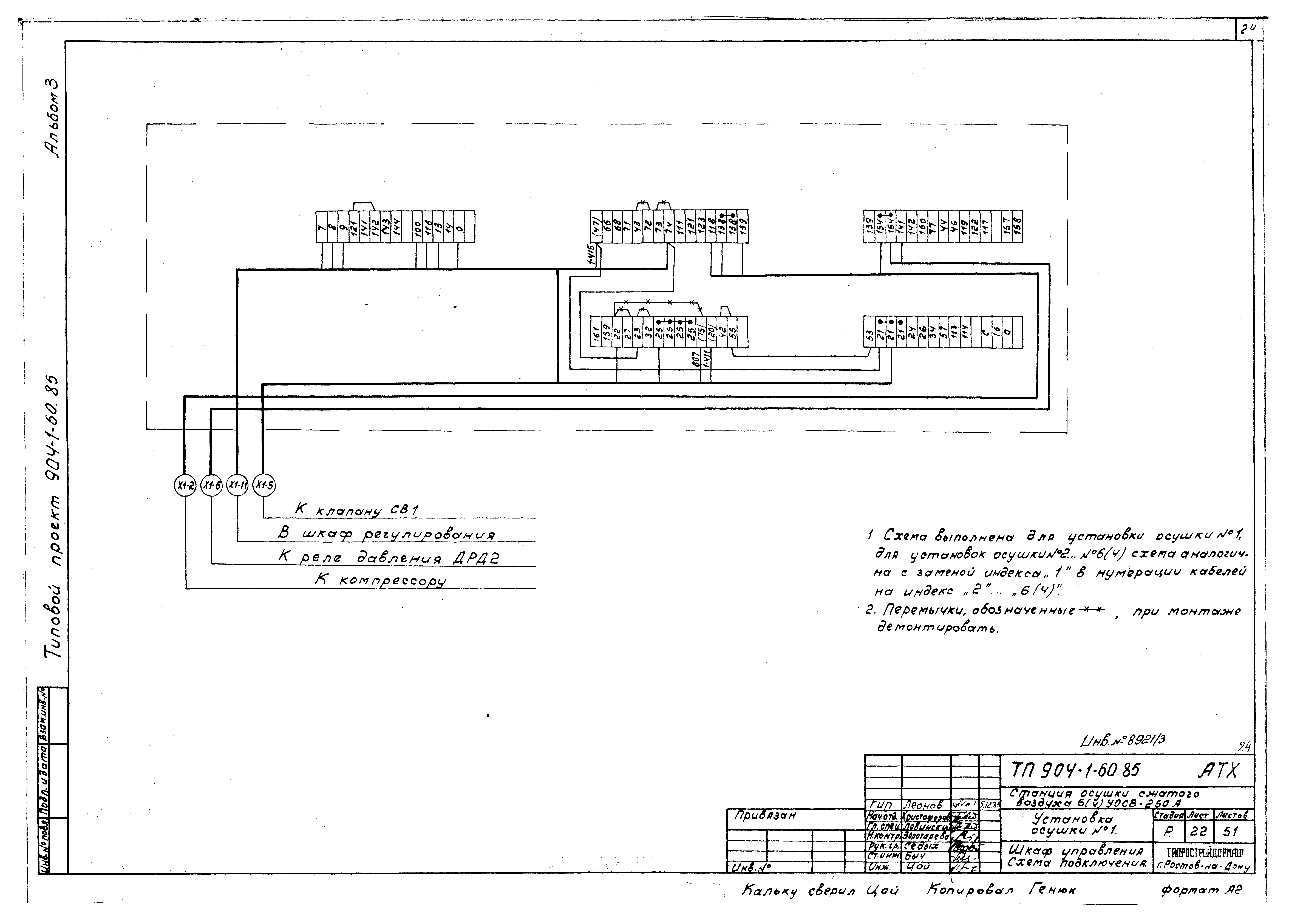
Скачать Типовой проект 904-1-60.85 Альбом 3. Автоматизация и КИПДата актуализации: 10.08.2017 Типовой проект 904-1-60.85
Альбом 3. Автоматизация и КИПОбозначение: | Типовой проект 904-1-60.85 | Обозначение англ: | 904-1-60.85 | Статус: | действует | Название рус.: | Альбом 3. Автоматизация и КИП | Дата добавления в базу: | 01.09.2013 | Дата актуализации: | 05.05.2017 | Дата введения: | 30.07.1984 | Разработан: | Гипростройдормаш
| Утверждён: | 19.04.1984 Минстройдормаш (Minstroydormash 4/84)
| Расположен в: |
|
                                                                                             
|